An den konkreten Beispielen werden wir Euch hier meist erläutern können, weshalb manches nur scheinbar wundersam geht oder nicht geht. Orientiert Euch an dem, was die Profis machen (das sind in diesem Fall nicht beliebige GU, sondern für Doppel- und Reihenhäuser eher die "üblichen Verdächtigen" Weisenburger / Wengerter / Werner / Traumhaus / Brale und Konsorten - was allerdings BT sind) - denn den Reigen der funktionierenden Konzepte haben die schon durchprobiert. D.h. worauf von denen noch keiner gekommen ist, wird Gründe haben. Eine L-förmige Treppe sehe ich hier nur bedingt.
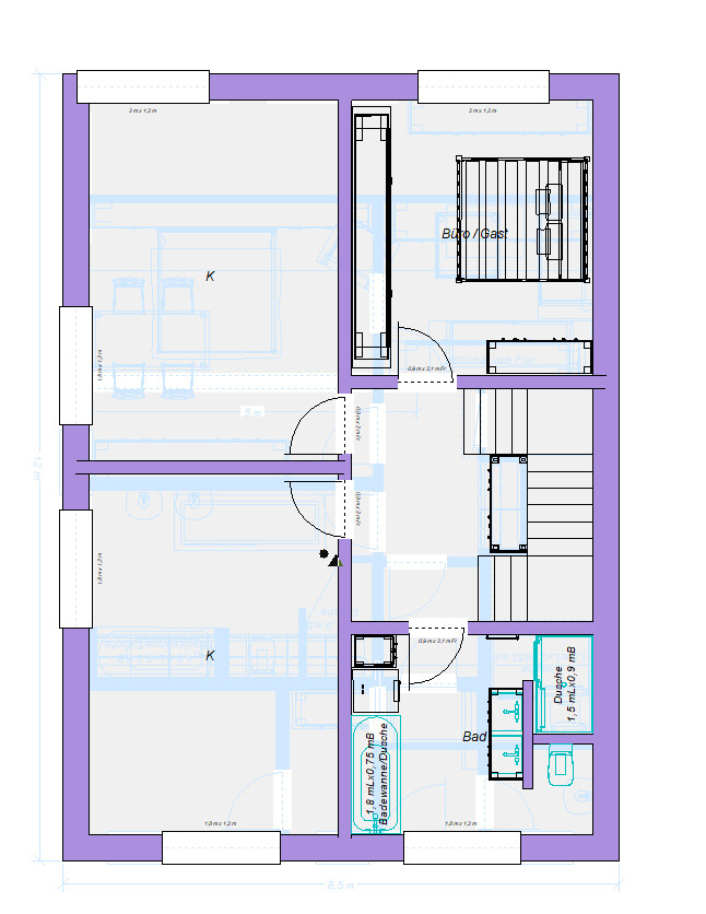
Z.B. Firma Hel*a (Poroton mit WDBS): Hier hätten wir im Wohnzimmer sichtbare Unterzüge, Technikraum würde im DG "auf keinen Fall" gehen wegen Wärmverlust und Leitungen und ebenso wäre in der Küche ein kleines Mauerstück welches wir wirklich überhauptnicht möchten:
Eine andere regionale Firma baut mit dem gleichen Material und dort kann man den Unterzug in der Decker verschwinden lassen, Technik kann ins DG (Mehrkosten) und solche Mauern sind auch nicht zwingend notwendig.
Danke für die Firman, ich schaue mir mal eine nach der anderen an
Das ist eine populäre Milchmädchenrechnung, auch wenn sie häufig in etwa zutrifft.
Wie komme ich den an die konkrete Zahl? Wenn wir einen max. Traufhöhe von 6,5m und Satteldach 30 Grad, wieviel Abstand müssen wir einhalten bzw. maximal bauen bei 11,5m Grundstücksbreite?
Der oberste Post gehört nicht zu mir

Beim untersten habe ich ja bereits erfahren, dass Technik im DG möglich ist. Daher schlussfolger ich einfach mal, dass gewisse Firmen die das ausschließen auf solche Kundenwünscha ausserhalb des Standards nicht eingehen wollen/können.
Massivhaus Mi**elrhein war ganz entsetzt über unsere Idee (aber gut, die Verkäuferin/Beraterin war auch wirklich "ohne Worte".
Wo meinst Du das denn gelernt zu haben / warum weiß ich davon nichts ?
@kbt09 ist hier quasi unsere Treppenpäpstin - wo sie die Stirn runzelt, da sei´ auf der Hut ;-)
Bei 2 Firmen, die es so umsetzten können. Im EG eine V-Treppe (gleichschenklige L-Treppe und im OG dann eine U-Treppe. Man sagte, dass wo Winkel) der Tritt unten im EG anfängt ist erstmal egal, hauptsache sie endet ander richtigen Stelle wo die andere dann ansetzt bzw. an der anderen Seite weiter geht.