ᐅ Einfamilienhaus Satteldach ca. 137qm, 1 Vollgeschoss
Erstellt am: 13.04.20 12:41
R
Revendare13.04.20 12:41Hallo liebe Forengemeinde,
wir sind bei der Planung unseres Einfamilienhaus mit Satteldach schon sehr weit und haben uns bereits auf einen BU festgelegt. Leider sind wir mit dem Grundriss in der Form noch nicht 100% zufrieden. Deshalb wenden wir uns hiermit nun an euch.
Bebauungsplan/Einschränkungen
Größe des Grundstücks 1.010qm
Hang leicht ansteigend, ca. 1,8m vom Standort des Hauses bis Ende Grundstück
Grundflächenzahl Kein Bebauungsplan, Grundstück hat 20m Front
Baufenster, Baulinie und -grenze
Randbebauung 3m
Anzahl Stellplatz 2 Autos in Doppelcarport, 1-2 vorm Haus (Parken an Straße ungünstig)
Geschossigkeit 1,5
Dachform
Stilrichtung
Ausrichtung Nord-Garten
Maximale Höhen/Begrenzungen
weitere Vorgaben Nachbar ist Grundstücksverkäufer und hat diverse Vorgaben gemacht. U.a. Höhe des Hauses (nicht höher als seins), Carport muss auf Grenze zum anderen Nachbarn stehen
Anforderungen der Bauherren
Stilrichtung, Dachform, Gebäudetyp Einfamilienhaus, Satteldach, nicht zu modern
Keller, Geschosse nein, 1,5
Anzahl der Personen, Alter z.Z. 2, jeweils 30, geplant sind 2 Kinder
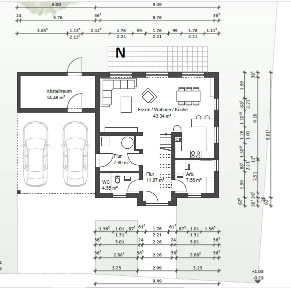
Raumbedarf im EG: Wohn/Ess/Küche, Hauswirtschaftsraum, Büro, Gäste-WC mit Dusche, Kellerersatzraum hinter Carport
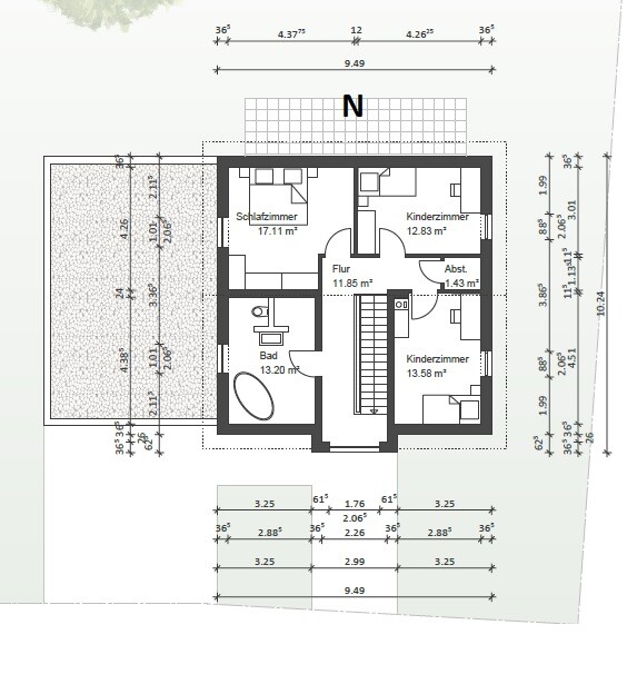
Raumbedarf im OG: 2 Kinderzimmer, Schlafen, Badezimmer, evtl. Abstellraum
Büro: Familiennutzung oder Homeoffice? Homeoffice
Schlafgäste pro Jahr vernachlässigbar
offene oder geschlossene Architektur offen
konservativ oder moderne Bauweise eher konservativ
offene Küche, Kochinsel offen ja, Kochinsel evtl., momentan ist eine G-Form geplant
Anzahl Essplätze 6
Kamin sind wir noch unschlüssig, eher ja
Musik/Stereowand nein
Balkon, Dachterrasse nein
Garage, Carport Doppelcarport
Nutzgarten, Treibhaus nicht geplant
weitere Wünsche/Besonderheiten/Tagesablauf, gern auch Begründungen, warum dieses oder das nicht sein soll
Hausentwurf
Von wem stammt die Planung: Partnerarchitekt des Bauunternehmens
Was gefällt besonders? Warum? Offener Wohn-Essbereich mit viel Glas und Blick in den grßen Garten, Gaube vorne "putzt" das Haus ungemein und soll es mit Licht durchfluten, aktuelles Raumprogramm
Was gefällt nicht? Warum? Gerade Treppe und daraus entstehender langer Flur sowohl in EG als auch OG. Leider besteht der Architekt darauf, dass bei der Hausbreite eine andere Treppenform kaum möglich wäre, ohne das Büro zu entfernen.
Preisschätzung lt Architekt/Planer: 360.000€ inkl. Baunebenkosten, Technik etc., ohne Küche
Persönliches Preislimit fürs Haus, inkl Ausstattung: 380.000€
favorisierte Heiztechnik: Sole Wärmepumpe
Wenn Ihr verzichten müsst, auf welche Details/Ausbauten
-könnt Ihr verzichten: Kamin, gerade Treppe
-könnt Ihr nicht verzichten: Büro, Kellerersatz
Warum ist der Entwurf so geworden, wie er jetzt ist? Der Architekt hat versucht unser gewünschtes Raumprogramm und die Vorgaben des Nachbarn
Welche Wünsche wurden vom Architekten umgesetzt? Tür vom Carport zum Hauswirtschaftsraum, Büro, Dusche in Gäste-WC, offener Wohn-Essbereich mit viel Glas
Was macht ihn in Euren Augen besonders gut oder schlecht? Gerade einläufige Treppe frisst meiner Meinung nach viel Platz, Vorgabe des Grundstücksverkäufers (Nachbar zur Ostseite macht Belichtung in Haus schwierig --> Gaube mit offenem Flur in Wohn-Essbereich um Licht ins Haus zu bringen
Ich erhoffe mir nun von euch ein Paar Verbesserungsvorschläge wie wir bei gleichem Raumprogramm noch mehr aus dem aktuellen Grundriss rausholen können. Ich schätze der einfachste Weg wäre eine andere Treppenform.
Bitte entschuldigt falls ich nicht alle Fragen für die Grundrissdiskussion korrekt ausgefüllt haben sollte.
Viele Grüße,
Revendare







wir sind bei der Planung unseres Einfamilienhaus mit Satteldach schon sehr weit und haben uns bereits auf einen BU festgelegt. Leider sind wir mit dem Grundriss in der Form noch nicht 100% zufrieden. Deshalb wenden wir uns hiermit nun an euch.
Bebauungsplan/Einschränkungen
Größe des Grundstücks 1.010qm
Hang leicht ansteigend, ca. 1,8m vom Standort des Hauses bis Ende Grundstück
Grundflächenzahl Kein Bebauungsplan, Grundstück hat 20m Front
Baufenster, Baulinie und -grenze
Randbebauung 3m
Anzahl Stellplatz 2 Autos in Doppelcarport, 1-2 vorm Haus (Parken an Straße ungünstig)
Geschossigkeit 1,5
Dachform
Stilrichtung
Ausrichtung Nord-Garten
Maximale Höhen/Begrenzungen
weitere Vorgaben Nachbar ist Grundstücksverkäufer und hat diverse Vorgaben gemacht. U.a. Höhe des Hauses (nicht höher als seins), Carport muss auf Grenze zum anderen Nachbarn stehen
Anforderungen der Bauherren
Stilrichtung, Dachform, Gebäudetyp Einfamilienhaus, Satteldach, nicht zu modern
Keller, Geschosse nein, 1,5
Anzahl der Personen, Alter z.Z. 2, jeweils 30, geplant sind 2 Kinder
Raumbedarf im EG: Wohn/Ess/Küche, Hauswirtschaftsraum, Büro, Gäste-WC mit Dusche, Kellerersatzraum hinter Carport
Raumbedarf im OG: 2 Kinderzimmer, Schlafen, Badezimmer, evtl. Abstellraum
Büro: Familiennutzung oder Homeoffice? Homeoffice
Schlafgäste pro Jahr vernachlässigbar
offene oder geschlossene Architektur offen
konservativ oder moderne Bauweise eher konservativ
offene Küche, Kochinsel offen ja, Kochinsel evtl., momentan ist eine G-Form geplant
Anzahl Essplätze 6
Kamin sind wir noch unschlüssig, eher ja
Musik/Stereowand nein
Balkon, Dachterrasse nein
Garage, Carport Doppelcarport
Nutzgarten, Treibhaus nicht geplant
weitere Wünsche/Besonderheiten/Tagesablauf, gern auch Begründungen, warum dieses oder das nicht sein soll
Hausentwurf
Von wem stammt die Planung: Partnerarchitekt des Bauunternehmens
Was gefällt besonders? Warum? Offener Wohn-Essbereich mit viel Glas und Blick in den grßen Garten, Gaube vorne "putzt" das Haus ungemein und soll es mit Licht durchfluten, aktuelles Raumprogramm
Was gefällt nicht? Warum? Gerade Treppe und daraus entstehender langer Flur sowohl in EG als auch OG. Leider besteht der Architekt darauf, dass bei der Hausbreite eine andere Treppenform kaum möglich wäre, ohne das Büro zu entfernen.
Preisschätzung lt Architekt/Planer: 360.000€ inkl. Baunebenkosten, Technik etc., ohne Küche
Persönliches Preislimit fürs Haus, inkl Ausstattung: 380.000€
favorisierte Heiztechnik: Sole Wärmepumpe
Wenn Ihr verzichten müsst, auf welche Details/Ausbauten
-könnt Ihr verzichten: Kamin, gerade Treppe
-könnt Ihr nicht verzichten: Büro, Kellerersatz
Warum ist der Entwurf so geworden, wie er jetzt ist? Der Architekt hat versucht unser gewünschtes Raumprogramm und die Vorgaben des Nachbarn
Welche Wünsche wurden vom Architekten umgesetzt? Tür vom Carport zum Hauswirtschaftsraum, Büro, Dusche in Gäste-WC, offener Wohn-Essbereich mit viel Glas
Was macht ihn in Euren Augen besonders gut oder schlecht? Gerade einläufige Treppe frisst meiner Meinung nach viel Platz, Vorgabe des Grundstücksverkäufers (Nachbar zur Ostseite macht Belichtung in Haus schwierig --> Gaube mit offenem Flur in Wohn-Essbereich um Licht ins Haus zu bringen
Ich erhoffe mir nun von euch ein Paar Verbesserungsvorschläge wie wir bei gleichem Raumprogramm noch mehr aus dem aktuellen Grundriss rausholen können. Ich schätze der einfachste Weg wäre eine andere Treppenform.
Bitte entschuldigt falls ich nicht alle Fragen für die Grundrissdiskussion korrekt ausgefüllt haben sollte.
Viele Grüße,
Revendare
Revendare schrieb:
Nachbar ist Grundstücksverkäufer und hat diverse Vorgaben gemacht. U.a. Höhe des Hauses (nicht höher als seins), Carport muss auf Grenze zum anderen Nachbarn stehenWow - das ist ja mal spannend - und schlecht für euch, da ihr so neben dem Süden (Straße) auch noch den Westen als Garten verliert.Wie hat er sich dass von euch denn bestätigen lassen? Kann mir kaum vorstellen, dass ein Notar solche Auflagen in den Vertrag aufnimmt.
Spannend wäre dann auch die Frage was da genau steht. Das Haus darf nicht höher sein, aber wenn du es weiter in den Norden des Grundstücks stellst, steht es höher am Hang und ist somit bestimmt höher als seins.
R
Revendare13.04.20 12:57Er möchte das gerne in den Notarvertrag aufnehmen. Im ersten Kaufvertragsentwurf (Kauf hat aufgrund von Corona noch nicht stattgefunden) stand allerdings keine seiner Vorgaben. Nun könnten wir natürlich einfach das Doppelcarport auf seine Seite stellen, aber man will ja die Nachbarschaft nicht gleich mit einem Streit beginnen
Gibt es Vorgaben wie weit das Carport von der Straße weg sein muss?
Ich würde das Carport soweit wie möglich an die Straße schieben und den Abstellraum losgelöst als Geräteschuppen(*) in den Norden. In der Hoffnung wenigstens etwas Westsonne in den Wohnraum zu bekommen.
Das Carport als Grenzbebauung an die Westgrenze wenn es denn sein muss.
Die Treppe würde mich auch stören. Ich würde die Räume im EG anders anordnen. Ihr habt so eine komplette Nordausrichtung.
Ich würde das Carport soweit wie möglich an die Straße schieben und den Abstellraum losgelöst als Geräteschuppen(*) in den Norden. In der Hoffnung wenigstens etwas Westsonne in den Wohnraum zu bekommen.
Das Carport als Grenzbebauung an die Westgrenze wenn es denn sein muss.
Die Treppe würde mich auch stören. Ich würde die Räume im EG anders anordnen. Ihr habt so eine komplette Nordausrichtung.
R
Revendare13.04.20 13:25Das Carport könnte prinzipiell direkt an die Straße. Laut Architekt gibt es hier nur bei Garagen den Mindestabstand von 3 (?) Metern. Problematisch ist dann halt die Steigung: das Grundstück steigt ca. 1,20m vom Straßenniveau an.
Edit: Den Kellerersatzraum könnten wir tatsächlich noch in den Garten schieben. Da das Carport allerdings am Haus verbleiben soll, weiß ich nicht ob uns das so viel Mehrwert bringt.
Da unser Grundstück 47m lang ist, haben wir ja noch genügend sonnigen Platz im Garten - da stört es uns weniger, dass wir die Sonne nicht direkt am Haus haben. Laut Architekt fällt wohl genügeng Licht in den Wohnraum durch den Vorbau und die großzügige Verglasung des Wohn-Essbereichs.
Edit: Den Kellerersatzraum könnten wir tatsächlich noch in den Garten schieben. Da das Carport allerdings am Haus verbleiben soll, weiß ich nicht ob uns das so viel Mehrwert bringt.
Da unser Grundstück 47m lang ist, haben wir ja noch genügend sonnigen Platz im Garten - da stört es uns weniger, dass wir die Sonne nicht direkt am Haus haben. Laut Architekt fällt wohl genügeng Licht in den Wohnraum durch den Vorbau und die großzügige Verglasung des Wohn-Essbereichs.
Ähnliche Themen