ᐅ Einfamilienhaus mit 3 Kinderzimmern
Erstellt am: 12.12.19 00:26
H
Hamburger202012.12.19 00:26Liebe Hausbau-Forum Community,
ich lese schon einige Zeit mit und hier haben wir uns auch schon einige Ideen und Inspirationen eingeholt. Da es bei unser Hausplanung ist es mittlerweile immer konkreter geworden ist, habe ich mir gedacht, ist nun der optimale Zeitpunkt gekommen eure Fachexpertise einzuholen. Wir würden uns sehr über euer (schonungsloses) Feedback freuen. Seid bitte trotzdem nett zu uns
Zum Fragebogen:
Bebauungsplan/Einschränkungen
Größe des Grundstücks: 1100m²
Hang: nein
Grundflächenzahl: n/a
Geschossflächenzahl: 0,3
Baufenster, Baulinie und -grenze: 11x14m
Randbebauung: nein, außer Garage/Carport etc.
Anzahl Stellplatz: k.A., sollte aber mit dem geplanten Doppelcarport erfüllbar sein
Geschossigkeit: 1 Vollgeschoss (Schleswig Holstein)
Dachform: keine Vorgaben
Stilrichtung: keine Vorgaben
Ausrichtung: keine Vorgaben
Maximale Höhen/Begrenzungen: keine Vorgaben
weitere Vorgaben: n/a
Anforderungen der Bauherren
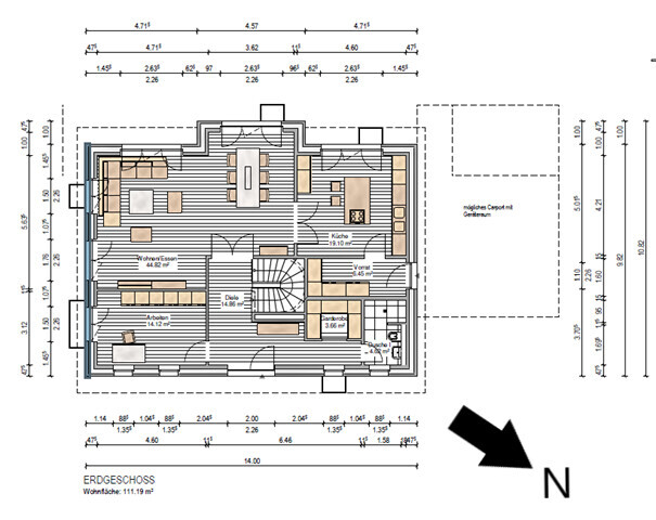
Stilrichtung, Dachform, Gebäudetyp: Bevorzugt Stadtvilla, wird aber aus unserer Sicht und auch aus Sicht des Architekten nicht mit unseren Raumanforderungen auf dem Baufenster und bei 1 Vollgeschoss realisierbar sein. 2. Wahl ist ein Satteldach (Kniestock 125 cm, 40° Dachneigung) mit Kapitänsgiebel, wie aktuell geplant
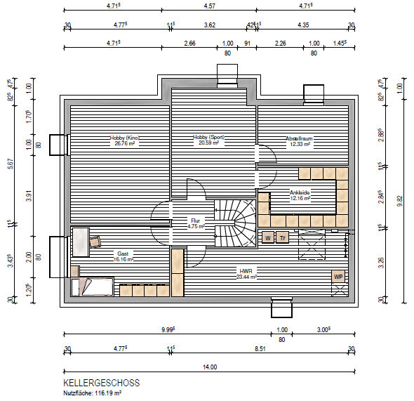
Keller, Geschosse: Keller, EG, Dachgeschoss
Anzahl der Personen, Alter: 2*30+, 2 Kinder (+1 in Planung)
Raumbedarf im EG, OG:
EG: Wohnzimmer, Küche (mit Vorratsraum), Gästebad, Garderobe, Büro
OG: 3 Kinderzimmer, Schlafzimmer, Badezimmer, Kinderbad. Ankleide für Eltern wäre nett, aber kein muss
Büro: Familiennutzung oder Homeoffice?: Homeoffice
Schlafgäste pro Jahr: ~15
offene oder geschlossene Architektur: offen
konservativ oder moderne Bauweise, modern
offene Küche, Kochinsel: geschlossene Küche, Kochinsel (kein muss)
Anzahl Essplätze: mindestens 5
Kamin: nein, ggf. Elektrokamin o.ä.
Musik/Stereowand
Balkon, Dachterrasse: nicht gewünscht, aber Bebauungsplanbedingt erforderlich
Garage, Carport: Carport
Nutzgarten, Treibhaus: nein
weitere Wünsche/Besonderheiten/Tagesablauf, gern auch Begründungen, warum dieses oder das nicht sein soll
Hausentwurf
Von wem stammt die Planung:
Architekt eines Bauunternehmens
Was gefällt besonders? Warum? Grundsätzlich sind wir sehr zufrieden mit dem Entwurf. Alle unsere Bedürfnisse werden erfüllt
Was gefällt nicht? Warum? Wir finden es schade, dass die Kinderzimmer im Verhältnis zum Elternbereich recht klein sind. Eine bessere Lösung diese sinnvoll zu vergrößern ist uns nicht wirklich eingefallen
Preisschätzung lt Architekt/Planer: Preis Haus inkl. Erdarbeiten: 650k (aber ohne Grundstück, Küche, Außenanlagen etc.)
favorisierte Heiztechnik: Erdwärme
Wenn Ihr verzichten müsst, auf welche Details/Ausbauten
-könnt Ihr verzichten: Ankleide im OG (an sich aber nur ungern)
-könnt Ihr nicht verzichten: Keller, 3 Kinderzimmer
Warum ist der Entwurf so geworden, wie er jetzt ist?
Standardentwurf vom Planer angepasst nach unseren Wünschen und Bedürfnissen
Was macht ihn in Euren Augen besonders gut oder schlecht?
Grundsätzlich ist der Grundriss aus unserer Sicht sehr praktisch und deckt unsere Wünsche ab. Ob die aus unserer Sicht wenigen Schwächen (ggf. Vorrat zu schmal, Garderobe zu klein, Kinderzimmer zu klein) auf dem Baufenster unter den Bedingungen umsetzbar sind, bezweifele ich etwas. Aber vielleicht habt ihr ja Ideen?
Was ist die wichtigste/grundlegende Frage zum Grundriss in 130 Zeichen zusammengefasst?
Ist der Grundriss aus eurer Sicht ebenfalls praktikabel? Seht ihr Schwächen die wir ggf. übersehen haben, was fehlt, wie könnte man diese lösen? Seht ihr Möglichkeiten die 3 Kinderzimmer noch etwas zu vergrößern, ohne, dass es ganz krude Räume im OG werden?
Die möbel im Grundriss stammen vom Bauunternehmen, würden wir teilweise anders stellen. Ebenso die ein oder andere Tür versetzen. Uns geht es eher darum, den Grundriss hinsichtlich des Gesamtkonzeptes hier vom Forum in die Mangel nehmen zu lassen




ich lese schon einige Zeit mit und hier haben wir uns auch schon einige Ideen und Inspirationen eingeholt. Da es bei unser Hausplanung ist es mittlerweile immer konkreter geworden ist, habe ich mir gedacht, ist nun der optimale Zeitpunkt gekommen eure Fachexpertise einzuholen. Wir würden uns sehr über euer (schonungsloses) Feedback freuen. Seid bitte trotzdem nett zu uns
Zum Fragebogen:
Bebauungsplan/Einschränkungen
Größe des Grundstücks: 1100m²
Hang: nein
Grundflächenzahl: n/a
Geschossflächenzahl: 0,3
Baufenster, Baulinie und -grenze: 11x14m
Randbebauung: nein, außer Garage/Carport etc.
Anzahl Stellplatz: k.A., sollte aber mit dem geplanten Doppelcarport erfüllbar sein
Geschossigkeit: 1 Vollgeschoss (Schleswig Holstein)
Dachform: keine Vorgaben
Stilrichtung: keine Vorgaben
Ausrichtung: keine Vorgaben
Maximale Höhen/Begrenzungen: keine Vorgaben
weitere Vorgaben: n/a
Anforderungen der Bauherren
Stilrichtung, Dachform, Gebäudetyp: Bevorzugt Stadtvilla, wird aber aus unserer Sicht und auch aus Sicht des Architekten nicht mit unseren Raumanforderungen auf dem Baufenster und bei 1 Vollgeschoss realisierbar sein. 2. Wahl ist ein Satteldach (Kniestock 125 cm, 40° Dachneigung) mit Kapitänsgiebel, wie aktuell geplant
Keller, Geschosse: Keller, EG, Dachgeschoss
Anzahl der Personen, Alter: 2*30+, 2 Kinder (+1 in Planung)
Raumbedarf im EG, OG:
EG: Wohnzimmer, Küche (mit Vorratsraum), Gästebad, Garderobe, Büro
OG: 3 Kinderzimmer, Schlafzimmer, Badezimmer, Kinderbad. Ankleide für Eltern wäre nett, aber kein muss
Büro: Familiennutzung oder Homeoffice?: Homeoffice
Schlafgäste pro Jahr: ~15
offene oder geschlossene Architektur: offen
konservativ oder moderne Bauweise, modern
offene Küche, Kochinsel: geschlossene Küche, Kochinsel (kein muss)
Anzahl Essplätze: mindestens 5
Kamin: nein, ggf. Elektrokamin o.ä.
Musik/Stereowand
Balkon, Dachterrasse: nicht gewünscht, aber Bebauungsplanbedingt erforderlich
Garage, Carport: Carport
Nutzgarten, Treibhaus: nein
weitere Wünsche/Besonderheiten/Tagesablauf, gern auch Begründungen, warum dieses oder das nicht sein soll
Hausentwurf
Von wem stammt die Planung:
Architekt eines Bauunternehmens
Was gefällt besonders? Warum? Grundsätzlich sind wir sehr zufrieden mit dem Entwurf. Alle unsere Bedürfnisse werden erfüllt
Was gefällt nicht? Warum? Wir finden es schade, dass die Kinderzimmer im Verhältnis zum Elternbereich recht klein sind. Eine bessere Lösung diese sinnvoll zu vergrößern ist uns nicht wirklich eingefallen
Preisschätzung lt Architekt/Planer: Preis Haus inkl. Erdarbeiten: 650k (aber ohne Grundstück, Küche, Außenanlagen etc.)
favorisierte Heiztechnik: Erdwärme
Wenn Ihr verzichten müsst, auf welche Details/Ausbauten
-könnt Ihr verzichten: Ankleide im OG (an sich aber nur ungern)
-könnt Ihr nicht verzichten: Keller, 3 Kinderzimmer
Warum ist der Entwurf so geworden, wie er jetzt ist?
Standardentwurf vom Planer angepasst nach unseren Wünschen und Bedürfnissen
Was macht ihn in Euren Augen besonders gut oder schlecht?
Grundsätzlich ist der Grundriss aus unserer Sicht sehr praktisch und deckt unsere Wünsche ab. Ob die aus unserer Sicht wenigen Schwächen (ggf. Vorrat zu schmal, Garderobe zu klein, Kinderzimmer zu klein) auf dem Baufenster unter den Bedingungen umsetzbar sind, bezweifele ich etwas. Aber vielleicht habt ihr ja Ideen?
Was ist die wichtigste/grundlegende Frage zum Grundriss in 130 Zeichen zusammengefasst?
Ist der Grundriss aus eurer Sicht ebenfalls praktikabel? Seht ihr Schwächen die wir ggf. übersehen haben, was fehlt, wie könnte man diese lösen? Seht ihr Möglichkeiten die 3 Kinderzimmer noch etwas zu vergrößern, ohne, dass es ganz krude Räume im OG werden?
Die möbel im Grundriss stammen vom Bauunternehmen, würden wir teilweise anders stellen. Ebenso die ein oder andere Tür versetzen. Uns geht es eher darum, den Grundriss hinsichtlich des Gesamtkonzeptes hier vom Forum in die Mangel nehmen zu lassen
Das gibt eine sportliche Kurbelei beim Ein- und Ausfahren.
https://www.instagram.com/11antgmxde/
https://www.linkedin.com/company/bauen-jetzt/
Hamburger2020 schrieb:Soll das ein Aufmerksam-Lese-Test sein ?
Balkon, Dachterrasse: nicht gewünscht, aber Bebauungsplanbedingt erforderlich
https://www.instagram.com/11antgmxde/
https://www.linkedin.com/company/bauen-jetzt/
O
Osnabruecker12.12.19 07:00Ich finde die Größe der Kinderzimmer perfekt...
"Persönliche Erfahrung"
Als Kleinkind 8 m2 gehabt, vollkommen ausreichend.
Als Jugendlicher 12 m2 gehabt, ich hätte gerne die 2 zusätzlichen m2 von euch für eine Couch gehabt
Also ist 14 genau passend.
Vergiss nicht, das die 14 m2 bei euch die Nettofläche ist, und wen stört eine Dachschräge überm Bett... sind also eher 16 m2.
"Persönliche Erfahrung"
Als Kleinkind 8 m2 gehabt, vollkommen ausreichend.
Als Jugendlicher 12 m2 gehabt, ich hätte gerne die 2 zusätzlichen m2 von euch für eine Couch gehabt
Also ist 14 genau passend.
Vergiss nicht, das die 14 m2 bei euch die Nettofläche ist, und wen stört eine Dachschräge überm Bett... sind also eher 16 m2.
P
Pinky030112.12.19 07:34Wo soll denn die Terrasse hin? Ihr hab auf allen Seiten Lichtschächte, die wären also auch in der Terrasse. Die Küche ist sehr weit vom Garten weg.
Wofür die Ankleide im Keller?
Wofür die Ankleide im Keller?
Wenn ihr Gast in den Keller verbannt und dort den Hauswirtschaftsraum habt, also schon Wasseranschlüsse, würde ich dem Gast auch ein kleines Bad gönnen. Zumindest mal vorbereiten. Dafür könnte man sich die Dusche im Gäste-WC dann sparen. Bei doch öfteren Übernachtungsbesuch kann man da mal drüber nachdenken. Oder benötigt ihr eine Hebeanlage?
Warum der Ausgang von der Speis in den Garten? Kostet Stellfläche und ich sehe keinen Nutzen. Zum Kräuter-aus-dem-Garten-holen geht man aus der Terrassentür in der Küche.
Die Garage so sehe ich auch kritisch. Nicht nur wegen der Kurbelei. Das soll ja ein Doppelcarport sein, wenn ich den Fragebogen richtig lese. Wie wollt ihr denn da rein fahren? Über das Nachbargrundstück? Und nur zwei Autos? Bei vielleicht 3 Kindern? Die werden auch mal mobil - da finde ich zwei knapp bemessene Stellplätze (ob jetzt als Carport oder Garage) sehr knapp. Und wo sollen all die Räder, Roller, Bobbycars etc. noch hin?
Da ihr nach vorne noch viel Platz habt, würde ich das ganze Haus mehr in das Grundstück rein schieben und mir vor dem Haus einen ausreichend großen Hof gönnen. Der ist auch bei Kleinkindern als Spielgelände sehr beliebt. Zwei überdachte Stellplätze, einen Schupfen für Fahrgerätschaften jeglicher Art und davor noch Platz genug, damit da gebobbycart werden kann und später, wenn die Brut größer ist, das dritte oder gar vierte Auto auch noch seinen Platz findet.
Kinderzimmer finde ich auch nicht zu klein.
Ich würde mir auch überlegen, ob ich nicht Küche und Wohnecke tauschen würde. Nach vorn wird es keine große Terrasse geben können, also an der Seite zum Garten. Und dann muß man jetzt durch den gesamten Wohnbereich latschen um sich ein Bier oder einfach nur mal das Salz zu holen.
Das mit den Lichtschächten überdenken, ob sie später auf der Terrasse stören. Nicht jeder Lichtschacht stört zwingend auf einer Terrasse, aber wenn der genau im Laufweg liegt, nervt er immer. Also schon mal überlegen, wie man die Terrasse plant. Lichtschacht unter einer geplanten Bank z.B. stört keine Sau.
Warum der Ausgang von der Speis in den Garten? Kostet Stellfläche und ich sehe keinen Nutzen. Zum Kräuter-aus-dem-Garten-holen geht man aus der Terrassentür in der Küche.
Die Garage so sehe ich auch kritisch. Nicht nur wegen der Kurbelei. Das soll ja ein Doppelcarport sein, wenn ich den Fragebogen richtig lese. Wie wollt ihr denn da rein fahren? Über das Nachbargrundstück? Und nur zwei Autos? Bei vielleicht 3 Kindern? Die werden auch mal mobil - da finde ich zwei knapp bemessene Stellplätze (ob jetzt als Carport oder Garage) sehr knapp. Und wo sollen all die Räder, Roller, Bobbycars etc. noch hin?
Da ihr nach vorne noch viel Platz habt, würde ich das ganze Haus mehr in das Grundstück rein schieben und mir vor dem Haus einen ausreichend großen Hof gönnen. Der ist auch bei Kleinkindern als Spielgelände sehr beliebt. Zwei überdachte Stellplätze, einen Schupfen für Fahrgerätschaften jeglicher Art und davor noch Platz genug, damit da gebobbycart werden kann und später, wenn die Brut größer ist, das dritte oder gar vierte Auto auch noch seinen Platz findet.
Kinderzimmer finde ich auch nicht zu klein.
Ich würde mir auch überlegen, ob ich nicht Küche und Wohnecke tauschen würde. Nach vorn wird es keine große Terrasse geben können, also an der Seite zum Garten. Und dann muß man jetzt durch den gesamten Wohnbereich latschen um sich ein Bier oder einfach nur mal das Salz zu holen.
Das mit den Lichtschächten überdenken, ob sie später auf der Terrasse stören. Nicht jeder Lichtschacht stört zwingend auf einer Terrasse, aber wenn der genau im Laufweg liegt, nervt er immer. Also schon mal überlegen, wie man die Terrasse plant. Lichtschacht unter einer geplanten Bank z.B. stört keine Sau.
Mir gefällt der Grundriss vom Haus sehr gut. Vorrat, Garderobe und Gäste-WC würde ich evtl. noch mal etwas mit rumspielen. Denke da kann man noch etwas Platz für den Vorratsraum gewinnen.
Küche würde ich evtl. auch schon mal genauer Planen, die hat so nicht besonders viel Arbeitsfläche.
Küche würde ich evtl. auch schon mal genauer Planen, die hat so nicht besonders viel Arbeitsfläche.
Ähnliche Themen