kaho674
Hä? Wie jetzt Extrastellplätze? Braucht es 4???#113 , neben den Carport an die Grenze können ja die 2 geforderten extra Stellplätze (hintereinander). Ist ja dann keine Bebauung
Hä? Wie jetzt Extrastellplätze? Braucht es 4???#113 , neben den Carport an die Grenze können ja die 2 geforderten extra Stellplätze (hintereinander). Ist ja dann keine Bebauung
Laut #1 sind 2 im Carport + 1-2 extra gewünscht.Hä? Wie jetzt Extrastellplätze? Braucht es 4??
Ja, an der Straße ist kaum Platz zum Parken deshalb wären 4 klasseLaut #1 sind 2 im Carport + 1-2 extra gewünscht.
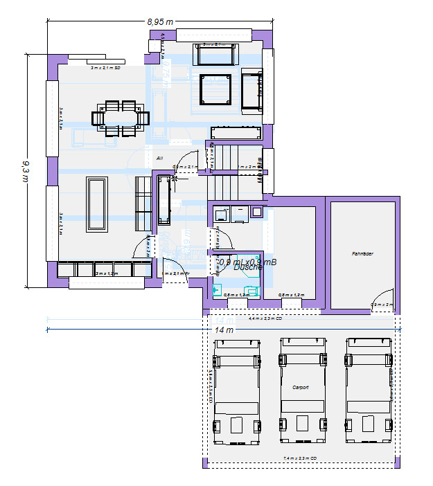
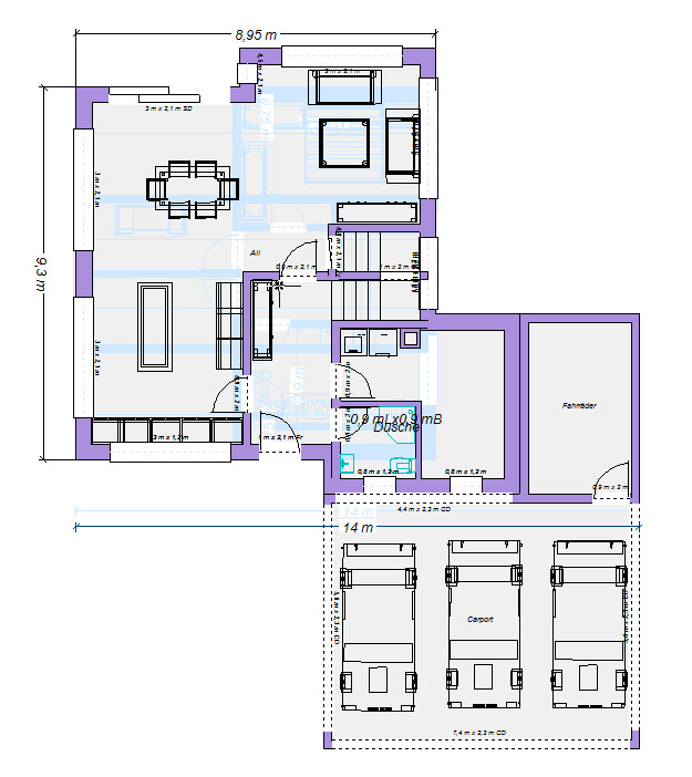
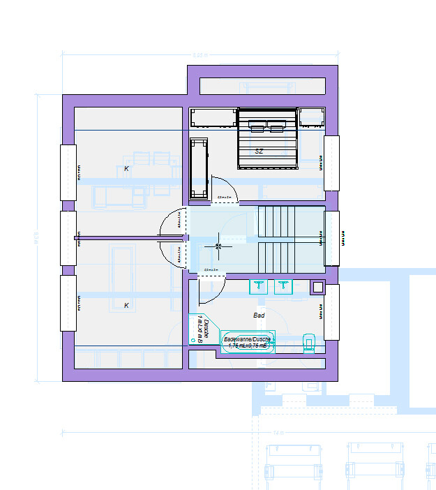
Insgesamt gefällt uns deine Variante am besten, da es unsere Wünsche und den optimierten Lichteinfall kombiniertAnhang anzeigen 45384
Die Fenster in den Kinderzimmer sind mit Brüstung, ca. 1,60... ich bin mir unsicher mit der Dachschräge... deshalb auch im Bad die Platzhalterfläche...
Anhang anzeigen 45385 Anhang anzeigen 45386
Der meint: Klarer Fall von faktischen Baugrenzen. Gleiches gilt für Traufständigkeit. Ich sehe da keinen Spielraum. Außerdem ist's besser für Photovoltaik.Ich stecke diese Interpretation in die Schublade "vorauseilender Gehorsam" - was meint @Escroda ?
Nö.Aber ob das als Argument für den Giebel zur Straße ausreicht?