ᐅ Einfamilienhaus mit 250qm. Ideen für Ansicht und Grundriss
Erstellt am: 31.08.21 20:15
Q
QuerpasstoniQ
Querpasstoni31.08.21 20:15Hallo zusammen,
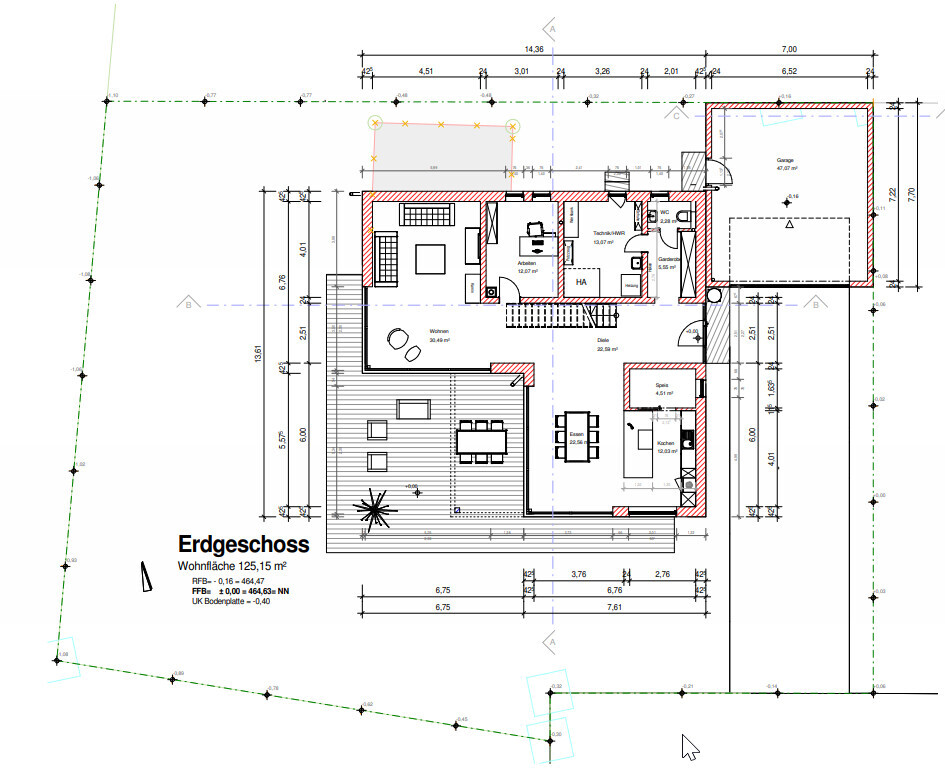
nachdem ich schon seit einiger Zeit immer wieder Interessante Grundrisse und auch sehr sinnvolle Vorschläge hier gelesen habe, würde mich gerne eure Meinung zu unserem Grundriss interessieren. Und hoffentlich habe ihr ja einige gute Ideen oder kritische Punkte auf die wir aufpassen sollten.
Bebauungsplan/Einschränkungen
Größe des Grundstücks: 825qm
Hang: ebenes Grundstück
Grundflächenzahl 0,4
Geschossflächenzahl 0,4
Baufenster, Baulinie und -grenze: Keine Vorgabe
Anzahl Stellplatz: Keine Vorgabe
Geschossigkeit 2 Vollgeschosse
Dachform: Keine Vorgabe
Stilrichtung: Keine Vorgabe
Ausrichtung: Keine Vorgabe
Maximale Höhen/Begrenzungen: Traufhöhe 6,50 m
Anforderungen der Bauherren
Stilrichtung, Dachform, Gebäudetyp: Kein Flachdach, bevorzugt Walmdach, sind hier aber eigentlich offen
Keller, Geschosse: Keller geht aufgrund von Bodengutachten nicht, 2 Vollgeschosse
Anzahl der Personen, Alter: 2 Erwachsene (34,36) 1 Kind (1) + ein weiteres geplantes
Raumbedarf im EG, OG 200-220 qm
Büro: Familiennutzung oder Homeoffice? 1 Büro
Schlafgäste pro Jahr eher selten
offene oder geschlossene Architektur Offene Architektur
konservativ oder moderne Bauweise Moderne Bauweise
offene Küche, Kochinsel Offene Küche mit Kochinsel
Anzahl Essplätze 6-8
Kamin ja
Musik/Stereowand
Balkon, Dachterrasse Balkon ja, keine Dachterrasse
Garage, Carport Große Garage gewünscht
Nutzgarten, Treibhaus
weitere Wünsche/Besonderheiten/Tagesablauf, gern auch Begründungen, warum dieses oder das nicht sein soll 2 Bäder
Hausentwurf
Von wem stammt die Planung:
-Architekt
Was gefällt besonders? Warum? Geschützte Terrasse mit Süd-West Ausrichtung. Das sind unsere unverbauten Aussichten
Was gefällt nicht? Warum? Ansicht Nordseite. Sehr große Fläche mit wenig/kleinen Fenstern
Preisschätzung lt Architekt/Planer: 800TEUR
Persönliches Preislimit fürs Haus, inkl Ausstattung: ~950TEUR
favorisierte Heiztechnik: Luft-Wasser-Wärmepumpe
Wenn Ihr verzichten müsst, auf welche Details/Ausbauten
-könnt Ihr verzichten:
-könnt Ihr nicht verzichten: Separates Kinderbad, große Kinderzimmer. Überdachte Terrasse
Warum ist der Entwurf so geworden, wie er jetzt ist?
Entwurf von unserem Architekt, der unsere Wünsche berücksichtigt hat, aber auch eigene Ideen eingebracht hat (z.B. L-Form)
Was ist die wichtigste/grundlegende Frage zum Grundriss in 130 Zeichen zusammengefasst?
Wir sind schon relativ weit in der Planungsphase und eigentlich sehr zufrieden mit dem Grundriss. Jedoch finden wir die Außenansicht von Norden nicht sehr schön. Leider ist das die Ansicht, die die „Öffentlichkeit“ sieht. Habt ihr Ideen, wie man das schöner machen könnte, ohne den kompletten Grundriss zu ändern. Die Architektin hat vorgeschlagen künstlerische Element an der großen Wandfläche zu platzieren oder es nur mit Farbflächen aufzulockern. Das überzeugt uns aber nicht so wirklich.
Danke schon mal für eure Ideen.




nachdem ich schon seit einiger Zeit immer wieder Interessante Grundrisse und auch sehr sinnvolle Vorschläge hier gelesen habe, würde mich gerne eure Meinung zu unserem Grundriss interessieren. Und hoffentlich habe ihr ja einige gute Ideen oder kritische Punkte auf die wir aufpassen sollten.
Bebauungsplan/Einschränkungen
Größe des Grundstücks: 825qm
Hang: ebenes Grundstück
Grundflächenzahl 0,4
Geschossflächenzahl 0,4
Baufenster, Baulinie und -grenze: Keine Vorgabe
Anzahl Stellplatz: Keine Vorgabe
Geschossigkeit 2 Vollgeschosse
Dachform: Keine Vorgabe
Stilrichtung: Keine Vorgabe
Ausrichtung: Keine Vorgabe
Maximale Höhen/Begrenzungen: Traufhöhe 6,50 m
Anforderungen der Bauherren
Stilrichtung, Dachform, Gebäudetyp: Kein Flachdach, bevorzugt Walmdach, sind hier aber eigentlich offen
Keller, Geschosse: Keller geht aufgrund von Bodengutachten nicht, 2 Vollgeschosse
Anzahl der Personen, Alter: 2 Erwachsene (34,36) 1 Kind (1) + ein weiteres geplantes
Raumbedarf im EG, OG 200-220 qm
Büro: Familiennutzung oder Homeoffice? 1 Büro
Schlafgäste pro Jahr eher selten
offene oder geschlossene Architektur Offene Architektur
konservativ oder moderne Bauweise Moderne Bauweise
offene Küche, Kochinsel Offene Küche mit Kochinsel
Anzahl Essplätze 6-8
Kamin ja
Musik/Stereowand
Balkon, Dachterrasse Balkon ja, keine Dachterrasse
Garage, Carport Große Garage gewünscht
Nutzgarten, Treibhaus
weitere Wünsche/Besonderheiten/Tagesablauf, gern auch Begründungen, warum dieses oder das nicht sein soll 2 Bäder
Hausentwurf
Von wem stammt die Planung:
-Architekt
Was gefällt besonders? Warum? Geschützte Terrasse mit Süd-West Ausrichtung. Das sind unsere unverbauten Aussichten
Was gefällt nicht? Warum? Ansicht Nordseite. Sehr große Fläche mit wenig/kleinen Fenstern
Preisschätzung lt Architekt/Planer: 800TEUR
Persönliches Preislimit fürs Haus, inkl Ausstattung: ~950TEUR
favorisierte Heiztechnik: Luft-Wasser-Wärmepumpe
Wenn Ihr verzichten müsst, auf welche Details/Ausbauten
-könnt Ihr verzichten:
-könnt Ihr nicht verzichten: Separates Kinderbad, große Kinderzimmer. Überdachte Terrasse
Warum ist der Entwurf so geworden, wie er jetzt ist?
Entwurf von unserem Architekt, der unsere Wünsche berücksichtigt hat, aber auch eigene Ideen eingebracht hat (z.B. L-Form)
Was ist die wichtigste/grundlegende Frage zum Grundriss in 130 Zeichen zusammengefasst?
Wir sind schon relativ weit in der Planungsphase und eigentlich sehr zufrieden mit dem Grundriss. Jedoch finden wir die Außenansicht von Norden nicht sehr schön. Leider ist das die Ansicht, die die „Öffentlichkeit“ sieht. Habt ihr Ideen, wie man das schöner machen könnte, ohne den kompletten Grundriss zu ändern. Die Architektin hat vorgeschlagen künstlerische Element an der großen Wandfläche zu platzieren oder es nur mit Farbflächen aufzulockern. Das überzeugt uns aber nicht so wirklich.
Danke schon mal für eure Ideen.
Ich finde den Entwurf sehr schön. Der Grundriss gefällt mir persönlich, auch wenn ich oben einen Hauswirtschaftsraum haben möchte.
Aber jegliches Jammern wäre, künstlich Fehler zu entdecken. Es ist ein offener und großzügiger Entwurf mit einigen Sichtachsen. Super.
Mir persönlich gefallen diese Doppelfenster nicht. Die schlanke Form passt meiner Meinung nicht zur modernen breiten Form. Ich würde die Fenster der Kinderzimmer, Schlafzimmer, Bad und Büro „zusammenlegen“ und dann mal schauen, ob sich nicht die Nordfassade zum Positiven verändert.
Man könnte noch versuchen, die Form der Hauswirtschaftsraum-Tür quer zu legen und als Fensterband an die WZ-Nordwand quasi als Wiederholung zu setzen.
Aber jegliches Jammern wäre, künstlich Fehler zu entdecken. Es ist ein offener und großzügiger Entwurf mit einigen Sichtachsen. Super.
Mir persönlich gefallen diese Doppelfenster nicht. Die schlanke Form passt meiner Meinung nicht zur modernen breiten Form. Ich würde die Fenster der Kinderzimmer, Schlafzimmer, Bad und Büro „zusammenlegen“ und dann mal schauen, ob sich nicht die Nordfassade zum Positiven verändert.
Man könnte noch versuchen, die Form der Hauswirtschaftsraum-Tür quer zu legen und als Fensterband an die WZ-Nordwand quasi als Wiederholung zu setzen.
M
Myrna_Loy31.08.21 21:03Die Grundrisse finde ich auch gut gelungen, aber die Außenansichten sehen aus wie ein aufgeblasenes, sehr preisgünstiges 150 qm Häuschen. eines dörflichen Bauunternehmens.
M
Myrna_Loy31.08.21 21:27Querpasstoni schrieb:
Die Architektin hat vorgeschlagen künstlerische Element an der großen Wandfläche zu platzieren oder es nur mit Farbflächen aufzulockern. Das überzeugt uns aber nicht so wirklich.Ich musste gerade laut lachen, aber eigentlich ist es schon eher traurig, wenn eine Architektin ein Bauvolumen in der Größenordnung „knappe Mille“ planen darf und das ist ihre Lösung? Und als Verbesserungsvorschlag kommt nichts Gestalterisches von ihr, sondern ihr sollt Euch was hübsches an die Fassade kleben? Ich schätze Architekten, arbeite gerne mit ihnen und hab einige Exemplare im Freundes- und Verwandtenkreis. Ich sage daher selten was Schlechtes über Architekten, aber hier würde ich doch mein Geld in ein anderes Büro tragen.
G
Gerddieter31.08.21 23:45Ich schätze mal die Architektin hat bisher null Arbeit in die Fassade gesteckt... die sieht verboten aus und in der Kategorie Haus mit Sicherheit nicht hinnehmbar....
Da würde ich auf etwas mehr bestehen!
Da würde ich auf etwas mehr bestehen!
Ähnliche Themen