ᐅ Grundriss-Optimierung Neubau, Einfamilienhaus 2 Vollgeschosse ohne Keller am Hang
Erstellt am: 11.08.21 15:27
S
SteiranLiebe Forumsgemeinde,
gerade neu registriert nach monatelangem Mitlesen und schon würde ich mich über Feedback von euch freuen. Wir haben für einen Neubau eines Einfamilienhaus in Nordhessen den Vertrag unterschrieben und auch schon entsprechende Grundrisse erstellen lassen auf Grundlage unserer Ideen.
Bebauungsplan/Einschränkungen
Größe des Grundstücks: 578m²
Hang: 3m Höhenunterschied von Nord nach Süd abfallend
Grundflächenzahl: 0,4
Geschossflächenzahl: 0,8
Baufenster, Baulinie und -grenze: alles nach HBO
Geschossigkeit: 2 Vollgeschosse
Maximale mittl. Firsthöhe: 10,0m
Anforderungen der Bauherren
Stilrichtung, Dachform, Gebäudetyp: Walmdach
Keller: nein
Geschosse: 2 Vollgeschosse
Anzahl der Personen: 2 Erw. Mitte/Ende 30, 2 Kinder in "Planung"
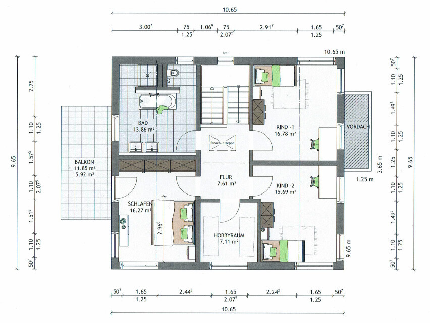
Raumbedarf im EG: Wohnen, Essen, Küche, Arbeitszimmer, Hauswirtschaftsraum, Gäste-WC; OG: Erw. Schlafzimmer, Kind 1+2, Bad, evtl. Hobby/Abstellraum.
Büro: Nutzung durch einen Erw.
Schlafgäste pro Jahr = wenig
offene Küche: ja
Anzahl Essplätze: 6 - 8
Kamin: nein
Musik/Stereowand: nein
Balkon: ja
Carport: ja
Hausentwurf
Von wem stammt die Planung:
- Ideen Do-it-Yourself, Plan: Fertighausanbieter
Was gefällt besonders? esstisch im Erker mit Aussicht in den Garten
Was gefällt nicht? Flur im EG ist sehr lang (?), wenig Stauraum
Preisschätzung lt Architekt/Planer: 390.000€ (KFW40+ Haus)
Persönliches Preislimit fürs Haus, inkl Ausstattung: 450.000€
favorisierte Heiztechnik: Luft-Wasser-Wärmepumpe
Warum ist der Entwurf so geworden, wie er jetzt ist?
Ideen unsererseits waren:
- offener Wohn-/Essbereich mit offener Küche
- viel Licht im Wohn-/Essbereich mit großer Schiebetür zum Garten
- Gäste-WC inkl. Dusche
- Erw. Schlafzimmer mit 3,30m Wand zum Stellen unseres Kleiderschranks, den wir gerne mitnehmen möchten.
- Betreten des Balkons vom Erw. Schlafzimmer
- Keine angrenzenden Wände von Erw. Schlafzimmer zu Kinderzimmern
- Dusche/WC Leitungen nicht in einer Wand laufend zu einem Schlafzimmer
Was ist die wichtigste/grundlegende Frage zum Grundriss in 130 Zeichen zusammengefasst?
Wir würden uns über generelle Anregungen/Ideen/Kritik zur Verbesserung des Grundrisses freuen.
Das endgültige Architektengespräch mit dem Fertighausanbieter folgt im Dezember. Die Zeit bis dahin möchten wir gerne noch sinnvoll nutzen und Ideen einbringen, falls sinnvoll.
Die Idee ist, das Haus in die nord-östliche Ecke zu setzen auf dem Grundstück mit 3m Abstand zur Grundstücksgrenze, so dass der Garten nach Südwesten verläuft. Wegen der Hanglage hat man nach Südwesten einen schönen Blick über den Ort zur Kirche. Im Westen liegt ein Pferdehof, also auch nicht direkt das nächste Haus.
Viele Grüße,
Steffi



gerade neu registriert nach monatelangem Mitlesen und schon würde ich mich über Feedback von euch freuen. Wir haben für einen Neubau eines Einfamilienhaus in Nordhessen den Vertrag unterschrieben und auch schon entsprechende Grundrisse erstellen lassen auf Grundlage unserer Ideen.
Bebauungsplan/Einschränkungen
Größe des Grundstücks: 578m²
Hang: 3m Höhenunterschied von Nord nach Süd abfallend
Grundflächenzahl: 0,4
Geschossflächenzahl: 0,8
Baufenster, Baulinie und -grenze: alles nach HBO
Geschossigkeit: 2 Vollgeschosse
Maximale mittl. Firsthöhe: 10,0m
Anforderungen der Bauherren
Stilrichtung, Dachform, Gebäudetyp: Walmdach
Keller: nein
Geschosse: 2 Vollgeschosse
Anzahl der Personen: 2 Erw. Mitte/Ende 30, 2 Kinder in "Planung"
Raumbedarf im EG: Wohnen, Essen, Küche, Arbeitszimmer, Hauswirtschaftsraum, Gäste-WC; OG: Erw. Schlafzimmer, Kind 1+2, Bad, evtl. Hobby/Abstellraum.
Büro: Nutzung durch einen Erw.
Schlafgäste pro Jahr = wenig
offene Küche: ja
Anzahl Essplätze: 6 - 8
Kamin: nein
Musik/Stereowand: nein
Balkon: ja
Carport: ja
Hausentwurf
Von wem stammt die Planung:
- Ideen Do-it-Yourself, Plan: Fertighausanbieter
Was gefällt besonders? esstisch im Erker mit Aussicht in den Garten
Was gefällt nicht? Flur im EG ist sehr lang (?), wenig Stauraum
Preisschätzung lt Architekt/Planer: 390.000€ (KFW40+ Haus)
Persönliches Preislimit fürs Haus, inkl Ausstattung: 450.000€
favorisierte Heiztechnik: Luft-Wasser-Wärmepumpe
Warum ist der Entwurf so geworden, wie er jetzt ist?
Ideen unsererseits waren:
- offener Wohn-/Essbereich mit offener Küche
- viel Licht im Wohn-/Essbereich mit großer Schiebetür zum Garten
- Gäste-WC inkl. Dusche
- Erw. Schlafzimmer mit 3,30m Wand zum Stellen unseres Kleiderschranks, den wir gerne mitnehmen möchten.
- Betreten des Balkons vom Erw. Schlafzimmer
- Keine angrenzenden Wände von Erw. Schlafzimmer zu Kinderzimmern
- Dusche/WC Leitungen nicht in einer Wand laufend zu einem Schlafzimmer
Was ist die wichtigste/grundlegende Frage zum Grundriss in 130 Zeichen zusammengefasst?
Wir würden uns über generelle Anregungen/Ideen/Kritik zur Verbesserung des Grundrisses freuen.
Das endgültige Architektengespräch mit dem Fertighausanbieter folgt im Dezember. Die Zeit bis dahin möchten wir gerne noch sinnvoll nutzen und Ideen einbringen, falls sinnvoll.
Die Idee ist, das Haus in die nord-östliche Ecke zu setzen auf dem Grundstück mit 3m Abstand zur Grundstücksgrenze, so dass der Garten nach Südwesten verläuft. Wegen der Hanglage hat man nach Südwesten einen schönen Blick über den Ort zur Kirche. Im Westen liegt ein Pferdehof, also auch nicht direkt das nächste Haus.
Viele Grüße,
Steffi
Hallo,
Steiran schrieb:Wo ist denn der in der Planung?
Hang: 3m Höhenunterschied von Nord nach Süd abfallend
Das Haus wird auf Bodenplatte gebaut. Der Rest wird dann über Stützmauern, Böschungen, Treppenstufen von der Terrasse möglichst abgemildert, so dass wir einen relativ ebenen Garten hoffen hinzubekommen.
Spielt das denn eine Rolle bezüglich der Grundrisse, um die beurteilen zu können?
Spielt das denn eine Rolle bezüglich der Grundrisse, um die beurteilen zu können?
Steiran schrieb:
Spielt das denn eine Rolle bezüglich der Grundrisse, um die beurteilen zu können?Ja, weil die Idee eventuell 1. erhebliche Kosten mit sich bringt und b. man keine Terrasse hat bzw kein ebenerdigen Zugang zur Terrasse und Garten, wenn Du das Haus entweder auf einer Seite in der Luft hängen lässt oder dort abböschst.man plant kein Bodenplattenhaus auf einem Hanggrundstück, und wenn man weiß, dass da vieles in der Luft hängt, muss man das Haus auch nicht diskutieren.
Zur Hanglage: 1m Stützmauer auf der südlichen Grundstücksgrenze, wenn der Nachbar zustimmt 1,5m. Dann eine leichte Böschung ca. 50 cm auf den ersten Metern zur südlichen Grenze. Dann hätte man zum Haus schon circa nur noch 0,5m-1m auszugleichen. Ca. 3 Stufen von der Terrasse zum Garten und es wären nur noch 0-0,5m. Die könnten wir gut und gerne "stehen lassen" und hätten nur noch ein leichtes Gefälle, selbst wenn die Stützmauer "nur" 1m hoch sein darf, falls der Nachbar nicht zustimmen sollte.
@kbt09 : Ist als Podesttreppe gedacht. Wieso zu geringe Stufenauftrittsbreite? Da der Entwurf von einem Architekten der Firma erstellt wurde und es eine große Fertighausfirma ist, sind wir erstmal davon ausgegangen, dass der weiß, was er da an Treppen einzeichnet und das ein Standardmaß der Firma ist.
@kbt09 : Ist als Podesttreppe gedacht. Wieso zu geringe Stufenauftrittsbreite? Da der Entwurf von einem Architekten der Firma erstellt wurde und es eine große Fertighausfirma ist, sind wir erstmal davon ausgegangen, dass der weiß, was er da an Treppen einzeichnet und das ein Standardmaß der Firma ist.
Ähnliche Themen