Hallo,
die ein oder anderen haben den Planungsthread evt. mitgelesen. Nachdem wir das Gäste-WC weder als Durchgangsraum in den Hauswirtschaftsraum noch einen leeren Verkehrsraum zw. Hauswirtschaftsraum & Gäste-WC setzen wollen, werden wir den Hauswirtschaftsraum klassisch über die Küche bzw. NET erreichen.
Das gibt etwsa mehr Raum für die Badplanung, nur ist nich ganz klar wie dieser verwendet werden kann. Wir hatten das Gäste-WC relativ unspektakulär und minimal als Innenbad geplant. Jetzt überlegen wir den Platz zu verwenden, um Gäste-WC als separates Kinderbad zu planen.
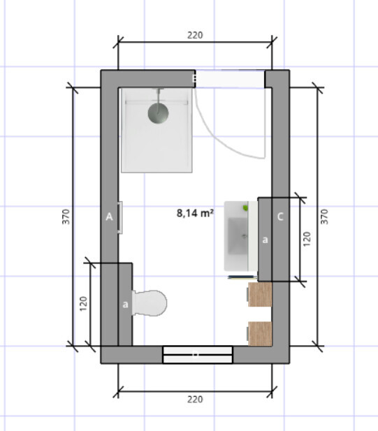
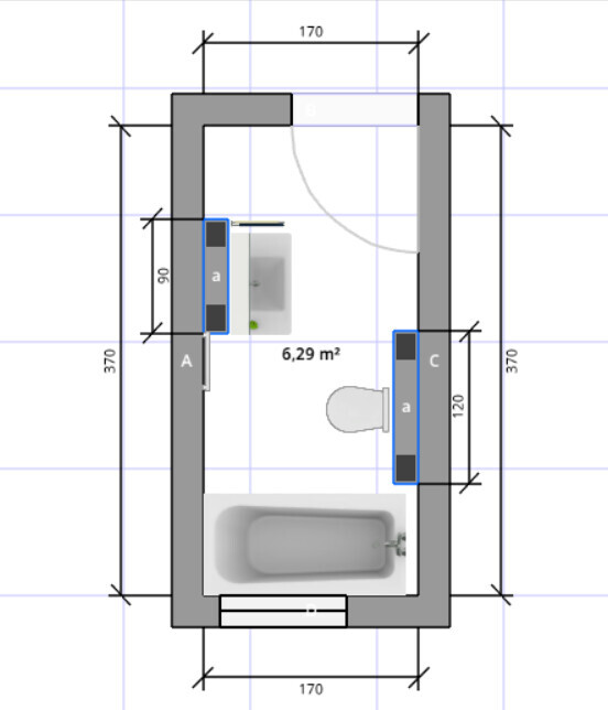
Die Rohbaumaße vom Kinderbad wären in de breite 1,70m ( so haben wir es auch aktuell in unserer Wohnung ), im Elternbad 2,20m ( hier als Vorstellung von Raumbreite kann man mit Horbachs Musterbad Samoa Vergleichen ). Beide mit 3.70m Länge.
Das Kinderbad bekommt eine Raumsparwanne "leicht schräg" spendiert, im Elternbad wird es nur eine begehbare Dusche geben.
Würde man dies so konzeptionell Umsetzen können?
Viel Glück
Mic



die ein oder anderen haben den Planungsthread evt. mitgelesen. Nachdem wir das Gäste-WC weder als Durchgangsraum in den Hauswirtschaftsraum noch einen leeren Verkehrsraum zw. Hauswirtschaftsraum & Gäste-WC setzen wollen, werden wir den Hauswirtschaftsraum klassisch über die Küche bzw. NET erreichen.
Das gibt etwsa mehr Raum für die Badplanung, nur ist nich ganz klar wie dieser verwendet werden kann. Wir hatten das Gäste-WC relativ unspektakulär und minimal als Innenbad geplant. Jetzt überlegen wir den Platz zu verwenden, um Gäste-WC als separates Kinderbad zu planen.
Die Rohbaumaße vom Kinderbad wären in de breite 1,70m ( so haben wir es auch aktuell in unserer Wohnung ), im Elternbad 2,20m ( hier als Vorstellung von Raumbreite kann man mit Horbachs Musterbad Samoa Vergleichen ). Beide mit 3.70m Länge.
Das Kinderbad bekommt eine Raumsparwanne "leicht schräg" spendiert, im Elternbad wird es nur eine begehbare Dusche geben.
Würde man dies so konzeptionell Umsetzen können?
Viel Glück
Mic
Die Entwicklung Deines Grundrisses find ich faszinierend. Er sieht jedes Mal anders aus, aber doch irgendwie immer gleich.
Nur mal so dahin gefragt, 2 Minibäder sind besser, als ein großes? Wäre es eine Überlegung wert, den HAR etwas zu verkleinern und eines der Bäder mehr Raum zu gönnen? Eventuell sogar die Waschmaschine ins Kinderbad zu holen, damit man nicht mit der Wäsche durch alle Räume einschl. Küche hin und her rennt?
Nur mal so dahin gefragt, 2 Minibäder sind besser, als ein großes? Wäre es eine Überlegung wert, den HAR etwas zu verkleinern und eines der Bäder mehr Raum zu gönnen? Eventuell sogar die Waschmaschine ins Kinderbad zu holen, damit man nicht mit der Wäsche durch alle Räume einschl. Küche hin und her rennt?
kaho674 schrieb:
Die Entwicklung Deines Grundrisses find ich faszinierend. Er sieht jedes Mal anders aus, aber doch irgendwie immer gleich. Die Eckdaten haben sich ja nicht geändert. Alle anderen (hier) wollen gerne umbauen, ich das vorhandene optimeren. ant11 würde es charmant 'räume würfeln' nennen ^^
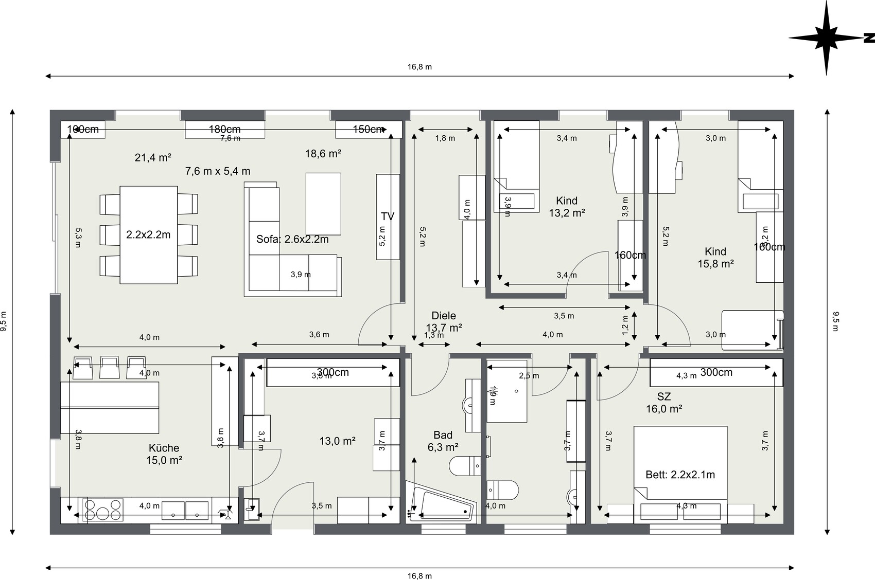
Nur mal so dahin gefragt, 2 Minibäder sind besser, als ein großes? Wäre es eine Überlegung wert, den HAR etwas zu verkleinern und eines der Bäder mehr Raum zu gönnen? Eventuell sogar die Waschmaschine ins Kinderbad zu holen, damit man nicht mit der Wäsche durch alle Räume einschl. Küche hin und her rennt?Das mit dem separaten Kinderbad kam nur daher, dass wir durch den geänderten Hauswirtschaftsraum Eingang den Laufweg einsparen und eine Nische im Großen Bad hätten. ( siehe Anhang )
Deine Idee ist nicht schlecht, jedoch wüsst ich nicht, wo ich die Waschmaschine im Kinderbad platzieren könnte. Du hast da aber bestimmt schon eine Idee wie ich die kenn
Nunja, wie soll ich sagen, das Ding wird niemals ein Picasso - mir ging es lediglich darum, dem Alltag mit dem Wäscheberg irgendwie Herr zu werden. Aber ich muss gestehen, ich zweifle jetzt wieder an meinem Tipp. Wo soll man denn die Wäscheberge sammeln bis sie dran sind? Das geht glaub ich so auch nicht.
Ähnliche Themen