ᐅ Einfamilienhaus - Kernsanierung - Änderung Grundriss
Erstellt am: 16.11.19 17:41
Hallo zusammen,
meine Frau und ich planen gerade die Kernsanierung eines Einfamilienhaus, welches wir demnächst kaufen werden (Erbfall in der Familie, deshalb dieses Objekt).
Hier der Fragebogen:
Bebauungsplan/Einschränkungen
Größe des Grundstücks – 600qm
Hang – jein – Höhenunterschied 1m auf Grundstücksbreite
Grundflächenzahl - irrelevant
Geschossflächenzahl - irrelevant
Baufenster, Baulinie und -grenze - irrelevant
Randbebauung - nein
Anzahl Stellplatz – 1 bestehende Garage + 1 geplantes Carport
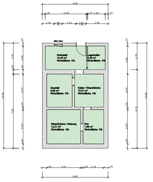
Geschossigkeit – KG + EG + DG
Dachform - Satteldach
Stilrichtung -
Ausrichtung - SSW
Maximale Höhen/Begrenzungen
weitere Vorgaben -
Anforderungen der Bauherren
Stilrichtung, Dachform, Gebäudetyp – Einfamilienhaus, Massivbauweise, Satteldach, Bj. 1938
Keller, Geschosse – vollunterkellert + EG (inkl. 1 Anbau auf Kriechkeller) + OG
Anzahl der Personen, Alter + 2 Erwachsene + geplante 1-2 Kinder
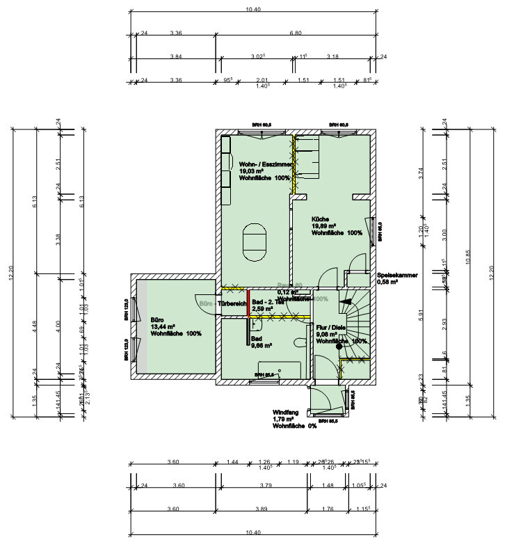
Raumbedarf im EG, OG
Büro: Familiennutzung oder Homeoffice? – Familiennutzung evtl. später Homeoffice
Schlafgäste pro Jahr - 5
offene oder geschlossene Architektur - gemischt
konservativ oder moderne Bauweise
offene Küche, Kochinsel - nein
Anzahl Essplätze - 8
Kamin – nur als Option, Bestandskamin jedoch nicht nutzbar
Musik/Stereowand - ja
Balkon, Dachterrasse – Terrasse bzw. Abgang zu Garten und Terrasse dort
Garage, Carport – 1 + 1
Nutzgarten, Treibhaus – Schuppen vorhanden für Gartengeräte etc.
weitere Wünsche/Besonderheiten/Tagesablauf, gern auch Begründungen, warum dieses oder das nicht sein soll
Hausentwurf
Von wem stammt die Planung: - DIY
Was gefällt besonders? Warum? – Badgröße – Original war für unseren Geschmack zu klein
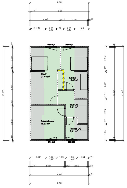
Was gefällt nicht? Warum? – Zimmer Kind 1/2 im OG sind zu schlauchartig
Preisschätzung lt Architekt/Planer: 180k für Kernsanierung
Persönliches Preislimit fürs Haus, inkl Ausstattung:
favorisierte Heiztechnik: Gas + Solar für WW+Heizung
Wenn Ihr verzichten müsst, auf welche Details/Ausbauten
-könnt Ihr verzichten:
-könnt Ihr nicht verzichten:
Was ist die wichtigste/grundlegende Frage zum Grundriss in 130 Zeichen zusammengefasst?
Wie kann das EG so gestaltet werden, dass es möglichst offen ist und Couch + Wohnwand Platz finden? Wie kann das OG ansprechender gestaltet werden?
Vielen Dank vorab für all Euren Input!



meine Frau und ich planen gerade die Kernsanierung eines Einfamilienhaus, welches wir demnächst kaufen werden (Erbfall in der Familie, deshalb dieses Objekt).
Hier der Fragebogen:
Bebauungsplan/Einschränkungen
Größe des Grundstücks – 600qm
Hang – jein – Höhenunterschied 1m auf Grundstücksbreite
Grundflächenzahl - irrelevant
Geschossflächenzahl - irrelevant
Baufenster, Baulinie und -grenze - irrelevant
Randbebauung - nein
Anzahl Stellplatz – 1 bestehende Garage + 1 geplantes Carport
Geschossigkeit – KG + EG + DG
Dachform - Satteldach
Stilrichtung -
Ausrichtung - SSW
Maximale Höhen/Begrenzungen
weitere Vorgaben -
Anforderungen der Bauherren
Stilrichtung, Dachform, Gebäudetyp – Einfamilienhaus, Massivbauweise, Satteldach, Bj. 1938
Keller, Geschosse – vollunterkellert + EG (inkl. 1 Anbau auf Kriechkeller) + OG
Anzahl der Personen, Alter + 2 Erwachsene + geplante 1-2 Kinder
Raumbedarf im EG, OG
Büro: Familiennutzung oder Homeoffice? – Familiennutzung evtl. später Homeoffice
Schlafgäste pro Jahr - 5
offene oder geschlossene Architektur - gemischt
konservativ oder moderne Bauweise
offene Küche, Kochinsel - nein
Anzahl Essplätze - 8
Kamin – nur als Option, Bestandskamin jedoch nicht nutzbar
Musik/Stereowand - ja
Balkon, Dachterrasse – Terrasse bzw. Abgang zu Garten und Terrasse dort
Garage, Carport – 1 + 1
Nutzgarten, Treibhaus – Schuppen vorhanden für Gartengeräte etc.
weitere Wünsche/Besonderheiten/Tagesablauf, gern auch Begründungen, warum dieses oder das nicht sein soll
Hausentwurf
Von wem stammt die Planung: - DIY
Was gefällt besonders? Warum? – Badgröße – Original war für unseren Geschmack zu klein
Was gefällt nicht? Warum? – Zimmer Kind 1/2 im OG sind zu schlauchartig
Preisschätzung lt Architekt/Planer: 180k für Kernsanierung
Persönliches Preislimit fürs Haus, inkl Ausstattung:
favorisierte Heiztechnik: Gas + Solar für WW+Heizung
Wenn Ihr verzichten müsst, auf welche Details/Ausbauten
-könnt Ihr verzichten:
-könnt Ihr nicht verzichten:
Was ist die wichtigste/grundlegende Frage zum Grundriss in 130 Zeichen zusammengefasst?
Wie kann das EG so gestaltet werden, dass es möglichst offen ist und Couch + Wohnwand Platz finden? Wie kann das OG ansprechender gestaltet werden?
Vielen Dank vorab für all Euren Input!
Bombadil schrieb:
Grundflächenzahl - irrelevant
Geschossflächenzahl - irrelevantGrundflächenzahl irrelevant wenn nicht angebaut wird,Geschossflächenzahl irrelevant wenn nicht aufgestockt oder sonstwie das Dach angehoben wird.
https://www.instagram.com/11antgmxde/
https://www.linkedin.com/company/bauen-jetzt/
Bombadil schrieb:
Grundriss im EG und im OG nicht wirklich und hätten dazu gerne Ideen, ob oder wie man da mehr herausholen kann.
Grundsätzlich gerne, hilfreich sind korrekte Pläne:
Bombadil schrieb:
Bj. 1938
Die Wandstärken passen nicht mit dem Baujahr zusammen.
https://www.instagram.com/11antgmxde/
https://www.linkedin.com/company/bauen-jetzt/
Das aktuelle Ziegelformat paßt zu 1957, aber nicht zu 1938.
https://www.instagram.com/11antgmxde/
https://www.linkedin.com/company/bauen-jetzt/
https://www.instagram.com/11antgmxde/
https://www.linkedin.com/company/bauen-jetzt/
Ähnliche Themen