Einfamilienhaus Grundstück gekauft Meinung zu Architekten Zeichnung

4,40 Stern(e) 5 Votes
Zuletzt aktualisiert 23.11.2025
Sie befinden sich auf der Seite 12 der Diskussion zum Thema: Einfamilienhaus Grundstück gekauft Meinung zu Architekten Zeichnung
>> Zum 1. Beitrag <<

M

maleba89

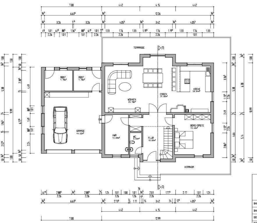
Anbei mal die neuen Grundrisse. EG gefällt uns jetzt eigentlich sehr gut.

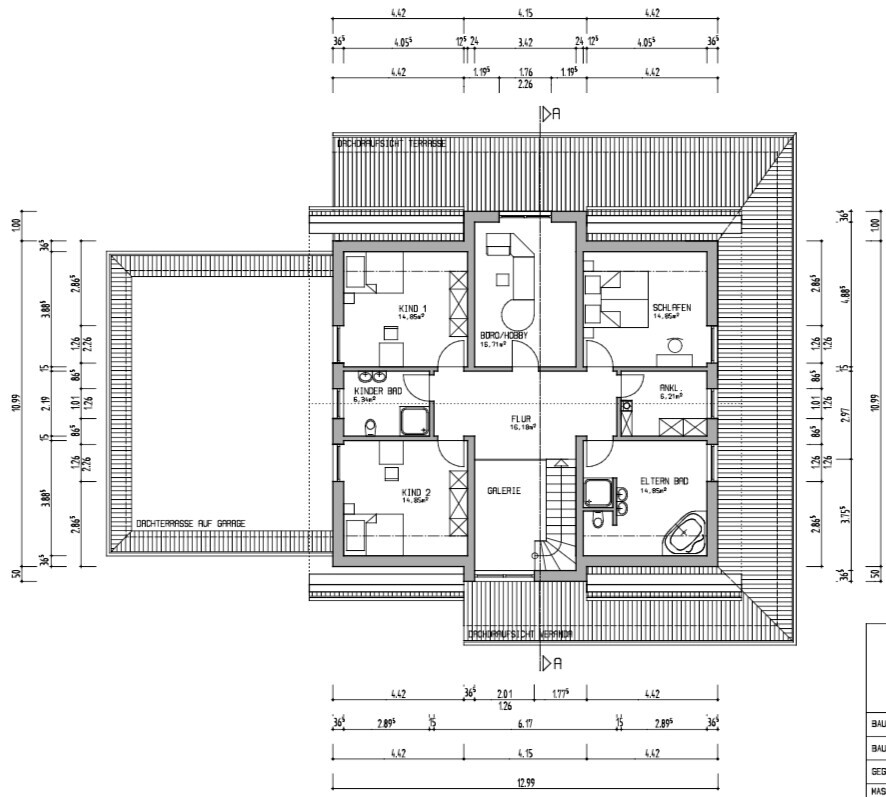
OG gefällt uns auch ausser der Bereich Elternschlafzimmer Ankleide Bad da soll die Wand im Flur gerade runter gehen und den Bereich als ganzes vom Flur trennen. Kind 2 überlegen wir noch mit Büro zu tauschen.

Über der Haustür soll eine Spitzhaue sein und entweder über Elternschlafzimmer und Kind 1 jeweils eine Gaube oder nur über dem Büro eine Gaube.
Oder als letzte Option eine lange Gaube über alle drei Zimmer um somit von jedem Zimmer ein Fenster Richtung Garten zu haben.

Der Hauswirtschaftsraum wird so gebaut, dass man auch später unten eine Dusche erweitern könnte.

Die Einrichtung im Wohn Essbereich ist auch noch nicht korrekt an die Küchentheke sollen keine Stühle und der Tisch ist 90 Grad gedreht.

Grundrissplan eines Hauses mit Garage, Wohnbereich, Küche und Terrasse


Grundriss Dachgeschoss mit Schlafzimmer, Kinderzimmer 1 und 2, Galerie, Flur, Bad, Ankleide, Terrasse
 
M

matte

Ich würde die Wand im OG vom Flur zur Ankleide weiter nach Links schieben, damit man Von der Ankleide aus ins Schlafzimmer und Bad geht.
Den Kamin könnte man mitschieben, wenn ich das im EG richtig sehe.
So ist die Ankleide kaum nutzbar.

Im Elternbad würde mich die Dusche und der Nassbereich davor direkt am Eingang stören.

Die Küche ist riesig und bietet Platz für eine besondere Lösung, die klassische U-Form mit ner Theke finde ich hier unpassend.

Die 2 Separaten Abstellräume bei der Garage verstehe ich nicht so recht, wozu soll das sein?
 
M

maleba89

der eine Raum in der Garage, welcher von außen begehbar ist soll für Rasenmäher Gartengeräte etc sein. Der andere als Durchgangsraum mit Werkbank etc.

Die Garageninnenwände werden Leichtbau, da wir da noch schauen wollen wie es am besten passt.
 
Climbee

Climbee

Ich bin ja ein Fan von einer Feuerstelle und jammer ja immer ein bisserl rum, daß ich keine gekriegt habe, aber da wo der Kamin jetzt ist, finde ich ihn relativ nutzlos. In küchennähe braucht man keine Feuerstelle, die es einem beim Kochen noch extra einheizt und auch beim Esstisch muß ich das nicht haben.

Ich würde überlegen, ob ich den nicht in den Wohnbereich verlegen kann und der Kamin läuft dann halt durch das Kinderbad.
 
P

pagoni2020

Der Erker im Esszimmer sollte mMn schon so sein, dass der Esstisch dort exakt vermittelt genutzt werden kann; so siehts weniger gut aus. Selbst wenn aus mir unverständlichen Gründen an der Theke keine Stühle sein werden wird dann dort doch Jemand stehen/lehnen. Wie auch immer sollte der Esstisch wirklich frei stehen und Platz haben. Ich tu mich schwer mir nem Erker, hier besonders. Wenn er breit genug wäre, dass darin quasi der Essplatz "verschwinden könnte, aber so steht er an der Ecke und wird auch nach dem Drehen keinen komfortablen Platz haben, befürchte ich. Also entweder etwas breiter oder ganz weg bzw. wie schon gfesagt, die Küche kleiner bzw. nicht so tief.
Einen passenden Platz für einen Kamin sehe ich bei dieser Möblierung gar nicht, evlt. wenn das WZ tiefer wäre an der Erkerseite, also dann als "Raumteiler" zw. WZ und Esszimmer.
Ich finde auch, dass Fensterflächen fehlen; aus dem Flur kommt kaum Licht.
Eingang Büro/Gast würd eich versuchen 60cm als Schrankstellfläche zu erhalten, damit man optisch nicht gg. die Schrankseite läuft.
Ich würde die Wand im OG vom Flur zur Ankleide weiter nach Links schieben, damit man Von der Ankleide aus ins Schlafzimmer und Bad geht.
sehe ich genauso, hier ist es ein kleines Räumlein und eine unnötige Tür mehr. Man geht in diese Ankeide rein und steht dann in dem kleinen abgeschlossenen Raum; auf mich wirkt das eher wie ein Abstellraum und die Tür nimmt weitere Stellmöglichkeit.
Bad OG wirkt bislang lieblos aber da kommen bestimmt noch Ideen hier oder Du machst dafür nen eigenen Thread auf. Dusche steht wirklich direkt vor der Nase im Moment.

Die Dachterrasse ist riesig und ist ja nur vom Kinderbereich zugänglich. Damit dies nicht nur eine riesige Fläche wird muss dort etwas geschehen, damit es nicht unschön aussieht und auch als wirkliche, also schöne, Dachterrasse nutzbar wird. zu viel Fläche kann da auch ein Nachteil sein, dann wirkt es eben wie ein begehbares Garagendach und nicht wie eine Dachterrasse.
 
Zuletzt aktualisiert 23.11.2025
Im Forum Grundrissplanung / Grundstücksplanung gibt es 2535 Themen mit insgesamt 87992 Beiträgen


Ähnliche Themen zu Einfamilienhaus Grundstück gekauft Meinung zu Architekten Zeichnung
Nr.ErgebnisBeiträge
1Grundrissplanung: Flur im EG breit genug? - Seite 357
2Grundriss Stadtvilla 160 qm, ohne Keller - Eure Meinungen dazu? - Seite 24167
3Fliesen oder Vinyl in Küche und Flur 19
4Esstisch in einer kleinen Küche 49
5Haus mit Dachterrasse in Passau - Seite 671
6Grundrissplanung: Badezimmer Dusche 47
7Wohnen/Essen/Küche: Wie wohnt ihr oder werdet ihr wohnen? - Seite 852
8Grundriss Zugang von Küche in Speis / Abstellraum - Seite 329
9Grundriss: Offenes Wohnzimmer inkl. Kamin - Feedback 11
10Einfamilienhaus mit seitlichem Eingang -Grundrissdiskussion? 17
11Eingang Grundriss welche Treppenvariante - Seite 231
12Grundriss Bungalow 150qm geschlossene Küche, überdachte Terrasse 40
13Treppe "ragt" in Flur hinein: Problematisch? 12
14Nur Gaube erlaubt, Lösungen? - Seite 282
15Durchbruch Bad und Ankleide ohne Türe? 12
16Beleuchtung in Diele und Küche: Deckeneinbau-Strahler benötigt? - Seite 219
17Grundriss Einfamilienhaus - Problemfall Küche 20
18Kücheninsel und Esstisch - Welchen Grundriss wählen? 21
19Türanschlag zum Wohn/-Essbereich und Beleuchtung Küche 13
20Einteilung Grundriss Allraum Küche Wohnen Essen - Seite 358

Oben