ᐅ Einfamilienhaus Grundriss vor Genehmigung: Bitte um Meinungen
Erstellt am: 20.04.16 17:36
B
blumingerB
bluminger20.04.16 17:36Hallo.
Wir sind eine kleine Familie mit 2 jährigem Kind und weiterem Baby im Bauch. Grundstück konnten wir bereits erwerben und haben nun einen Grundriss geplant, der jetzt zur Genehmigung soll.
Vorher würde es uns freuen, noch einige Meinungen dazu zu hören.
Wir wollen ein Haus, das uns auch noch genug Platz bietet, falls wir ein 3. Kind bekommen sollten.
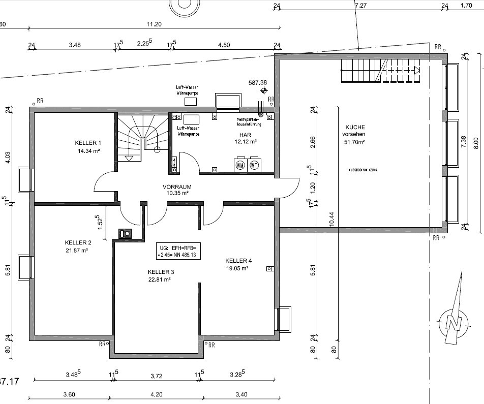
Im Keller würden wir später gerne auch eine Sauna einrichten. Um platzmäßig gut gerüstet zu sein, haben wir uns entschlossen, die Garage zu unterkellern (wenig versiegelte Fläche) und oben darauf noch ein schönes Zimmer zu machen. Garten ist uns sehr wichtig, weshalb uns ein späterer Anbau ob der dann zusätzlich überbauten Fläche schmerzen würde.
Bebauungsplan/Einschränkungen: Traufhöhe 3,80m
Größe des Grundstücks: 700qm
Hang: nein
Geschossigkeit: 2 Vollgeschosse
Dachform: Satteldach
Ausrichtung: Straße im Süden
Anforderungen der Bauherren
Stilrichtung, Dachform, Gebäudetyp: Landhaus mit mittigem Erker im Süden
Keller, Geschosse: Unterkellert, Wohnen EG, Schlafen DG
Anzahl der Personen, Alter: Familie mit derzeit 2 Kleinkindern/Baby
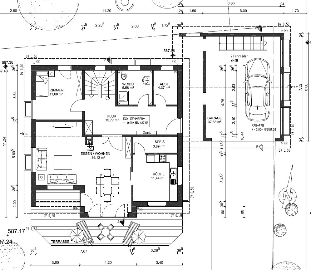
Raumbedarf im EG: Neben Wohnbereich ein weiteres Zimmer + Klo mit Dusche
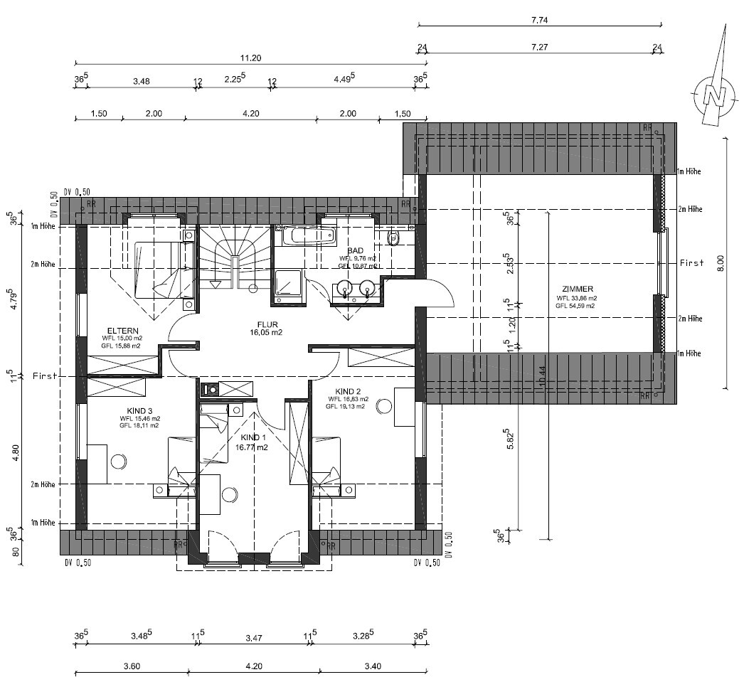
Raumbedarf im OG: Elternschlafzimmer, 2 Kinderzimmer, 1 Gästezimmer (evtl. für 3 Kind)
Büro: Homeoffice
offene oder geschlossene Architektur: Küche nicht total offen
konservativ oder moderne Bauweise: Hmm?
offene Küche, Kochinsel: keine Kochinsel
Anzahl Essplätze: mind 5
Kamin: gerne, aber eher als gemütliche Hobbyheizung
Musik/Stereowand: TV Wand
Balkon, Dachterrasse: überdachter Balkon
Garage, Carport: Doppelgarage
Nutzgarten, Treibhaus: Garten soll nicht mit Anbau oder Werkzeugschuppen besetzt werden
weitere Wünsche/Besonderheiten/Tagesablauf: Arbeitsküche im Keller
Hausentwurf
Von wem stammt die Planung: Architekt
Was gefällt besonders? Südräume im EG
Was gefällt nicht? Frau möchte kein Fenster im Rücken auf dem Sofa
Preisschätzung lt Architekt/Planer: 400.000
Persönliches Preislimit fürs Haus, inkl Ausstattung: 500.000
favorisierte Heiztechnik: Luft-Wasser-Wärmepumpe
Wenn Ihr verzichten müsst, auf welche Details/Ausbauten
-könnt Ihr verzichten:
-könnt Ihr nicht verzichten: Lichtes Haus, Platz in Küche
Keller:

Erdgeschoss:

Dachgeschoss:

Wir freuen uns über alle Kommentare.
Danke!
Wir sind eine kleine Familie mit 2 jährigem Kind und weiterem Baby im Bauch. Grundstück konnten wir bereits erwerben und haben nun einen Grundriss geplant, der jetzt zur Genehmigung soll.
Vorher würde es uns freuen, noch einige Meinungen dazu zu hören.
Wir wollen ein Haus, das uns auch noch genug Platz bietet, falls wir ein 3. Kind bekommen sollten.
Im Keller würden wir später gerne auch eine Sauna einrichten. Um platzmäßig gut gerüstet zu sein, haben wir uns entschlossen, die Garage zu unterkellern (wenig versiegelte Fläche) und oben darauf noch ein schönes Zimmer zu machen. Garten ist uns sehr wichtig, weshalb uns ein späterer Anbau ob der dann zusätzlich überbauten Fläche schmerzen würde.
Bebauungsplan/Einschränkungen: Traufhöhe 3,80m
Größe des Grundstücks: 700qm
Hang: nein
Geschossigkeit: 2 Vollgeschosse
Dachform: Satteldach
Ausrichtung: Straße im Süden
Anforderungen der Bauherren
Stilrichtung, Dachform, Gebäudetyp: Landhaus mit mittigem Erker im Süden
Keller, Geschosse: Unterkellert, Wohnen EG, Schlafen DG
Anzahl der Personen, Alter: Familie mit derzeit 2 Kleinkindern/Baby
Raumbedarf im EG: Neben Wohnbereich ein weiteres Zimmer + Klo mit Dusche
Raumbedarf im OG: Elternschlafzimmer, 2 Kinderzimmer, 1 Gästezimmer (evtl. für 3 Kind)
Büro: Homeoffice
offene oder geschlossene Architektur: Küche nicht total offen
konservativ oder moderne Bauweise: Hmm?
offene Küche, Kochinsel: keine Kochinsel
Anzahl Essplätze: mind 5
Kamin: gerne, aber eher als gemütliche Hobbyheizung
Musik/Stereowand: TV Wand
Balkon, Dachterrasse: überdachter Balkon
Garage, Carport: Doppelgarage
Nutzgarten, Treibhaus: Garten soll nicht mit Anbau oder Werkzeugschuppen besetzt werden
weitere Wünsche/Besonderheiten/Tagesablauf: Arbeitsküche im Keller
Hausentwurf
Von wem stammt die Planung: Architekt
Was gefällt besonders? Südräume im EG
Was gefällt nicht? Frau möchte kein Fenster im Rücken auf dem Sofa
Preisschätzung lt Architekt/Planer: 400.000
Persönliches Preislimit fürs Haus, inkl Ausstattung: 500.000
favorisierte Heiztechnik: Luft-Wasser-Wärmepumpe
Wenn Ihr verzichten müsst, auf welche Details/Ausbauten
-könnt Ihr verzichten:
-könnt Ihr nicht verzichten: Lichtes Haus, Platz in Küche
Keller:
Erdgeschoss:
Dachgeschoss:
Wir freuen uns über alle Kommentare.
Danke!
WC im OG-Bad .. .wie groß seid ihr, dass das WC hinter der 2m-Linie liegt? Auch die Dusche .. da weiß ich nicht, ob die so ideal ist.
Küche .. reicht euch das L als Küche wie eingezeichnet? Durch die Raumaufteilung wird viel mehr nicht möglich sein, d. h. fast 12 qm mit eher Minimal-Küche. Warum dort keinen Terrassenzugang? Denn der Terrassenzugang aus dem Essbereich wird bei Einsatz eines vernünftig großen Esstisches (also größer als eingezeichnet) zum Slalomlauf.
Speisekammertiefe von 118 cm .. da kann an der planoberen Wand nicht mal ein TK-schrank oder so stehen, weil die Tür dann nicht voll aufgeht.
Elternschlafzimmer ... im Entengang zur planoberen Betthälfte ... oder wie? Ah, nicht ganz, da ist eine Gaube ... aber Übergang Normalraum zu Gaube, das soll klappen? Und dann für 2 Personen nur gut 200 cm Kleiderschrank?
Welches Steigungsmaß wird die Treppe haben?
Was soll das für ein Raum unter der Garage werden? Küche vorsehen?
Küche .. reicht euch das L als Küche wie eingezeichnet? Durch die Raumaufteilung wird viel mehr nicht möglich sein, d. h. fast 12 qm mit eher Minimal-Küche. Warum dort keinen Terrassenzugang? Denn der Terrassenzugang aus dem Essbereich wird bei Einsatz eines vernünftig großen Esstisches (also größer als eingezeichnet) zum Slalomlauf.
Speisekammertiefe von 118 cm .. da kann an der planoberen Wand nicht mal ein TK-schrank oder so stehen, weil die Tür dann nicht voll aufgeht.
Elternschlafzimmer ... im Entengang zur planoberen Betthälfte ... oder wie? Ah, nicht ganz, da ist eine Gaube ... aber Übergang Normalraum zu Gaube, das soll klappen? Und dann für 2 Personen nur gut 200 cm Kleiderschrank?
Welches Steigungsmaß wird die Treppe haben?
Was soll das für ein Raum unter der Garage werden? Küche vorsehen?
B
bluminger20.04.16 22:53Hallo kbt09,
vielen Dank für Deine Antwort.
OG-Bad: Wo würde man das WC besser platzieren? (Wir sind durchschnittlich bis groß). Wäre der Zugang zur Dusche auch zu eng wegen der Dachschräge? Gut wäre in dem Badezimmer noch ein Wickeltisch und ein Schrank. Ist ein akzeptables Badezimmer in dem Raum möglich oder ist der Raum und damit die Raum-Aufteilung um OG eher ungünstig?
Eltern-Schlafzimmer: das ist richtig, dass uns ein 2m Schrank zu zweit nicht reicht. Wir wissen noch nicht wirklich eine Lösung. Vielleicht kann man noch einen Schrank am der Westwand platzieren oder zumindest Kommoden. Oder sollten wir lieber alles umplanen und auf das eine Kinderzimmer verzichten?
Küche: Architekt hatte Zugang zur Terrasse über die Küche geplant, aber uns war es wichtiger, dass das L der Arbeitsfläche an der Ost- und an der Südwand verläuft, d.h. die Küche ist so falsch eingezeichnet. Möglicherweise kann Arbeitsfläche oder Schränke auch noch an der Nordwand weitergehen. Der Zugang zur Speise soll über eine Schiebetür erfolgen. In der Speise soll es keine Gefriertruhe und keinen Kühlschrank geben. Dort sollen lediglich nicht zu kühlende Lebensmittel und Getränke gelagert werden. Ein erstes Gespräch zur Küchenplanung haben wir am Wochenende. Es ist durchaus auch noch möglich, die Speise zu streichen. Wir dachten eigentlich, dass die Größe der Küche so schon recht großzügig ist. Ist das nicht so? Sollte sie größer sein?
Esszimmer: Zugang zur Terrasse: wenn das so zu eng ist, dann vielleicht eher über das Wohnzimmer? Es wäre uns eher unangenehm, dir Arbeitsfläche in der Küche nicht Richtung Osten und Süden zu haben. Unser Esstisch ist ca 90cm breit. Reicht der Platz, um dort vorbeizukommen, oder ist das dann zu eng?
Wohnzimmer: Leider sind wir uns noch nicht einig, wie dort die Möbel stehen sollen. Frau möchte das Sofa eher an der West und Nordseite, wobei an der Nordwand auch ruhig noch ein Schrank oder Regal stehen darf. Der Fernseher könnte dann zwischen Esszimmer und Wohnzimmer vor einem Regal stehen. Vorstellbar wären im Wohnzimmer auch Terrassentüren. Mann möchte die Wohnzimmer Möbel so wie eingezeichnet, um auf die Nordwand beamen zu können und einen großen, offenen Raum zu haben.
Steigung der Treppe: den Querschnitt reichen wir morgen nach.
Zimmer unter der Garage: das soll noch in zwei Zimmer aufgeteilt werden. In eins davon soll eine Küche für ein Hobby kommen.
vielen Dank für Deine Antwort.
OG-Bad: Wo würde man das WC besser platzieren? (Wir sind durchschnittlich bis groß). Wäre der Zugang zur Dusche auch zu eng wegen der Dachschräge? Gut wäre in dem Badezimmer noch ein Wickeltisch und ein Schrank. Ist ein akzeptables Badezimmer in dem Raum möglich oder ist der Raum und damit die Raum-Aufteilung um OG eher ungünstig?
Eltern-Schlafzimmer: das ist richtig, dass uns ein 2m Schrank zu zweit nicht reicht. Wir wissen noch nicht wirklich eine Lösung. Vielleicht kann man noch einen Schrank am der Westwand platzieren oder zumindest Kommoden. Oder sollten wir lieber alles umplanen und auf das eine Kinderzimmer verzichten?
Küche: Architekt hatte Zugang zur Terrasse über die Küche geplant, aber uns war es wichtiger, dass das L der Arbeitsfläche an der Ost- und an der Südwand verläuft, d.h. die Küche ist so falsch eingezeichnet. Möglicherweise kann Arbeitsfläche oder Schränke auch noch an der Nordwand weitergehen. Der Zugang zur Speise soll über eine Schiebetür erfolgen. In der Speise soll es keine Gefriertruhe und keinen Kühlschrank geben. Dort sollen lediglich nicht zu kühlende Lebensmittel und Getränke gelagert werden. Ein erstes Gespräch zur Küchenplanung haben wir am Wochenende. Es ist durchaus auch noch möglich, die Speise zu streichen. Wir dachten eigentlich, dass die Größe der Küche so schon recht großzügig ist. Ist das nicht so? Sollte sie größer sein?
Esszimmer: Zugang zur Terrasse: wenn das so zu eng ist, dann vielleicht eher über das Wohnzimmer? Es wäre uns eher unangenehm, dir Arbeitsfläche in der Küche nicht Richtung Osten und Süden zu haben. Unser Esstisch ist ca 90cm breit. Reicht der Platz, um dort vorbeizukommen, oder ist das dann zu eng?
Wohnzimmer: Leider sind wir uns noch nicht einig, wie dort die Möbel stehen sollen. Frau möchte das Sofa eher an der West und Nordseite, wobei an der Nordwand auch ruhig noch ein Schrank oder Regal stehen darf. Der Fernseher könnte dann zwischen Esszimmer und Wohnzimmer vor einem Regal stehen. Vorstellbar wären im Wohnzimmer auch Terrassentüren. Mann möchte die Wohnzimmer Möbel so wie eingezeichnet, um auf die Nordwand beamen zu können und einen großen, offenen Raum zu haben.
Steigung der Treppe: den Querschnitt reichen wir morgen nach.
Zimmer unter der Garage: das soll noch in zwei Zimmer aufgeteilt werden. In eins davon soll eine Küche für ein Hobby kommen.
Wozu braucht ihr im EG eine Speisekammer UND Abstellkammer?
Noch dazu, wo ihr einen Keller habt. Ich würde die Speisekammer raus werfen und an die Nördliche Wand der Küche eine Tür zum Flur machen. Die Küche bekommt dann eine gute Größe und außerdem fällt dann auch der Slalom-Lauf mit den Einkäufen durchs Wohn/Esszimmer weg.
Gleichzeitig würde ich die Wand zwischen Gästebad und Abstellkammer bisschen nach Planlinks verschieben. 6,58m² für ein Duschbad ist schon recht ordentlich, wenn es aber nur 5 hat, stört es auch nicht, die Abstellkammer wird dadurch aber gleich viel besser nutzbar.
Der Abstand von Couch zu TV ist mit fast 6 Metern ziemlich groß. Was für eine TV-Größe habt/wollt ihr? Ist natürlich Geschmackssache, aber wenn der Abstand bisschen kleiner wird, gewinnt das andere Zimmer mit seinen 11m² bisschen Fläche dazu, was ihm nicht schaden würde.
Noch dazu, wo ihr einen Keller habt. Ich würde die Speisekammer raus werfen und an die Nördliche Wand der Küche eine Tür zum Flur machen. Die Küche bekommt dann eine gute Größe und außerdem fällt dann auch der Slalom-Lauf mit den Einkäufen durchs Wohn/Esszimmer weg.
Gleichzeitig würde ich die Wand zwischen Gästebad und Abstellkammer bisschen nach Planlinks verschieben. 6,58m² für ein Duschbad ist schon recht ordentlich, wenn es aber nur 5 hat, stört es auch nicht, die Abstellkammer wird dadurch aber gleich viel besser nutzbar.
Der Abstand von Couch zu TV ist mit fast 6 Metern ziemlich groß. Was für eine TV-Größe habt/wollt ihr? Ist natürlich Geschmackssache, aber wenn der Abstand bisschen kleiner wird, gewinnt das andere Zimmer mit seinen 11m² bisschen Fläche dazu, was ihm nicht schaden würde.
Ich sehe da die gleichen Probleme wie die Schreiber vor mir. In Schlafzimmer und Bad bekommt ihr mit der 2m-Linie Probleme.
Ebenso Wohnzimmer - genau aus diesem Grund mag ich auch diese typische Aufteilung von Wohn-Essbereich bei dieser Hausvariante nicht - der Tisch steht einfach immer im Weg. Man muss ständig drumherumlaufen - egal ob man von der Küche ins Wohnzimmer möchte oder auch mal raus auf die Terrasse. Würde an der Stelle wenigstens Schiebetüren einplanen, damit die Terrassentüren nicht so weit in den Wohnbereich stehen.
Tür zum Abstellraum würde ich gegenüber dem Fenster machen, dann hättest du Platz auf beide Seiten Regale (oder Staubsauger und Co) zu stellen. Tür von Flur zur Küche würde mir auch fehlen. Und ne Terrassentür in der Küche finde ich auch nie verkehrt.
Braucht ihr wirklich diese ganzen Räume? Ich finde ihr habt sehr sehr viele Räume und dann noch unterkellerte Garage und überbaute Garage. Braucht ihr den Platz wirklich? Wie ist die Nutzung von den Kellerräumen gedacht (außer Sauna und Hauswirtschaftsraum)? Kommt da auch ein WC hin? Wenn schon Küche unter der Garage vorgesehen ist und auch eine Sauna, dann sollte da auch irgendwo noch ne Toilette hin - Platz wäre dafür ja genug da.
Das Bad im OG finde ich sehr sehr schwer einigermaßen gut einzurichten. Evtl. noch mal Gedanken über die Raumaufteilung machen.
Ebenso Wohnzimmer - genau aus diesem Grund mag ich auch diese typische Aufteilung von Wohn-Essbereich bei dieser Hausvariante nicht - der Tisch steht einfach immer im Weg. Man muss ständig drumherumlaufen - egal ob man von der Küche ins Wohnzimmer möchte oder auch mal raus auf die Terrasse. Würde an der Stelle wenigstens Schiebetüren einplanen, damit die Terrassentüren nicht so weit in den Wohnbereich stehen.
Tür zum Abstellraum würde ich gegenüber dem Fenster machen, dann hättest du Platz auf beide Seiten Regale (oder Staubsauger und Co) zu stellen. Tür von Flur zur Küche würde mir auch fehlen. Und ne Terrassentür in der Küche finde ich auch nie verkehrt.
Braucht ihr wirklich diese ganzen Räume? Ich finde ihr habt sehr sehr viele Räume und dann noch unterkellerte Garage und überbaute Garage. Braucht ihr den Platz wirklich? Wie ist die Nutzung von den Kellerräumen gedacht (außer Sauna und Hauswirtschaftsraum)? Kommt da auch ein WC hin? Wenn schon Küche unter der Garage vorgesehen ist und auch eine Sauna, dann sollte da auch irgendwo noch ne Toilette hin - Platz wäre dafür ja genug da.
Das Bad im OG finde ich sehr sehr schwer einigermaßen gut einzurichten. Evtl. noch mal Gedanken über die Raumaufteilung machen.
Ähnliche Themen