Sehe es wie die anderen, die Küche ist zu klein und zu unpraktisch mit den ganzen Türen. Außerdem würde ich mit einer "kleinen Küche [nicht] "klarkommen"" wollen, wenn ich ein Haus baue, sondern das schon passend zu machen.
Das gleiche gilt für die Dusche. Auch wenn LEDs nett sind, würde ich keine Dusche planen, die im Dunkeln steht.
Den Erker finde ich gut.
Das gleiche gilt für die Dusche. Auch wenn LEDs nett sind, würde ich keine Dusche planen, die im Dunkeln steht.
Den Erker finde ich gut.
BeHaElJa schrieb:
Ich würde trotzdem das EG noch mal umgestalten und versuchen die Kritik und eure eigenen Schmerzpunkte zu adressieren (WC ohne Dusche, ordentliche Garderobe, weniger verwinkelter Hauswirtschaftsraum, Küche mit nutzbarem Sit...)zplatzSehe ich auch so...
Wären wir zufrieden, so würde ich auch nicht um Ideen/ Meinungen fragen. Deshalb vielen Dank an euch!
Ich selber hatte einen ähnlichen Grundriss gezeichnet, jedoch ist bei mir die Küche größer / + keine Schiebetür
---------------------------
Ich bin eben irgendwie im post verrutscht und habe Deinen Anhang durch meinen ersetzt; darf natürlich nicht passieren. Entschuldige bitte !
Lade ihn bitte erneut hoch.
Danke + Grüße, Bauexperte
Bauexperte
Eine Küche ohne Tür zum Ess-/Wohnzimmer wäre für mich ein No-go, wenn kleine Kinder da oder zu erwarten sind. Wenn man kleine Kinder hat verbringt man gewisse Zeit in der Küche, braucht Sichtkontakt und auch mal schnell Zugang zur Küche vom Sofa aus...
Ich kanns aber auch nicht verstehen, warum viele vier Sitzplätze 3m neben sechs Sitzplätzen brauchen, aber das ist ein anderes Thema.
Ich kanns aber auch nicht verstehen, warum viele vier Sitzplätze 3m neben sechs Sitzplätzen brauchen, aber das ist ein anderes Thema.
B
Bauexperte16.09.15 12:04Hallo,
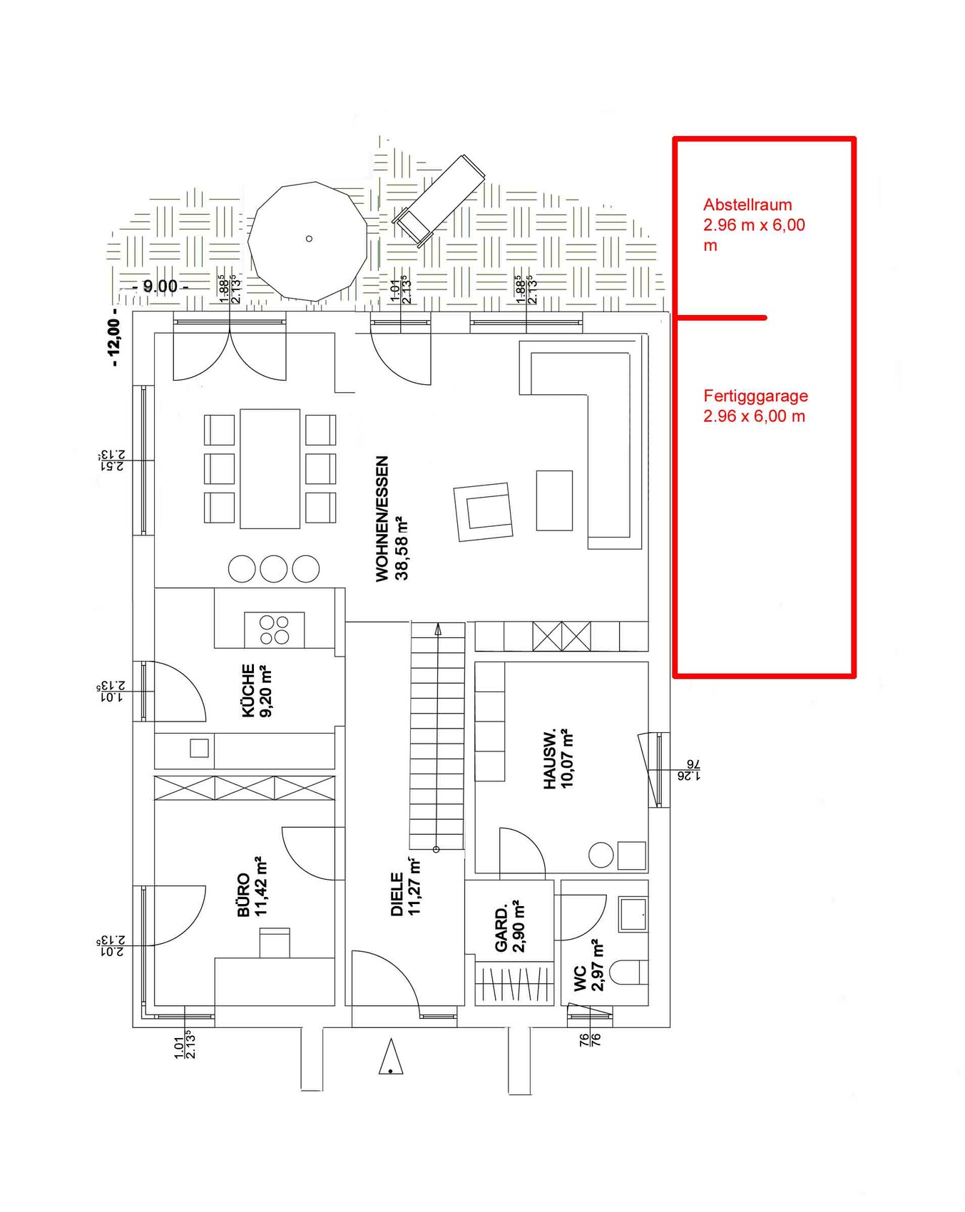
Ich habe gerade eine ähnliche Planung in Arbeit; allerdings 9.00 x 12.00 m; auch mit Nordausrichtung des Grundstückes. In der Anlage findest Du beispielhaft das EG mit vorgesetzter Eingangsüberdachung; diese ließe sich aber auch problemlos als Erker ausbilden und die dahinter liegenden Räume in selbigen einbeziehen. Gleichmäßig verteilt um 0.50 m in der Breite reduziert, sollte der Entwurf noch - ohne nennenswerte Einschränkung für die Räume - funktionieren; unter der Treppe ließe sich noch zusätzliche Abstellfläche für die Küche generieren. Im dazu gehörigen OG liegen die Kinderzimmer Richtung Westen; das Bad über dem Hauswirtschaftsraum, sogar ein Luftraum findet Platz. Westen deshalb, da die Kinder dann mehr Sonne abbekommen
Soll das Gebäude verblendet werden oder sollen die Ansichten eine Holzfassade erkennen lassen?
Grüße, Bauexperte

djon25 schrieb:Das hängt vmtl. mit den Aussagen des B-Planes zusammen. Häufig darf eine Garage das Baufenster nicht um mehr, als um 3.00 m überschreiten. So hat es Dein Planer imho auch gezeichnet; trotzdem habe ich schon bessere Entwürfe gesehen.
Leider darf die Garage nicht viel weiter nach hinten geschoben werden (hat uns der Architekt gesagt..)
Ich habe gerade eine ähnliche Planung in Arbeit; allerdings 9.00 x 12.00 m; auch mit Nordausrichtung des Grundstückes. In der Anlage findest Du beispielhaft das EG mit vorgesetzter Eingangsüberdachung; diese ließe sich aber auch problemlos als Erker ausbilden und die dahinter liegenden Räume in selbigen einbeziehen. Gleichmäßig verteilt um 0.50 m in der Breite reduziert, sollte der Entwurf noch - ohne nennenswerte Einschränkung für die Räume - funktionieren; unter der Treppe ließe sich noch zusätzliche Abstellfläche für die Küche generieren. Im dazu gehörigen OG liegen die Kinderzimmer Richtung Westen; das Bad über dem Hauswirtschaftsraum, sogar ein Luftraum findet Platz. Westen deshalb, da die Kinder dann mehr Sonne abbekommen
Soll das Gebäude verblendet werden oder sollen die Ansichten eine Holzfassade erkennen lassen?
Grüße, Bauexperte
Bauexperte schrieb:
Hallo,
Das hängt vmtl. mit den Aussagen des B-Planes zusammen. Häufig darf eine Garage das Baufenster nicht um mehr, als um 3.00 m überschreiten. So hat es Dein Planer imho auch gezeichnet; trotzdem habe ich schon bessere Entwürfe gesehen.
Ich habe gerade eine ähnliche Planung in Arbeit; allerdings 9.00 x 12.00 m; auch mit Nordausrichtung des Grundstückes. In der Anlage findest Du beispielhaft das EG mit vorgesetzter Eingangsüberdachung; diese ließe sich aber auch problemlos als Erker ausbilden und die dahinter liegenden Räume in selbigen einbeziehen. Gleichmäßig verteilt um 0.50 m in der Breite reduziert, sollte der Entwurf noch - ohne nennenswerte Einschränkung für die Räume - funktionieren; unter der Treppe ließe sich noch zusätzliche Abstellfläche für die Küche generieren. Im dazu gehörigen OG liegen die Kinderzimmer Richtung Westen; das Bad über dem Hauswirtschaftsraum, sogar ein Luftraum findet Platz. Westen deshalb, da die Kinder dann mehr Sonne abbekommen
Soll das Gebäude verblendet werden oder sollen die Ansichten eine Holzfassade erkennen lassen?
Grüße, Bauexperte Vielen Dank für den Grundriss. Gefällt mir eigentlich ganz gut. Ist rechts neben der Treppe noch ein Schrank oder ist im Wohnzimmer?
Das Haus soll teilverklinkert werden.. bzw. steht es noch nicht 100% fest
Ähnliche Themen