ᐅ Grundriss 185qm Stadtvilla Tipps
Erstellt am: 07.04.24 12:23
Z
zahni199207.04.24 12:23Hallo liebe Hausbaunutzer,
aus einem anderen Thread hat uns ein anderer Nutzer, den Tipp gegeben, unsere Hausbaupläne/Grundriss zu veröffentlichen, um eventuelle Verbesserungsvorschläge zu bekommen.
Wir sind am Anfang unserer Planungsphase und sind dabei uns für Heinz von Heiden zu entscheiden.
Zu der Größe des Hauses ist es gekommen, da wir im OG 4 Schlafzimmer und 1 Badezimmer haben wollen.
Grundsätzlich gefällt uns der Standardgrundriss. Es gibt ein paar Änderungswünsch wie z.B. ein größerer Hauswirtschaftsraum, geschlossene Küche, Dusche im Gäste-WC und ein kleineres Wohnzimmer.
Wir würden uns über Tipps und Anregungen sehr freuen.
Weiter unten nochmal eine Auflistung weiterer Informationen.
Bebauungsplan/Einschränkungen
Größe des Grundstücks: 700 m²
Hang: Nein
Grundflächenzahl: 0,4
Geschossflächenzahl:
Baufenster, Baulinie und -grenze: 3m jeweils zur äußeren Grundstücksgrenze
Randbebauung
Anzahl Stellplatz: 2
Geschossigkeit.2 Vollgeschosse möglich
Dachform: Walmdach
Stilrichtung : Stadtrichtung
Ausrichtung
Maximale Fristhöhe: 9,5m
Anforderungen der Bauherren
Gebäudetyp: Stadtvilla
Geschosse:2
Anzahl der Personen: 4(1 noch in Planung) 3 Kinderzimmer
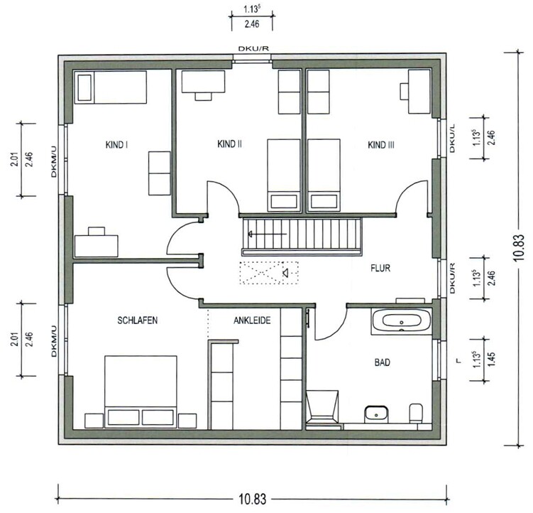
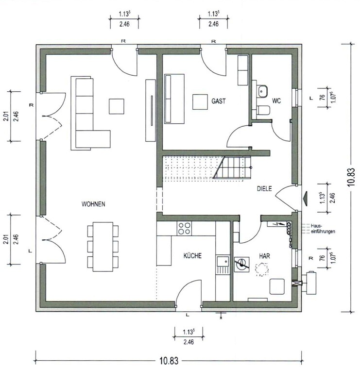
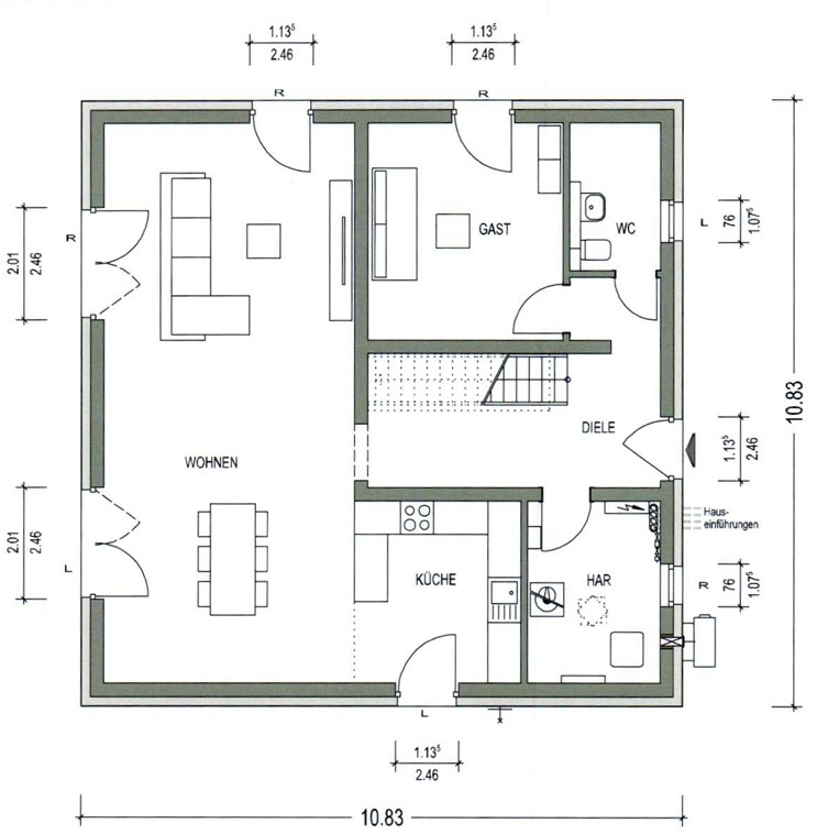
Raumbedarf im EG : Küche(geschlossen) Bad, Wohnzimmer, Arbeitszimmer, Flur ,Hauswirtschaftsraum Raumbedarf OG: 3 Kinderzimmer, 1 Schlafzimmer, 1 Ankleide, Bad, Flur
Büro: Arbeitszimmer mit Nutzung als Gästezimmer(schlafcouch)
Anzahl Essplätze
Garage: Einzelgarage mit Möglichkeit zur Nutzung als Abstellraum 4x9 m?
Hausentwurf
Von wem stammt die Planung: Heinz von Heiden
Was gefällt besonders? Warum? OG Aufteilung der Kinderzimmer, Schlafzimmer mit Ankleideraum
Was gefällt nicht? Warum?: Dusche EG fehlt, Küche offen
Preisschätzung laut Architekt/Planer: 312.000€
Persönliches Preislimit fürs Haus, inkl. Ausstattung:
favorisierte Heiztechnik: Wärmepumpe
Warum ist der Entwurf so geworden, wie er jetzt ist?
Standardentwurf vom Planer
Räume im Erdgeschoss
(Wohnflächenangaben gem. Wohnflächenverordnung)
Wohnzimmer: 45,62 m²
Küche: 9,83 m²
Gästezimmer: 13,60 m²
WC: 4,18 m²
Diele: 12,26 m²
Hausanschlussraum: 7,61 m²

Räume im Obergeschoss
(Wohnflächenangaben gem. Wohnflächenverordnung)
Schlafzimmer: 17,25 m²
Ankleidezimmer: 8,43 m²
Kinderzimmer I: 15,44 m²
Kinderzimmer II: 14,04 m²
Kinderzimmer III: 14,04 m²
Bad: 11,48 m²
Flur: 11,91 m²

Mit freundlichen Grüßen
aus einem anderen Thread hat uns ein anderer Nutzer, den Tipp gegeben, unsere Hausbaupläne/Grundriss zu veröffentlichen, um eventuelle Verbesserungsvorschläge zu bekommen.
Wir sind am Anfang unserer Planungsphase und sind dabei uns für Heinz von Heiden zu entscheiden.
Zu der Größe des Hauses ist es gekommen, da wir im OG 4 Schlafzimmer und 1 Badezimmer haben wollen.
Grundsätzlich gefällt uns der Standardgrundriss. Es gibt ein paar Änderungswünsch wie z.B. ein größerer Hauswirtschaftsraum, geschlossene Küche, Dusche im Gäste-WC und ein kleineres Wohnzimmer.
Wir würden uns über Tipps und Anregungen sehr freuen.
Weiter unten nochmal eine Auflistung weiterer Informationen.
Bebauungsplan/Einschränkungen
Größe des Grundstücks: 700 m²
Hang: Nein
Grundflächenzahl: 0,4
Geschossflächenzahl:
Baufenster, Baulinie und -grenze: 3m jeweils zur äußeren Grundstücksgrenze
Randbebauung
Anzahl Stellplatz: 2
Geschossigkeit.2 Vollgeschosse möglich
Dachform: Walmdach
Stilrichtung : Stadtrichtung
Ausrichtung
Maximale Fristhöhe: 9,5m
Anforderungen der Bauherren
Gebäudetyp: Stadtvilla
Geschosse:2
Anzahl der Personen: 4(1 noch in Planung) 3 Kinderzimmer
Raumbedarf im EG : Küche(geschlossen) Bad, Wohnzimmer, Arbeitszimmer, Flur ,Hauswirtschaftsraum Raumbedarf OG: 3 Kinderzimmer, 1 Schlafzimmer, 1 Ankleide, Bad, Flur
Büro: Arbeitszimmer mit Nutzung als Gästezimmer(schlafcouch)
Anzahl Essplätze
Garage: Einzelgarage mit Möglichkeit zur Nutzung als Abstellraum 4x9 m?
Hausentwurf
Von wem stammt die Planung: Heinz von Heiden
Was gefällt besonders? Warum? OG Aufteilung der Kinderzimmer, Schlafzimmer mit Ankleideraum
Was gefällt nicht? Warum?: Dusche EG fehlt, Küche offen
Preisschätzung laut Architekt/Planer: 312.000€
Persönliches Preislimit fürs Haus, inkl. Ausstattung:
favorisierte Heiztechnik: Wärmepumpe
Warum ist der Entwurf so geworden, wie er jetzt ist?
Standardentwurf vom Planer
Räume im Erdgeschoss
(Wohnflächenangaben gem. Wohnflächenverordnung)
Wohnzimmer: 45,62 m²
Küche: 9,83 m²
Gästezimmer: 13,60 m²
WC: 4,18 m²
Diele: 12,26 m²
Hausanschlussraum: 7,61 m²
Räume im Obergeschoss
(Wohnflächenangaben gem. Wohnflächenverordnung)
Schlafzimmer: 17,25 m²
Ankleidezimmer: 8,43 m²
Kinderzimmer I: 15,44 m²
Kinderzimmer II: 14,04 m²
Kinderzimmer III: 14,04 m²
Bad: 11,48 m²
Flur: 11,91 m²
Mit freundlichen Grüßen
B
Bertram10007.04.24 12:35Auf den ersten Blick erscheint mir vor allem das Budget echt viel zu gering. Ihr wollt ein Haus von ca 10x10, das sind dann 200 qm für 315.000?
Ansonsten finde ich die Diele zu klein für eine Familie, die Küche zu raufressend und nicht praktisch für eine Familie, das Gästeschlafzimmer schön für den Gast, aber ihr habt ja noch ein extra Kinderzimmer. Dusche im EG kann man machen indem man Gast schrumpft oder das WC unter die Treppe macht.
Ich würde lieber Küche und Esszimmer in eine Reihe planen und das Wohnzimmer etwas abgrenzen als Esszimmer und Wohn zusammen und die Küche um die Ecke.
Persönlich finde ich die gerade Treppe nicht schön und würde sie so in der Mitte des Hauses nicht wollen. Aber das ist wohl Geschmacksache. Das gleiche gilt für mich für die Ankleide: was soll daran der Vorteil sein?
Das Bad lässt sich schlecht möblieren und mit den Sanitärgegenständen ausstatten weil es mehr Fläche in der Mitte hat als sinnvolle Wandfläche. Es ist zu gross.
Insgesamt finde ich den Entwurf eine gute Möglichkeit, Geld zu versenken. Das Haus wäre mir zu gross und zu unpraktisch und zu quadratisch.
Ansonsten finde ich die Diele zu klein für eine Familie, die Küche zu raufressend und nicht praktisch für eine Familie, das Gästeschlafzimmer schön für den Gast, aber ihr habt ja noch ein extra Kinderzimmer. Dusche im EG kann man machen indem man Gast schrumpft oder das WC unter die Treppe macht.
Ich würde lieber Küche und Esszimmer in eine Reihe planen und das Wohnzimmer etwas abgrenzen als Esszimmer und Wohn zusammen und die Küche um die Ecke.
Persönlich finde ich die gerade Treppe nicht schön und würde sie so in der Mitte des Hauses nicht wollen. Aber das ist wohl Geschmacksache. Das gleiche gilt für mich für die Ankleide: was soll daran der Vorteil sein?
Das Bad lässt sich schlecht möblieren und mit den Sanitärgegenständen ausstatten weil es mehr Fläche in der Mitte hat als sinnvolle Wandfläche. Es ist zu gross.
Insgesamt finde ich den Entwurf eine gute Möglichkeit, Geld zu versenken. Das Haus wäre mir zu gross und zu unpraktisch und zu quadratisch.
O
Odyssee7707.04.24 12:45zahni1992 schrieb:
Preisschätzung laut Architekt/Planer: 312.000€Bei 185 qm? Never ever. Auch bei Heinz von Heiden nicht.
Es fehlt leider Grundstücksplan und Einordnung des Hauses auf dem Grundstück.
Und es fehlen ein paar Einzelmaße. Die Treppe sieht recht kurz aus.
Preis sehe ich wie meine Vorschreiber ... völlig unrealistisch bzw. unklar welcher Ablieferungszustand dann herrscht.
Schlafzimmer-Zugang würde ich über Ankleide legen .. dann kann das Schlafzimmer vielleicht auch etwas kleiner. Aber, wie gesagt, hier fehlen konkrete Maße. Bei 5 Personen würde ich auch immer versuchen im OG die Waschmaschine unterzubringen, möglichst nicht im Bad, also eher einen kleinen Hauswirtschaftsraum auch für Staubsauger etc.
Türen sollten nicht direkt in Raumecken platziert werden, wie z. B. bei Kind 3.
Und es fehlen ein paar Einzelmaße. Die Treppe sieht recht kurz aus.
Preis sehe ich wie meine Vorschreiber ... völlig unrealistisch bzw. unklar welcher Ablieferungszustand dann herrscht.
Schlafzimmer-Zugang würde ich über Ankleide legen .. dann kann das Schlafzimmer vielleicht auch etwas kleiner. Aber, wie gesagt, hier fehlen konkrete Maße. Bei 5 Personen würde ich auch immer versuchen im OG die Waschmaschine unterzubringen, möglichst nicht im Bad, also eher einen kleinen Hauswirtschaftsraum auch für Staubsauger etc.
Türen sollten nicht direkt in Raumecken platziert werden, wie z. B. bei Kind 3.
Es scheint das Arcus B10 zu sein.
Ich gehe mal davon aus, dass Ihr mit Heinz von Heiden noch gar nicht gesprochen habt und Ihr nur im Netz geschaut habt, wer die 3 Kinderzimmer anbietet - außerdem auf den Preis geschaut habt?!
Die 310000€ sind ein reiner Katalogpreis. So ist das nun mal mit Generalunternehmern. Die setzen im www natürlich den untersten Preis an. Da wir zwar nicht mit Heinz von Heiden damals gebaut haben, aber annähernd eine fast identische Bauleistungsbeschreibung hatten, kann ich sagen, dass da ungefähr noch 1/5 - 1/4 an Preis dazukommt, wenn man annähernd den technischen Stand von heute erreichen will. Auch die Außenansichten strotzen nur von Aufpreisen und Upgrades. Man kann das auch gut sehen, indem man Grundriss und Farbbildchen vergleicht. Realisierte Häuser sehen anders aus.
In der Bauleistungsbeschreibung waren schon damals Positionen nicht drin, die ein Durchschnitts-GU aber hatte, zb Container, Aussenmalerarbeiten etc. Ich glaube, mittlerweile muss man sogar seine Treppe selbst streichen.
Aber das alles nur mal am Rande, denn dafür gibt es hier ein moderiertes Forum - dort kann man so etwas auch nachlesen. Außerdem hat Heinz von Heiden glaube ich auch selbst ein Haus-Forum, wo sich Bauherren untereinander austauschen.
Allerdings muss man nicht aufwändig bauen oder vor Eigenleistungen scheuen, alles gut. Es muss einem nur bewusst sein, dass da eben einiges noch on Top kommt.
Zum Grundriss:
nicht Fisch noch Fleisch. 7qm + für einen Hauswirtschaftsraum reicht nicht für einen 5-Personen-Haushalt, wenn dort auch noch Wäsche gewaschen wird.
Ihr habt keine Abstellfläche: das Zeltdach werdet Ihr so nicht nutzen können. Ggf mal einige Kartons gebückt reinschieben.
Bei 700qm Grundstück und eine Geschossflächenzahl von 0,4 und der Wunsch nach „Großfamilie“ ist die Stadtvilla die falsche Wahl. Die meiner Meinung richtigere Wahl, wenn das Budget knapp ist, wäre ein Satteldachhaus, wo man im DG noch genug Stauraum bekommt und durch den Kniestock eine bessere Nutzung der Räume auf die Fläche bekommt - ja, mit Dachschrägen im oberen Geschoss dann. So ist das nun mal.
Ich gehe mal davon aus, dass Ihr mit Heinz von Heiden noch gar nicht gesprochen habt und Ihr nur im Netz geschaut habt, wer die 3 Kinderzimmer anbietet - außerdem auf den Preis geschaut habt?!
Die 310000€ sind ein reiner Katalogpreis. So ist das nun mal mit Generalunternehmern. Die setzen im www natürlich den untersten Preis an. Da wir zwar nicht mit Heinz von Heiden damals gebaut haben, aber annähernd eine fast identische Bauleistungsbeschreibung hatten, kann ich sagen, dass da ungefähr noch 1/5 - 1/4 an Preis dazukommt, wenn man annähernd den technischen Stand von heute erreichen will. Auch die Außenansichten strotzen nur von Aufpreisen und Upgrades. Man kann das auch gut sehen, indem man Grundriss und Farbbildchen vergleicht. Realisierte Häuser sehen anders aus.
In der Bauleistungsbeschreibung waren schon damals Positionen nicht drin, die ein Durchschnitts-GU aber hatte, zb Container, Aussenmalerarbeiten etc. Ich glaube, mittlerweile muss man sogar seine Treppe selbst streichen.
Aber das alles nur mal am Rande, denn dafür gibt es hier ein moderiertes Forum - dort kann man so etwas auch nachlesen. Außerdem hat Heinz von Heiden glaube ich auch selbst ein Haus-Forum, wo sich Bauherren untereinander austauschen.
zahni1992 schrieb:Da steht ganz deutlich ab-Preis auf der Homepage. Zumindest ist eine Lüftungsanlage schon mit bei sowie Photovoltaik. Die wollen natürlich nach Gebäudeenergiegesetz bauen, somit gehören solche Dinge mit rein. Ich wette, das nehmen sie wieder anderswo, zb in der Befliesung der Feuchträume.
Preisschätzung laut Architekt/Planer: 312.000€
Allerdings muss man nicht aufwändig bauen oder vor Eigenleistungen scheuen, alles gut. Es muss einem nur bewusst sein, dass da eben einiges noch on Top kommt.
Zum Grundriss:
nicht Fisch noch Fleisch. 7qm + für einen Hauswirtschaftsraum reicht nicht für einen 5-Personen-Haushalt, wenn dort auch noch Wäsche gewaschen wird.
Ihr habt keine Abstellfläche: das Zeltdach werdet Ihr so nicht nutzen können. Ggf mal einige Kartons gebückt reinschieben.
Bei 700qm Grundstück und eine Geschossflächenzahl von 0,4 und der Wunsch nach „Großfamilie“ ist die Stadtvilla die falsche Wahl. Die meiner Meinung richtigere Wahl, wenn das Budget knapp ist, wäre ein Satteldachhaus, wo man im DG noch genug Stauraum bekommt und durch den Kniestock eine bessere Nutzung der Räume auf die Fläche bekommt - ja, mit Dachschrägen im oberen Geschoss dann. So ist das nun mal.
Z
zahni199207.04.24 22:24Guten Abend,
vielen Dank erstmal für eure Antworten.
@kbt09
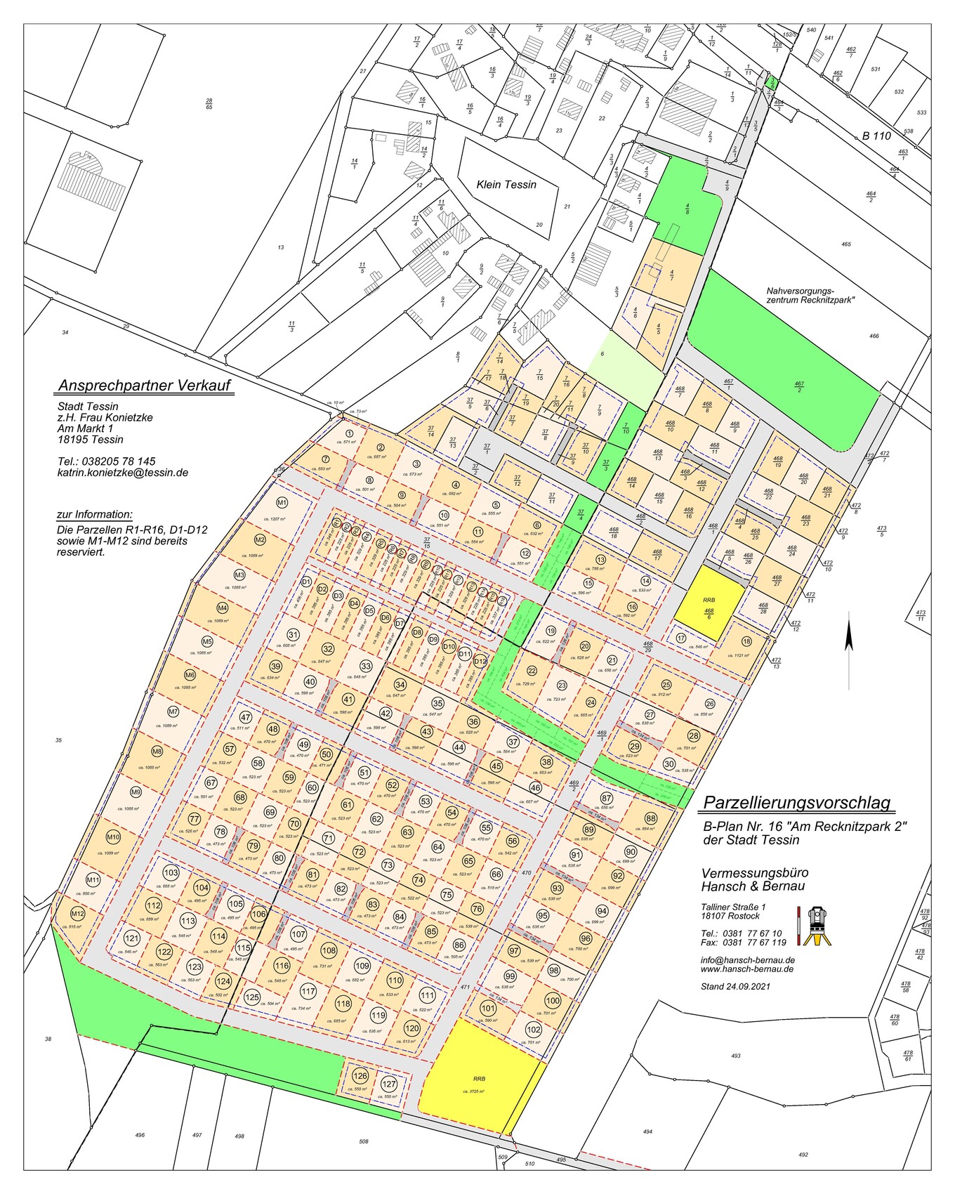
Ich habe einen plan in der Anlage. Es handelt sich um das Grundstück Nr. 90.
Weiter sind auch noch Bilder mit genaueren Maßen im Anhang. Die Idee mit den "kleinen Hauswirtschaftsraum" im Obergeschoss finden wir gut, wissen aber nicht inwieweit das realisierbar ist, bzw. wie Heinz von Heiden sich das bezahlen. Wir haben es mit auf unsere Liste gepackt.

Erdgeschoss:

Obergeschoss:

@ypg
Wir hatten bei Heinz von Heiden einen Termin. Dort sind wir 3 Hausvarianten durchgegangen.
Einmal das unverbesserliche, welches nicht anpassbar ist.
Arcus 152:
Dies wollten wir etwas vergrößern (165-170m²) fehlendes Kinderzimmer. Wohnzimmer, Hauswirtschaftsraum größer.. Dann lagen wir beim ähnlichen Preis wie beim B10.
Als letztes haben wir uns dann das Arcus B10 angeschaut. Dort hatte uns prinzipiell sofort das OG zugesagt aufgrund der 3 Kinderzimmer und deren gleiche Größenverteilung und hatte deshalb am OG erstmal nicht viel - garnichts auszusetzen.
Photovoltaik ist zwar mit drin... aber mit 1,5 kwp wohl etwas unterdimensioniert.
Im unteren Geschoss wollten wir gerne eine geschlossene Küche, die auch im Angebot mit eingepreist war. Außerdem wollten wir einen größeren Hauswirtschaftsraum und eine Dusche im Gästebad.
Die Vorstellungen, um den Hauswirtschaftsraum etwas größer zu haben, waren sowohl Küche und Hauswirtschaftsraum etwas nach links im Grundriss zu verschieben und dementsprechend das Wohnzimmer etwas zu verkleinern.
Wir haben ein Angebot mit Inklusivleistungen und Zusatzleistungen (farbige Wände Hauswirtschaftsraum Nebeneingangstür usw.) Komplette Übersicht weiter unten.
Mit den Mehrleistungen kamen wir im Angebot auf 312.500€
Das Gäste Zimmer soll auch als Arbeitszimmer genutzt werden, da ich zum Teil zu Hause arbeite.
Wieso ist die Stadtvilla deiner Meinung nach genau die falsche Wahl? "Nur" aufgrund der Abstellmöglichkeiten?
jetzt eine grobe Auflistung der Leistungen die enthalten sind.

Wir sind dankbar für Tipps (auch wenn sie etwas von der Grundrissplanung abdriften)
Grüße
Christoph und Kathleen

vielen Dank erstmal für eure Antworten.
@kbt09
Ich habe einen plan in der Anlage. Es handelt sich um das Grundstück Nr. 90.
Weiter sind auch noch Bilder mit genaueren Maßen im Anhang. Die Idee mit den "kleinen Hauswirtschaftsraum" im Obergeschoss finden wir gut, wissen aber nicht inwieweit das realisierbar ist, bzw. wie Heinz von Heiden sich das bezahlen. Wir haben es mit auf unsere Liste gepackt.
Erdgeschoss:
Obergeschoss:
@ypg
Wir hatten bei Heinz von Heiden einen Termin. Dort sind wir 3 Hausvarianten durchgegangen.
Einmal das unverbesserliche, welches nicht anpassbar ist.
Arcus 152:
Dies wollten wir etwas vergrößern (165-170m²) fehlendes Kinderzimmer. Wohnzimmer, Hauswirtschaftsraum größer.. Dann lagen wir beim ähnlichen Preis wie beim B10.
Als letztes haben wir uns dann das Arcus B10 angeschaut. Dort hatte uns prinzipiell sofort das OG zugesagt aufgrund der 3 Kinderzimmer und deren gleiche Größenverteilung und hatte deshalb am OG erstmal nicht viel - garnichts auszusetzen.
Photovoltaik ist zwar mit drin... aber mit 1,5 kwp wohl etwas unterdimensioniert.
Im unteren Geschoss wollten wir gerne eine geschlossene Küche, die auch im Angebot mit eingepreist war. Außerdem wollten wir einen größeren Hauswirtschaftsraum und eine Dusche im Gästebad.
Die Vorstellungen, um den Hauswirtschaftsraum etwas größer zu haben, waren sowohl Küche und Hauswirtschaftsraum etwas nach links im Grundriss zu verschieben und dementsprechend das Wohnzimmer etwas zu verkleinern.
Wir haben ein Angebot mit Inklusivleistungen und Zusatzleistungen (farbige Wände Hauswirtschaftsraum Nebeneingangstür usw.) Komplette Übersicht weiter unten.
Mit den Mehrleistungen kamen wir im Angebot auf 312.500€
Das Gäste Zimmer soll auch als Arbeitszimmer genutzt werden, da ich zum Teil zu Hause arbeite.
Wieso ist die Stadtvilla deiner Meinung nach genau die falsche Wahl? "Nur" aufgrund der Abstellmöglichkeiten?
jetzt eine grobe Auflistung der Leistungen die enthalten sind.
Wir sind dankbar für Tipps (auch wenn sie etwas von der Grundrissplanung abdriften)
Grüße
Christoph und Kathleen
Ähnliche Themen