Watcher78 schrieb:
Bist sicher das das mit den Rollladen funktioniert im OG ? Rollladenkasten braucht ca. 30cm + Fette. dann kannst Vorlauf. höchstens ein Fenster vom Boden aus gerechnet mit 1,40 - 1,50 einplanen. Das bedeutet aber das Du, je nachdem wie groß du bist, nicht rausschauen kannst ohne dich zu bücken.
Wir hatten auch mal 2,15 Drempel angedacht und unser Architekt hat gesagt das wir Max. 1,70 m hohe Fenster von Boden aus nehmen können und das es dann mit Rollladen nicht klappt. Daher wundert mich das bei Dir ? Oder sind die Rollladen von außen geplant ?sorry, Sturz liegt bei 2.20m. Nein Rollladenkasten ist auf keinen Fall von außen geplant.
kbt09 schrieb:
Mit deiner Sofaposition schaust du aber nicht gerade in den Garten .
Und, man geht ja eher mal von der Küche in den Garten (Kräuter, Sommer, Grillen, Getränk holen usw.) als vom Wohnzimmer aus.das ist unser Sofa so wie wir den jetzt haben (wobei wir einen neuen brauchen) jedenfalls weiß ich auch nicht so recht in welche ecke mit dem (das Wohnzimmer ist soweit vorhanden, bis auf den Kamin)
Kisska86 schrieb:
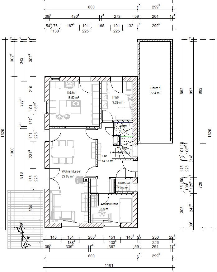
Hier mal ein vernünftiges Bild.
Die Außenmaße sollten passen... Wenn du den interessant findest kann ich auch mal weitere Maße aufschreiben, aber sollte zumindest soweit funktionieren und ich finde die Ausrichtung schöner, sowohl vom Wohnzimmer als auch von den Kinderzimmern.Danke für den Entwurf. ich glaube man müsste die Eingangstür dann bei deinem Entwurf weiter runter setzten, sonst müsste ich die Garage auf die andere Seite stellen.
Ebenso ist im Flur kaum an Abstellfläche vorhanden
irgendwie sagt mir aber der Entwurf noch nicht so zu
So, ich habe auch mal geschoben. Dabei das Haus sogar nur 8 m breit gemacht, damit hat man dann rechts und links noch etwas Spielraum. Dafür 13 m lang.
Ich erzähle mal gar nicht viel dazu .. nur zur Küche, meinem besonderem Steckenpferd.
Da sind planrechts ausreichend hochschränke für Kühlschrank, Backofen, Vorräte. In der Mitte der Hochschränke nur ca. 120 cm hoch eine hochgesetzte Spülmaschine und ein Schrank. Obendrauf ist dann ideale Abstellfläche für Kaffeemaschine etc.
Dazu Spüleninsel mit Sitzbank an der linken Wand und 2 Stühlen nach planunten. Planoben dann eine Kochfeldzeile, außerdem direkten Gartenausgang, Verbindung zum Essbereich durch Glasschiebetüren.
Unter der Treppe habe ich noch einen Bereich für Getränkekisten etc. angedacht. Im Hauswirtschaftsraum dann Technik, Wäsche, und ein bißchen allgemeines Lager.
Im Treppenauge sowohl im EG als auch im OG einen Schrank. Hier könnte ich mir jeweils eine zentrale Putzstation mit Staubsauger, Wischer etc. vorstellen
EG:
OG:






Ich erzähle mal gar nicht viel dazu .. nur zur Küche, meinem besonderem Steckenpferd.
Da sind planrechts ausreichend hochschränke für Kühlschrank, Backofen, Vorräte. In der Mitte der Hochschränke nur ca. 120 cm hoch eine hochgesetzte Spülmaschine und ein Schrank. Obendrauf ist dann ideale Abstellfläche für Kaffeemaschine etc.
Dazu Spüleninsel mit Sitzbank an der linken Wand und 2 Stühlen nach planunten. Planoben dann eine Kochfeldzeile, außerdem direkten Gartenausgang, Verbindung zum Essbereich durch Glasschiebetüren.
Unter der Treppe habe ich noch einen Bereich für Getränkekisten etc. angedacht. Im Hauswirtschaftsraum dann Technik, Wäsche, und ein bißchen allgemeines Lager.
Im Treppenauge sowohl im EG als auch im OG einen Schrank. Hier könnte ich mir jeweils eine zentrale Putzstation mit Staubsauger, Wischer etc. vorstellen
EG:
OG:
Ähnliche Themen