Bebauungsplan/Einschränkungen
Größe des Grundstücks: 420m²
Ausrichtung: Nord
Baufenster, Baulinie und -grenze: 3m Abstand Straße, 14,5m breit und 29m tief
Anforderungen der Bauherren
Satteldach 20°
2 Geschosse
Anzahl der Personen: 2 + (2Kinder geplant)
Büro: Homeoffice
Schlafgäste pro Jahr: 6
Wohnfläche 150 qm
geschlossene Architektur
moderne Bauweise
Kamin
Garage
Hausentwurf
Von wem stammt die Planung:
-Planer eines Bauunternehmens
Folgende Punkte gefallen uns noch nicht:
- Gäste-WC zu groß (es soll eigentlich keine Dusche mit rein)
- Hauswirtschaftsraum soll auch als Stauraum genutzt werden, Heizart: Gas, Solar oder Photovoltaik reichen die 10m² aus?
- In der Küche würden wir gerne eine Tür zum aufschieben haben, jedoch
- Wissen wir nicht, in welche Ecke wir den Kamin hinstellen sollen
- Gerne hätten wir im OG im Bad eine Trennwand die die Dusche mit dem Wc "trennt"... Doch irgendwie fehlt mir da irgendwas...
- Wir überlegen in der Küche dann eine Glastür einzusetzen um mehr Licht ins Flur zu bekommen
Wäre für Eure Meinungen oder Ideen sehr Dankbar.
Vielen Dank schon mal im Voraus.


Größe des Grundstücks: 420m²
Ausrichtung: Nord
Baufenster, Baulinie und -grenze: 3m Abstand Straße, 14,5m breit und 29m tief
Anforderungen der Bauherren
Satteldach 20°
2 Geschosse
Anzahl der Personen: 2 + (2Kinder geplant)
Büro: Homeoffice
Schlafgäste pro Jahr: 6
Wohnfläche 150 qm
geschlossene Architektur
moderne Bauweise
Kamin
Garage
Hausentwurf
Von wem stammt die Planung:
-Planer eines Bauunternehmens
Folgende Punkte gefallen uns noch nicht:
- Gäste-WC zu groß (es soll eigentlich keine Dusche mit rein)
- Hauswirtschaftsraum soll auch als Stauraum genutzt werden, Heizart: Gas, Solar oder Photovoltaik reichen die 10m² aus?
- In der Küche würden wir gerne eine Tür zum aufschieben haben, jedoch
- Wissen wir nicht, in welche Ecke wir den Kamin hinstellen sollen
- Gerne hätten wir im OG im Bad eine Trennwand die die Dusche mit dem Wc "trennt"... Doch irgendwie fehlt mir da irgendwas...
- Wir überlegen in der Küche dann eine Glastür einzusetzen um mehr Licht ins Flur zu bekommen
Wäre für Eure Meinungen oder Ideen sehr Dankbar.
Vielen Dank schon mal im Voraus.
Hmm, planoben ist also Süd?
Mir fallen mehrere Dinge auf:
Mir fallen mehrere Dinge auf:
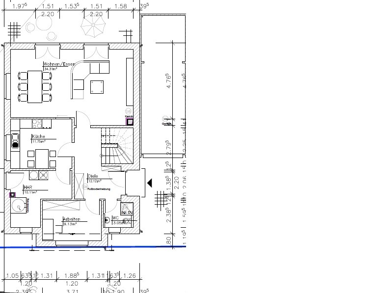
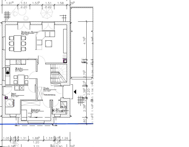
- Kochen / Essen / Wohnen ... 2 Essplätze, Essen und Wohnen, wenn die möbel so kommen, wie sie eingeplant sind, dann wirken alle 3 Bereiche wie kleine Kammern und nicht sehr großzügig
- Kochen, so wie geplant .. wo stehen hochschränke?
- Ich bin ja Fan von Küche an der Terrasse ... euer Weg von der Küche zur Terrasse ist schon sehr unpraktisch.
- Das Gäste-WC ist nicht zu groß, bzw. es könnte einen Hauch kleiner, aber die so eingeplante Dusche geht gar nicht. Die Seite dort ist 159 cm breit .. ein bequemes WC erfordert ca. 90 cm ... Dusche also nur 70 cm ?
- Der HAR verliert durch die beiden Zugänge und die L-Form. Das wird alles sehr knapp.
- Die Treppe erscheint mir sehr knapp kalkuliert. Welche Raumhöhe ist angedacht und wie viel Steigungen soll sie haben?
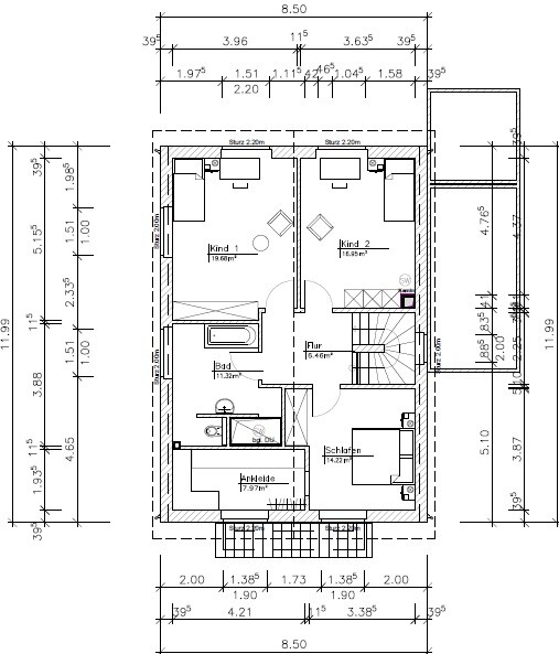
- Die Kinderzimmer sind schön
- Der Schrankraum von den Eltern ... da passen ja keine 300 cm schrank rein.
- Im OG planunten die Fenster 190 cm hoch ... welche Brüstungshöhe sollen die haben, kann man nicht lesen?
- Warum der Erker? Gibt es auch Ansichten?
- Das Bad im OG hat sehr viel Freiraum
- mir erschließt sich der Sinn des Erkers so nicht (gibt es da Ansichten die den begründen?)
- Zugang Küche mit der Tür und dem Essplatz wird nichts
- Hauswirtschaftsraum sehr ungünstig geschnitten -würde hier ggf. einen anderen Ansatz suchen und dann auch das Arbeitszimmer ohne den Erker unterbringen
sonst hat kbt alles gesagt.
- Zugang Küche mit der Tür und dem Essplatz wird nichts
- Hauswirtschaftsraum sehr ungünstig geschnitten -würde hier ggf. einen anderen Ansatz suchen und dann auch das Arbeitszimmer ohne den Erker unterbringen
sonst hat kbt alles gesagt.
kbt09 schrieb:
Hmm, planoben ist also Süd?
Mir fallen mehrere Dinge auf:
- Kochen / Essen / Wohnen ... 2 Essplätze, Essen und Wohnen, wenn die Möbel so kommen, wie sie eingeplant sind, dann wirken alle 3 Bereiche wie kleine Kammern und nicht sehr großzügig
- Kochen, so wie geplant .. wo stehen Hochschränke?
- Ich bin ja Fan von Küche an der Terrasse ... euer Weg von der Küche zur Terrasse ist schon sehr unpraktisch.
- Das Gäste-WC ist nicht zu groß, bzw. es könnte einen Hauch kleiner, aber die so eingeplante Dusche geht gar nicht. Die Seite dort ist 159 cm breit .. ein bequemes WC erfordert ca. 90 cm ... Dusche also nur 70 cm ?
- Der HAR verliert durch die beiden Zugänge und die L-Form. Das wird alles sehr knapp.
- Die Treppe erscheint mir sehr knapp kalkuliert. Welche Raumhöhe ist angedacht und wie viel Steigungen soll sie haben?
- Die Kinderzimmer sind schön
- Der Schrankraum von den Eltern ... da passen ja keine 300 cm Schrank rein.
- Im OG planunten die Fenster 190 cm hoch ... welche Brüstungshöhe sollen die haben, kann man nicht lesen?
- Warum der Erker? Gibt es auch Ansichten?
- Das Bad im OG hat sehr viel Freiraum
Ich würde wohl andenken, dass Arbeitszimmer mit ins OG zu setzen .. zumindest mal versuchen.Erstmal vielen Dank für Deine Meinung.
- Die Möbel ist bereits so vorhanden (Essen und Wohnen) es fehlt im Wohnzimmer sogar noch ein Schrank ( 140cmx60xm)
- Die Hochschränke würden an der Seite der Schiebetür stehen/hängen
- Dusche im G-WC möchten wir auch nicht, jedoch erscheint mir das Gäste-WC ohne die Dusche etwas groß
- In der Ankleide würde doch ein Schrank reinpassen...?!
- Den Erker haben wir deshalb, um den Raum etwas größer zu bekommen und die Ansicht von vorne etwas anders zu gestalten... (anstatt vor eine Hauswand zu schauen)
Also ist Süd planunten? Ein Nordpfeil auf den Zeichnungen wäre halt immer sehr hilfreich
Da würde ich doch aber mal sehen, ob man die Kinderzimmer nicht auf die Westseite bekommen könnte.
Treppe ist immer noch unklar.
Haus ist ja 850 cm breit, d. h. rechts und links bleiben aktuell gerade die 300 cm Abstand. Garage mit 300 cm Außenbreite incl. Dachüberstand halte ich auch für etwas eng. Oder soll es nur ein Carport werden? Vielleicht doch mal einen Lageplan mit eingezeichneten Baugrenzen einstellen?
EDIT:
Das Homeoffice ist aber ohne Kundenzugang - oder?
Da würde ich doch aber mal sehen, ob man die Kinderzimmer nicht auf die Westseite bekommen könnte.
djon25 schrieb:Mit Hochschränke meine ich Hochschränke und keine Hängeschränke, also Kühlschrank, Backofen hochgestellt und solche Sachen. Wenn du die an die Wand mit der Schiebetür stellen willst, dann bleibt dir ja als Küchenarbeitszeile nur noch planlinks der Platz am Fenster. Da mal genau über Kochfeld etc. nachdenken. Meine Küche wäre das jedenfalls so nicht
- Die Hochschränke würden an der Seite der Schiebetür stehen/hängen
Treppe ist immer noch unklar.
djon25 schrieb:??? Die Wand sieht doch da erst mal von vorne nicht anders aus. Dafür holt man sich noch einen Knackpunkt, nämlich die Flachdachabdeckung dieses Erkers ins Haus.
Den Erker haben wir deshalb, um den Raum etwas größer zu bekommen und die Ansicht von vorne etwas anders zu gestalten... (anstatt vor eine Hauswand zu schauen)
Haus ist ja 850 cm breit, d. h. rechts und links bleiben aktuell gerade die 300 cm Abstand. Garage mit 300 cm Außenbreite incl. Dachüberstand halte ich auch für etwas eng. Oder soll es nur ein Carport werden? Vielleicht doch mal einen Lageplan mit eingezeichneten Baugrenzen einstellen?
EDIT:
Das Homeoffice ist aber ohne Kundenzugang - oder?
kbt09 schrieb:
Also ist Süd planunten? Ein Nordpfeil auf den Zeichnungen wäre halt immer sehr hilfreich Richtig.
kbt09 schrieb:
Da würde ich doch aber mal sehen, ob man die Kinderzimmer nicht auf die Westseite bekommen könnte. Welchen Grund/ Vorteil hat denn die Ausrichtung der Kinderzimmern auf die Westseite?
kbt09 schrieb:
Mit Hochschränke meine ich Hochschränke und keine Hängeschränke, also Kühlschrank, Backofen hochgestellt und solche Sachen. Wenn du die an die Wand mit der Schiebetür stellen willst, dann bleibt dir ja als Küchenarbeitszeile nur noch planlinks der Platz am Fenster. Da mal genau über Kochfeld etc. nachdenken. Meine Küche wäre das jedenfalls so nicht
. Wir kommen eigentlich mit einer kleineren Küche bis jetzt gut zurecht, jedoch möchten wir die Möglichkeit haben, morgens ein Kaffee am Küchentisch zu trinken und nicht ins Wohnzimmer zu laufen. Die Schiebetür ist zwar toll, jedoch wird es wohl darauf hinauslaufen, dass man die Tür sich einstapart um den Platz anders nutzen zu können.
kbt09 schrieb:
Treppe ist immer noch unklar.
. müssten wir erst mal abklären...
kbt09 schrieb:
??? Die Wand sieht doch da erst mal von vorne nicht anders aus. Dafür holt man sich noch einen Knackpunkt, nämlich die Flachdachabdeckung dieses Erkers ins Haus.
. Nein, anders sieht die Wand nicht aus... jedoch sieht das Haus nicht wie ein Klotz aus (sondern Klotz mit Anbau ) Uns gefällt es ...
kbt09 schrieb:
Haus ist ja 850 cm breit, d. h. rechts und links bleiben aktuell gerade die 300 cm Abstand. Garage mit 300 cm Außenbreite incl. Dachüberstand halte ich auch für etwas eng. Oder soll es nur ein Carport werden? Vielleicht doch mal einen Lageplan mit eingezeichneten Baugrenzen einstellen?
.Richtig, die Breite ist 14,5m. 8,5 Haus + jeweils 3m links und 3m Fertiggarage (deshalb fällt der Überstand doch weg/ auch wenn ich eine Fertiggarage nicht so gern haben möchte, jedoch wir uns keine gemauerte Leisten können)kbt09 schrieb:
EDIT:
Das Homeoffice ist aber ohne Kundenzugang - oder? richtig. Am Anfang war es auch so vorgesehen, dass das Büro nach oben kommt. Jedoch werden die Schlafzimmer/Bad dadurch kleiner. Unten hätten wir im Erker dann den Hauswirtschaftsraum (was verschenkt wäre)...
Ähnliche Themen