Hausbau - Ratgeber
Bauherrenhilfe
- Bauherrenhilfe vor Vertragsabschluss
-- Warum einen unabhängigen Baubetreuer?
-- Vertragsgrundlagen
-- Bausumme
-- Zahlungsplan zur Kostenkontrolle
-- Pflichten des Bauherren vor Vertragsabschluss
-- Unterlagen beim Hausbau vor Vertragsabschluss
- Bauherrenhilfe nach Vertragsabschluss
-- Bauantrag bei Behörden
-- Bau-Genehmigungsverfahren bei Baubehörden
-- Bauspezifische Versicherungen
-- Bauzeitenplan
-- Baubeginn - die Letzten Pflichten der Bauherrschaft
- Bauherrenhilfe während der Bauzeit
- Gewährleistungsansprüche
- Bauabnahme
Baufinanzierung
- Baufinanzierung - Allgemeine Fragen
- Kreditarten
- Kredit-Konditionen
- Bausparen
- Staatliche Förderungen
- Verkehrswert
- Haushaltsrechnung und Bonität
Hausbau Planung
- Haustypen
- Hausbau Vorbereitungsarbeiten
- Das Baugrundstück
- Baugrund beim Hausbau
- Baurecht
- Gebäudeschutz
- Erdarbeiten und Wasserhaltung
- Stützmauern
- Einfriedung
- Untergeschoss
- Kanalisation
- Tragende Elemente
- Nichttragende Innenwände
- Fundation / Fundament
- Deckenkonstruktionen
- Dächer
- Kaminanlagen
- Treppen Rampen Leitern
- Dachbeläge und Spengler
- Fenster
- Sonnen und Wetterschutz
- Aussenputze
- Einbauten, Küchen, Türen
- Bodenbeläge und Unterlagsböden
- Parkett
- Gips, Wand, Decke
Haustechnik und Energie
- Heiztechnik
- Lüftung und Klimatechnik
- Sanitärtechnik
- Elektrotechnik
- Erneuerbare Energie
Whirlpools / Jacuzzi
Hausbau Magazin
- Baufinanzierung trotz Krise?
- Das Blockhaus
- Moderne Dämmstoffe im Vergleich
- Erker Vor- und Nachteile
- Glasflächen beim Hausbau
- Günstig ein Haus Bauen
- Mediterraner Hausbaustil
- Mehrgenerationenhaus
- Moderne Architektur
- Gartengestaltung leicht gemacht
- Traditioneller Ziegelbau
- Villa als höchster Traum
- Im Eigenheim Ruhestand geniessen
- Altbau sanieren
- Kauf einer Holzgarage
- Immobilienmakler
- Arbeitshandschuhe für den Winter
- Zuhause verschönern
- Outdoor-Plissees
- Schlafzimmer planen
- Terrassenüberdachung
- Wohngebäudeversicherung
- Zaunarten und Eigenschaften
- Hauseingang gestalten
- Der perfekte Grundriss
- Sparsamer heizen im Altbau
- Einfamilienhaus smart finanzieren
- Planung einer PV-Anlage
- Neues Haus
- Immobilienfinanzierung
- Installation einer Photovoltaikanlage
- Asbest erkennen und entfernen
- Gartenpflege im Frühling – worauf achten
- Sauna im Fokus - Wellness zuhause
- Erfolgreich vermieten
- Die perfekte Winterbekleidung
- Das Niedrigenergiehaus
- Der April und seine Stürme
- Architektonische Vielfalt
- Ökologisch und nachhaltig bauen
- Das perfekte Schlafzimmer
- Nachhaltige Energieversorgung
- Zukunftsorientiert bauen
- Nachhaltigkeit beim Hausbau
- Tiny Houses
- Wärmepumpen als nachhaltige Heizvariante
- Maßgeschneiderten Kleiderschrank
- Der richtige Baukredit
- Ratgeber für erfolgreichen Hausbau
- Haus als Altersvorsorge
Do-it-yourself Anleitungen
- Verlegeanleitung für Bodenbeläge und Parkett
- Bodenbeläge und Parkett reinigen und pflegen
- Malerarbeiten am Haus
- Garten Tipps
- Umzug und Reinigung

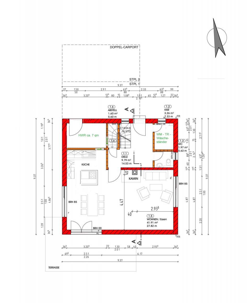
ᐅ Unser Grundriss von 120qm auf 469qm Grundstück

Erstellt am: 20.10.13 23:41
E
erfurter110287
f-pNo14.11.13 11:54
erfurter110287 schrieb:
Anscheinend geben sich Leute ausm Osten auch mit weniger zufrieden. und Jetzt könnt ihr mich hassen wie ihr wollt.

Jetzt muss ich doch noch mal was dazu schreiben.
Lass bitte diese blöde Ossi-Wessi-Diskussion weg. Es gibt hier genug User, welche auch aus Ostdeutschland kommen. Ich selber bin im Übrigen stolzer Wossi.
Es hasst Dich übrigens niemand und niemand will DIR was böses.

Thema Wäschetrocknen (als letztes): In einer Mietwohnung muss man Kompromisse eingehen. Magst Du den Kompromiss nicht, suchst Du eine andere Wohnung und ziehst aus.
Wenn man aber selber baut, versucht man es doch so zu erstellen, dass man so wenig wie möglich Kompromisse eingeht. Beim Bau Deines Eigenheimes hast Du nur einmal die Chance, es richtig zu machen (außer, Du willst, wie oben geschrieben, dreimal bauen).
Y
ypg
14.11.13 12:08
Schon traurig, welches Niveau hier eingespielt wird...
... wieder mal ein trauriges Resultat der Zeitverschwendung...

Tässchen Tee gefällig?
Jaydee14.11.13 12:42
ypg schrieb:

Tässchen Tee gefällig?

Oh ja, ich nehme eine Bitte mit Baldrian - mein Blutdruck muss sich erst mal senken ...
Jaydee14.11.13 12:49
erfurter110287 schrieb:
es ist ein Abstellraum vorhanden!!!

Der Abstellraum unter der Treppe? OK, kannst du Dir das in 3D vorstellen? Der Raum ist so breit wie die Türe (90 cm). Stell Dich mal in einen Türrahmen, dann weißt Du, wie breit das ist. Wo genau möchtest Du jetzt ein Regal machen? Getränkekisten unterbringen? Und noch den Raum betreten?
Abgesehen davon, dass er nur im vorderen Bereich entsprechend hoch ist, im hinteren Bereich läuft da nämlich dann die Treppe rein.
E
erfurter110287
14.11.13 12:57
alle wieder beruhigt?
wir haben es hier rein gestellt um uns bestimmte Sachen noch mal von anderen sagen lassen. kein Thema. hören uns ja auch alles an. wollen auch niemanden angreifen. aber wir mögen es halt nicht wenn die Maße nicht richtig gelesen werden. wenn wir alles zig mal erklären müssen obwohl es im Grundriss ersichtlich ist. wie ihr auch sehen könnt haben wir schon Sachen berücksichtigt. vom ersten mal und anders gemacht. haben auch extra fünf mal gefragt ob der har so in Ordnung ist. beim Architekt so wie unserer Maklerin. und das Thema Wäsche ist für uns nun mal das geringste. nur mal als Beispiel. wir haben zur zeit eine 75 qm Wohnung und einen Keller von 4 qm wo die Autoreifen drin sind sowie zwei Fahrräder und win paar Kisten.klar fällt bei nem Haus noch mehr an. deshalb planen wir ja über die Fläche des Carports dahinter noch einen schuppen hin zu machen. Getränke lagern wir zur zeit in unserer 3,80m Küchenzeile mit. wie man sehen kann ist die Küche nun größer und wurde gestern auch geplant. alles andere an Werkzeug lagern wir zur zeit in unseren Flur Möbeln. was dann wiederum im Haus in den Abstellraum kommt. nen Kinderwagen hat unter dem Rest der Treppe ebenso Platz.

das jetzt mal so grob zusammengefasst wie wir uns das alles gedacht haben.

hoffe es ist jetzt verständlich und auch verständlich das wir niemandem hier was böses wollen. nur sollte man vlt manchmal einen Thread der etwas geruht hat auch noch mal von vorne lesen um manch Sachen zu verstehen.

also danke und liebe grüße aus Erfurt
B
Bauexperte
14.11.13 12:58
Hallo,

so ein Gezicke geht mir - ehrlich - zunehmend auf den Geist ...

Du hast Fragen zu Deinem Grundriss gestellt, sinnvolle Antworten hast Du bekommen. Sie müssen Dir nicht gefallen, ein Wunschkonzert ist das HBF aber deshalb noch lange nicht!
erfurter110287 schrieb:

so wie es uns erklärt wurde kommt der putz nur von außen noch an die Wand und innen eine dünne Schicht weil es ein diffusionsoffenes Mauerwerk sein soll.
Es wird immer noch umlaufend 1 cm Putz aufgebracht. Bei diesem kleinen "Räumchen" wirst Du auf jeden cm angewiesen sein; ich verstehe hier aber auch den Architekten nicht. Er sollte imho besser wissen, welchen Platz Gasbrennwerttherme, Pufferspeicher, Elektro-/Wasseranschluss und erforderliche Leitungen beanspruchen. Mir tut Jetzt schon der Monteur leid, wenn er mal ein Teil warten oder austauschen muß.

Btw. was sagt er zu den Fensterflächen im DG?
erfurter110287 schrieb:

nur mal so am Rande. mit dem har das lass ich mir ja alles noch gefallen was hier geschrieben wird. aber wegen Wäsche trocknen hier so ein Fass auf zu machen ist für mich unbegreiflich.
und unsere Maklerin und Architekt und gesamte Familie sagt zu dem Thema Wäsche trocknen auch das gleiche.
Nur mal so am Rande - entweder hast Du Deine Tage oder einfach einen schlechten Tag erwischt? Ich habe mir den ganzen Faden durchgelesen - nicht einer der User ist Dir gegenüber ausfallend geworden; alle haben sich ihre sachliche Haltung bewahrt. Und von einem "Faß aufmachen" bei der Erklärung, daß Wäsche im Wohnzimmer getrocknet werden soll - ich würde eher sagen, Du hast keinen blassen Schimmer, was Du Dir damit erkaufst. Und bei allem Respekt - Deine Maklerin und Dein Architekt wollen verkaufen. Ihnen ist es vollkommen wurscht, ob Dein Bauleiter Dich später auf die Mehrkosten hinweist, die dadurch entstehen, das der bisher geplante HAR gerade nicht funzt, funktionieren kann. Gibt Dein Budget das her?

Da Du an einer Stelle geschrieben hast "mehr Haus ist nicht drin" (was überhaupt kein Makel ist, für jeden Bauherren bedeutet seine Investition ein erhebliches Investment - unabhängig von der tatsächlichen Zahl unterm Strich), solltest Du doch dankbar dafür sein, daß Dich - dem Grunde nach wildfremde Menschen - auf die Schwächen Deiner Planung hinweisen; sie bekommen kein Honorar dafür, sondern geben gerne und freimütig ihre Erfahrungen an Dich weiter. Du dankst es Ihnen mit hormongesteuertem Verhalten

Dein Grundriss ist im EG ganz easy abzuändern; ich habe Dir mal meine Idee angehängt. Dabei hast Du die Wahl via innenliegender Schiebetüre über die Küche in den Hauswirtschaftsraum zu gelangen oder auch über den Abstellraum unter der Treppe; die Kopffreiheit müsste genügen. Mit dieser Anordnung des Hauswirtschaftsraum schaffst Du Dir ebenfalls einen direkten Zugang vom PkW in den Hauswirtschaftsraum, ohne erst eine Ecke umlaufen zu müssen. Der bisherige HAR kann dann zum Wasch-/Trockenraum umfunktioniert werden.

Zum Thema trocknen im Wohnzimmer - abseits dessen, daß ich persönlich keine Lust hätte, ewig einen Wäscheständer im Lebensbereich stehen haben zu wollen, holst Du Dir - zusätzlich zu den 8 L/Feuchte/Tag, welche eh bei einem normalen Haushalt anfallen, weitere Feuchtigkeit ins Haus. Das bringst Du nicht mit heizen raus oder nur unter hohem Energieaufwand. Dann setzt sich die Feuchte zusätzlich an der kältesten Stelle ab, was im Regelfall das Fenster ist. Willst Du wirklich permanent im Nebel leben?

Wie Du richtig geschrieben hast, ist das EG knapp bemessen, was - noch mal - kein Makel ist. ABER - Kinderspielsachen, Dein eigener Krempel und Wäscheständer - wo willst Du denn leben?
erfurter110287 schrieb:

Anscheinend geben sich Leute ausm Osten auch mit weniger zufrieden. und Jetzt könnt ihr mich hassen wie ihr wollt.
Du schreibst Blödsinn und solltest Dein Kastendenken mal überdenken.
erfurter110287 schrieb:

am ende sagen auch alle noch das 250.000 für so ein Haus preislich niemals reicht
Das hat Niemand behauptet; noch nicht mal ich und das sollte Dir eigentlich zu denken geben. Nimm Yvonnes Rat und trink einen Tee, Kaffee oder meinethalben auch etwas Stärkeres; war im 18. Jhd. noch normal und keineswegs verpönt, wenn es zu einer "heute" unschicklichen Zeit passierte.

Nachtrag:

habe ich eben in meiner Antwort vergessen. Wenn Dir diese Variante überdenkenswert erscheint, sollte natürlich im DG das Bad auf die gegenüberliegende Seite wandern, als mit dem Kinderzimmer getauscht werden.


Grüße, Bauexperte

Grundriss eines Hauses: Wohnzimmer/Essen, Küche, Flur, HWR, Kamin, Terrasse, rote Außenwände.
treppeabstellraumgrundrisshauswirtschaftsraumwohnungarchitektmaklerinküchewohnzimmerfeuchte