ᐅ Einfamilienhaus, ca 140 m², 2 Kinderzimmer - Was haltet ihr vom Grundriss?
Erstellt am: 04.08.18 14:18
S
Stege90Hallo,
wir haben von einem Bauträger ein Grundstück angeboten bekommen und wollen dort gerne unsere künftige Heimat errichten lassen. Das Grundstück liegt am Ende einer Sackgasse in einer verkehrsberuhigten Siedlung(Lückenbebauung).
Ich muss vorneweg sagen, dass wir noch nicht sehr viele Infos vom Bauträger erhalten haben. Wir haben ihm unsere groben Wünsche mitgeteilt und er hat uns einen ersten Entwurf gefertigt. Diesen bisher auch nur für das Erdgeschoss.
Es wäre super, wenn ihr uns helfen könntet, diesen bereits zu beurteilen, bevor wir in der weiteren Planung schon zu weit fortgeschritten sind und dann noch mal alles geändert werden muss.
Die Lage des Hauses auf dem Grundstück kommt daher, dass alle anderen Varianten die wir durchdacht haben zu viel Schatten auf den Rest des Grundstücks werfen würden.
Das auf dem Lageplan noch unbebaute Grundstück wurde mittlerweile mit einem Bungalow bebaut (eingezeichnet). Zwischen dem Bungalow und unserem Grundstück wird ein Carport errichtet.
Bebauungsplan/Einschränkungen
Größe des Grundstücks: ca 750 m²
Hang: Nein
Grundflächenzahl: noch keine Infos erhalten
Geschossflächenzahl: noch keine Infos erhalten
Baufenster, Baulinie und -grenze: noch keine Infos erhalten
Randbebauung: noch keine Infos erhalten
Anzahl Stellplatz: noch keine Infos erhalten
Geschossigkeit: noch keine Infos erhalten
Dachform:
Stilrichtung:
Ausrichtung: s. Bild
Maximale Höhen/Begrenzungen: ?
weitere Vorgaben ?
Anforderungen der Bauherren
Stilrichtung, Dachform, Gebäudetyp: gewünscht war ein Pultdach um möglichst wenig Schrägen zu haben, dies sei lt. Bauträger lt Bebauungsplan nicht möglich, weshalb er ein Satteldach vorgeschlagen hat - wird noch zu klären sein
Keller, Geschosse: kein Keller, 2 Geschosse
Anzahl der Personen, Alter: aktuell 3 (28,28,1), geplant: zweites Kind
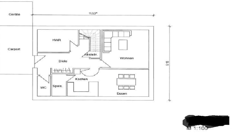
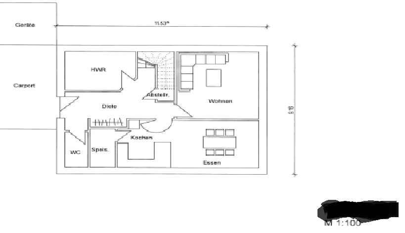
Raumbedarf im EG, OG: EG: Gäste-WC, Hauswirtschaftsraum, Küche/Esszimmer, Wohnzimmer; OG: 3 Schlafzimmer, Büro, Bad
Büro: Familiennutzung oder Homeoffice? - Büro, das künftig ab und an als mobiler Arbeitsplatz genutzt werden soll; zunächst einmal aber auch als Gästezimmer genutzt wird
Schlafgäste pro Jahr – alle 3 Monate 2-4 Pers.
offene oder geschlossene Architektur – eher geschlossen
konservativ oder moderne Bauweise: wird wohl ein Mix
offene Küche, Kochinsel: offene Küche zum Esszimmer – freistehende Kochinsel nein; Trennung zum Esszimmer durch eine Theke
Anzahl Essplätze: min. 6, Möglichkeit einer Tafel (große Familie)
Kamin: nein
Musik/Stereowand: im Wohnzimmer ja, dort wo aktuell das Sofa eingezeichnet ist (Wand links Richtung Carport), Sofa dann über Eck Norden und Osten - an die Wand zum Esszimmerhin kommen ggf. Bilder
Balkon, Dachterrasse: nein
Garage, Carport: Garage war gewünscht, der aktuelle Vorschlag gefällt uns aber auch
Nutzgarten, Treibhaus: nein
weitere Wünsche/Besonderheiten/Tagesablauf, gern auch Begründungen, warum dieses oder das nicht sein soll:
Bad – T-Bad mit Duschkabine gewünscht; ein großes Waschbecken
Ankleidezimmer nicht gewünscht
kein Keller
Zugangsmöglichkeit über die Garage/Carport
Hausentwurf
Von wem stammt die Planung:
-Planer eines Bauunternehmens
Was gefällt besonders? Warum?
Was gefällt nicht? Warum?
Den Carport werden wir aufjedenfall breiter haben wollen als auf dem ersten Grundriss - mind. 4 Meter.
Auffallend ist der fehlende Eingangsbereich, also die eigentliche Haustür. Dies fanden wir erst komisch, lässt uns so aber viele Möglichkeiten im Innenraum, weshalb wir es nach einigen Überlegungen gar nicht so schlecht finden.
Preisschätzung lt Architekt/Planer; Persönliches Preislimit fürs Haus, inkl Ausstattung: ca 260.000 €
favorisierte Heiztechnik: noch nicht besprochen
Wenn Ihr verzichten müsst, auf welche Details/Ausbauten
-könnt Ihr verzichten: Garage - wurde vom Bauträger bereits weg gelassen, um die Lösung ohne Haupteingangsbereich gestalten zu können
-könnt Ihr nicht verzichten: Koch-/Essbereich - Speisekammer an der Küche
Warum ist der Entwurf so geworden, wie er jetzt ist? ZB
Wir wollen keinen komplett offenen Wohn-/Essbereich. Das Wohnzimmer wollen wir deshalb als abgeschlossenen Raum haben.
Was ist die wichtigste/grundlegende Frage zum Grundriss in 130 Zeichen zusammengefasst?
Was haltet Ihr vom fehlenden klassischen Eingangsbereich?
Gerne kritisieren und Verbesserungsvorschläge anbieten. Zunächst einmal geht es um die Lage des Hauses auf dem Grundstück und den Grundriss des EG. Da wir noch am Anfang stehen ist noch vieles änderbar.

wir haben von einem Bauträger ein Grundstück angeboten bekommen und wollen dort gerne unsere künftige Heimat errichten lassen. Das Grundstück liegt am Ende einer Sackgasse in einer verkehrsberuhigten Siedlung(Lückenbebauung).
Ich muss vorneweg sagen, dass wir noch nicht sehr viele Infos vom Bauträger erhalten haben. Wir haben ihm unsere groben Wünsche mitgeteilt und er hat uns einen ersten Entwurf gefertigt. Diesen bisher auch nur für das Erdgeschoss.
Es wäre super, wenn ihr uns helfen könntet, diesen bereits zu beurteilen, bevor wir in der weiteren Planung schon zu weit fortgeschritten sind und dann noch mal alles geändert werden muss.
Die Lage des Hauses auf dem Grundstück kommt daher, dass alle anderen Varianten die wir durchdacht haben zu viel Schatten auf den Rest des Grundstücks werfen würden.
Das auf dem Lageplan noch unbebaute Grundstück wurde mittlerweile mit einem Bungalow bebaut (eingezeichnet). Zwischen dem Bungalow und unserem Grundstück wird ein Carport errichtet.
Bebauungsplan/Einschränkungen
Größe des Grundstücks: ca 750 m²
Hang: Nein
Grundflächenzahl: noch keine Infos erhalten
Geschossflächenzahl: noch keine Infos erhalten
Baufenster, Baulinie und -grenze: noch keine Infos erhalten
Randbebauung: noch keine Infos erhalten
Anzahl Stellplatz: noch keine Infos erhalten
Geschossigkeit: noch keine Infos erhalten
Dachform:
Stilrichtung:
Ausrichtung: s. Bild
Maximale Höhen/Begrenzungen: ?
weitere Vorgaben ?
Anforderungen der Bauherren
Stilrichtung, Dachform, Gebäudetyp: gewünscht war ein Pultdach um möglichst wenig Schrägen zu haben, dies sei lt. Bauträger lt Bebauungsplan nicht möglich, weshalb er ein Satteldach vorgeschlagen hat - wird noch zu klären sein
Keller, Geschosse: kein Keller, 2 Geschosse
Anzahl der Personen, Alter: aktuell 3 (28,28,1), geplant: zweites Kind
Raumbedarf im EG, OG: EG: Gäste-WC, Hauswirtschaftsraum, Küche/Esszimmer, Wohnzimmer; OG: 3 Schlafzimmer, Büro, Bad
Büro: Familiennutzung oder Homeoffice? - Büro, das künftig ab und an als mobiler Arbeitsplatz genutzt werden soll; zunächst einmal aber auch als Gästezimmer genutzt wird
Schlafgäste pro Jahr – alle 3 Monate 2-4 Pers.
offene oder geschlossene Architektur – eher geschlossen
konservativ oder moderne Bauweise: wird wohl ein Mix
offene Küche, Kochinsel: offene Küche zum Esszimmer – freistehende Kochinsel nein; Trennung zum Esszimmer durch eine Theke
Anzahl Essplätze: min. 6, Möglichkeit einer Tafel (große Familie)
Kamin: nein
Musik/Stereowand: im Wohnzimmer ja, dort wo aktuell das Sofa eingezeichnet ist (Wand links Richtung Carport), Sofa dann über Eck Norden und Osten - an die Wand zum Esszimmerhin kommen ggf. Bilder
Balkon, Dachterrasse: nein
Garage, Carport: Garage war gewünscht, der aktuelle Vorschlag gefällt uns aber auch
Nutzgarten, Treibhaus: nein
weitere Wünsche/Besonderheiten/Tagesablauf, gern auch Begründungen, warum dieses oder das nicht sein soll:
Bad – T-Bad mit Duschkabine gewünscht; ein großes Waschbecken
Ankleidezimmer nicht gewünscht
kein Keller
Zugangsmöglichkeit über die Garage/Carport
Hausentwurf
Von wem stammt die Planung:
-Planer eines Bauunternehmens
Was gefällt besonders? Warum?
Was gefällt nicht? Warum?
Den Carport werden wir aufjedenfall breiter haben wollen als auf dem ersten Grundriss - mind. 4 Meter.
Auffallend ist der fehlende Eingangsbereich, also die eigentliche Haustür. Dies fanden wir erst komisch, lässt uns so aber viele Möglichkeiten im Innenraum, weshalb wir es nach einigen Überlegungen gar nicht so schlecht finden.
Preisschätzung lt Architekt/Planer; Persönliches Preislimit fürs Haus, inkl Ausstattung: ca 260.000 €
favorisierte Heiztechnik: noch nicht besprochen
Wenn Ihr verzichten müsst, auf welche Details/Ausbauten
-könnt Ihr verzichten: Garage - wurde vom Bauträger bereits weg gelassen, um die Lösung ohne Haupteingangsbereich gestalten zu können
-könnt Ihr nicht verzichten: Koch-/Essbereich - Speisekammer an der Küche
Warum ist der Entwurf so geworden, wie er jetzt ist? ZB
Wir wollen keinen komplett offenen Wohn-/Essbereich. Das Wohnzimmer wollen wir deshalb als abgeschlossenen Raum haben.
Was ist die wichtigste/grundlegende Frage zum Grundriss in 130 Zeichen zusammengefasst?
Was haltet Ihr vom fehlenden klassischen Eingangsbereich?
Gerne kritisieren und Verbesserungsvorschläge anbieten. Zunächst einmal geht es um die Lage des Hauses auf dem Grundstück und den Grundriss des EG. Da wir noch am Anfang stehen ist noch vieles änderbar.
Das klingt alles sehr unglücklich. Einen Hausentwurf kann man eigentlich erst entwickeln, wenn man das ganze Raumprogramm zusammengestellt und auf die Ebenen verteilt hat. Was hier stattdessen zu sehen ist, ist der Versuch, eine bebaubare Grundfläche irgendwie mit Räumen zu nutzen. Und darauf soll nun - ungewiß was das Dachgeschoss an Volumen noch hergibt - die zweite Hälfte Eures Wohnräumebedarfes aufgebaut werden. Das ist ein Schildbürgerstreich und kann zu nichts führen, das Hand und Fuß hat.
Vermute ich recht als Auslöser, daß Euch irgendein Haus dieses Bauträgers gefallen hat ? - oder war er gar schlicht nur einer in der Nähe ?
Ist er überhaupt ein Bauträger (= verkauft ein bebautes Grundstück, was nicht bedeuten muß, daß der Bau schon angefangen wäre), oder eher ein BauUnternehmer (der zwar auch das Grundstück vermittelt, aber dennoch Haus und Grundstück einzeln) ?
Ich hoffe, Ihr habt noch nichts unterschrieben. Jemand, der einfach blind in die Lostrommel des Grundstücksmarktes greift, um Euch auf dieser Basis einen Hausbau zu verkaufen, ist eher ein Glücksritter als ein kompetenter Partner für das, was der Familie ein Heim sein soll.
Erfahrene und erfolgreiche Bauträger treiben sich in der Losgröße "eine Einfamilienhaus-Einheit" gar nicht herum - eher verzweifelte Bauunternehmer (die im übrigen auch Fertigstellungsbürgschaften allerhöchst angeraten sein lassen).
Stürzt Euch nicht in dieses Verderben, sucht weiter.
https://www.instagram.com/11antgmxde/
https://www.linkedin.com/company/bauen-jetzt/
Vermute ich recht als Auslöser, daß Euch irgendein Haus dieses Bauträgers gefallen hat ? - oder war er gar schlicht nur einer in der Nähe ?
Ist er überhaupt ein Bauträger (= verkauft ein bebautes Grundstück, was nicht bedeuten muß, daß der Bau schon angefangen wäre), oder eher ein BauUnternehmer (der zwar auch das Grundstück vermittelt, aber dennoch Haus und Grundstück einzeln) ?
Ich hoffe, Ihr habt noch nichts unterschrieben. Jemand, der einfach blind in die Lostrommel des Grundstücksmarktes greift, um Euch auf dieser Basis einen Hausbau zu verkaufen, ist eher ein Glücksritter als ein kompetenter Partner für das, was der Familie ein Heim sein soll.
Erfahrene und erfolgreiche Bauträger treiben sich in der Losgröße "eine Einfamilienhaus-Einheit" gar nicht herum - eher verzweifelte Bauunternehmer (die im übrigen auch Fertigstellungsbürgschaften allerhöchst angeraten sein lassen).
Stürzt Euch nicht in dieses Verderben, sucht weiter.
https://www.instagram.com/11antgmxde/
https://www.linkedin.com/company/bauen-jetzt/
Am Eingangsbereich kann ich nichts unklassisches entdecken. Man kommt rein und steht in der Diele wie in fast jedem Haus, dass ich kenne.
Den Start des Grundrisses finde ich schon mal nicht total missglückt. Das Esszimmer ist mir zu schmal und ungemütlich. Das Haus braucht m.E. dort noch mehr Tiefe - auch damit die Küche noch etwas größer wird.
Den Abstellraum unter der Treppe würde ich kicken, die Treppenrichtung umkehren und die Hälfte der Treppe (und den Platz unter der Treppe) dem Hauswirtschaftsraum zuschlagen. Große Schiebetüren zwischen Esstisch und Wohnraum lassen alles gleich viel großzügiger wirken.
Die Diskussion hat allerdings ohne OG noch keinen Sinn.
Die Position des Hauses ganz im Westen verdirbt Euch die Chance auf eine Westterrasse und Sonne am Abend. Aber wenn Ihr schon viel Zeit in diese Überlegung investiert habt, spar ich mir die Tastenanschläge.
Den Start des Grundrisses finde ich schon mal nicht total missglückt. Das Esszimmer ist mir zu schmal und ungemütlich. Das Haus braucht m.E. dort noch mehr Tiefe - auch damit die Küche noch etwas größer wird.
Den Abstellraum unter der Treppe würde ich kicken, die Treppenrichtung umkehren und die Hälfte der Treppe (und den Platz unter der Treppe) dem Hauswirtschaftsraum zuschlagen. Große Schiebetüren zwischen Esstisch und Wohnraum lassen alles gleich viel großzügiger wirken.
Die Diskussion hat allerdings ohne OG noch keinen Sinn.
Die Position des Hauses ganz im Westen verdirbt Euch die Chance auf eine Westterrasse und Sonne am Abend. Aber wenn Ihr schon viel Zeit in diese Überlegung investiert habt, spar ich mir die Tastenanschläge.
kaho674 schrieb:
Den Start des Grundrisses finde ich schon mal nicht total missglückt.Nicht der Grundriss des EG für sich genommen ist schlecht, sondern das methodische Vorgehen *räusper* "höchst fragwürdig", dem Bauherren ein EG zu zeichnen, obwohl noch klärungsbedürftig ist, was in das OG überhaupt hineingeht.Wer schon beim Planen derart grob stümpert, wird einen enttäuschteren Bauherren hinterlassen als der GU vom @R.Hotzenplotz
https://www.instagram.com/11antgmxde/
https://www.linkedin.com/company/bauen-jetzt/
Ihr habt schon Recht. Ohne das OG ist alles schwer zu planen. Auch den Bebauungsplan möchten wir zuerst einmal haben um alle Details zu kennen.
Wir kaufen das Grundstück vom Bauunternehmer und hinterher "müssen" wir dann natürlich mit ihm bauen. Eure grundsätzlichen Zweifel gegen diesen Bauunternehmer kann ich verstehen, so wie es aktuell aussieht, aber letztlich haben wir großes Vertrauen in ihm. Er ist ein typischer Bauunternehmer vom Lande. Ist einer von zwei Bauunternehmern in unserer Region und hat einen sehr guten Ruf. In unserer Stadt hat er gefühlt jedes zweite Haus gebaut. Sein Vorgehen werden wir aufjedenfall kritisch ansprechen und dann wird das auch laufen
Als Lösungsmöglichkeit für dein erwähntes Problem haben wir im Hinterkopf eine Terrasse in der Ostecke des Grundstücks einzurichten.
Wir kaufen das Grundstück vom Bauunternehmer und hinterher "müssen" wir dann natürlich mit ihm bauen. Eure grundsätzlichen Zweifel gegen diesen Bauunternehmer kann ich verstehen, so wie es aktuell aussieht, aber letztlich haben wir großes Vertrauen in ihm. Er ist ein typischer Bauunternehmer vom Lande. Ist einer von zwei Bauunternehmern in unserer Region und hat einen sehr guten Ruf. In unserer Stadt hat er gefühlt jedes zweite Haus gebaut. Sein Vorgehen werden wir aufjedenfall kritisch ansprechen und dann wird das auch laufen
kaho674 schrieb:Das finde ich interessant, versteh es aber noch nicht ganz. Durch diese Variante würde der Platz unter der Treppe, der bisher als Abstellraum/Nische eingezeichnet ist, beim Hauswirtschaftsraum hinzukommen. Was wäre da der Vorteil? Bzw. wie könnte ich diesen Raum dort besser nutzen? So hätte ich ja eine Schräge inkl. Nische, wodurch ich mir eine "Schrankwand" nehme oder versteh ich das falsch?
Den Abstellraum unter der Treppe würde ich kicken, die Treppenrichtung umkehren und die Hälfte der Treppe (und den Platz unter der Treppe) dem Hauswirtschaftsraum zuschlagen.
kaho674 schrieb:Bin auch hier noch offen, jedoch glauben wir es bereits durchdacht zu haben. Eine Position im Südosten würde uns jedoch viel Sonne den Tag über nehmen (keine Südfenster im Erdgeschoss) und das Haus würde zudem einen großen Schatten über einen großen Teil des Grundstücks werfen. Einzig ab späten Nachmittag im Sommer hätten wir dann eine gute Sonnenlage.
Die Position des Hauses ganz im Westen verdirbt Euch die Chance auf eine Westterrasse und Sonne am Abend. Aber wenn Ihr schon viel Zeit in diese Überlegung investiert habt, spar ich mir die Tastenanschläge.
Als Lösungsmöglichkeit für dein erwähntes Problem haben wir im Hinterkopf eine Terrasse in der Ostecke des Grundstücks einzurichten.
Stege90 schrieb:
Ist einer von zwei Bauunternehmern in unserer Region und hat einen sehr guten Ruf. In unserer Stadt hat er gefühlt jedes zweite Haus gebaut.Nun, die Büttenwarderer sind ja nun auch nicht so eine anspruchsvolle Kundschaft https://www.instagram.com/11antgmxde/
https://www.linkedin.com/company/bauen-jetzt/
Ähnliche Themen