Einfamilienhaus (10x8,8qm²) auf 437qm² Grundstück in München

4,00 Stern(e) 14 Votes
Zuletzt aktualisiert 18.11.2025
Sie befinden sich auf der Seite 4 der Diskussion zum Thema: Einfamilienhaus (10x8,8qm²) auf 437qm² Grundstück in München
>> Zum 1. Beitrag <<

J

jay2jay

Um Gottes Willen, wer hat von Haus vergrößern gesprochen? Da hast Du was mißverstanden.
Mit Enge meinte ich die Möglichkeiten auf dem Grundstück. Das ist ja auch etwas verwinkelt. Wäre schön, mal die exakten Maße des Baufensters zu kennen.
Okay, dann war das wirklich ein Missverständnis.
Wir haben wie gesagt noch Reserven, die wir stets im Auge behalten möchten. Die Baumaße für das Haus sind 10x9m. Wie es angewinkelt wird, ist vom Grundriss EG/OG abhängig. Es macht auf dem Grundstück schon Sinn, das zur Str die längere Seite parallel steht.

Da wir den Eingang rechts im Osten haben möchten, würden wir den Grundriss dementsprechend anpassen.

Die exakten Maße von Grundstück stehen wie gesagt noch aus.
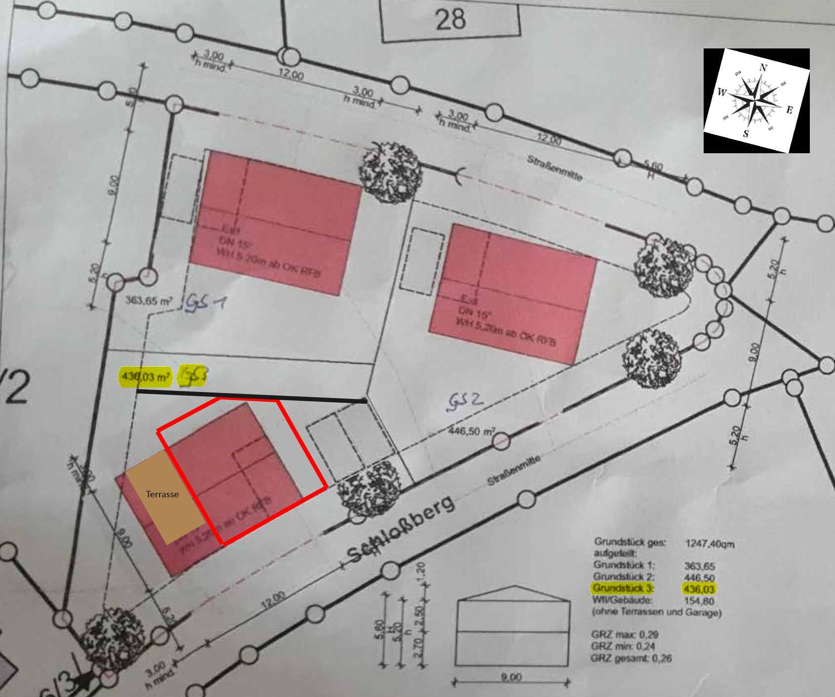
Im Lageplan ist das im Raster größtmögliche Haus rot eingezeichnet. Wir werden etwas "kürzer sein".
 
J

jay2jay

Aber nur dann an relevanter Stelle, wenn man auf Biegen und Brechen Südgarten haben will. Wäre die Website des Hausherstellers nicht so benutzerunfreundlich, hätte ich schon nach geeigneteren Grundmodellen geschaut.
Wieso sollte man nicht unbedingt den Garten zum Süden haben wollen?
Im Norden ist es ja nicht wirklich ideal oder? So wäre das Haus dann ziemlich leicht zu positionieren und zwar ganz unten rechts.
 
11ant

11ant

Dann werden wir das Thema Position Garage auch so priorisieren.
Du meinst dispriorisieren

Wie es angewinkelt wird, ist vom Grundriss EG/OG abhängig.
Du hast ja leider "Bauträgerbindung", und eine für die rückwärtige Grenze bessere Bumerang-Form traue ich dem Hersteller nicht zu.

Wieso sollte man nicht unbedingt den Garten zum Süden haben wollen?
Folge dem Link in Beitrag #7.
 
J

jay2jay

Du hast ja leider "Bauträgerbindung", und eine für die rückwärtige Grenze bessere Bumerang-Form traue ich dem Hersteller nicht zu.
Ehrlich gesagt verstehe ich nicht was du meinst mit "rückwärtige Grenze" und "bessere Bumerang-Form"?
Strwif wird doch wohl die Seiten problemlos spiegeln können, also eine Seite kürzen, die andere länger machen bei gleicher/ähnlicher Zimmeranordnung.
 
11ant

11ant

Ehrlich gesagt verstehe ich nicht was du meinst mit "rückwärtige Grenze" und "bessere Bumerang-Form"?
Ein Bumerang ist eine australische Wurfwaffe, mit deren Form ein Grundriss sich an die Baugrenze an der Gartenseite des Grundstückes anschmiegen würde. Wie Du seine Form damit erreichen wolltest, ein Rechteck in seinem Länge-Breite-Verhältnis zu verändern, erschließt sich mir allerdings nicht.
 
kaho674

kaho674

So wäre das Haus dann ziemlich leicht zu positionieren und zwar ganz unten rechts.
Mir scheint, Du leidest unter Vorstellungsmangel. Das Grundstück ist so klein, dass das Haus im Grunde nur so stehen kann, wie im Lageplan gezeichnet (wenn man diese Form und Größe wählte). Selbst dort guckt eine Ecke schon unzulässig über das Baufeld hinaus. Bei einem Quadrat gibt's dann einen Spielraum von ca. 1m nach links und nach rechts mehr - also quasi nichts.
Zum Bauen kein Problem. Das Haus passt gerade so rein. Allerdings ist Dein Garten dann nur ein Streifen, der sich zerstückelt rings ums Haus verteilt. Terrasse läge praktisch im Zipfel zwischen den Zaunsfeldern. Nicht gerade der Brüller.

Selbst bei den Vorschlägen aus #6 von @RomeoZwo wurde die 3m-Linie im Norden schon deutlich überschritten. Geht m.E. also nicht.

Sehe hier 2 Möglichkeiten: Der Architekt passt Dir Dein Haus an das Grundstück an, um eine schöne Terrasse mit noch etwas Grün drumrum zu haben. Eine Ecke des Hauses muss dafür abgebissen werden. Das sähe dann etwa so aus:


Lageplan eines Grundstücks mit Gebäuden, markierter Terrasse und Gartenflächen


Wenn der Nachbar im Norden ein zugänglicher Typ ist, könnte man vielleicht eine Grenzbebauung aushandeln für die Ecke. Wenn der neu baut, braucht er sicher auch jeden Cent - möglicherweise eine Geldfrage. Aber die abbe Ecke wär m.E. auch kein Drama.
 
Zuletzt aktualisiert 18.11.2025
Im Forum Grundrissplanung / Grundstücksplanung gibt es 2536 Themen mit insgesamt 87965 Beiträgen


Ähnliche Themen zu Einfamilienhaus (10x8,8qm²) auf 437qm² Grundstück in München
Nr.ErgebnisBeiträge
1Grundriss mit Garage auf Grundstück realisierbar? - Seite 429
2Einfamilienhaus 150m2 Grundriss + Planung auf dem Grundstück 24
3Grundriss-Planung und Platzierung - Einfamilienhaus ca. 200qm auf 900qm Grundstück - Seite 255
4Grundriss-Entwurf: Einfamilienhaus mit Keller; 560qm Grundstück - Seite 765
5Meinung zum Grundriss eines geplanten Bauhauses - Seite 323
6Entwurf Grundriss Bungalow - Eure Meinungen bitte! - Seite 214
7Grundstück 1250m², Wohnfläche 200m², 4 Personen Haushalt 25
8Grundriss Bauvorhaben Stadtvilla mit Walmdach 15
9Einfamilienhaus-Planung am Hang (2.700qm Grundstück) - Erfahrungen / Diskussion 42
10Bungalow Grundriss 3 Personen, 130qm, bitte Meinungen… - Seite 2167
11Hausplatzierung auf Grundstück 15
12Grundrissoptimierung Einfamilienhaus 140m2 auf schmalem Grundstück - Seite 261
13Grundriss Einfamilienhaus, leichte Hanglage, NW-Ausrichtung - Seite 674
14Erster Grundriss-Versuch für Kettenhaus auf kleinem Grundstück 94
15Erster Grundriss Einfamilienhaus - Eure Ideen auch zum Grundstück - Seite 333
16Grundstück nicht Rechteckig - Idee für Grundriss gesucht - - Seite 320
17Grundriss Bungalow auf schon genutztem Grundstück 108
18Grundriss Einfamilienhaus, 2 Vollgeschosse ca. 180qm, 600qm Grundstück - Seite 756
19Grundriss Einfamilienhaus 133qm Grundstück 850qm 16
20Grundriss Einfamilienhaus ca. 300qm, Grundstück 780qm 24

Oben