ᐅ Einfamilienhaus 1,5 Geschossig, 155 qm
Erstellt am: 04.01.25 15:20
Hallo zusammen,
wir würden gerne unseren Entwurf mit euch teilen, um Feedback und Verbesserungsvorschläge zu erhalten und etwaige Probleme aufzudecken.
Mit dem optimierten Entwurf möchten wir zu Bauunternehmen gehen und diese anfragen. Alle angefragten Architekten haben eine zu lange Wartezeit, da wir im Frühjahr eine Förderung beantragen müssen würde das zeitlich leider nicht funktionieren.
Was wollen wir bauen?
Einfamilienhaus mit max. 160 m² nach Wohnflächenverordnung (also Terrasse zählt anteilig mit) um für eine Förderung in Frage zu kommen.
Bebauungsplan/Einschränkungen
Größe des Grundstücks: 645 m²
Hang: ja, leicht. Auf die Gesamtlänge des Grundstücks von ca. 28 m etwa 1,5 – 2 m ansteigend von der Straße (Süden) hoch
Grundflächenzahl: 0,4
Geschossflächenzahl: 0,8
Baufenster, Baulinie und -grenze: 2,5 m oben und unten (von Straße aus betrachtet) ist die Baugrenze, Dachvorsprünge dürfen bis max. 1 m unter Einhaltung der Abstandsvorschriften der Landesbauordnung BW über die Baugrenzen hinausragen. Garagen dürfen außerhalb der überbaubaren Flächen errichtet werden
Randbebauung: Nachbargarage westlich auf Grenze, siehe Lageplan. Beide Nachbarn östlich & westlich haben bereits gebaut, auf der anderen Straßenseite südlich ist noch ein freies Baugrundstück. Nördlich ist ein Feld und keine Bebauung geplant.
Anzahl Stellplatz: 2, nach Möglichkeit Doppelgarage
Geschossigkeit: 2 möglich
Dachform: frei wählbar
Stilrichtung: frei wählbar
Ausrichtung: SW
Maximale Höhen/Begrenzungen: max. Höhe von 8,5 m gemessen von der Erdgeschossfußbodenhöhe bis zum höchsten Punkt der Dachkonstruktion (bei Dächern bis 7° nur 7,5 m Höhe)
weitere Vorgaben: Erdgeschossfußbodenhöhe max. 0,5 m über Straßenniveau; Photovoltaik-Pflicht (BW), Zisternen-Pflicht (ca. 6 m³)
Anforderungen der Bauherren
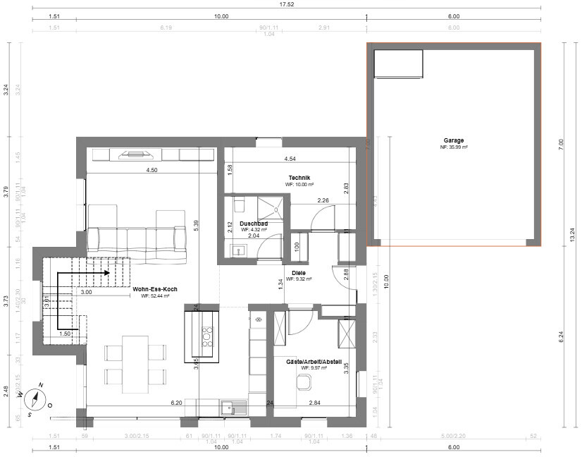
Stilrichtung, Dachform, Gebäudetyp: klassisches Satteldachhaus, 30 ° Dachneigung, 1,4 m Kniestock
Keller, Geschosse: kein Keller, 1,5 Geschosse
Anzahl der Personen, Alter: 3 Personen, 32, 28, 0
Raumbedarf im EG, OG:
EG: Wohn-Ess-Küche ca. 45 m², Büro/Gast ca. 10 m², Technik ca. 8-10 m², Duschbad ca. 4 m²
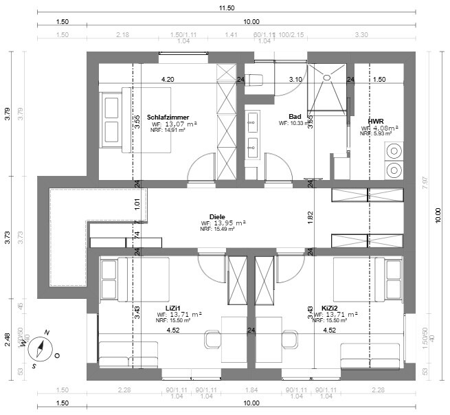
OG (alles NRF): Schlafzimmer ca. 14 m², Bad mit Hauswirtschaftsraum ca. 16 m², 2x Kinderzimmer zu je ca. 16 m²
Büro: Familiennutzung oder Homeoffice?
Da wir aktuell nur mit einem Kind planen, soll das Büro im EG als Abstell- & Gästezimmer dienen, das zweite „Kinderzimmer“ als Büro. Gäste ca. 15/Jahr, Homeoffice an ca. 3 Tagen/Woche
offene oder geschlossene Architektur: offen
konservativ oder moderne Bauweise: mehr oder weniger modern
offene Küche, Kochinsel: ja
Anzahl Essplätze: normal 4, bis 12 erweiterbar
Kamin: nein
Musik/Stereowand: nein
Balkon, Dachterrasse: nein
Garage, Carport: ja, Doppelgarage nach Möglichkeit mit min. 6 x 7 m (BxL)
Nutzgarten, Treibhaus: nein
weitere Wünsche/Besonderheiten/Tagesablauf, gern auch Begründungen, warum dieses oder das nicht sein soll:
Hausentwurf
Von wem stammt die Planung: Do-it-Yourself
Was gefällt besonders? Warum?
Preisschätzung laut Architekt/Planer: -
Persönliches Preislimit fürs Haus, inkl. Ausstattung: 520 000 € für alles außer Außenanlagen, muss aber über Eigenleistungen verringert werden.
Favorisierte Heiztechnik: noch offen, keine fossilen Energieträger möglich, wahrscheinlich Luft-Wasser-Wärmepumpe.
Wenn Ihr verzichten müsst, auf welche Details/Ausbauten
könnt Ihr verzichten:
Warum ist der Entwurf so geworden, wie er jetzt ist?
Wir waren bei drei Bauunternehmen, haben teilweise gute Pläne erhalten (aber zu groß) und teilweise Standardentwürfe, die überhaupt nicht gepasst haben. Deswegen haben wir uns intensiv mit Grundrissen auseinandergesetzt und versucht, einen Entwurf zu schaffen, bei dem wir möglichst wenig Kompromisse eingehen müssen. Aufgrund unseres Wunsches, seitlich ins Haus zu gelangen und den Wohn-Ess-Kochbereich im Südwesten des Hauses als L angeordnet zu haben und der beiden Kinderzimmer in südlicher Ausrichtung mit Verzicht auf Gauben und Zwerggiebel, haben wir keine 1,5-geschossigen Entwürfe von z.B. Fertighausanbietern gefunden.
Nach vielen anderen Entwürfen haben wir letzten Endes diesen gezeichnet, der uns grundsätzlich am besten gefällt und gerade noch so von der Größe okay ist. Der Erker für die Treppe führt sicher zu Mehrkosten, die wir aber durch den Verzicht auf ein Flachdach und die Verlängerung des Dachs hoffen, zu verringern.
Die Geschosshöhe des EGs ist nur eine Annahme, die Treppe ist geplant auf die Geschosshöhe 2,83 m, Auftritt 26 cm, Steigung 18 cm.
Neben Hinweisen und Anmerkungen zum Grundriss stellen wir uns außerdem die folgenden Fragen:
Seid bitte gnädig, es ist mein erster Post und








wir würden gerne unseren Entwurf mit euch teilen, um Feedback und Verbesserungsvorschläge zu erhalten und etwaige Probleme aufzudecken.
Mit dem optimierten Entwurf möchten wir zu Bauunternehmen gehen und diese anfragen. Alle angefragten Architekten haben eine zu lange Wartezeit, da wir im Frühjahr eine Förderung beantragen müssen würde das zeitlich leider nicht funktionieren.
Was wollen wir bauen?
Einfamilienhaus mit max. 160 m² nach Wohnflächenverordnung (also Terrasse zählt anteilig mit) um für eine Förderung in Frage zu kommen.
Bebauungsplan/Einschränkungen
Größe des Grundstücks: 645 m²
Hang: ja, leicht. Auf die Gesamtlänge des Grundstücks von ca. 28 m etwa 1,5 – 2 m ansteigend von der Straße (Süden) hoch
Grundflächenzahl: 0,4
Geschossflächenzahl: 0,8
Baufenster, Baulinie und -grenze: 2,5 m oben und unten (von Straße aus betrachtet) ist die Baugrenze, Dachvorsprünge dürfen bis max. 1 m unter Einhaltung der Abstandsvorschriften der Landesbauordnung BW über die Baugrenzen hinausragen. Garagen dürfen außerhalb der überbaubaren Flächen errichtet werden
Randbebauung: Nachbargarage westlich auf Grenze, siehe Lageplan. Beide Nachbarn östlich & westlich haben bereits gebaut, auf der anderen Straßenseite südlich ist noch ein freies Baugrundstück. Nördlich ist ein Feld und keine Bebauung geplant.
Anzahl Stellplatz: 2, nach Möglichkeit Doppelgarage
Geschossigkeit: 2 möglich
Dachform: frei wählbar
Stilrichtung: frei wählbar
Ausrichtung: SW
Maximale Höhen/Begrenzungen: max. Höhe von 8,5 m gemessen von der Erdgeschossfußbodenhöhe bis zum höchsten Punkt der Dachkonstruktion (bei Dächern bis 7° nur 7,5 m Höhe)
weitere Vorgaben: Erdgeschossfußbodenhöhe max. 0,5 m über Straßenniveau; Photovoltaik-Pflicht (BW), Zisternen-Pflicht (ca. 6 m³)
Anforderungen der Bauherren
Stilrichtung, Dachform, Gebäudetyp: klassisches Satteldachhaus, 30 ° Dachneigung, 1,4 m Kniestock
Keller, Geschosse: kein Keller, 1,5 Geschosse
Anzahl der Personen, Alter: 3 Personen, 32, 28, 0
Raumbedarf im EG, OG:
EG: Wohn-Ess-Küche ca. 45 m², Büro/Gast ca. 10 m², Technik ca. 8-10 m², Duschbad ca. 4 m²
OG (alles NRF): Schlafzimmer ca. 14 m², Bad mit Hauswirtschaftsraum ca. 16 m², 2x Kinderzimmer zu je ca. 16 m²
Büro: Familiennutzung oder Homeoffice?
Da wir aktuell nur mit einem Kind planen, soll das Büro im EG als Abstell- & Gästezimmer dienen, das zweite „Kinderzimmer“ als Büro. Gäste ca. 15/Jahr, Homeoffice an ca. 3 Tagen/Woche
offene oder geschlossene Architektur: offen
konservativ oder moderne Bauweise: mehr oder weniger modern
offene Küche, Kochinsel: ja
Anzahl Essplätze: normal 4, bis 12 erweiterbar
Kamin: nein
Musik/Stereowand: nein
Balkon, Dachterrasse: nein
Garage, Carport: ja, Doppelgarage nach Möglichkeit mit min. 6 x 7 m (BxL)
Nutzgarten, Treibhaus: nein
weitere Wünsche/Besonderheiten/Tagesablauf, gern auch Begründungen, warum dieses oder das nicht sein soll:
- Vom Sofa soll die Küche nicht einsehbar sein (wenn auf dem Sofa sitzend)
- Wohn-Ess-Bereich mit Küche soll das „Herzstück“ des Hauses sein
- Duschbad und Treppe (wenn möglich auch Gästezimmer) sollen nicht durch die Schmutzfläche vor der Eingangstür erreichbar sein
- Ausreichend Garderobenfläche
- Waschmaschine & Trockner im Bad im OG, weil dort die Wäsche anfällt, aber durch Flur getrennt zu den Kinderzimmern
- Giebel oder Gaube in südöstliche (Straßenseite) Richtung aufgrund Aussicht
- Verzicht auf Gauben uvm. aus Kostengründen
- Terrasse hauptsächlich im Südwesten, um auch Abendsonne zu erhalten. Diese wird später mit einer Pergola überdacht. Eine 3m-Hebe-Schiebetür wäre mein Traum
- EG mit mindestens 2,5 m Raumhöhe, OG 2,4 m ok
Hausentwurf
Von wem stammt die Planung: Do-it-Yourself
Was gefällt besonders? Warum?
- Großzügiger Wohn-Ess-Kochbereich, Küche vom Wohnzimmer nicht einsehbar
- Lichtdurchflutete Aufenthaltsräume
- Nachträgliche Abtrennung des Wohnzimmers durch z.B. Glaselement möglich
- Stellfläche im Wohnzimmer gegeben
- Modern durch offene Treppe
- Treppe vom Wohnraum aus zugänglich (natürlicher Weg ins Bad oder Bett)
- Sichtachse Eingang à Garten durch Fenster hinter der Treppe, ohne Sicht auf Eingangstüre zu haben aus den Räumen raus
- Umsetzung grundsätzlicher Wünsche (Raumanzahl, Ausrichtung der Räume, Funktionalität u.ä.)
- Wenig tatsächliche Flurfläche im EG
- Keine Abgrenzung zum OG möglich
- „Kopffreiheit“ bis zum ersten Podest der Treppe kritisch
- Überstand vor dem linken Kinderzimmer verlorene Fläche
- Kein Fenster im Duschbad im EG
- Schmutzkorridor & relevante Räume getrennt
- Sollte doch irgendwann ein zweites Kind kommen, wenig Abstellfläche
- Mit ca. 155 m² relativ groß (-> teuer)
- Außenansicht, aber die haben wir bisher erst mal noch nicht als Hauptaugenmerk
- Terrasse südwestlich, aber mögliche Terrassentür für Hebe-Schiebe-Element zu klein (aktuell 1,5 m), deswegen dieses Element südlich daneben (geplant 3 m)
- Keine Speisekammer, hier würde ich im Technikraum einen kleinen schrank & Kühl-Gefrier-Kombi vorsehen falls platztechnisch irgendwie möglich
- Sehr lange Einfahrt
- Leider relativ nah am Nachbargrundstück im Südwesten
Preisschätzung laut Architekt/Planer: -
Persönliches Preislimit fürs Haus, inkl. Ausstattung: 520 000 € für alles außer Außenanlagen, muss aber über Eigenleistungen verringert werden.
Favorisierte Heiztechnik: noch offen, keine fossilen Energieträger möglich, wahrscheinlich Luft-Wasser-Wärmepumpe.
Wenn Ihr verzichten müsst, auf welche Details/Ausbauten
könnt Ihr verzichten:
- Großzügiges Gäste-/Arbeits-/Abstellzimmer
- Dusche im EG
- Hauswirtschaftsraum im OG
- Seitlicher Eingang ins Haus
- Großzügige Wohn-Ess-Küche
Warum ist der Entwurf so geworden, wie er jetzt ist?
Wir waren bei drei Bauunternehmen, haben teilweise gute Pläne erhalten (aber zu groß) und teilweise Standardentwürfe, die überhaupt nicht gepasst haben. Deswegen haben wir uns intensiv mit Grundrissen auseinandergesetzt und versucht, einen Entwurf zu schaffen, bei dem wir möglichst wenig Kompromisse eingehen müssen. Aufgrund unseres Wunsches, seitlich ins Haus zu gelangen und den Wohn-Ess-Kochbereich im Südwesten des Hauses als L angeordnet zu haben und der beiden Kinderzimmer in südlicher Ausrichtung mit Verzicht auf Gauben und Zwerggiebel, haben wir keine 1,5-geschossigen Entwürfe von z.B. Fertighausanbietern gefunden.
Nach vielen anderen Entwürfen haben wir letzten Endes diesen gezeichnet, der uns grundsätzlich am besten gefällt und gerade noch so von der Größe okay ist. Der Erker für die Treppe führt sicher zu Mehrkosten, die wir aber durch den Verzicht auf ein Flachdach und die Verlängerung des Dachs hoffen, zu verringern.
Die Geschosshöhe des EGs ist nur eine Annahme, die Treppe ist geplant auf die Geschosshöhe 2,83 m, Auftritt 26 cm, Steigung 18 cm.
Neben Hinweisen und Anmerkungen zum Grundriss stellen wir uns außerdem die folgenden Fragen:
- Ist die Größe des Wohnbereichs inkl. Treppe statisch ohne Probleme möglich?
- Wie kompliziert & teuer wäre eine Lüftung für das Duschbad im EG?
- Reicht die „Kopffreiheit“ für die Treppe?
- Lohnen sich Kniestockfenster, wie im Kinderzimmer angedacht? Vorteile sehen wir im besseren Lichteinfall für eine kleine Sitzgelegenheit und Lüftungsmöglichkeiten durch ein Kippfenster
Seid bitte gnädig, es ist mein erster Post und
Mone_04 schrieb:
Auf die Gesamtlänge des Grundstücks von ca. 28 m etwa 1,5 – 2 m ansteigend von der Straße (Süden) hochGibt es einen Lageplan mit Höhenpunkten oder zieht sich dieser Anstieg wirklich ganz gleichmäßig über die Länge hin?Was fällt auf am Plan:
- Technik-Anschlussraum weitestmöglich von Straße entfernt ... und Zugang für Leitungen ist überbaut, entweder durch Einfahrt oder durch Bodenplatte
- Einfahrt sehr lang = große Kosten
- Treppenposition finde ich mehr als ungünstig, würde sich bei gewollter Südwest-Ausrichtung des Hauses im Norden anbieten.
- Dafür, dass Platz etwas knapp ist, sind unheimlich viele Flur- bzw. reine Laufflächen (Wohn-/Essbereich zur Treppe) geschaffen
- Treppenaufgang in dem Erker wie angedacht technisch wohl nicht möglich, dazu müsste man mal den Höhenschnitt dort sehen
- Sofaposition eher ungemütlich mit dem Rücken zur Lauffläche zwischen den Geschossen
- Esstisch für 12 Person erweitert sperrt dann auch den Aufgang nach oben
- Garage mit 6m Außenbreite mehr als knapp für 2 Autos und Fahrräder, die dann an den Autos vorbei geführt werden müssen.
- Wo Mülltonnen?
- Lüftungskonzept - Kontrollierte-Wohnraumlüftung
- Hauslage auf dem Grundstück
- seitlicher Eingang erfordert in aller Regel ein kleines Podest oder eine Stufe und das wird bei der Einfahrt zu einer Doppelgarage für 2 Autos schon mal sehr eng.
- Ist Photovoltaik angedacht? Ost und West?
H
hanghaus202304.01.25 16:56Mone_04 schrieb:
Was gefällt nicht? Warum?
- Keine Abgrenzung zum OG möglich
- „Kopffreiheit“ bis zum ersten Podest der Treppe kritisch
- Überstand vor dem linken Kinderzimmer verlorene Fläche
- Kein Fenster im Duschbad im EG
- Schmutzkorridor & relevante Räume getrennt
- Sollte doch irgendwann ein zweites Kind kommen, wenig Abstellfläche
- Mit ca. 155 m² relativ groß (-> teuer)
- Außenansicht, aber die haben wir bisher erst mal noch nicht als Hauptaugenmerk
- Terrasse südwestlich, aber mögliche Terrassentür für Hebe-Schiebe-Element zu klein (aktuell 1,5 m), deswegen dieses Element südlich daneben (geplant 3 m)
- Keine Speisekammer, hier würde ich im Technikraum einen kleinen Schrank & Kühl-Gefrier-Kombi vorsehen falls platztechnisch irgendwie möglich
- Sehr lange Einfahrt
- Leider relativ nah am Nachbargrundstück im Südwesten
Wenn das Alles nicht gefällt kann ich nur zum Papierkorb raten. Das gehört neu geplant.Warum plant man es dann so, wenn man eh schon weiss das es nicht gefällt.
Es gibt im Netz so viele Grundrisse. Warum nimmt man nicht einen Standardentwurf vom Fertighausbauer?
Als erstes anfangen mit Vermessung des Grundstücks. So grob 1,5-2 m ist für eine Planung nicht ausreichend. Zur Not hilft das Geoportal.
Wenn Du hier Hilfe haben willst, solltest den Bebauungsplan hier zeigen oder nennen. Bitte keinen Link.
155m2 sind mMn nicht im Budget.
kbt09 schrieb:
Gibt es einen Lageplan mit Höhenpunkten oder zieht sich dieser Anstieg wirklich ganz gleichmäßig über die Länge hin?
hanghaus2023 schrieb:
Als erstes anfangen mit Vermessung des Grundstücks. So grob 1,5-2 m ist für eine Planung nicht ausreichend. Zur Not hilft das Geoportal.
Dank des Tipps von hanghaus2023 mit dem Geoportal habe ich gemessen und der Anstieg ist nicht ganz gleichmäßig. Von der Straße bis zur Hälfte des Grundstücks sind es 0,5m und bis zum nördlichen Ende weitere 0,9m Höhendifferenz. Einen Plan gibt es leider nicht.
kbt09 schrieb:
- Technik-Anschlussraum weitestmöglich von Straße entfernt ... und Zugang für Leitungen ist überbaut, entweder durch Einfahrt oder durch Bodenplatte
- Einfahrt sehr lang = große Kosten
Das stimmt leider, ist uns auch schon aufgefallen. Die Position des Hauses und der Garage ist so gewählt um möglichst viel Südgarten und keine Schattenflächen durch die Garage zu bekommen. Würdest du die Garage vor das Haus stellen um einen Korridor für die Leitungen neben dran zu erhalten?
kbt09 schrieb:
- Treppenposition finde ich mehr als ungünstig, würde sich bei gewollter Südwest-Ausrichtung des Hauses im Norden anbieten.
- Dafür, dass Platz etwas knapp ist, sind unheimlich viele Flur- bzw. reine Laufflächen (Wohn-/Essbereich zur Treppe) geschaffen
- Treppenaufgang in dem Erker wie angedacht technisch wohl nicht möglich, dazu müsste man mal den Höhenschnitt dort sehen
- Sofaposition eher ungemütlich mit dem Rücken zur Lauffläche zwischen den Geschossen
Die Treppenposition muss definitiv nicht an der gezeigten Position sein. Wir haben eine Nordausrichtung auch schon angedacht, dann allerdings keinen Grundriss gefunden der die restlichen Anforderungen abdeckt. Die Positionierung im Norden hat immer zu einem sehr breiten Grundriss geführt welcher wiederum zu Lasten der Terrassenfläche im Westen ginge.
Die Laufflächen/Flurflächen im Ess- / Wohnbereich ist der Option für den Tisch für 12 Personen geschuldet. Ist natürlich nicht ideal.
Welcher Schnitt wäre notwendig um eine Einschätzung bzgl. der Umsetzung der Treppe treffen zu können?
Sofaposition könnte noch angepasst werden (z.B. unters Fenster)
kbt09 schrieb:
- Garage mit 6m Außenbreite mehr als knapp für 2 Autos und Fahrräder, die dann an den Autos vorbei geführt werden müssen.
- Wo Mülltonnen?
Wie breit müsste die Garage dann sein?
Bzgl. Mülltonnenposition hatten wir eine Diskussion und sind zum Schluss gekommen, dass diese wohl in Straßennähe in einem Kasten untergebracht werden...
kbt09 schrieb:
- Lüftungskonzept - Kontrollierte-Wohnraumlüftung
- Hauslage auf dem Grundstück
- seitlicher Eingang erfordert in aller Regel ein kleines Podest oder eine Stufe und das wird bei der Einfahrt zu einer Doppelgarage für 2 Autos schon mal sehr eng.
- Ist Photovoltaik angedacht? Ost und West?
Vermutlich dezentrale Lüftung aus Kostengründen. Hast du hier eine Empfehlung?
Hauslage wie oben beschreiben.
Der Bereich unmittelbar vor der Garage soll noch auf Haus- / Garagenniveau eingeebnet werden, dann würden wir keine Stufe mehr benötigen richtig?
Photovoltaik muss laut Pflicht in BW drauf, wo genau das hier vorgeschrieben wird müssen wir nochmals genau schauen.
hanghaus2023 schrieb:
Wenn das Alles nicht gefällt kann ich nur zum Papierkorb raten. Das gehört neu geplant.
Warum plant man es dann so, wenn man eh schon weiss das es nicht gefällt.
Es gibt im Netz so viele Grundrisse. Warum nimmt man nicht einen Standardentwurf vom Fertighausbauer?
Als erstes anfangen mit Vermessung des Grundstücks. So grob 1,5-2 m ist für eine Planung nicht ausreichend. Zur Not hilft das Geoportal.
Wenn Du hier Hilfe haben willst, solltest den Bebauungsplan hier zeigen oder nennen. Bitte keinen Link.
155m2 sind mMn nicht im Budget.Die von uns angegebenen Punkte sind Keine Dinge die für uns NoGOs sind, sondern Punkte bei denen wir evtl. noch Verbesserungspotenzial sehen bzw. uns Tipps erhoffen.
Leider haben wir aus vielen durchforsteten Katalogen keinen Standardentwurf gefunden, der uns besser passt. Gerne hier Vorschläge.
Können wir dir den Bebauungsplan zusenden?
Wie viel qm siehst du in unserem Budget?
Zunächst einmal meine Anerkennung für Deinen wohlvorbereiteten Thread und auch wenn das Haus so wohl nicht machbar sein wird. An versch. Stellen sieht man aber doch, dass Du Dir schon vielerlei Gedanken gemacht hast.
Tatsächlich sehe ich das auch wie @hanghaus2023, dass ihr im Netz vlt. doch einen passenden Grundriss finden könnt, denn Eure Anforderungen sind ja nicht besonders und auch das Grundstück scheint nicht das Problem zu sein, außer dass es Nordseite hat. Unsere Nachbarn haben auch etwa Nordseite
Ich denke, dass das angesprochene Budget zunächst eindeutig geklärt sein muss, also wirklich alle Nebenkosten eingeschlossen, sonst sind es Luftschlösser.
Ich denke, es macht auch Sinn, mal bei den Nachbarn zumindest die Hausplatzierung anzuschauen, und auch was bzw. wie die so Manches gelöst haben und auch wie es in Realität wirkt.
Mone_04 schrieb:Das alleine wäre günstig zu lösen, sofern Du sinnvollerweise aber eine Kontrollierte-Wohnraumlüftung verbaust, ist das Problem ohnehin gelöst. Ich denke aber, dass der Grundriss noch oftmals verändert werden wird, insofern würde ich mir solche Gedanken erst dann machen, wenn sie dran sind. Mein Versuch wäre, die zentrale Kontrollierte-Wohnraumlüftung ins Bidget zu bekommen; notfalls muss abgespeckt werden aber vlt. finden sich dann auch andere Streichpunkte.
Wie kompliziert & teuer wäre eine Lüftung für das Duschbad im EG?
Tatsächlich sehe ich das auch wie @hanghaus2023, dass ihr im Netz vlt. doch einen passenden Grundriss finden könnt, denn Eure Anforderungen sind ja nicht besonders und auch das Grundstück scheint nicht das Problem zu sein, außer dass es Nordseite hat. Unsere Nachbarn haben auch etwa Nordseite
kbt09 schrieb:Ich glaube auch, dass dies ein wichtige Entscheidung ist. Eine teure Garage würde ich mir nicht leisten, ein großzügiger Carport mit angrenzendem Abstellraum lässt sich erheblich günstiger und mMn auch schicker umsetzen; dazu kann da auch mehr Eigenleistung einfließen oder man kann es nach und nach weiterbauen, wenn das Geld zur Verfügung steht.
Hauslage auf dem Grundstück
Ich denke, dass das angesprochene Budget zunächst eindeutig geklärt sein muss, also wirklich alle Nebenkosten eingeschlossen, sonst sind es Luftschlösser.
Ich denke, es macht auch Sinn, mal bei den Nachbarn zumindest die Hausplatzierung anzuschauen, und auch was bzw. wie die so Manches gelöst haben und auch wie es in Realität wirkt.
Arauki11 schrieb:
Zunächst einmal meine Anerkennung für Deinen wohlvorbereiteten Thread und auch wenn das Haus so wohl nicht machbar sein wird. An versch. Stellen sieht man aber doch, dass Du Dir schon vielerlei Gedanken gemacht hast.Vielen Dank erstmal dafür - ich habe tatsächlich schon sehr viel Zeit investiert und auch hier im Forum sehr viel gelesen.
Hast du mir einige konkrete Anhaltspunkte, weswegen das Haus wohl nicht machbar ist?
Arauki11 schrieb:
Das alleine wäre günstig zu lösen, sofern Du sinnvollerweise aber eine Kontrollierte-Wohnraumlüftung verbaust, ist das Problem ohnehin gelöst. Ich denke aber, dass der Grundriss noch oftmals verändert werden wird, insofern würde ich mir solche Gedanken erst dann machen, wenn sie dran sind. Mein Versuch wäre, die zentrale Kontrollierte-Wohnraumlüftung ins Bidget zu bekommen; notfalls muss abgespeckt werden aber vlt. finden sich dann auch andere Streichpunkte.Wie viel Budget muss denn für eine Kontrollierte-Wohnraumlüftung eingeplant werden? Wir hatten von einem der Bauunternehmer eine Schätzung von 22 500 €, ist das realistisch? Wir hatten die Hoffnung, das einsparen oder zumindest abspecken zu können über eine dezentrale Lüftung, ein anderes Bauunternehmen sprach hier von etwa 8 000 € (die Abluft aber tatsächlich durch Luftauslässe aus den Räumen ausströmend lassen - klingt für mich auch nicht sehr energiesparend, aber mit Lüftung habe ich mich noch nicht auseinandergesetzt).
Arauki11 schrieb:
Tatsächlich sehe ich das auch wie @hanghaus2023, dass ihr im Netz vlt. doch einen passenden Grundriss finden könnt, denn Eure Anforderungen sind ja nicht besonders und auch das Grundstück scheint nicht das Problem zu sein, außer dass es Nordseite hat. Unsere Nachbarn haben auch etwa NordseiteIch gehe nochmal auf die Suche nach Grundrissen. Viele haben aber den Treppenaufgang im Schmutzbereich vor der Haustüre oder die Haustüre im Norden bei Wohnbereich im Süden, was beides für uns ein NoGo ist.
Nichtsdestotrotz würden wir uns weiter über Kritik zu unserem Grundriss freuen!
Garten im Norden würde das natürlich alles bedeutend günstiger machen, aber wollen wir eigentlich vermeiden. Das Haus wird auf 800 m NN stehen, also sind die Sommer (noch) nicht so heiß und die Entscheidung so begründet wie wenn man tiefer wohnt.
Arauki11 schrieb:
Ich glaube auch, dass dies ein wichtige Entscheidung ist. Eine teure Garage würde ich mir nicht leisten, ein großzügiger Carport mit angrenzendem Abstellraum lässt sich erheblich günstiger und mMn auch schicker umsetzen; dazu kann da auch mehr Eigenleistung einfließen oder man kann es nach und nach weiterbauen, wenn das Geld zur Verfügung steht.Um Kosten zu sparen würden wir zunächst auch nur das Fundament bauen lassen und die Garage später oder ein Eigenleistung als z.B. Holzständer bauen. Wie wir das mit dem Dach der Garage lösen würden, steht aber noch in den Sternen. Oder auf eine Aktionsgarage warten. Carport wäre nur wenn es wirklich gar nicht geht eine Möglichkeit, da wir durch die 800 mNN auch harte Winter haben und das Kratzen vermeiden wollen.
Arauki11 schrieb:
Ich denke, dass das angesprochene Budget zunächst eindeutig geklärt sein muss, also wirklich alle Nebenkosten eingeschlossen, sonst sind es Luftschlösser.Wir machen kommende Woche nach Möglichkeit einen Termin bei der Bank, um die Finanzierung besser einschätzen zu können.
Wir haben, nebenbei gemerkt, auch von einem Bauunternehmen eine Kostenschätzung für 163 m² für 540 000 € inkl. Nebenkosten erhalten (Festpreis). Dieses Bauunternehmen hat in diesem Baugebiet bereits ca. 15 Häuser gebaut, kann das hoffentlich ganz gut einschätzen.
Arauki11 schrieb:
Ich denke, es macht auch Sinn, mal bei den Nachbarn zumindest die Hausplatzierung anzuschauen, und auch was bzw. wie die so Manches gelöst haben und auch wie es in Realität wirkt.Die meisten Nachbarn haben das Haus ganz hinten platziert, und die Garage/Carport rechts neben dem Haus. Nur unser direkter Nachbar hat nach hinten noch ein paar Meter Platz, und die Garage seitlich vor dem Haus platziert. Das Haus versuche ich mal in Paint zu skizzieren.Ähnliche Themen