ᐅ Grundriss Halboffene Küche mit großem Essbereich - Detailfragen
Erstellt am: 01.05.15 11:50
B
Bieber0815Ich würde an deiner Stelle planunten eine Hochschrankzeile hinsetzen und dann einen Zweizeiler mit Halbinsel planen. Dann könntest du mit dem Gesicht zu den Gästen kochen und zwischen den Zeilen könnte die Tür zur Terrasse sein. Der obere Wandstummel muss dann natürlich komplett weg.

Bei einer "offenen" Küche hast du immer das "Problem" das man vom esstisch in die Küche sehen kann... Aber das hast du auch bei einer "Ess-Küche".
Wenn du schöne Hochschränke hast, dann fehlen die die Wandschränke bestimmt bald gar nicht mehr. Ich könnte mir auch vorstellen das ihr alles Geschirr und alle Gläser einfach auf der Rückseite der Halbinsel, zum Esstisch schauend unterbringen könnt.
Bei einer "offenen" Küche hast du immer das "Problem" das man vom esstisch in die Küche sehen kann... Aber das hast du auch bei einer "Ess-Küche".
Wenn du schöne Hochschränke hast, dann fehlen die die Wandschränke bestimmt bald gar nicht mehr. Ich könnte mir auch vorstellen das ihr alles Geschirr und alle Gläser einfach auf der Rückseite der Halbinsel, zum Esstisch schauend unterbringen könnt.
Haben auch ähnlichen Grundriss mit offener Küche. Wir sind auch am Überlegen ob wir eine Glasschiebetür anbringen, die man dann nach Bedarf zuschieben kann. Damit Gäste eventuelles Chaos in der Küche nicht sehen. Laut unserer Recherche kostet das noch mal um die 3000 € ( wenns halbwegs gut aussehen soll ). Und da braucht man die Wand kanten.
LG Grüsse Nadin
LG Grüsse Nadin
Das geht richtig gut ☺. Wir haben eine bedruckte, die Licht durchlässt, aber kein Küchenchaos. Ich hatte sie schon mal für einen ähnlichen Beitrag hier fotografiert. Mal sehen ob ich ihn so schnell finde. 3000€ hat unsere Glasschiebetür übrigens nicht gekostet. Sie läuft aber auch auf die Wand und nicht in die Wand.
Sylvia
Sylvia
B
Bieber081506.05.15 00:17@Computersylvia, hättest Du zufällig Lust, noch ein neues Foto einzustellen, auf dem ein kleines bisschen mehr zu sehen ist? Ich finde das auf den ersten Blick sehr gelungen, gleichwohl brauch man den Platz auf der Wand.
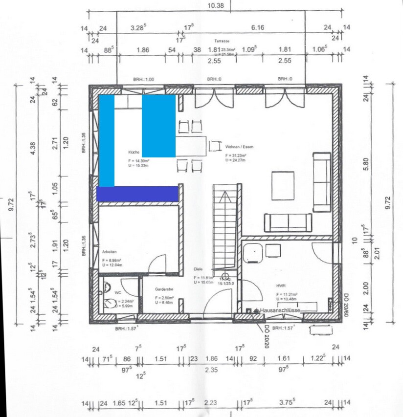
Unser Favorit ist die teiloffene Variante mit einer Wand Grundriss-unten und oben offen. Den Ausgang zur Terrasse haben wir mittig im Wohn-Ess-Bereich. Es ist hier nur eine Außentür gewünscht.
Die Küchenplanung steht noch aus, müssen wir schauen.
Unser Favorit ist die teiloffene Variante mit einer Wand Grundriss-unten und oben offen. Den Ausgang zur Terrasse haben wir mittig im Wohn-Ess-Bereich. Es ist hier nur eine Außentür gewünscht.
Die Küchenplanung steht noch aus, müssen wir schauen.
Was genau möchtest Du denn gern sehen? Wenn das möglich ist fotografiere ich heute Abend noch mal die gewünschte Perspektive.
Jetzt muß ich erst mal Hypothekenrate verdienen
Jetzt muß ich erst mal Hypothekenrate verdienen
Ähnliche Themen