Hausbau - Ratgeber
Bauherrenhilfe
- Bauherrenhilfe vor Vertragsabschluss
-- Warum einen unabhängigen Baubetreuer?
-- Vertragsgrundlagen
-- Bausumme
-- Zahlungsplan zur Kostenkontrolle
-- Pflichten des Bauherren vor Vertragsabschluss
-- Unterlagen beim Hausbau vor Vertragsabschluss
- Bauherrenhilfe nach Vertragsabschluss
-- Bauantrag bei Behörden
-- Bau-Genehmigungsverfahren bei Baubehörden
-- Bauspezifische Versicherungen
-- Bauzeitenplan
-- Baubeginn - die Letzten Pflichten der Bauherrschaft
- Bauherrenhilfe während der Bauzeit
- Gewährleistungsansprüche
- Bauabnahme
Baufinanzierung
- Baufinanzierung - Allgemeine Fragen
- Kreditarten
- Kredit-Konditionen
- Bausparen
- Staatliche Förderungen
- Verkehrswert
- Haushaltsrechnung und Bonität
Hausbau Planung
- Haustypen
- Hausbau Vorbereitungsarbeiten
- Das Baugrundstück
- Baugrund beim Hausbau
- Baurecht
- Gebäudeschutz
- Erdarbeiten und Wasserhaltung
- Stützmauern
- Einfriedung
- Untergeschoss
- Kanalisation
- Tragende Elemente
- Nichttragende Innenwände
- Fundation / Fundament
- Deckenkonstruktionen
- Dächer
- Kaminanlagen
- Treppen Rampen Leitern
- Dachbeläge und Spengler
- Fenster
- Sonnen und Wetterschutz
- Aussenputze
- Einbauten, Küchen, Türen
- Bodenbeläge und Unterlagsböden
- Parkett
- Gips, Wand, Decke
Haustechnik und Energie
- Heiztechnik
- Lüftung und Klimatechnik
- Sanitärtechnik
- Elektrotechnik
- Erneuerbare Energie
Whirlpools / Jacuzzi
Hausbau Magazin
- Baufinanzierung trotz Krise?
- Das Blockhaus
- Moderne Dämmstoffe im Vergleich
- Erker Vor- und Nachteile
- Glasflächen beim Hausbau
- Günstig ein Haus Bauen
- Mediterraner Hausbaustil
- Mehrgenerationenhaus
- Moderne Architektur
- Gartengestaltung leicht gemacht
- Traditioneller Ziegelbau
- Villa als höchster Traum
- Im Eigenheim Ruhestand geniessen
- Altbau sanieren
- Kauf einer Holzgarage
- Immobilienmakler
- Arbeitshandschuhe für den Winter
- Zuhause verschönern
- Outdoor-Plissees
- Schlafzimmer planen
- Terrassenüberdachung
- Wohngebäudeversicherung
- Zaunarten und Eigenschaften
- Hauseingang gestalten
- Der perfekte Grundriss
- Sparsamer heizen im Altbau
- Einfamilienhaus smart finanzieren
- Planung einer PV-Anlage
- Neues Haus
- Immobilienfinanzierung
- Installation einer Photovoltaikanlage
- Asbest erkennen und entfernen
- Gartenpflege im Frühling – worauf achten
- Sauna im Fokus - Wellness zuhause
- Erfolgreich vermieten
- Die perfekte Winterbekleidung
- Das Niedrigenergiehaus
- Der April und seine Stürme
- Architektonische Vielfalt
- Ökologisch und nachhaltig bauen
- Das perfekte Schlafzimmer
- Nachhaltige Energieversorgung
- Zukunftsorientiert bauen
- Nachhaltigkeit beim Hausbau
- Tiny Houses
- Wärmepumpen als nachhaltige Heizvariante
- Maßgeschneiderten Kleiderschrank
- Der richtige Baukredit
- Ratgeber für erfolgreichen Hausbau
- Haus als Altersvorsorge
Do-it-yourself Anleitungen
- Verlegeanleitung für Bodenbeläge und Parkett
- Bodenbeläge und Parkett reinigen und pflegen
- Malerarbeiten am Haus
- Garten Tipps
- Umzug und Reinigung

ᐅ Einfamilienhaus 1,5 Geschossig, 155 qm

Erstellt am: 04.01.25 15:20
M
Mone_04
roteweste10.01.25 14:06
Ganz toll und Gratulation zur Lage. Führt die Falttür auf euren Balkon?
11ant10.01.25 14:17
roteweste schrieb:

Retro oder nicht. Es kommt auf die Anwendung an. Schiebetüren machen da Sinn, wo man den Schwenkbereich nicht hat und eine große Öffnung haben will.
Zwei Anwendungen werden gerne übersehen: Faltanlagen, und klassische Doppelflügel (dann allerdings D/D statt DK/D) nach außen zu öffnen. Eine große Öffnung bieten die Schiebetüren ja gerade nicht, die Hälften stehen einander im Weg.
https://www.instagram.com/11antgmxde/
https://www.linkedin.com/company/bauen-jetzt/
W
wiltshire
10.01.25 14:23
roteweste schrieb:

Ganz toll und Gratulation zur Lage. Führt die Falttür auf euren Balkon?
Es ist eine Mischung aus Balkon und Terrasse über die gesamte Hausbreite und mit Zugang auf beiden Seiten. Das Haus ist eher ungewöhnlich, steht an einem steilen Hang und ist teils in den Fels, teils aus dem Hang heraus gebaut. Das Fenster im Foto zuvor ist das zweite von links. Das Foto ist mit Handyzoom zum nächsten gegenüberliegendem gleich hohen Punkt geschossen. Das erklärt, weshalb wir keinen Wert auf Sichtschutz legen.


Holzhaus-Kabinen mit blauen Dächern am Waldrand, von Herbstbäumen umgeben; Autos am Uferweg.
C
chand1986
10.01.25 15:11
wiltshire schrieb:

Na klar stören Insekten schon mal. Mücken gehen gerne auf mich, meine Frau ist da sicher.
Ich strebe nicht danach alle Vorzüge gleichzeitig genießen zu können. Es reichen wenige, dafür klare Prioritäten und daran zielführend ausgerichtete Entscheidungen. Abwesenheit von Insekten steht in meiner Lebens-Prio-Liste nicht einmal auf dem Zettel. Im Sommer gleichzeitig drinnen und draußen leben zu können dagegen schon. Ein Fliegenschutz würde diese Priorität stören, daher gibt es das auch nicht.
Ok, danke. Wäre für uns nichts. Das Haus ist innen fast ganz offen und wir haben das ganze Potpourri der Fliegen schlicht überall. Dazu Wespen und Mücken und Käfer. Abends Falter. Das stand auch auf keiner unserer Listen, bis es sich als unmittelbare Störung rausstellte. War einfach zu viel.
Y
ypg
10.01.25 21:18
roteweste schrieb:

Schiebetüren machen da Sinn
Es geht wohl nicht um die Frage der Sinnhaftigkeit von Schiebetüren, sondern um die der Hebeschiebetüren.

Ich finde es sehr sympathisch, wenn jemand nur einen Nice-to-have Wunsch hat, während andere hier Hebeschiebetür, Speis mit versteckter Tür, Schleusentür, innenliegende Schiebetür, Sitzfenster, Kamin, beleuchtete Garderoben, offene Galerien, Lufträume etc. aufzählen.
Wie kann man sich bloß so an einen Herzenswunsch hochziehen?
K a t j a10.01.25 22:06
Mone_04 schrieb:

Hat ... noch jemand Ideen?
Na einen hab ich noch:


Grundriss eines Hauses: Erdgeschoss mit Wohnzimmer, Küche, Bad, Schlafzimmer, Treppe und Garage.


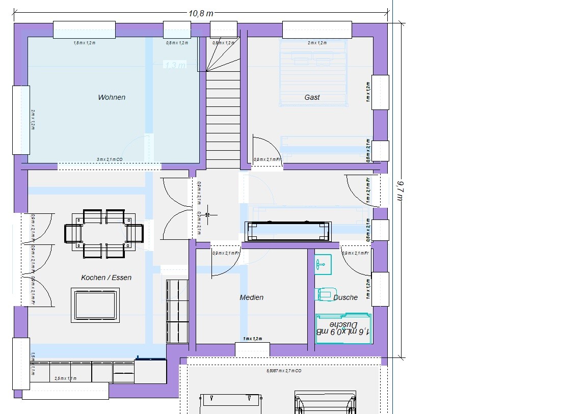
Grundriss eines Hauses mit Wohnzimmer, Küche/Essen, Gästezimmer, Medien, Dusche, Treppen und Garage.


Grundriss eines Hauses: Räume wie Bad, Wäsche, Elternzimmer; Treppe, Türen und Maßlinien.


Zweistöckiges Haus mit Carport, rotes und blaues Auto, Holzzaun umgibt Grundstück.


Zweistöckiges graues Haus mit schwarzem Dach, Terrasse, Holzfenster und Holzzaun auf grünem Gelände.


Carport wie von Dir vorgeschlagen mit 1m Dachüberstand zu Straße.
balkonschiebetürenhang