ᐅ Grundriss / Planung eines Einfamilienhaus mit Einliegerwohnung im OG
Erstellt am: 26.08.20 21:38
O
OimelwutzO
Oimelwutz26.08.20 21:38Hallo zusammen,
wir beschäftigen uns derzeit auch verstärkt mit dem Thema Bauen.
Deswegen würde ich unseren Grundriss und unsere Gedanken gerne vorstellen und freue mich auf Kritik!
Zur Ausgangssituation:
Meine Frau und ich leben derzeit mit unserer Tochter in meinem Elternhaus. Mein Vater wohnt über uns und in dieser Konstellation wollen wir auch weiterhin wohnen. Das heißt wir benötigen eine Wohnung für uns und eine Wohnung für meinen Vater.
Da wir kurz-/mittelfristig eine barrierefreie Wohnung für uns benötigen und eine altersgerechte Wohnung für meinen Vater, kam uns der Gedanke von Sanierung/Umbau.
Sanierung und Umbau haben wir dann ausgeschlossen, weil die aktuelle Substanz sehr schlecht ist. Wir hatten dazu auch noch Kontakt zu einem lokalen Architekten.
Nach Hausbesichtigung kam er (obwohl er eigentlich ausschließlich Umbau/Sanierung macht) zu dem selben Schluss. Seiner Meinung nach wäre Umbau/Sanierung wahrscheinlich teurer als Abriss und Neubau.
Gesagt getan. Nach mehrere Gesprächen mit verschiedenen Firmen sind wir nun bei einem lokalen Massivbauer gelandet. Kleiner Betrieb in zweitere Generation mit angestellten Maurern, bei dem wir uns gut aufgehoben fühlen.
Einen Wunschgrundriss hatten wir schon im Kopf und gemeinsam mit der Baufirma ist der angehängte Grundriss nun entstanden. Im Grunde sind wir sehr zufrieden damit. Finanziell sieht es auch gut aus und wir haben sogar etwas Luft für kleine Extras.
Zu den Skizzen:
Aktuell warten wir auf die neuen Zeichnungen der Baufirma.
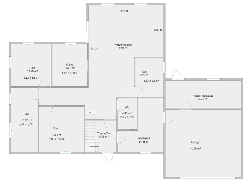
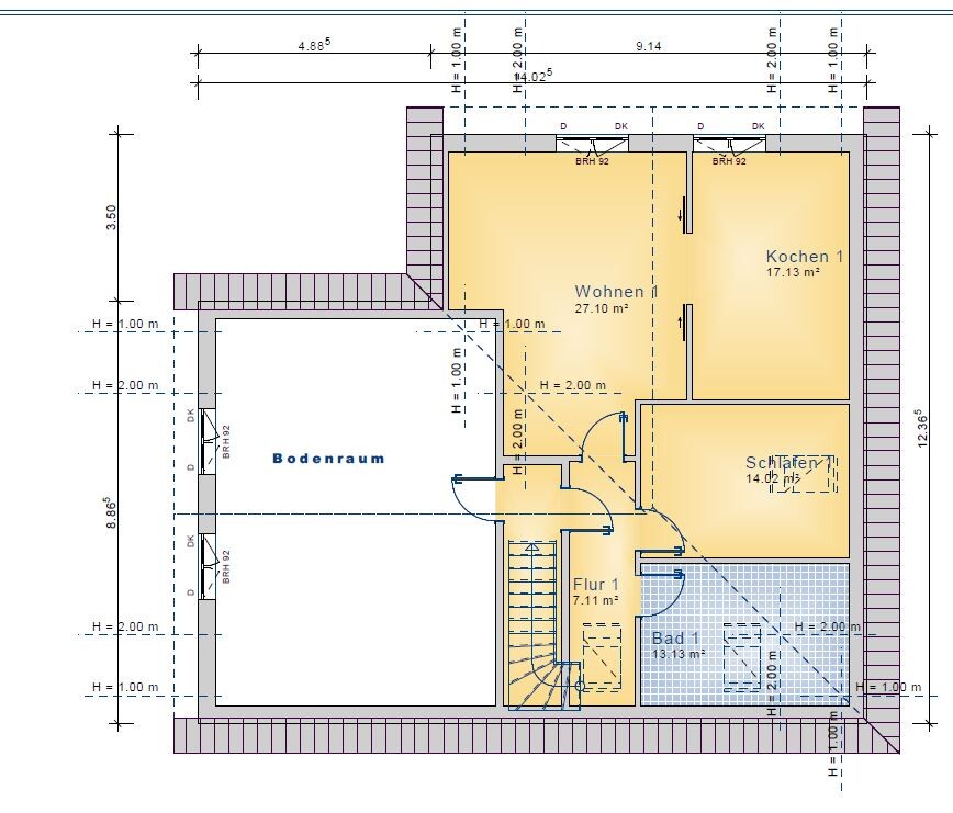
Das EG wird so, wie es auf meiner Skizze unten zu sehen ist. Das DG entsprechend größer, allerdings bleibt die Raumaufteilung.
Das Haus wird parallel zur Straße stehen, also Haustür Richtung Straße
Jetzt freue ich mich vorsichtig auf Kritik, Rückfragen und hoffentlich viel Input von Euch!
Bebauungsplan/Einschränkungen
Größe des Grundstücks 23,5 x 40m
Hang nein
Kein Bebauungsplan
Anforderungen der Bauherren
Stilrichtung, Dachform, Gebäudetyp keine speziellen Wünsche
Keller, Geschosse kein Keller; OG mit 1m Drempel
Anzahl der Personen, Alter 4 (31, 34, 2, 62)
Raumbedarf im EG, OG Hauptwohnung komplett im EG
Büro: Familiennutzung oder Homeoffice? Familiennutzung + Gästebett
Schlafgäste pro Jahr ein paar Mal
offene oder geschlossene Architektur weiß nicht
konservativ oder moderne Bauweise eher konservativ
offene Küche, Kochinsel soll ein geschlossener Raum werden, gerne mit Schiebetür um es dann auch offener halten zu können
Anzahl Essplätze 6
Kamin nein
Musik/Stereowand nein
Balkon, Dachterrasse Balkon, wenn Einlieger im OG
Garage, Carport Doppelgarage
Nutzgarten, Treibhaus nein
Hausentwurf
Von wem stammt die Planung? Grundidee von uns, gezeichnet vom BU
Was gefällt besonders? Warum? eigentlich sind wir zufrieden. Gut finden wir den "Bodenraum", der später nach Bedarf ausgebaut werden kann
Was gefällt nicht? Warum? Schlafzimmer zur Straße, lieber wäre uns Büro/Gast, allerdings passt das unserer Meinung nach nicht so richtig mit den Raumgrößen
Angebot der Baufirma: Haus 335.000€; zusätzliche Ausstattung 16.500€; Photovoltaik 11.000€; Doppelgarage 36.500€
Wände und Decken verputzt bzw. Q2; Fliesen sind mit drin, Rest kommt noch dazu
Persönliches Preislimit fürs Haus, inkl Ausstattung: 550
favorisierte Heiztechnik: Wärmepumpe



wir beschäftigen uns derzeit auch verstärkt mit dem Thema Bauen.
Deswegen würde ich unseren Grundriss und unsere Gedanken gerne vorstellen und freue mich auf Kritik!
Zur Ausgangssituation:
Meine Frau und ich leben derzeit mit unserer Tochter in meinem Elternhaus. Mein Vater wohnt über uns und in dieser Konstellation wollen wir auch weiterhin wohnen. Das heißt wir benötigen eine Wohnung für uns und eine Wohnung für meinen Vater.
Da wir kurz-/mittelfristig eine barrierefreie Wohnung für uns benötigen und eine altersgerechte Wohnung für meinen Vater, kam uns der Gedanke von Sanierung/Umbau.
Sanierung und Umbau haben wir dann ausgeschlossen, weil die aktuelle Substanz sehr schlecht ist. Wir hatten dazu auch noch Kontakt zu einem lokalen Architekten.
Nach Hausbesichtigung kam er (obwohl er eigentlich ausschließlich Umbau/Sanierung macht) zu dem selben Schluss. Seiner Meinung nach wäre Umbau/Sanierung wahrscheinlich teurer als Abriss und Neubau.
Gesagt getan. Nach mehrere Gesprächen mit verschiedenen Firmen sind wir nun bei einem lokalen Massivbauer gelandet. Kleiner Betrieb in zweitere Generation mit angestellten Maurern, bei dem wir uns gut aufgehoben fühlen.
Einen Wunschgrundriss hatten wir schon im Kopf und gemeinsam mit der Baufirma ist der angehängte Grundriss nun entstanden. Im Grunde sind wir sehr zufrieden damit. Finanziell sieht es auch gut aus und wir haben sogar etwas Luft für kleine Extras.
Zu den Skizzen:
Aktuell warten wir auf die neuen Zeichnungen der Baufirma.
Das EG wird so, wie es auf meiner Skizze unten zu sehen ist. Das DG entsprechend größer, allerdings bleibt die Raumaufteilung.
Das Haus wird parallel zur Straße stehen, also Haustür Richtung Straße
Jetzt freue ich mich vorsichtig auf Kritik, Rückfragen und hoffentlich viel Input von Euch!
Bebauungsplan/Einschränkungen
Größe des Grundstücks 23,5 x 40m
Hang nein
Kein Bebauungsplan
Anforderungen der Bauherren
Stilrichtung, Dachform, Gebäudetyp keine speziellen Wünsche
Keller, Geschosse kein Keller; OG mit 1m Drempel
Anzahl der Personen, Alter 4 (31, 34, 2, 62)
Raumbedarf im EG, OG Hauptwohnung komplett im EG
Büro: Familiennutzung oder Homeoffice? Familiennutzung + Gästebett
Schlafgäste pro Jahr ein paar Mal
offene oder geschlossene Architektur weiß nicht
konservativ oder moderne Bauweise eher konservativ
offene Küche, Kochinsel soll ein geschlossener Raum werden, gerne mit Schiebetür um es dann auch offener halten zu können
Anzahl Essplätze 6
Kamin nein
Musik/Stereowand nein
Balkon, Dachterrasse Balkon, wenn Einlieger im OG
Garage, Carport Doppelgarage
Nutzgarten, Treibhaus nein
Hausentwurf
Von wem stammt die Planung? Grundidee von uns, gezeichnet vom BU
Was gefällt besonders? Warum? eigentlich sind wir zufrieden. Gut finden wir den "Bodenraum", der später nach Bedarf ausgebaut werden kann
Was gefällt nicht? Warum? Schlafzimmer zur Straße, lieber wäre uns Büro/Gast, allerdings passt das unserer Meinung nach nicht so richtig mit den Raumgrößen
Angebot der Baufirma: Haus 335.000€; zusätzliche Ausstattung 16.500€; Photovoltaik 11.000€; Doppelgarage 36.500€
Wände und Decken verputzt bzw. Q2; Fliesen sind mit drin, Rest kommt noch dazu
Persönliches Preislimit fürs Haus, inkl Ausstattung: 550
favorisierte Heiztechnik: Wärmepumpe
Der Bereich Gast/WC/Hauswirtschaftsraum/Küche ist sehr unglücklich und ergibt viel Freifläche zwischen Küche und Gast, die nicht nutzbar ist. Zumindest stelle ich es mir nicht schön vor, dort am esstisch zu sitzen.
Hast du schon mal große Bungalowgrundrisse angeschaut? Es gibt schöne Lösungen mit separierten "privaten" Bereichen.
Hast du schon mal große Bungalowgrundrisse angeschaut? Es gibt schöne Lösungen mit separierten "privaten" Bereichen.
O
Oimelwutz27.08.20 09:52haydee schrieb:
Möbliere unbedingt den Grundriss. Im OG ist die Küche nur für kleine Menschen nutzbar.
zur Barrierefreiheit Google nach nullbarriereDanke für den Hinweis, da habe ich erst mal was zu lesen.Ich schaue mal, dass ich heute Abend Möbel in den Grundriss kriege.
Das OG haben wir uns gestern Abend noch mal angeschaut, etwas höherer Drempel wäre wohl wirklich schön.
Aktuell haben wir im OG einen Drempel von 35cm, da schien uns 1m schon ein deutlicher Fortschritt. Leider ist die 2D Zeichnung etwas trügerisch und in der Realität wird das wohl trotzdem ziemlich eng.
Elokine schrieb:
Der Bereich Gast/WC/Hauswirtschaftsraum/Küche ist sehr unglücklich und ergibt viel Freifläche zwischen Küche und Gast, die nicht nutzbar ist. Zumindest stelle ich es mir nicht schön vor, dort am Esstisch zu sitzen.
Hast du schon mal große Bungalowgrundrisse angeschaut? Es gibt schöne Lösungen mit separierten "privaten" Bereichen.Genau dort hatten wir den Esstisch eigentlich angedacht. Esstisch/Küche/Wohnzimmer wollten wir gerne dicht beisammen haben.
Genauso wie Gast/Büro. Ich halte mich recht häufig zuhause vor dem PC auf, der soll dann in diesem Raum stehen. Er wäre dann noch "nah" an den Wohnräumen, aber trotzdem könnte man ihn hinter geschlossener Tür verstecken.
Außerdem haben wir die Flächen dort absichtlich etwas großzügiger gelassen. Falls dann doch mal ein Rollstuhl zum Einsatz kommen wird.
Bungalow war ja auch unser erster Gedanke und wir haben sehr viele Grundrisse angeschaut. Entweder waren die Einliegerwohnungen zu klein oder der Bungalow war insgesamt zu breit für das Grundstück. Da uns die Doppelgarage ist wichtig ist, geht uns dann natürlich viel von der Breite verloren.
Außerdem sagte man uns, dass ein Bungalow mit einer derartigen Fläche wohl teurer wäre als geschossig zu bauen.
Bungalow ist teurer, aber ihr baut jetzt und benötigt irgendwann zwei barrierefreie Wohneinheiten. Natürlich kann dein Vater mit 80 noch hochlaufen oder mit 70 wird die Treppe zur Qual. Bungalows kann man individuell planen.
mit der Küche oben ist mir aufgefallen, weil wir in unserer Mietwohnung das Problem haben. Spüle ist unter dem Dachfenster, sonst kann ich mit meinen 1,70 nichtmal Spülen ohne mir den Kopf einzuschlagen.
vielleicht währe ein Bungalow mit ausgebauten Dach etwas für euch und die Kinder sind oben.
mit der Küche oben ist mir aufgefallen, weil wir in unserer Mietwohnung das Problem haben. Spüle ist unter dem Dachfenster, sonst kann ich mit meinen 1,70 nichtmal Spülen ohne mir den Kopf einzuschlagen.
vielleicht währe ein Bungalow mit ausgebauten Dach etwas für euch und die Kinder sind oben.
Ähnliche Themen