Dachgeschoss Raumaufteilung - Uns gehen die Ideen aus...

4,20 Stern(e) 6 Votes
Zuletzt aktualisiert 10.10.2025
Sie befinden sich auf der Seite 5 der Diskussion zum Thema: Dachgeschoss Raumaufteilung - Uns gehen die Ideen aus...
>> Zum 1. Beitrag <<

Y

ypg

Hehe, willste mich beleidigen?
Ich habe extra die Maße dran geschrieben. Der Raum ist 2,30m breit. 2x 60er Schranktiefe weg bleiben 1,10m dazwischen. Außenmaße des Hauses von Euch übernommen.... Wo liegt das Problem?
Tja Schätzchen: Dein Bad ist aber nicht groß genug

@LMN2018
Die Variante, abends einen Stuhl mit den Klamotten zu packen, die man morgens anziehen will, ist immer noch aktuell
 
kaho674

kaho674

Tja Schätzchen: Dein Bad ist aber nicht groß genug
Ach so? ops:
Gab's da ein Mindestmaß? Man könnte noch die Walkin-Dusche mit ins Kinderbad (sidebyside) versuchen...
Aber wenn der Architekt noch mal von vorne anfängt, ist uns ja auch recht. Gibt's was zu schauen - hoffentlich.
 
LMN2018

LMN2018

Huhu @kaho674
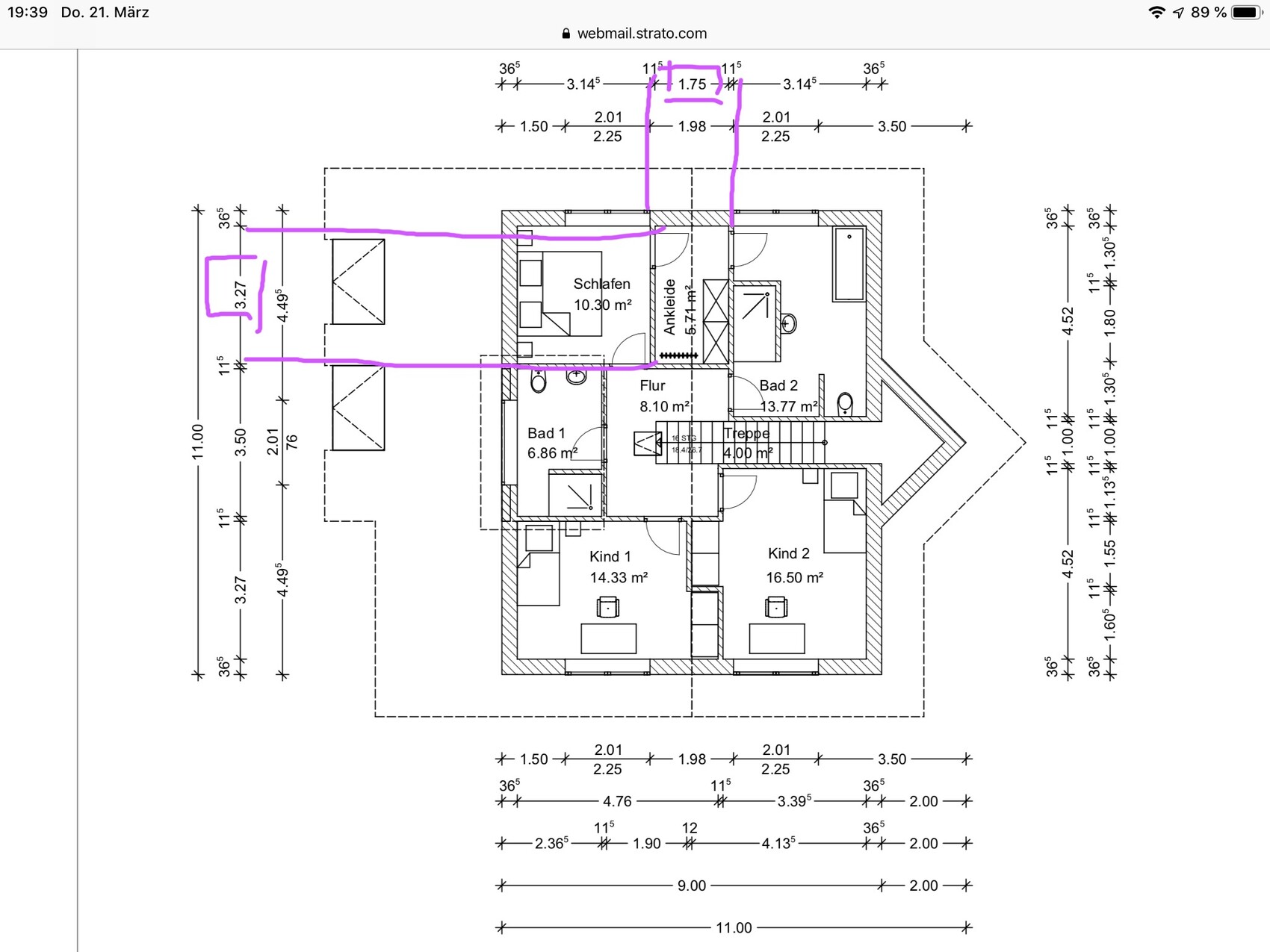
Schau mal die markierten Maße in dem folgenden Plan. Da ist der Raum doch nur 1,75 m breit, abzüglich Putz, so 3 cm, dann hätten wir effektiv nur eine Breite von 1,72.
Ein Schwebetürenschrank von I.... hat eine Breite von 66 cm,noch ein Schrank oder Kommode mit 60er Breite und man hat nur noch knapp 50 cm zum Drehen und Wenden. Das ist bissl zu knapp....
Ich bin auch gespannt was uns der Architekt noch anbieten kann....ich gebe Bescheid
Grundriss eines Obergeschosses mit Schlafzimmer, Ankleide, Bad 1, Kind 1, Flur, Treppe.
 
LMN2018

LMN2018

@ypg Ja ja, diesen beladenen Stuhl gibt‘s heute auch schon bei uns Leider wird doch ab und an (vom Ehemann )was vergessen und schon muss man zurück ins Schlafzimmer. Daher wäre die abgetrennte Ankleide ein Traum für uns.
Wir wären sehr froh nicht solch einen leichten Schlaf zu haben. Durch Rufbereitschaftsdienste von mir und meines Mannes hört man jeden Mucks!! Wenn das Handy nämlich klingelt muss man sofort DA sein....Beim 2. Haus wollen wir das natürlich besser machen bzw. suchen ja noch nach der besten Lösung
 
Y

ypg

Huhu @kaho674
Schau mal die markierten Maße in dem folgenden Plan. Da ist der Raum doch nur 1,75 m breit, abzüglich Putz, so 3 cm, dann hätten wir effektiv nur eine Breite von 1,72.
Ein Schwebetürenschrank von I.... hat eine Breite von 66 cm,noch ein Schrank oder Kommode mit 60er Breite und man hat nur noch knapp 50 cm zum Drehen und Wenden. Das ist bissl zu knapp....
Ich bin auch gespannt was uns der Architekt noch anbieten kann....ich gebe Bescheid Anhang anzeigen 33372
Aber das ist doch Euer Plan, nicht Katjas. @kaho674 hat anders geplant... breitere Ankleide (vermaßt), Schlafzimmer planrechts... -> #14
 
kaho674

kaho674

Huhu @kaho674
Schau mal die markierten Maße in dem folgenden Plan. Da ist der Raum doch nur 1,75 m breit,
Aber das ist doch Euer Plan, nicht Katjas. @kaho674 hat anders geplant... breitere Ankleide (vermaßt), Schlafzimmer planrechts... -> #14
Yep, das verblüfft mich jetzt doch etwas. Kannst Du (@LMN2018) das Bild nicht sehen? Die Räume haben nicht nur den Platz gewechselt - natürlich sind auch die Maße anders. Das sieht man doch auch, dass da jetzt 2 Schränke rein passen, oder? Die Maße stehen extra dran.

 
Zuletzt aktualisiert 10.10.2025
Im Forum Grundrissplanung / Grundstücksplanung gibt es 2513 Themen mit insgesamt 87222 Beiträgen


Ähnliche Themen zu Dachgeschoss Raumaufteilung - Uns gehen die Ideen aus...
Nr.ErgebnisBeiträge
1Pfiffige Schlafzimmer Idee mit Ankleide gesucht 19
2Grundriss Schlafzimmer, Ankleide und Bad en Suite - Seite 336
3Grundriss Schlafzimmer mit Bad und Ankleide 62
4Grundriss Vorschlag für Architekt, bitte um Kritik - Seite 312
5Hausplan von Architekt 2 Geschosse mit Keller 18
6Umbau mit Architekt: Anregungen zum Haus-Grundriss gewünscht 21
7Grundrissplanung - Wie Schlafzimmers & Ankleide anordnen? 11
8Waschmaschine und Trockner in Ankleide? 16
9Teppich im Schlafzimmer trotz Fußbodenheizung? 36
10Kinderzimmer und Schlafzimmer - Welche Größe ist zu empfehlen? - Seite 256
11Verbindung Schlafzimmer / Ankleidezimmer / Bad 16
12Durchbruch Bad und Ankleide ohne Türe? - Seite 212
13200m2 Einfamilienhaus für 4-5 Personen ohne Keller auf schmalem Grundstück - Seite 867
14Den Plan selber zeichnen?, Braucht man unbedingt einen Architekt? 11
15Architekt total geschlampt - Erfahrungen? 17
16Schmlußssrechnung Architekt - Seite 213
17Architekt --> Absprachen? Was ist das? - Seite 321
18Kosten Bodengutachten - Bezahlt die der Architekt oder wir? 12
19Abbruch Zusammenarbeit Architekt - verlangt überzogenes Honorar - Seite 228
20Zusammenarbeit mit einem Architekt - wie funktioniert es richtig? - Seite 222

Oben