ᐅ Bungalow, SD, 14x9/117m2, 4 Zimmer
Erstellt am: 27.12.19 16:29
Bebauungsplan/Einschränkungen
Größe des Grundstücks: 714m2, 21mx34m
Hang: nein
Grundflächenzahl: 0,3
Baufenster, Baulinie und -grenze: 15mx20m
Randbebauung: 3m
Anzahl Stellplatz: 2
Geschossigkeit: 1
Dachform: SD
Stilrichtung: Einzelhaus, offen, bis Max. 2 Vollgeschosse
Ausrichtung: NW
Maximale Höhen/Begrenzungen: TH 4,25, FH 10m
weitere Vorgaben: SD 20°-45°, Firstrichtung zur Straße
Anforderungen der Bauherren
Stilrichtung, Dachform, Gebäudetyp: Einfamilienhaus, Bungalow
Keller, Geschosse: nein, DG nur Stauraum
Anzahl der Personen, Alter: 3 Personen (3, 33, 45 Jahre)
Raumbedarf im EG, OG: 4, 0
Büro: Familiennutzung oder Homeoffice? - Arbeit+Gast/Abstell
Schlafgäste pro Jahr: 4x1
offene oder geschlossene Architektur: geschlossen
konservativ oder moderne Bauweise: konservativ
offene Küche, Kochinsel: nein
Anzahl Essplätze: 5
Kamin: nein
Musik/Stereowand: nein
Balkon, Dachterrasse: nein
Garage, Carport: ggf.. später Carport
Nutzgarten, Treibhaus: ggf.. später kl. Gewächshaus
weitere Wünsche/Besonderheiten/Tagesablauf, gern auch Begründungen, warum dieses oder das nicht sein soll
Von wem stammt die Planung:
-Do-it-Yourself: Erste Annäherung an das Thema, Vorbereitung für weitere Gespräche mit Architekt/Bauing.
Was gefällt besonders? Warum? kompakt, rational
Was gefällt nicht? Warum? etwas langweilig
Persönliches Preislimit fürs Haus, inkl Ausstattung: 350k, Bundesland M-V
favorisierte Heiztechnik: Anschlusszwang Fernwärme
Wenn Ihr verzichten müsst, auf welche Details/Ausbauten
-könnt Ihr verzichten:
-könnt Ihr nicht verzichten: 4 Zimmer
Warum ist der Entwurf so geworden, wie er jetzt ist? ZB
Was ist die wichtigste/grundlegende Frage zum Grundriss in 130 Zeichen zusammengefasst?
Vorgabe ist:
1.) Wohnen auf einer Ebene mit 4 Zimmern und getrennte, kleine Küche.
2.) Wohnzimmer mit Ausblick Wald/Lichtung, Gartenbereich hinter dem Haus
WC/Bad/Küche: Positionierung der Ausstattung tbd.
Gesucht: Anregungen, Meinungen, Vorschläge


Größe des Grundstücks: 714m2, 21mx34m
Hang: nein
Grundflächenzahl: 0,3
Baufenster, Baulinie und -grenze: 15mx20m
Randbebauung: 3m
Anzahl Stellplatz: 2
Geschossigkeit: 1
Dachform: SD
Stilrichtung: Einzelhaus, offen, bis Max. 2 Vollgeschosse
Ausrichtung: NW
Maximale Höhen/Begrenzungen: TH 4,25, FH 10m
weitere Vorgaben: SD 20°-45°, Firstrichtung zur Straße
Anforderungen der Bauherren
Stilrichtung, Dachform, Gebäudetyp: Einfamilienhaus, Bungalow
Keller, Geschosse: nein, DG nur Stauraum
Anzahl der Personen, Alter: 3 Personen (3, 33, 45 Jahre)
Raumbedarf im EG, OG: 4, 0
Büro: Familiennutzung oder Homeoffice? - Arbeit+Gast/Abstell
Schlafgäste pro Jahr: 4x1
offene oder geschlossene Architektur: geschlossen
konservativ oder moderne Bauweise: konservativ
offene Küche, Kochinsel: nein
Anzahl Essplätze: 5
Kamin: nein
Musik/Stereowand: nein
Balkon, Dachterrasse: nein
Garage, Carport: ggf.. später Carport
Nutzgarten, Treibhaus: ggf.. später kl. Gewächshaus
weitere Wünsche/Besonderheiten/Tagesablauf, gern auch Begründungen, warum dieses oder das nicht sein soll
- Wohnen auf einer Ebene ist uns wichtig.
- Sichtmauerwerk erforderlich
- Anschlusszwang Fernwärme
- An der Grundstücksrückseite liegt ein Waldstück, Lichtung mit Blick auf ein schönes Feld ca. mittig nach rechts/Osten.
Von wem stammt die Planung:
-Do-it-Yourself: Erste Annäherung an das Thema, Vorbereitung für weitere Gespräche mit Architekt/Bauing.
Was gefällt besonders? Warum? kompakt, rational
Was gefällt nicht? Warum? etwas langweilig
Persönliches Preislimit fürs Haus, inkl Ausstattung: 350k, Bundesland M-V
favorisierte Heiztechnik: Anschlusszwang Fernwärme
Wenn Ihr verzichten müsst, auf welche Details/Ausbauten
-könnt Ihr verzichten:
-könnt Ihr nicht verzichten: 4 Zimmer
Warum ist der Entwurf so geworden, wie er jetzt ist? ZB
- eigene Annäherung an das Thema zwecks Vorbereitung auf weitere Gespräche mit Architekt/Bauing.
- Beschäftigung mit den Anforderungen
Was ist die wichtigste/grundlegende Frage zum Grundriss in 130 Zeichen zusammengefasst?
Vorgabe ist:
1.) Wohnen auf einer Ebene mit 4 Zimmern und getrennte, kleine Küche.
2.) Wohnzimmer mit Ausblick Wald/Lichtung, Gartenbereich hinter dem Haus
WC/Bad/Küche: Positionierung der Ausstattung tbd.
Gesucht: Anregungen, Meinungen, Vorschläge
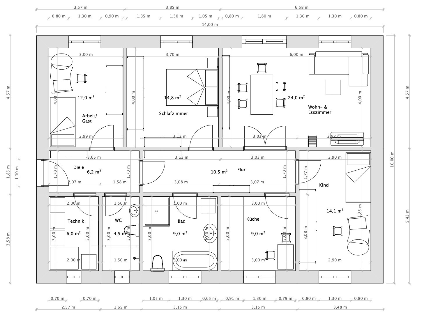
Die Küche ist klein, die Stühlchen sind winzig. Den Hauseingang würde ich vermutlich eher zur Straße orientieren, auch um ein bißchen Flurfläche zu sparen. Ebenfalls weniger gefallen tun mir die kahlen Giebelseiten. Was ist das eingezeichnete Zeug im HAR, sind da alle Abstandsflächen für Wartungspersonal berücksichtigt ?
Warum Bungalow, wenn zwei Vollgeschosse erlaubt sind ?
Wo soll Abstellraum zur Verfügung stehen ?
https://www.instagram.com/11antgmxde/
https://www.linkedin.com/company/bauen-jetzt/
Warum Bungalow, wenn zwei Vollgeschosse erlaubt sind ?
Wo soll Abstellraum zur Verfügung stehen ?
https://www.instagram.com/11antgmxde/
https://www.linkedin.com/company/bauen-jetzt/
Langer, schlauchiger, dunkler Flur der wahnsinnig viel Fläche beansprucht.
Keine Garderobe
Was ist alles in dem Technikraum eingezeichnet?
Wo werden Koffer, Deko, Lebensmittel und Co aufbewahrt?
Arbeitszimmer Türe nach links verschieben, dass der Schrank dahinter paßt.
Schlafzimmer
Zeichnet mal ein Bett von 1,8x2 m + Bettrahmen ein.
Küche
Wollt Ihr wirklich nur eine 3 m Küchenzeile? So eine kleine Zeile findet man in 40 qm Einzimmerappartement.
Dazu diese Mini Tischecke die selbst ihn Wohnwägen geräumiger ist.
Für 2 Essplätze ist der Bungalow zu klein
Kinderzimmer zwischen Wohnen und Essen sehr ungünstig
Eingang Mittig
2. Terrasse im Süden einplanen
Ihr habt keinerlei Abstellraum. Plant eine Treppe für den Dachboden ein.
Warum quetscht ihr alles in einen Bungalow?
Keine Garderobe
Was ist alles in dem Technikraum eingezeichnet?
Wo werden Koffer, Deko, Lebensmittel und Co aufbewahrt?
Arbeitszimmer Türe nach links verschieben, dass der Schrank dahinter paßt.
Schlafzimmer
Zeichnet mal ein Bett von 1,8x2 m + Bettrahmen ein.
Küche
Wollt Ihr wirklich nur eine 3 m Küchenzeile? So eine kleine Zeile findet man in 40 qm Einzimmerappartement.
Dazu diese Mini Tischecke die selbst ihn Wohnwägen geräumiger ist.
Für 2 Essplätze ist der Bungalow zu klein
Kinderzimmer zwischen Wohnen und Essen sehr ungünstig
Eingang Mittig
2. Terrasse im Süden einplanen
Ihr habt keinerlei Abstellraum. Plant eine Treppe für den Dachboden ein.
Warum quetscht ihr alles in einen Bungalow?
Das Nordkreuz stimmt nicht ... West und Ost sind vertauscht.
Generell sehr seltsame Türpositionen, z. B. auch direkt neben dem Kopf im Elternschlafzimmer.
Warum Eingang an der Seite?
Die Terrasse liegt auch an langen Sommerabenden zuverlässig im Schatten.
Küche ... da scheint ihr ja null, null-Ansprüche zu haben.
Generell sehr seltsame Türpositionen, z. B. auch direkt neben dem Kopf im Elternschlafzimmer.
Warum Eingang an der Seite?
Die Terrasse liegt auch an langen Sommerabenden zuverlässig im Schatten.
Küche ... da scheint ihr ja null, null-Ansprüche zu haben.
Ähnliche Themen