ᐅ Grundriss Bungalow 150qm geschlossene Küche, überdachte Terrasse
Erstellt am: 30.06.19 07:05
I
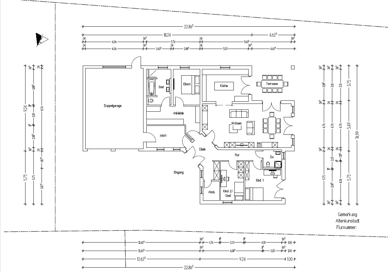
illvisionzDer Bungalow ist nicht schlecht
Über den bin ich auch gestolpert
Warum wollt ihr einen Bungalow? Ihr habt Anforderungen die gingen einfacher bei zwei Vollgeschossen.
Irgendwas stört euch, jetzt müsst ihr finden was.
Warum zieht ihr die Wand vom Kinderzimmer nicht so weit raus, das sie bündig liegt zur Küche?
Könnt ihr die Garage etwas versetzt zum Haus bauen oder gar freistehend? Der Elternteil ist schwierig zu gestalten da nur an einer Seite Fenster möglich sind. Die Garage nimmt eine ganze Wand
Hell und großzügig bekommt ihr den nicht.
Ich würde Garage weg vom Haus.
Ankleide weg.
Hauswirtschaftsraum etwas vergrößern. Schlafzimmer größer.
Kinderzimmer vergrößern, so dass die Außenwand bündig mit der Küche ist
Essecke raus aus der Küche. Ihr habt zwei Schritte weiter einen schönen esstisch. Die Ecke in der Küche mit Blick auf die Wand wird rumpelecke.
Terrassenausgang Schräge weg
Küche bekommt gerade Wand
Euch stört die Position von Esstisch
Schon mal über eine Wohnküche nachgedacht?
Wohnzimmer wird Essen
essen wird Küche
Küche wird Wohnen
Über den bin ich auch gestolpert
Warum wollt ihr einen Bungalow? Ihr habt Anforderungen die gingen einfacher bei zwei Vollgeschossen.
Irgendwas stört euch, jetzt müsst ihr finden was.
Warum zieht ihr die Wand vom Kinderzimmer nicht so weit raus, das sie bündig liegt zur Küche?
Könnt ihr die Garage etwas versetzt zum Haus bauen oder gar freistehend? Der Elternteil ist schwierig zu gestalten da nur an einer Seite Fenster möglich sind. Die Garage nimmt eine ganze Wand
Hell und großzügig bekommt ihr den nicht.
Ich würde Garage weg vom Haus.
Ankleide weg.
Hauswirtschaftsraum etwas vergrößern. Schlafzimmer größer.
Kinderzimmer vergrößern, so dass die Außenwand bündig mit der Küche ist
Essecke raus aus der Küche. Ihr habt zwei Schritte weiter einen schönen esstisch. Die Ecke in der Küche mit Blick auf die Wand wird rumpelecke.
Terrassenausgang Schräge weg
Küche bekommt gerade Wand
Euch stört die Position von Esstisch
Schon mal über eine Wohnküche nachgedacht?
Wohnzimmer wird Essen
essen wird Küche
Küche wird Wohnen
illvisionz schrieb:
Hier stehe ich komplett auf dem Schlauch was ihr meintSo sollte man den Fächer und die Segmente erkennen können. Die Raumnamen habe ich mal farbig gruppiert und mit Beziehungspfeilen versehen. Zum "Wiedererkennen" habe ich den Konkretgrundriss unterlegt, den müßte man sich zum Weiterentwickeln des Abstraktgrundrisses dann wegdenken.
https://www.instagram.com/11antgmxde/
https://www.linkedin.com/company/bauen-jetzt/
illvisionz schrieb:
und was noch viel schlimmer ist, das egal wie ich es drehe, wende, spiegel es nicht zum Grundstück passt, aufgrund der Lage und der festgelegten Einfahrt.In solchen Fällen empfehle ich gerne, auf die Garage zu sch**ßen und Ersteinmal das Haus auf das Grundstück zu setzen. Oft ist damit plötzlich das Paßproblem erledigt. Das Familienheim ist schließlich die Hauptsache, Autos können auch im Freien schlafen (was ja gar nicht die Konsequenz sein muß, oft befreit schon, die "Starrachse" zwischen Menschenräumen und Autoräumen zu zerlegen).https://www.instagram.com/11antgmxde/
https://www.linkedin.com/company/bauen-jetzt/
I
illvisionz05.07.19 12:33haydee schrieb:
Der Bungalow ist nicht schlecht
Über den bin ich auch gestolpert
Warum wollt ihr einen Bungalow? Ihr habt Anforderungen die gingen einfacher bei zwei Vollgeschossen.
Irgendwas stört euch, jetzt müsst ihr finden was.
Warum zieht ihr die Wand vom Kinderzimmer nicht so weit raus, das sie bündig liegt zur Küche?
Könnt ihr die Garage etwas versetzt zum Haus bauen oder gar freistehend? Der Elternteil ist schwierig zu gestalten da nur an einer Seite Fenster möglich sind. Die Garage nimmt eine ganze Wand
Hell und großzügig bekommt ihr den nicht.
Ich würde Garage weg vom Haus.
Ankleide weg.
Hauswirtschaftsraum etwas vergrößern. Schlafzimmer größer.
Kinderzimmer vergrößern, so dass die Außenwand bündig mit der Küche ist
Essecke raus aus der Küche. Ihr habt zwei Schritte weiter einen schönen Esstisch. Die Ecke in der Küche mit Blick auf die Wand wird rumpelecke.
Terrassenausgang Schräge weg
Küche bekommt gerade Wand
Euch stört die Position von Esstisch
Schon mal über eine Wohnküche nachgedacht?
Wohnzimmer wird Essen
essen wird Küche
Küche wird WohnenDanke haydee, ich werde mir den Grundriss mal an sehn und schauen was ich verwenden kann von deinen Anmerkungen.
@11ant Ich werde mal mit dem Planer darüber reden.
I
illvisionz04.08.19 10:39Hallo,
wir haben jetzt den Wohn/Essbereich/Küche verändert, so gefällt es uns echt gut.
Die Frage die sich uns noch stellt ist wie wir jetzt noch genug Licht in den langen Wohn/Essbereich kriegen. Falls hier noch jemand ne gute Idee hat, immer her damit. Wir sind nicht so ganz glücklich mit dem Vorschlag von jeweils einem Fensterelement links und rechts da wir eigentlich ein Paar Fensterläden anbauen wollten.
Das Schlafzimmer wird vermutlich so bleiben da wir das Pech haben das genau jeweils links und rechts an der Wand eine Wasserader runter läuft. Ich bin zwar nicht abergläubisch aber man weiß ja nie.


wir haben jetzt den Wohn/Essbereich/Küche verändert, so gefällt es uns echt gut.
Die Frage die sich uns noch stellt ist wie wir jetzt noch genug Licht in den langen Wohn/Essbereich kriegen. Falls hier noch jemand ne gute Idee hat, immer her damit. Wir sind nicht so ganz glücklich mit dem Vorschlag von jeweils einem Fensterelement links und rechts da wir eigentlich ein Paar Fensterläden anbauen wollten.
Das Schlafzimmer wird vermutlich so bleiben da wir das Pech haben das genau jeweils links und rechts an der Wand eine Wasserader runter läuft. Ich bin zwar nicht abergläubisch aber man weiß ja nie.
Ähnliche Themen