ᐅ Grundrissplanung Bungalow 170qm
Erstellt am: 21.06.19 22:02
C
Chrisi190621.06.19 22:02Hallo zusammen,
wir haben vor 8 Wochen ein Grundstück reserviert und begonnen mit der Grundrissplanung. Seit ein paar Tagen haben wir einen ersten Planungsentwurf gefunden der uns im Großen und Ganzen zusagt. Noch ist nicht alles so wie wir uns das vorstellen aber ich denke wir sind auf dem richtigen Weg.
Hier nun der Fragebogen:
Bebauungsplan/Einschränkungen
Größe des Grundstücks: 819m²
Hang nein
Grundflächenzahl 0,4 ( zulässige Überschreitung 25 von 100) also 0,5? -> Das gilt nur für Nebenanlagen oder?
Geschossflächenzahl 0,6
2 Vollgeschosse
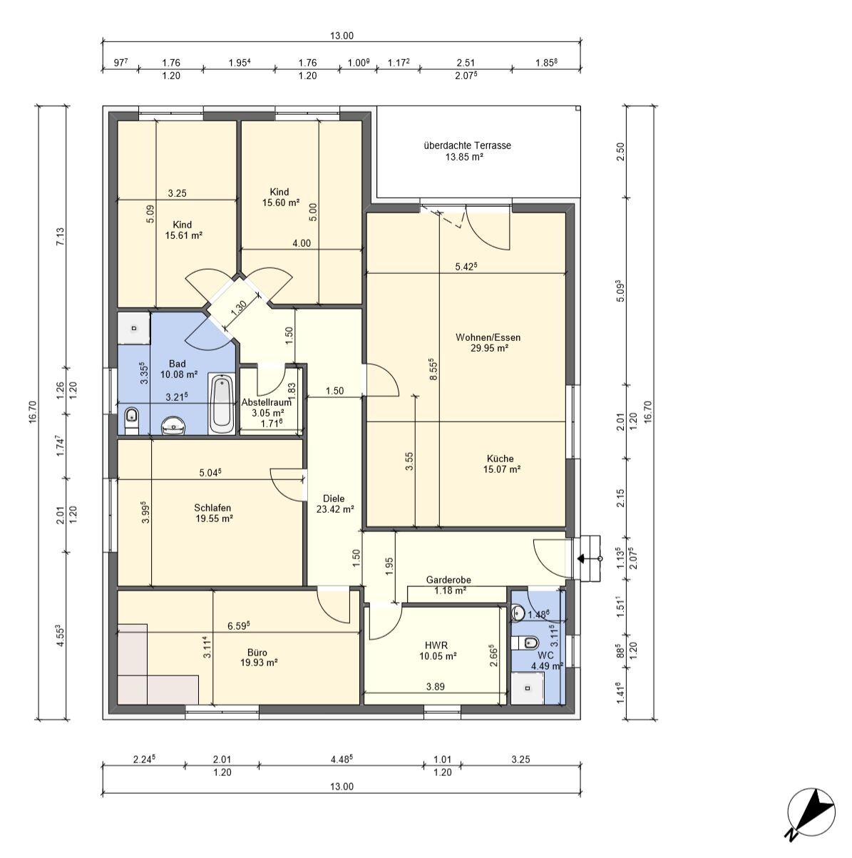
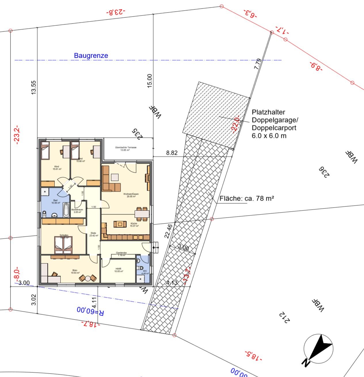
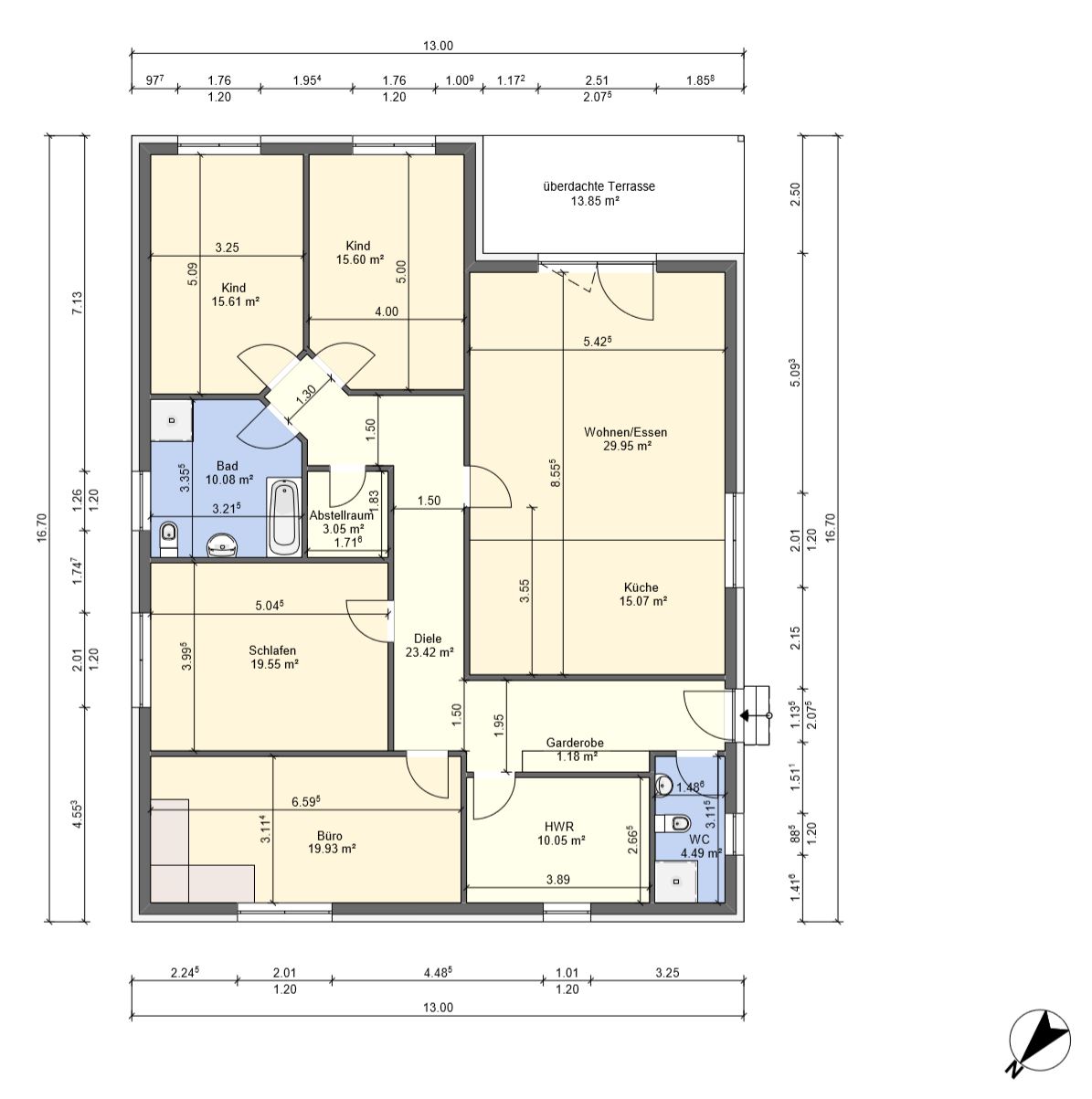
Baufenster, Baulinie und -grenze: ca13m x 25m ( nach Süd-ost ist genug Platz ), siehe auch Abbildung
Garage Abstand zur Straße mindestens 5m
Dachform: Sattel, Walmdach
Anforderungen der Bauherren
Wir hätten gerne einen großen Bungalow und als Dachform ein Walmdach. Passt also zum Bebauungsplan. Wir planen ohne Keller möchten aber auf dem Grundstück einen Abstellraum haben und die Dachkonstruktion sollte einen späteren Ausbau zulassen. Der Dachbereich soll als Abstellraum dienen und später auch als Spielzimmer für die Kinder. (Abstellen von Carrera Bahn, Tischkicker ect.) Wir sind 4 Personen: Kind1 6 Monate, Kind2 2,5 Jahre, meine Frau(35) und ich(37). Die Familienplanung ist abgeschlossen. Einer der Räume muss als Büro genutzt werden, da ich Homeoffice habe. Außerdem teile ich das Büro mit meiner Frau daher kann es etwas größer sein. Uns ist eine ebenerdige Bauweise wichtig und ausreichend große Räume.
Raumbedarf: ca 140qm ohne Verkehrswege und Hauswirtschaftsraum; (mit ehr 175qm)
Büro: Familiennutzung und Homeoffice
1 mal Schlafgäste pro Jahr, daher kein Gästezimmer
offene Architektur
offene Küche und Kochinsel
Anzahl Essplätze 4 ( ein Essbereich )
Kamin nein!
Terrasse ja!
Doppelgarage und später 1 bis 2 Stellplätze
Hausentwurf
Von wem stammt die Planung:
-Planer eines Bauunternehmens
Was gefällt besonders? Schöner Wohn/Essbereich mit Küche und Übergang zur Terrasse.
Was gefällt nicht? Warum? Diele / Verkehrsweg sehr groß. Sollte jedoch noch größer sein wenn man eine Treppe aufs Dach im Eingangs oder hinteren Bereich vor dem Kinderzimmer haben möchte.
Preisschätzung lt Planer: 216.000€
Persönliches Preislimit fürs Haus, inkl Ausstattung: 260000
favorisierte Heiztechnik: Erdwärmepumpe
Wenn Ihr verzichten müsst, auf welche Details/Ausbauten
-könnt Ihr verzichten: Möglichkeit des Ausbaus im Dach. kleineres Schlafzimmer wäre okay
-könnt Ihr nicht verzichten: den Rest
Warum ist der Entwurf so geworden, wie er jetzt ist? ZB
Entwurf vom Planer nach mehreren Planungsversuchen und Anpassungen
Was ist die wichtigste/grundlegende Frage zum Grundriss in 130 Zeichen zusammengefasst?
Gibt es vielleicht noch andere Grundrisse die unsere Bedürfnisse erfüllen? (Alternativen) Ist im Bad genug Platz für eine ebenerdige Dusche? (Das heißt, wo man auch mit einem Rollstuhl reinfahren könnte) Ist das Büro zu schmal? 3,11x6,59qm Wenn man den Dachboden ausbauen möchte, wo könnte man eine Treppe platzieren? Aktuell hat der Entwurf einen Grundriss von 13m x 16,7m. Wenn man ihn auf 13m x 17,7m zieht, würde das die Optik eurer Meinung nach verschlechtern? Meiner Meinung nach wirkt es dann sehr nach hinten gezogen.










wir haben vor 8 Wochen ein Grundstück reserviert und begonnen mit der Grundrissplanung. Seit ein paar Tagen haben wir einen ersten Planungsentwurf gefunden der uns im Großen und Ganzen zusagt. Noch ist nicht alles so wie wir uns das vorstellen aber ich denke wir sind auf dem richtigen Weg.
Hier nun der Fragebogen:
Bebauungsplan/Einschränkungen
Größe des Grundstücks: 819m²
Hang nein
Grundflächenzahl 0,4 ( zulässige Überschreitung 25 von 100) also 0,5? -> Das gilt nur für Nebenanlagen oder?
Geschossflächenzahl 0,6
2 Vollgeschosse
Baufenster, Baulinie und -grenze: ca13m x 25m ( nach Süd-ost ist genug Platz ), siehe auch Abbildung
Garage Abstand zur Straße mindestens 5m
Dachform: Sattel, Walmdach
Anforderungen der Bauherren
Wir hätten gerne einen großen Bungalow und als Dachform ein Walmdach. Passt also zum Bebauungsplan. Wir planen ohne Keller möchten aber auf dem Grundstück einen Abstellraum haben und die Dachkonstruktion sollte einen späteren Ausbau zulassen. Der Dachbereich soll als Abstellraum dienen und später auch als Spielzimmer für die Kinder. (Abstellen von Carrera Bahn, Tischkicker ect.) Wir sind 4 Personen: Kind1 6 Monate, Kind2 2,5 Jahre, meine Frau(35) und ich(37). Die Familienplanung ist abgeschlossen. Einer der Räume muss als Büro genutzt werden, da ich Homeoffice habe. Außerdem teile ich das Büro mit meiner Frau daher kann es etwas größer sein. Uns ist eine ebenerdige Bauweise wichtig und ausreichend große Räume.
Raumbedarf: ca 140qm ohne Verkehrswege und Hauswirtschaftsraum; (mit ehr 175qm)
Büro: Familiennutzung und Homeoffice
1 mal Schlafgäste pro Jahr, daher kein Gästezimmer
offene Architektur
offene Küche und Kochinsel
Anzahl Essplätze 4 ( ein Essbereich )
Kamin nein!
Terrasse ja!
Doppelgarage und später 1 bis 2 Stellplätze
Hausentwurf
Von wem stammt die Planung:
-Planer eines Bauunternehmens
Was gefällt besonders? Schöner Wohn/Essbereich mit Küche und Übergang zur Terrasse.
Was gefällt nicht? Warum? Diele / Verkehrsweg sehr groß. Sollte jedoch noch größer sein wenn man eine Treppe aufs Dach im Eingangs oder hinteren Bereich vor dem Kinderzimmer haben möchte.
Preisschätzung lt Planer: 216.000€
Persönliches Preislimit fürs Haus, inkl Ausstattung: 260000
favorisierte Heiztechnik: Erdwärmepumpe
Wenn Ihr verzichten müsst, auf welche Details/Ausbauten
-könnt Ihr verzichten: Möglichkeit des Ausbaus im Dach. kleineres Schlafzimmer wäre okay
-könnt Ihr nicht verzichten: den Rest
Warum ist der Entwurf so geworden, wie er jetzt ist? ZB
Entwurf vom Planer nach mehreren Planungsversuchen und Anpassungen
Was ist die wichtigste/grundlegende Frage zum Grundriss in 130 Zeichen zusammengefasst?
Gibt es vielleicht noch andere Grundrisse die unsere Bedürfnisse erfüllen? (Alternativen) Ist im Bad genug Platz für eine ebenerdige Dusche? (Das heißt, wo man auch mit einem Rollstuhl reinfahren könnte) Ist das Büro zu schmal? 3,11x6,59qm Wenn man den Dachboden ausbauen möchte, wo könnte man eine Treppe platzieren? Aktuell hat der Entwurf einen Grundriss von 13m x 16,7m. Wenn man ihn auf 13m x 17,7m zieht, würde das die Optik eurer Meinung nach verschlechtern? Meiner Meinung nach wirkt es dann sehr nach hinten gezogen.
Eine Großpackung Schachteln macht noch keinen Grundriss. Das Wohnzimmer liegt vom Eingang gesehen in Sibirien. Eine Nordung des Grundrisses und Lageplanes wäre hilfreich.
https://www.instagram.com/11antgmxde/
https://www.linkedin.com/company/bauen-jetzt/
https://www.instagram.com/11antgmxde/
https://www.linkedin.com/company/bauen-jetzt/
C
Chrisi190621.06.19 23:18C
Chrisi190621.06.19 23:3711ant schrieb:
Eine Großpackung Schachteln macht noch keinen Grundriss. Das Wohnzimmer liegt vom Eingang gesehen in Sibirien. Eine Nordung des Grundrisses und Lageplanes wäre hilfreich.Ich mag die Schachteln. Das heißt, quadratische oder rechteckige Räume ohne Schrägen und Winkel.
C
Chrisi190621.06.19 23:52Puh. Ich Zweifel an dem Hauspreis, ganz gewaltig.
216000€ für 175qm... das sind in etwas 1235€/qm... und das, wo man für ein Durchschnittsstandardhaus 2000€/qm kalkuliert. Plus Nebenkosten. Reiner Hauspreis für ein Energieeinsparverordnung-Haus. Und wir bewegen uns in einem etwas teureren Segment eines Bungalow-Hauses. 1600€/qm wäre schön ein Dumping-Preis.
Und ich frage mich ganz ehrlich, welcher GU diese Kettenvermassungen anbietet, wo die Fenster vermasst werden und nicht die Räume. Das passiert eigentlich Laien, wenn sie Software nicht richtig beherrschen und einfach mal die Kettenvermassung ohne Logik anwenden.
Bevor ich noch Freehand was schreibe, erst mal einige Antworten
Die Begründung hat @11ant schon genannt: die Räume sind scheinbar ohne Plan aneinandergereiht, und irgendwie muss man im letzten Zipfel wohl noch 3 Zimmer erschließen.
Sehe ich übrigens genauso.
Es ist toll, dass Ihr den Entwurf gut findet.
Mich persönlich würde schon stören, dass der Eingang und die Auffahrt dort geplant ist, wo man eigentlich gern abends sitzen würde. Die Sonne ist ja ab Nachmittags bis abends mehr im SW und West zu finden. Dann möchte man eigentlich dort auch den Feierabend genießen.
Dafür fehlt mir dann auch der Außenzugang von der Küche zu einer Terrasse. Die Küche ist leider nicht ergonomisch eingerichtet. Die Hausfrau oder -Mann hat da beim Kochen jede Menge Schritte zu tun. Außerdem muss/kann man vom Sofa direkt auf die Küche schauen. Das hat auch eher nur Nachteile.
Eine Abtrennung von Privaträumen gibt es hier nicht. Alles ist bunt gemischt. Eine Treppe könnte man hier nur im Bereich der Abstellkammer generieren, dann aber eine Raumspartreppe.
Grundsätzlich würde ich die Auffahrt und das Blech im Osten parken.
Mehr bodentiefe Fenster für den Austritt in den Garten und Tageslicht wie auch mehr räumliche Freiheit und Einbindung in die Natur. Wofür hat man ein Bungalow?
Dann gleich eine feste Treppe einbauen lassen. Dann kann man den AB gleich nach oben verlagern.
Haus zonieren in Alltagsfläche und Privaträume. Dadurch kurzer Flur. Dieser mittig.
Die Wünsche zur Barrierefreiheit und Treppe müsst ihr dem GU sagen. Und er soll Euch etwas kleineres planen mit Mindestens ca. 10qm weniger Flur, was dann auch preislich nicht negativ überrascht.
Habt ihr Euch denn schon mal andere Grundrisse angeschaut?
216000€ für 175qm... das sind in etwas 1235€/qm... und das, wo man für ein Durchschnittsstandardhaus 2000€/qm kalkuliert. Plus Nebenkosten. Reiner Hauspreis für ein Energieeinsparverordnung-Haus. Und wir bewegen uns in einem etwas teureren Segment eines Bungalow-Hauses. 1600€/qm wäre schön ein Dumping-Preis.
Und ich frage mich ganz ehrlich, welcher GU diese Kettenvermassungen anbietet, wo die Fenster vermasst werden und nicht die Räume. Das passiert eigentlich Laien, wenn sie Software nicht richtig beherrschen und einfach mal die Kettenvermassung ohne Logik anwenden.
Chrisi1906 schrieb:
2 Vollgeschosse
Chrisi1906 schrieb:Nein, passt nicht. Ein Bungalow ist eingeschossig. Ihr dürft aber beides
Wir hätten gerne einen großen Bungalow und als Dachform ein Walmdach. Passt also zum Bebauungsplan.
Bevor ich noch Freehand was schreibe, erst mal einige Antworten
Chrisi1906 schrieb:Die Sache mit dem geschlossenem und langem Flur: das ist nicht offen.
offene Architektur
Chrisi1906 schrieb:Wo sollen die denn Eurer Meinung nach hin? An die Terrasse?
Doppelgarage und später 1 bis 2 Stellplätze
Chrisi1906 schrieb:Sicher! Tausende. Und die meisten davon wahrscheinlich dann doch durchdachter mit kürzeren Verkehrswegen, rechteckigen Kinderzimmer und einer Wohn- wie auch Privatzone.
Gibt es vielleicht noch andere Grundrisse die unsere Bedürfnisse erfüllen?
Chrisi1906 schrieb:Wenn Ihr barrierefrei planen wollt, dann reicht es nicht, nur die Dusche zu berollern zu können. Auch WC und Waschtisch braucht Platz. Genauso wie zwischen Bett und Schrank, als auch die Türen. So etwas muss mitgeplant werden, kostet auch wieder mehr,
Ist im Bad genug Platz für eine ebenerdige Dusche? (Das heißt, wo man auch mit einem Rollstuhl reinfahren könnte)
Chrisi1906 schrieb:Es ist sehr lang, ja. Damit kann man leben, gut geplant ist aber etwas anderes. Den Platz kann der Essbereich gut ab.
Ist das Büro zu schmal? 3,11x6,59qm
Chrisi1906 schrieb:Eine Treppe bzw die Positionierung sollte von vornherein geplant werden. In diesem Entwurf sehe ich keinen Platz.
Wenn man den Dachboden ausbauen möchte, wo könnte man eine Treppe platzieren?
Chrisi1906 schrieb:Warum sollte man ihn größer ziehen?
Wenn man ihn auf 13m x 17,7m zieht, würde das die Optik eurer Meinung nach verschlechtern?
Chrisi1906 schrieb:Ihr habt 3! Zimmer plus Flur, die eben nicht das rechteckige Format haben.
Ich mag die Schachteln. Das heißt, quadratische oder rechteckige Räume ohne Schrägen und Winkel.
Die Begründung hat @11ant schon genannt: die Räume sind scheinbar ohne Plan aneinandergereiht, und irgendwie muss man im letzten Zipfel wohl noch 3 Zimmer erschließen.
Sehe ich übrigens genauso.
Es ist toll, dass Ihr den Entwurf gut findet.
Mich persönlich würde schon stören, dass der Eingang und die Auffahrt dort geplant ist, wo man eigentlich gern abends sitzen würde. Die Sonne ist ja ab Nachmittags bis abends mehr im SW und West zu finden. Dann möchte man eigentlich dort auch den Feierabend genießen.
Dafür fehlt mir dann auch der Außenzugang von der Küche zu einer Terrasse. Die Küche ist leider nicht ergonomisch eingerichtet. Die Hausfrau oder -Mann hat da beim Kochen jede Menge Schritte zu tun. Außerdem muss/kann man vom Sofa direkt auf die Küche schauen. Das hat auch eher nur Nachteile.
Eine Abtrennung von Privaträumen gibt es hier nicht. Alles ist bunt gemischt. Eine Treppe könnte man hier nur im Bereich der Abstellkammer generieren, dann aber eine Raumspartreppe.
Grundsätzlich würde ich die Auffahrt und das Blech im Osten parken.
Mehr bodentiefe Fenster für den Austritt in den Garten und Tageslicht wie auch mehr räumliche Freiheit und Einbindung in die Natur. Wofür hat man ein Bungalow?
Dann gleich eine feste Treppe einbauen lassen. Dann kann man den AB gleich nach oben verlagern.
Haus zonieren in Alltagsfläche und Privaträume. Dadurch kurzer Flur. Dieser mittig.
Die Wünsche zur Barrierefreiheit und Treppe müsst ihr dem GU sagen. Und er soll Euch etwas kleineres planen mit Mindestens ca. 10qm weniger Flur, was dann auch preislich nicht negativ überrascht.
Habt ihr Euch denn schon mal andere Grundrisse angeschaut?
Ähnliche Themen