Bungalow - ca. 146 m² - Verbesserungsvorschläge

4,00 Stern(e) 12 Votes
Zuletzt aktualisiert 22.11.2025
Sie befinden sich auf der Seite 5 der Diskussion zum Thema: Bungalow - ca. 146 m² - Verbesserungsvorschläge
>> Zum 1. Beitrag <<

kaho674

kaho674

Das Wohnzimmer wäre so leider auch nicht meins. Der Esstisch steht in die Ecke gequetscht und wer planunten sitzt, verbrennt sich am Kamin.
Als Gast beim Eintritt nahezu direkt in der Küche zu stehen, vermittelt den Eindruck, man solle doch bitteschön mit an den Abwaschen denken.

Wäre es meins, flöge die Insel zu Gunsten des großen Familien-Tisches raus. Das ganze sähe dann etwa so aus, wobei gleich mal der Elterntrakt mit aufgeräumt wurde und eine einladende Doppeltür in den Wohnbereich lockt:


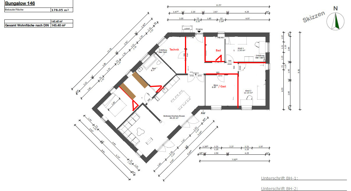
Grundriss eines Bungalows mit Wohn- und Kochbereich, Bad, Technik, Gästezimmer und zwei Kinderzimmer.
 
M

mathias8541

Das Haus verdient den ersten Preis in der Kategorie: "wie man mit nur 140qm Wohnfläche ein 860qm Grundstück komplett verbaut".
Ich zahle für das Grundstück vielleicht nur ein vierzigstel pro Quadratmeter, als jemand in München, wo jeder Quadratmeter bis ins Kleinste ausgeschöpft werden muss und ein Bungalow im Entferntesten nicht realisiert werden kann. Bei anderen Grundstückspreisen kann ich verstehen, dass bei so einer Planung ein wenig Unmut aufkommt.

Du hast hier je etwa 9m² Gast und Büro. Das sind zwei Zwergenräume. Leg und nutzt die doch zusammen und mach daraus dann einen Raum mit ca. 14 bis 16m². Das ist angenehmer zum Leben und Atmen für alle.
Guter Punkt, werde ich mal so skizzieren. Ebenfalls die Anmerkungen zu Schlafzimmer, Ankleide und Badezimmer.

Als Gast beim Eintritt nahezu direkt in der Küche zu stehen, vermittelt den Eindruck, man solle doch bitteschön mit an den Abwaschen denken.
Eine Insel sollte schon vorhanden sein. Nur eine einfach Küchenzeile reicht nicht aus und ist optisch auch nicht gerade der Hit.

Das Wohnzimmer wäre so leider auch nicht meins. Der Esstisch steht in die Ecke gequetscht und wer planunten sitzt, verbrennt sich am Kamin.
Wir sind noch stark am überlegen ob tatsächlich ein Kamin mit rein soll. Für die Gemütlichkeit ist es bestimmt toll, rein von der Praktikabilität bezogen auf den Grundriss wohl eher nicht (Platz, zu viel Wärme usw.) Eventuell wird es ein integrierter Ethanol Kamin.

Mir gefällt vom Grundsatz her der Bungalow....Was mich aber besonders interessieren würde, wie sollen Carport/Stellplätze aufs Grundstück platziert werden. Da ist Straße im Norden und im Südosten .. oder nur Südosten?
Und, was ist genordet? Der reine Grundriss oder die Lageskizze?
Carport und Stellplätze sollen in den nordöstlichen Bereich gelegt werden. Wo genau die Zufahrt inklusive Carport hin soll, muss noch überlegt werden.
Im Norden und Südosten befindet sich ein Straße (Sackgassenlage).
Genordet ist nur die Lageskizze, nicht der Grundriss.
 
11ant

11ant

Das ganze sähe dann etwa so aus, wobei gleich mal der Elterntrakt mit aufgeräumt wurde
Ich bewundere Deine buddhistische Gelassenheit beim Debuggen selbst gröbster Fehlkonstrukte und Denkverstopfungen.

Wo genau die Zufahrt inklusive Carport hin soll, muss noch überlegt werden.
Zufahrt tja, Carport nein: das Haus spreizt sich bereits ausfüllend in das mögliche Baufenster. Auch scheint mir das Grundstück an einer Einmündung zu liegen, die Beschränkungen hinsichtlich der Zufahrtslage mit sich bringen dürfte.
 
Zuletzt aktualisiert 22.11.2025
Im Forum Grundrissplanung / Grundstücksplanung gibt es 2535 Themen mit insgesamt 87992 Beiträgen


Ähnliche Themen zu Bungalow - ca. 146 m² - Verbesserungsvorschläge
Nr.ErgebnisBeiträge
1Grundriss Bungalow auf schon genutztem Grundstück 108
2Erster Grundriss Einfamilienhaus - Eure Ideen auch zum Grundstück - Seite 533
3Grundriss Einfamilienhaus, 2 Vollgeschosse ca. 180qm, 600qm Grundstück - Seite 756
4Planung Grundriss Doppelhaus, kleines Grundstück, Bauhausstil 34
5Grundriss-Entwurf: Einfamilienhaus mit Keller; 560qm Grundstück - Seite 865
6Grundriss 160qm Einfamilienhaus - Verbesserungsideen? - Seite 767
7Grundriss: Offenes Wohnzimmer inkl. Kamin - Feedback 11
8Haus, Garage / Carport auf dem Grundstück platzieren - Seite 493
9Hang-Grundstück, Carport abfangen 22
10Grundriss ca. 170 m² Einfamilienhaus, ohne Keller mit Carport - Seite 489
11Zufahrt zum Carport wird durch Laterne behindert 17
12Grundriss mit Garage auf Grundstück realisierbar? - Seite 429
13Erster Grundriss-Versuch für Kettenhaus auf kleinem Grundstück 94
14Grundstück nicht Rechteckig - Idee für Grundriss gesucht - - Seite 320
15Einfamilienhaus 150m2 Grundriss + Planung auf dem Grundstück 24
16Grundriss-Planung und Platzierung - Einfamilienhaus ca. 200qm auf 900qm Grundstück - Seite 255
17Grundriss Einfamilienhaus 133qm Grundstück 850qm 16
18Grundriss Einfamilienhaus ca. 300qm, Grundstück 780qm 24
19Grundriss Einfamilienhaus 2 Vollgeschoss ~180m² Wohnfläche - 760m² Grundstück - Seite 344
20Grundriss Einfamilienhaus mit Flachdach auf 600m² Grundstück - Seite 419

Oben