Liebe Hausbau-Community,
zunächst vielen Dank für die unzählbaren Tipps und Anregungen von euch. Das Forum besuche ich seit vielen Jahren und habe bisher immer sehr davon profitiert.
Demnach möchte ich hiermit auch etwas zurückgeben und über unser Bauvorhaben berichten. Ganz uneigennützig ist dies jedoch nicht, ich freue mich über Ratschläge und Empfehlungen.
Seit etwa 10 Jahren suche ich nach einem Haus und habe sehr viele Bestandsimmobilien besichtigt. Bauen war eigentlich keine Option, da Grundstücke nicht verfügbar oder viel zu teuer waren. Das ideale Haus habe ich bisher nicht gefunden, dafür aber vor knapp 10 Jahren die erste Eigentumswohnung gekauft und dann vor zwei Jahren die zweite. Die Wohnungen sind jetzt beide vermietet, laufen nun schon fast kostendeckend und in etwa einem Jahr bringen sie dann auch schon Ertrag.
Erfreulicherweise haben wir nun ein Grundstück in einem Neubaugebiet gekauft und wollen trotz der angespannten Situation noch den Traum vom eigenen Haus erfüllen.
Ein paar Infos über uns:
Es bleiben noch 570.000 Euro, wir rechnen mit etwa 60.000 Baunebenkosten.
Außenanlagen erfolgen schrittweise in Eigenleistung, Garage wäre auch aufschiebbar.
Wir brauchen demnach einen Anbieter, der uns für etwa 470.000 Euro ein Haus bauen kann, das ist bei der gewünschten Größe recht sportlich. Wir hatten viele Gespräche in Musterhäusern, die meisten Anbieter landen bei mindestens 500.000 Euro.
Angebot 1:
Ausgesucht haben wir dann einen kleinen regionalen Anbieter, der uns ein Ausbauhaus in Massivbauweise mit Liapor (Blähbeton) errichten würde. Der Preis ist für den gebotenen Standard fair und wäre für uns ausreichend. Einen Festpreis hätten wir hier aber lediglich für das Ausbauhaus. Die weiteren Gewerke würden von diesem Anbieter zwar betreut und von Partnerfirmen ausgeführt werden, aber ich schätze, dass da Festpreisgarantien unrealistisch sind. Im Idealfall kommen wir hier mit unserem Budget hin, aber der Puffer ist dann sehr gering und die Außenanlagen und Garage wären vielleicht vorerst gefährdet oder sehr minimalistisch.
Hier meine erste Frage an euch: Der Anbieter sagt uns eigentlich zu, aber wir sind uns unsicher, ob man wegen Krieg/Inflation/Materialengpässen auf Festpreise verzichten könnte. Ich sehe zwar wegen anstehender Auftragsdellen im Baugewerbe gewisse Chancen auf stabile oder sogar leicht günstigere Preise, aber das Inflationsrisiko durch die Energiekrise könnte vorerst noch das beherrschende Thema sein. Würdet ihr derzeit ein solches Risiko eingehen?
Ein Haus für z.B. 1 Mio durch Kostenexplosion ist eigentlich nicht im Budget und wäre bei steigenden Zinsen langfristig ein großer Klotz am Bein. Ruinieren würde es uns nicht, aber dann müssten wir (die wirklich schönen) Eigentumswohnungen wohl verkaufen.
Angebot 2:
Die Alternative: Ein sehr großer Anbieter aus einer Dachgesellschaft, den hier vermutlich jeder kennt. Premium innerhalb der Gruppe, aber insgesamt eben doch sehr auf gutes Preis-Leistungsverhältnis getrimmt. Holzständerbauweise – nicht unser Favorit, da wir zur Massivbauweise tendieren, aber auch aufgrund der Informationen aus diesem Forum wäre ich wohl auch mit dieser Bauweise am Ende zufrieden.
Dort haben wir ein preislich gutes Angebot bekommen, nah an 400.000 Euro. Ich habe nun jede Menge Extras und Sonderwünsche ausgewählt und lande dann trotzdem erst bei etwa 450.000 Euro. Es sind nicht alle Positionen mit dem ersten Angebot vergleichbar, dafür sind schon einige Dinge enthalten, die im ersten Angebot noch nicht eingepreist sind.
Mit Baunebenkosten, Außenanlagen und Doppelgarage sind wir noch innerhalb des Budgets und könnten sogar noch 20.000 Euro für Bemusterung zusätzlich ausgeben.
Über den Anbieter liest man positive Nachrichten, aber es gibt auch diverse sehr kritische Aussagen. Bei der Vielzahl an Häuser, die dort jährlich erstellt werden, ist die Anzahl der Kritiker vielleicht absolut im Rahmen, aber treffen könnte es einen selbst sicher auch.
Meine weiteren Fragen an euch: Wie seht ihr das Risiko mit einem solchen sehr großen Anbieter auf die Nase zu fallen? Würdet ihr bei einem so hohen Budget auf einen Anbieter setzen, der nicht unbedingt den Ruf genießt, Häuser im höchsten Standard zu errichten? Ich will das Haus zwar nicht wieder verkaufen, aber die Wertermittlung eines Hauses spielt in Zukunft auch bei Anschlussfinanzierungen eine Rolle bei dem Beleihungswert. Sollte man das Haus doch mal verkaufen müssen oder wollen, könnten einige Interessenten vielleicht wegen der Bauweise oder dem damaligen GU eher abgeneigt sein. Hat jemand mit diesem Anbieter gebaut oder wohnt in einem solchen Haus?
Grundrissplanungen sind schon sehr weit fortgeschritten und mehrfach optimiert. Das Baugebiet ist bereit und da die Finanzierung schon steht sollte es bald losgehen. Das zweite Angebot läuft auch zeitnah aus, daher ist die erste Entscheidung eigentlich erstmal gegen/für das zweite Angebot. Bei dem ersten Angebot wäre es auch möglich dann noch neue Vergleichsangebote zu prüfen. Sofern wir den zweiten Anbieter auswählen wollen, müssten wir uns dafür zeitnah entscheiden.
Vielen Dank für jegliche Tipps und Empfehlungen. Ich gebe gern weitere Informationen durch.
zunächst vielen Dank für die unzählbaren Tipps und Anregungen von euch. Das Forum besuche ich seit vielen Jahren und habe bisher immer sehr davon profitiert.
Demnach möchte ich hiermit auch etwas zurückgeben und über unser Bauvorhaben berichten. Ganz uneigennützig ist dies jedoch nicht, ich freue mich über Ratschläge und Empfehlungen.
Seit etwa 10 Jahren suche ich nach einem Haus und habe sehr viele Bestandsimmobilien besichtigt. Bauen war eigentlich keine Option, da Grundstücke nicht verfügbar oder viel zu teuer waren. Das ideale Haus habe ich bisher nicht gefunden, dafür aber vor knapp 10 Jahren die erste Eigentumswohnung gekauft und dann vor zwei Jahren die zweite. Die Wohnungen sind jetzt beide vermietet, laufen nun schon fast kostendeckend und in etwa einem Jahr bringen sie dann auch schon Ertrag.
Erfreulicherweise haben wir nun ein Grundstück in einem Neubaugebiet gekauft und wollen trotz der angespannten Situation noch den Traum vom eigenen Haus erfüllen.
Ein paar Infos über uns:
- 2 Erwachsene (40 J. / 38 J.), zwei Kinder (Grundschulalter)
- Nettoverdienst mit Kindergeld ca. 8000 Euro
- Mieteinkünfte von ca. 1800 Euro (derzeit noch kostenneutral, ab nächstem Jahr ca. 400 Euro monatlicher Ertrag, mittelfristig deutlich mehr da Darlehen dann schrittweise getilgt sind)
- Budget 850.000 Euro (Finanzierung für den Hausbau ist erledigt)
- Grundstückskosten mit Nebenkosten ca. 280.000 Euro, bereits erworben
- Die Wohnungen rechnen sich steuerlich eigentlich nur im Doppelpack und sollen nicht verkauft werden. Das Budget könnte im Notfall aber wohl noch ein wenig aufgestockt werden.
- KFW55 Standard reicht uns aus, wird auch angeboten
- Stadtvilla auf Bodenplatte mit Vordach, Wärmepumpe, Photovoltaikanlage
- Evtl. mit kleinem Erker an der Haustür und zur Gartenseite
- EG mit Wohnzimmer, offener Küche, Hauswirtschaftsraum, Arbeitszimmer, WC/Dusche
- OG mit 2 Kinderzimmern, Schlafzimmer, 2 Bädern, Gästezimmer
- Deckenhöhe 2,80m, elektrische Rollläden
- *Doppelgarage freistehend
Es bleiben noch 570.000 Euro, wir rechnen mit etwa 60.000 Baunebenkosten.
Außenanlagen erfolgen schrittweise in Eigenleistung, Garage wäre auch aufschiebbar.
Wir brauchen demnach einen Anbieter, der uns für etwa 470.000 Euro ein Haus bauen kann, das ist bei der gewünschten Größe recht sportlich. Wir hatten viele Gespräche in Musterhäusern, die meisten Anbieter landen bei mindestens 500.000 Euro.
Angebot 1:
Ausgesucht haben wir dann einen kleinen regionalen Anbieter, der uns ein Ausbauhaus in Massivbauweise mit Liapor (Blähbeton) errichten würde. Der Preis ist für den gebotenen Standard fair und wäre für uns ausreichend. Einen Festpreis hätten wir hier aber lediglich für das Ausbauhaus. Die weiteren Gewerke würden von diesem Anbieter zwar betreut und von Partnerfirmen ausgeführt werden, aber ich schätze, dass da Festpreisgarantien unrealistisch sind. Im Idealfall kommen wir hier mit unserem Budget hin, aber der Puffer ist dann sehr gering und die Außenanlagen und Garage wären vielleicht vorerst gefährdet oder sehr minimalistisch.
Hier meine erste Frage an euch: Der Anbieter sagt uns eigentlich zu, aber wir sind uns unsicher, ob man wegen Krieg/Inflation/Materialengpässen auf Festpreise verzichten könnte. Ich sehe zwar wegen anstehender Auftragsdellen im Baugewerbe gewisse Chancen auf stabile oder sogar leicht günstigere Preise, aber das Inflationsrisiko durch die Energiekrise könnte vorerst noch das beherrschende Thema sein. Würdet ihr derzeit ein solches Risiko eingehen?
Ein Haus für z.B. 1 Mio durch Kostenexplosion ist eigentlich nicht im Budget und wäre bei steigenden Zinsen langfristig ein großer Klotz am Bein. Ruinieren würde es uns nicht, aber dann müssten wir (die wirklich schönen) Eigentumswohnungen wohl verkaufen.
Angebot 2:
Die Alternative: Ein sehr großer Anbieter aus einer Dachgesellschaft, den hier vermutlich jeder kennt. Premium innerhalb der Gruppe, aber insgesamt eben doch sehr auf gutes Preis-Leistungsverhältnis getrimmt. Holzständerbauweise – nicht unser Favorit, da wir zur Massivbauweise tendieren, aber auch aufgrund der Informationen aus diesem Forum wäre ich wohl auch mit dieser Bauweise am Ende zufrieden.
Dort haben wir ein preislich gutes Angebot bekommen, nah an 400.000 Euro. Ich habe nun jede Menge Extras und Sonderwünsche ausgewählt und lande dann trotzdem erst bei etwa 450.000 Euro. Es sind nicht alle Positionen mit dem ersten Angebot vergleichbar, dafür sind schon einige Dinge enthalten, die im ersten Angebot noch nicht eingepreist sind.
Mit Baunebenkosten, Außenanlagen und Doppelgarage sind wir noch innerhalb des Budgets und könnten sogar noch 20.000 Euro für Bemusterung zusätzlich ausgeben.
Über den Anbieter liest man positive Nachrichten, aber es gibt auch diverse sehr kritische Aussagen. Bei der Vielzahl an Häuser, die dort jährlich erstellt werden, ist die Anzahl der Kritiker vielleicht absolut im Rahmen, aber treffen könnte es einen selbst sicher auch.
Meine weiteren Fragen an euch: Wie seht ihr das Risiko mit einem solchen sehr großen Anbieter auf die Nase zu fallen? Würdet ihr bei einem so hohen Budget auf einen Anbieter setzen, der nicht unbedingt den Ruf genießt, Häuser im höchsten Standard zu errichten? Ich will das Haus zwar nicht wieder verkaufen, aber die Wertermittlung eines Hauses spielt in Zukunft auch bei Anschlussfinanzierungen eine Rolle bei dem Beleihungswert. Sollte man das Haus doch mal verkaufen müssen oder wollen, könnten einige Interessenten vielleicht wegen der Bauweise oder dem damaligen GU eher abgeneigt sein. Hat jemand mit diesem Anbieter gebaut oder wohnt in einem solchen Haus?
Grundrissplanungen sind schon sehr weit fortgeschritten und mehrfach optimiert. Das Baugebiet ist bereit und da die Finanzierung schon steht sollte es bald losgehen. Das zweite Angebot läuft auch zeitnah aus, daher ist die erste Entscheidung eigentlich erstmal gegen/für das zweite Angebot. Bei dem ersten Angebot wäre es auch möglich dann noch neue Vergleichsangebote zu prüfen. Sofern wir den zweiten Anbieter auswählen wollen, müssten wir uns dafür zeitnah entscheiden.
Vielen Dank für jegliche Tipps und Empfehlungen. Ich gebe gern weitere Informationen durch.
Dribbdebach schrieb:
Ich schicke euch bald auch ein paar Grundrisse.Wir sind schon sehr gespannt!... und noch ein paar Worte mehr, weil das hier so gewünscht ist ... 😉
N
Neubau202213.07.22 13:32AxelH. schrieb:
Nun, sagen wir es mal so, das Thema Kontrollierte-Wohnraumlüftung wird hier sehr kontrovers diskutiert. Ich kann nur von meinen Erfahrungen berichten. Und die sagen: Pflichtprogramm. Je dichter das Haus, desto größer die Notwenigkeit zum Luftaustausch, besonders in den Jahreszeiten, wo die Balkontür nicht immer offen steht. Und wohl niemand geht gerne 2x täglich durchs ganze Haus, um durchzulüften. Ganz zu schweigen von der Luft, die man ohne Kontrollierte-Wohnraumlüftung nach drei Woche Urlaub im geliebten Heim vorfindet.
Wärmerückgewinnung bleibt immer ein Thema, egal, wie ich das Haus beheize. Die Wärme soll drinnen bleiben. Und da spielt es keinen Rolle, wie die erzeugt wurde.Nicht vergessen eine Kontrollierte-Wohnraumlüftung mit Enthalpiewärmetauscher zu nehmen. Dann hast das Problem mit der trocknen Luft nicht.
N
Neubau202213.07.22 13:47Schimmel sollte auch ohne Kontrollierte-Wohnraumlüftung nicht vorkommen. Versuche als Innenputz Kalkputz zu bekommen oder zumindest einen Anteil vom Putz sollte Kalk sein. Ist ein natürlicher Schimmelschutz.
Neubau2022 schrieb:
Schimmel sollte auch ohne Kontrollierte-Wohnraumlüftung nicht vorkommen. Versuche als Innenputz Kalkputz zu bekommen oder zumindest einen Anteil vom Putz sollte Kalk sein. Ist ein natürlicher Schimmelschutz.Und dann Silikatfarbe drauf. Schützt auch.D
Dribbdebach13.07.22 13:54Neubau2022 schrieb:
Schimmel sollte auch ohne Kontrollierte-Wohnraumlüftung nicht vorkommen. Versuche als Innenputz Kalkputz zu bekommen oder zumindest einen Anteil vom Putz sollte Kalk sein. Ist ein natürlicher Schimmelschutz."Die Liaporwände werden, auf Wunsch, preisgünstig bereits im Werk maschinell einseitig verputzt. Auf der anderen Seite wird auf der Baustelle ein Spachtelputz aufgebracht." Da gibt die Bauleistungsbeschreibung nicht viel her. Ich frage den Kalkputz an, danke!Maschinell liefert das vielleicht auch ein schönes, einheitliches Bild? Oder hat das vor Ort einen Vorteil?
D
Dribbdebach30.07.22 16:18Liebe Community,
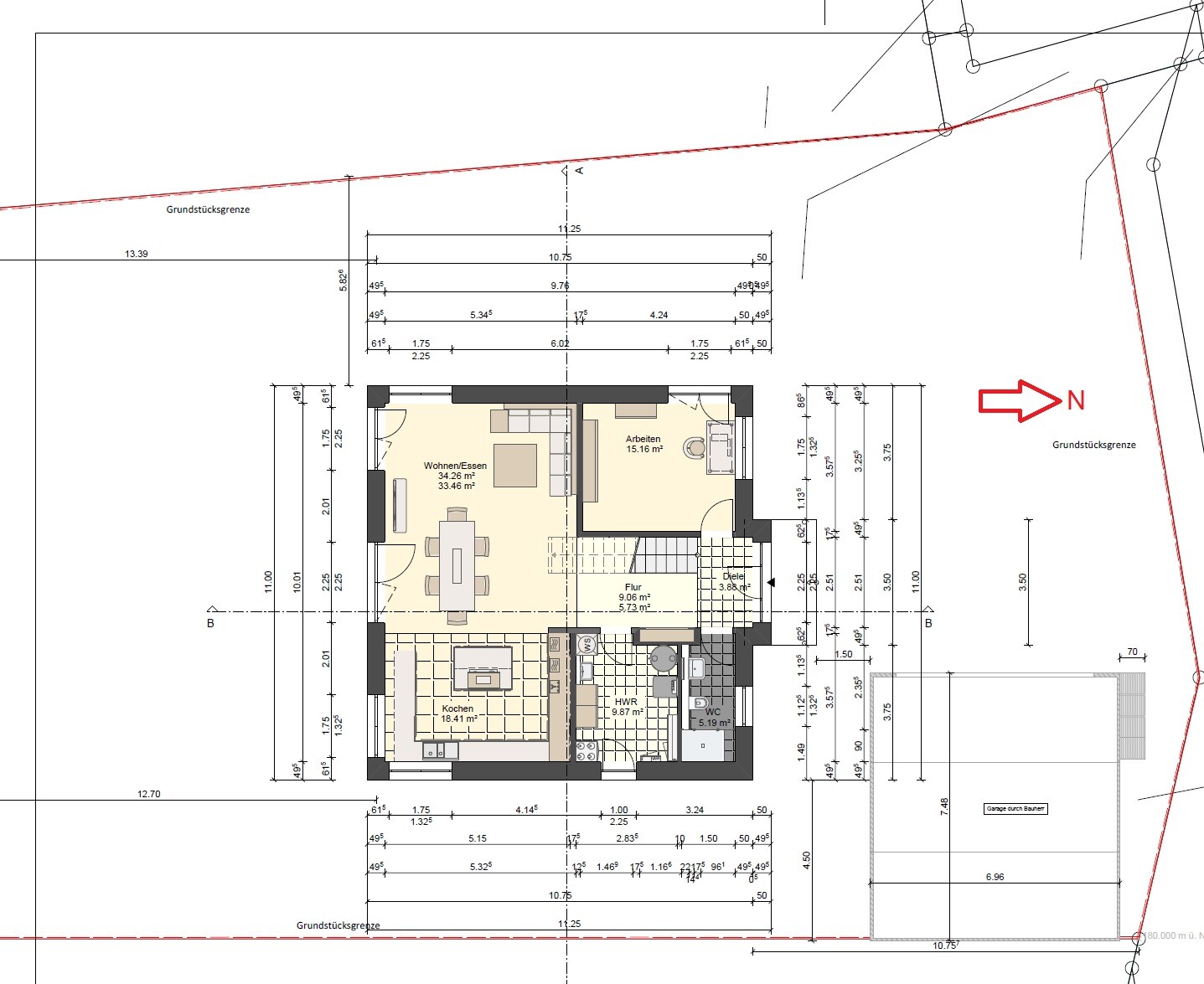
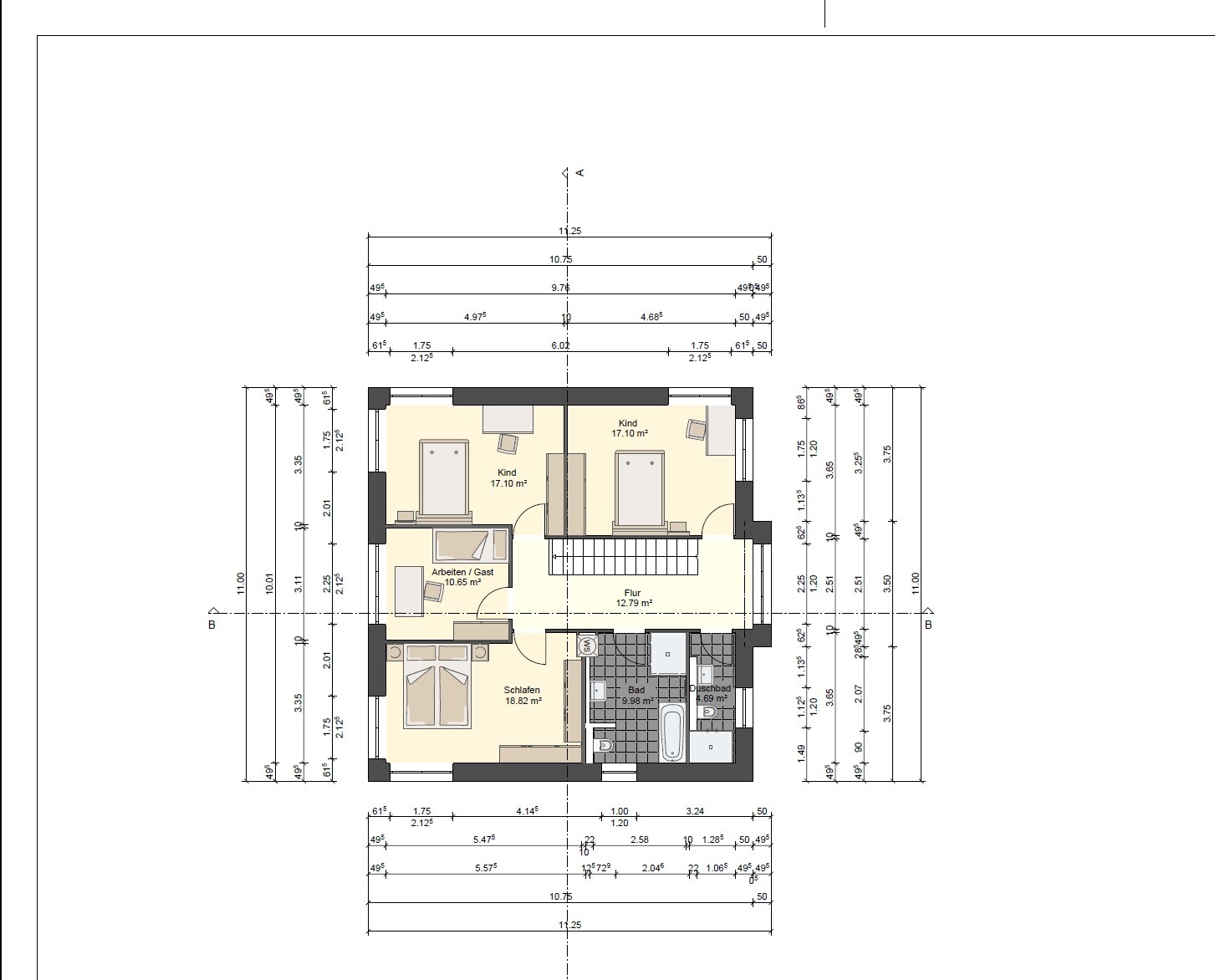
hier nun unser derzeitiger Entwurf. Es ist ein Kompromiss aus Wünschen und Budgetbegrenzung, aber wir würden das in der Form so umsetzen. Lediglich die „Ecken“ am Gästezimmer sind mir noch ein Dorn im Auge, aber das würde sich wohl nur mit mehr Grundfläche beheben lassen.
Bebauungsplan/Einschränkungen
Größe des Grundstücks 753qm
Hang: Nein
Grundflächenzahl 0,3
Geschossflächenzahl 0,6
Baufenster, Baulinie und -grenze: 5m Abstand zur Straße
Randbebauung: Garage an Nachbargrenze möglich
Anzahl Stellplatz: 2
Geschossigkeit: Zwei Vollgeschosse
Dachform: Die gängigen Dachformen sind alle erlaubt. Unter 10° Neigung Begrünung erforderlich.
Stilrichtung: Keine Besonderheiten
Ausrichtung: Unsere Anschrift ist die Straße auf der Südseite. Wir wollen unser Haus recht weit im nördlichen Teil des Grundstücks platzieren. Zufahrt erfolgt dann über die Nordseite und dort ist auch die Eingangstür und der Garten liegt im Süden. Bauamt und Grundstücksgesellschaft haben keine Einwände.
Maximale Höhen/Begrenzungen: OK Geb. 9,5m
weitere Vorgaben: Zisternenpflicht, Wärmepumpen innenliegend
Anforderungen der Bauherren
Stilrichtung, Dachform, Gebäudetyp: Stadtvilla mit Walmdach
Keller, Geschosse: Kein Keller, zwei Vollgeschosse
Anzahl der Personen, Alter: Vier (40,38,7,5)
Raumbedarf im EG, OG: Siehe Grundriss. Ankleide haben wir gestrichen, sonst sollte das so in etwa bleiben.
Büro: Familiennutzung oder Homeoffice? Beides.
Schlafgäste pro Jahr: Regelmäßig am Wochenende
offene oder geschlossene Architektur: Offene Küche, großer Wohn-/Essbereich, ansonsten klassische Zimmeraufteilung.
konservativ oder moderne Bauweise: Ansichtssache – eher modern, aber aus Budgetgründen keine extravaganten Planungen.
offene Küche, Kochinsel: Offene Küche, Tendenz zur Kochinsel
Anzahl Essplätze: 6
Kamin: Nein
Musik/Stereowand: Nein
Balkon, Dachterrasse: Nein
Garage, Carport: Doppelgarage, aber vermutlich nachträgliche Errichtung.
Nutzgarten, Treibhaus: Ich pflanze Obst und Gemüse an, aber eher zur Freude und nicht zur Sicherstellung des Nahrungsmittelbedarfs.
weitere Wünsche/Besonderheiten/Tagesablauf, gern auch Begründungen, warum dieses oder das nicht sein soll:
Extravagante Häuser gefallen mir, aber das passt nicht zum Budget, daher eher klassische Bauweise. Damit es nicht zu langweilig wird, gibt es vorne am Haus einen Erker und ein Podest mit Säulen (vielleicht ganz leichter Hauch von römischem Stil). Viele Bodentiefe Fenster zur Südseite. Mehr Gläserfronten wären schön, aber da haben wir andere Prioritäten gesetzt. Wohn/Essbereich in L-Form war noch geplant – dann hätte man einen „Anbau“ in Richtung Garten für den Essbereich und hätte außen eine Sitzecke für die Terrasse. Das haben wir aber gestrichen, weil das Haus insgesamt zu groß wurde.
Die äußere Optik sollte möglichst stimmig sein. Gerade Linien und Symmetrie sind mir wichtig. Die Form und Anordnung der Fenster sollen diesen Wünschen gerecht werden, aber auch in den Innenräumen für ein schönes Raumgefühl sorgen.
Küche & Wohnbereich sollen der zentrale Ort des Gebäudes sein, da wollten wir möglichst viel Fläche reservieren. Arbeitszimmer im EG für flexible Arbeitszeiten. Eine einläufige, gerade Treppe oder eine zweiläufige U-Treppe mit Wendepodest sind unsere klaren Favoriten.
Wir hatten im OG zunächst einen Elternbereich mit Schlafzimmer/Ankleide/Elternbad. Da war das zweite Bad dann am Ende des Flurs – das hat uns nicht gefallen und wir haben es wie dargestellt abgeändert. Mit Ankleide wäre uns das Schlafzimmer optisch zu klein. Die Bäder für alle im Haus zu öffnen ist zudem sinnvoller.
Das Gästezimmer zu streichen, würde den Grundriss deutlich verschönern – aber wir wollen das Zimmer aus mehreren Gründen erhalten. Familienbesuch ist mindestens jedes zweite Wochenende angedacht und daher mit einem Gästezimmer besser umsetzbar. Zudem haben wir oft Besuch und finden es herzlicher die Menschen im Haus zu haben und nicht im Hotel. Meine Frau kann das Zimmer als Homeoffice nutzen und muss die Sachen dann nicht täglich wieder verstauen, zudem hat der Raum einen schönen Blick in den Garten. Man könnte sich wohl auch ohne Gästezimmer arrangieren, aber irgendwie widerspricht es mir ein großes Haus zu bauen und dann kein flexibles Zimmer zu haben. Das Büro im EG wird wohl recht vollgestopft (wir bauen ohne Keller) und wäre nur bei mehreren Gästen als Schlafplatz vorgesehen.
Die „Ecken“ vom Gästezimmer im Kinderzimmer und Schlafzimmer sind nicht optimal. Ich bevorzuge rechteckige Zimmer, sehe da aber keine gute Lösung. Vielleicht stört es auch gar nicht weiter, wenn man die Türen öffnet und es da diese kleine Ecke gibt. Alternativ könnte man den Flur etwas vergrößern und die Türen versetzen – aber eigentlich ist der Flur schon sehr großzügig.
Zu den Bädern, warum sind es drei geworden? Im EG benötigt man ein WC. Der Grundriss gibt es her, dass man entweder einen kleinen Garderobenbereich vor dem WC einrichtet oder das WC vergrößert. Wir haben die zweite Option gewählt. Da wir Kinder haben, schadet es nicht, wenn man eine Dusche neben der Haustür hat. Reiner Luxus, aber sehr praktisch. Zudem ist man bei Unvorhersehbarkeiten sehr flexibel (behindertengerechte Dusche im EG, Teilbarkeit EG/OG mit Büro als Schlafzimmer sofern man OG vermieten möchte) und Gäste, die im Büro untergebracht sind, haben auch ein Bad. Im OG könnte man im kleinen Bad auch die Dusche rauswerfen, aber die Vorteile sind gering, da es dort ein zweites WC geben sollte.
Lichte Rohbauhöhe im Erdgeschoss 296 cm, im Obergeschoss 283,5 cm. Wände aus Liapor.
Hausentwurf
Von wem stammt die Planung: Eigene Wünsche, gezeichnet vom GU. Anregungen aus dem Internet, GU-Plänen und Gesprächen mit befreundeten Architekten. Ich habe viele Dutzend Entwürfe gezeichnet und wir haben die Entwürfe des GU´s dann immer weiter optimiert. Es ist ein Kompromiss und nicht die Wunschlösung – aber unsere wichtigsten Punkte sind derzeit berücksichtigt. Wir sind schon mehrere Monate am basteln und wollen uns so langsam entscheiden.
Was gefällt besonders? Warum? Die Räume und Flure sind großzügig geschnitten, mit der hohen Deckenhöhe gibt das sicher ein sehr schönes Raumgefühl. Die Ausrichtung nach Süden ist aus meiner Sicht sehr gut gelungen und man hat einen guten Blick in den Garten. Alle Räume haben praktische Grundrisse und lassen sich gut einrichten. Obwohl es „nur“ eine Stadtvilla ist, finde ich sie von außen optisch ansprechend und ich mag die Fensteranordnung.
Die Lage auf dem Grundstück finde ich perfekt! Zufahrt im Norden, Garage im Nordosten Garten im Süden.
Was gefällt nicht? Warum? Das Gästezimmer ist etwas „reingequetscht“, sie Beschreibung oben.
Preisschätzung lt Architekt/Planer: 480.000-520.000, je nach „Zusatzpaketen“. Angebote liegen vor, die meisten entsprechen der Preiskalkulation oder sind günstiger, bei zwei Gewerken passen die Preise noch nicht zu unseren Vorstellungen.
Persönliches Preislimit fürs Haus, inkl Ausstattung: 550.000 (ohne Grundstück, ohne Garage, ohne Außenanlagen.)
favorisierte Heiztechnik: Geplant war Luft-Wasser-Wärmepumpe. Das Angebot für Erdwärme liegt leider noch nicht vor.
Wenn Ihr verzichten müsst, auf welche Details/Ausbauten
-könnt Ihr verzichten: Ankleide ist schon rausgeflogen. Eine Dusche weniger wäre machbar, aber es sollten drei WCs sein. L-Form im Wohnbereich ist schon gestrichen. Arbeitszimmer könnte verkleinert werden, Flure ebenfalls.
-könnt Ihr nicht verzichten: Großer Wohnbereich, Arbeitszimmer im EG, zwei Kinderzimmer.
Warum ist der Entwurf so geworden, wie er jetzt ist?
Siehe Beschreibungen oben
Was ist die wichtigste/grundlegende Frage zum Grundriss in 130 Zeichen zusammengefasst?
Wir haben sehr viele Skizzen erstellt und viele Entwürfe geprüft und überarbeitet – das Ergebnis ist das vorliegende! Es sollte demnach ein Entwurf sein, den man so in etwa bauen könnte, wie er jetzt ist. Die Überarbeitung mit dem Architekten des GU steht noch an, es gibt also noch eine professionelle Prüfung.
Fragen: Seht ihr essenzielle Fehler, die gegen die geplante Umsetzung sprechen? Gibt es Optimierungsmöglichkeiten? Haben wir etwas nicht berücksichtigt, sehen wir den Wald vor lauter Bäumen nicht mehr?
Herzlichen Dank für eure Zeit!







hier nun unser derzeitiger Entwurf. Es ist ein Kompromiss aus Wünschen und Budgetbegrenzung, aber wir würden das in der Form so umsetzen. Lediglich die „Ecken“ am Gästezimmer sind mir noch ein Dorn im Auge, aber das würde sich wohl nur mit mehr Grundfläche beheben lassen.
Bebauungsplan/Einschränkungen
Größe des Grundstücks 753qm
Hang: Nein
Grundflächenzahl 0,3
Geschossflächenzahl 0,6
Baufenster, Baulinie und -grenze: 5m Abstand zur Straße
Randbebauung: Garage an Nachbargrenze möglich
Anzahl Stellplatz: 2
Geschossigkeit: Zwei Vollgeschosse
Dachform: Die gängigen Dachformen sind alle erlaubt. Unter 10° Neigung Begrünung erforderlich.
Stilrichtung: Keine Besonderheiten
Ausrichtung: Unsere Anschrift ist die Straße auf der Südseite. Wir wollen unser Haus recht weit im nördlichen Teil des Grundstücks platzieren. Zufahrt erfolgt dann über die Nordseite und dort ist auch die Eingangstür und der Garten liegt im Süden. Bauamt und Grundstücksgesellschaft haben keine Einwände.
Maximale Höhen/Begrenzungen: OK Geb. 9,5m
weitere Vorgaben: Zisternenpflicht, Wärmepumpen innenliegend
Anforderungen der Bauherren
Stilrichtung, Dachform, Gebäudetyp: Stadtvilla mit Walmdach
Keller, Geschosse: Kein Keller, zwei Vollgeschosse
Anzahl der Personen, Alter: Vier (40,38,7,5)
Raumbedarf im EG, OG: Siehe Grundriss. Ankleide haben wir gestrichen, sonst sollte das so in etwa bleiben.
Büro: Familiennutzung oder Homeoffice? Beides.
Schlafgäste pro Jahr: Regelmäßig am Wochenende
offene oder geschlossene Architektur: Offene Küche, großer Wohn-/Essbereich, ansonsten klassische Zimmeraufteilung.
konservativ oder moderne Bauweise: Ansichtssache – eher modern, aber aus Budgetgründen keine extravaganten Planungen.
offene Küche, Kochinsel: Offene Küche, Tendenz zur Kochinsel
Anzahl Essplätze: 6
Kamin: Nein
Musik/Stereowand: Nein
Balkon, Dachterrasse: Nein
Garage, Carport: Doppelgarage, aber vermutlich nachträgliche Errichtung.
Nutzgarten, Treibhaus: Ich pflanze Obst und Gemüse an, aber eher zur Freude und nicht zur Sicherstellung des Nahrungsmittelbedarfs.
weitere Wünsche/Besonderheiten/Tagesablauf, gern auch Begründungen, warum dieses oder das nicht sein soll:
Extravagante Häuser gefallen mir, aber das passt nicht zum Budget, daher eher klassische Bauweise. Damit es nicht zu langweilig wird, gibt es vorne am Haus einen Erker und ein Podest mit Säulen (vielleicht ganz leichter Hauch von römischem Stil). Viele Bodentiefe Fenster zur Südseite. Mehr Gläserfronten wären schön, aber da haben wir andere Prioritäten gesetzt. Wohn/Essbereich in L-Form war noch geplant – dann hätte man einen „Anbau“ in Richtung Garten für den Essbereich und hätte außen eine Sitzecke für die Terrasse. Das haben wir aber gestrichen, weil das Haus insgesamt zu groß wurde.
Die äußere Optik sollte möglichst stimmig sein. Gerade Linien und Symmetrie sind mir wichtig. Die Form und Anordnung der Fenster sollen diesen Wünschen gerecht werden, aber auch in den Innenräumen für ein schönes Raumgefühl sorgen.
Küche & Wohnbereich sollen der zentrale Ort des Gebäudes sein, da wollten wir möglichst viel Fläche reservieren. Arbeitszimmer im EG für flexible Arbeitszeiten. Eine einläufige, gerade Treppe oder eine zweiläufige U-Treppe mit Wendepodest sind unsere klaren Favoriten.
Wir hatten im OG zunächst einen Elternbereich mit Schlafzimmer/Ankleide/Elternbad. Da war das zweite Bad dann am Ende des Flurs – das hat uns nicht gefallen und wir haben es wie dargestellt abgeändert. Mit Ankleide wäre uns das Schlafzimmer optisch zu klein. Die Bäder für alle im Haus zu öffnen ist zudem sinnvoller.
Das Gästezimmer zu streichen, würde den Grundriss deutlich verschönern – aber wir wollen das Zimmer aus mehreren Gründen erhalten. Familienbesuch ist mindestens jedes zweite Wochenende angedacht und daher mit einem Gästezimmer besser umsetzbar. Zudem haben wir oft Besuch und finden es herzlicher die Menschen im Haus zu haben und nicht im Hotel. Meine Frau kann das Zimmer als Homeoffice nutzen und muss die Sachen dann nicht täglich wieder verstauen, zudem hat der Raum einen schönen Blick in den Garten. Man könnte sich wohl auch ohne Gästezimmer arrangieren, aber irgendwie widerspricht es mir ein großes Haus zu bauen und dann kein flexibles Zimmer zu haben. Das Büro im EG wird wohl recht vollgestopft (wir bauen ohne Keller) und wäre nur bei mehreren Gästen als Schlafplatz vorgesehen.
Die „Ecken“ vom Gästezimmer im Kinderzimmer und Schlafzimmer sind nicht optimal. Ich bevorzuge rechteckige Zimmer, sehe da aber keine gute Lösung. Vielleicht stört es auch gar nicht weiter, wenn man die Türen öffnet und es da diese kleine Ecke gibt. Alternativ könnte man den Flur etwas vergrößern und die Türen versetzen – aber eigentlich ist der Flur schon sehr großzügig.
Zu den Bädern, warum sind es drei geworden? Im EG benötigt man ein WC. Der Grundriss gibt es her, dass man entweder einen kleinen Garderobenbereich vor dem WC einrichtet oder das WC vergrößert. Wir haben die zweite Option gewählt. Da wir Kinder haben, schadet es nicht, wenn man eine Dusche neben der Haustür hat. Reiner Luxus, aber sehr praktisch. Zudem ist man bei Unvorhersehbarkeiten sehr flexibel (behindertengerechte Dusche im EG, Teilbarkeit EG/OG mit Büro als Schlafzimmer sofern man OG vermieten möchte) und Gäste, die im Büro untergebracht sind, haben auch ein Bad. Im OG könnte man im kleinen Bad auch die Dusche rauswerfen, aber die Vorteile sind gering, da es dort ein zweites WC geben sollte.
Lichte Rohbauhöhe im Erdgeschoss 296 cm, im Obergeschoss 283,5 cm. Wände aus Liapor.
Hausentwurf
Von wem stammt die Planung: Eigene Wünsche, gezeichnet vom GU. Anregungen aus dem Internet, GU-Plänen und Gesprächen mit befreundeten Architekten. Ich habe viele Dutzend Entwürfe gezeichnet und wir haben die Entwürfe des GU´s dann immer weiter optimiert. Es ist ein Kompromiss und nicht die Wunschlösung – aber unsere wichtigsten Punkte sind derzeit berücksichtigt. Wir sind schon mehrere Monate am basteln und wollen uns so langsam entscheiden.
Was gefällt besonders? Warum? Die Räume und Flure sind großzügig geschnitten, mit der hohen Deckenhöhe gibt das sicher ein sehr schönes Raumgefühl. Die Ausrichtung nach Süden ist aus meiner Sicht sehr gut gelungen und man hat einen guten Blick in den Garten. Alle Räume haben praktische Grundrisse und lassen sich gut einrichten. Obwohl es „nur“ eine Stadtvilla ist, finde ich sie von außen optisch ansprechend und ich mag die Fensteranordnung.
Die Lage auf dem Grundstück finde ich perfekt! Zufahrt im Norden, Garage im Nordosten Garten im Süden.
Was gefällt nicht? Warum? Das Gästezimmer ist etwas „reingequetscht“, sie Beschreibung oben.
Preisschätzung lt Architekt/Planer: 480.000-520.000, je nach „Zusatzpaketen“. Angebote liegen vor, die meisten entsprechen der Preiskalkulation oder sind günstiger, bei zwei Gewerken passen die Preise noch nicht zu unseren Vorstellungen.
Persönliches Preislimit fürs Haus, inkl Ausstattung: 550.000 (ohne Grundstück, ohne Garage, ohne Außenanlagen.)
favorisierte Heiztechnik: Geplant war Luft-Wasser-Wärmepumpe. Das Angebot für Erdwärme liegt leider noch nicht vor.
Wenn Ihr verzichten müsst, auf welche Details/Ausbauten
-könnt Ihr verzichten: Ankleide ist schon rausgeflogen. Eine Dusche weniger wäre machbar, aber es sollten drei WCs sein. L-Form im Wohnbereich ist schon gestrichen. Arbeitszimmer könnte verkleinert werden, Flure ebenfalls.
-könnt Ihr nicht verzichten: Großer Wohnbereich, Arbeitszimmer im EG, zwei Kinderzimmer.
Warum ist der Entwurf so geworden, wie er jetzt ist?
Siehe Beschreibungen oben
Was ist die wichtigste/grundlegende Frage zum Grundriss in 130 Zeichen zusammengefasst?
Wir haben sehr viele Skizzen erstellt und viele Entwürfe geprüft und überarbeitet – das Ergebnis ist das vorliegende! Es sollte demnach ein Entwurf sein, den man so in etwa bauen könnte, wie er jetzt ist. Die Überarbeitung mit dem Architekten des GU steht noch an, es gibt also noch eine professionelle Prüfung.
Fragen: Seht ihr essenzielle Fehler, die gegen die geplante Umsetzung sprechen? Gibt es Optimierungsmöglichkeiten? Haben wir etwas nicht berücksichtigt, sehen wir den Wald vor lauter Bäumen nicht mehr?
Herzlichen Dank für eure Zeit!
Ähnliche Themen