Hallo zusammen,
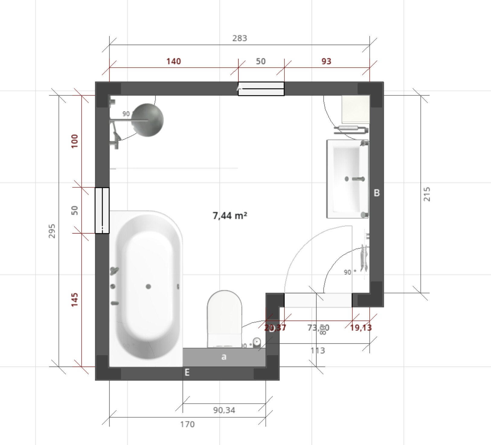
aktuell stehen wir vor der nicht ganz leichten Herausforderung unser ca. 7,5qm Bad (leichte L-Form) zu planen bzw. die Komponenten und Fenster anzuordnen.
Die zwei Fenster (1x Westseite mit großen Laubbäumen, 1x Nordseite - beide ca. 6m vom Fußweg weg, da Eckgrundstück) können wir in Größe und Position noch versetzen bzw. theoretisch auch ein Fenster entfernen. Die Raummaße sind unveränderlich.
Zwingend erforderliche Einrichtung:
- Wanne
- separate Dusche
- waschbecken/Waschtisch
- Toilette
- Badheizkörper
Nach Möglichkeit:
- Platz für Waschmaschine
- Weite in diesem kleinen Bad schaffen
- keine Wand oder Duschwand/Duschglaswand dicht neben dem Waschbecken, da dies einengend wirkt (oder doch nicht?)
- Fenster so anordnen, dass ein guter Kompromiss zwischen Helligkeit, Sichtschutz, Optik und Funktionalität entsteht
- kleine Verstaumöglichkeit für Handtücher/Putzmittel
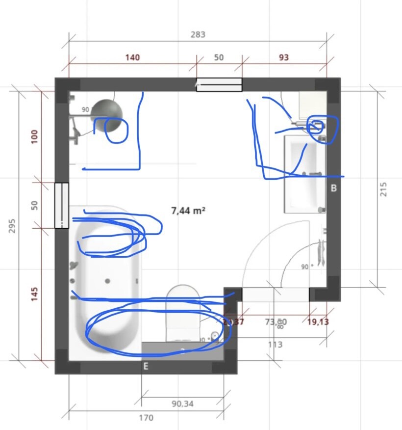
Ein Erfahrungswert fehlt uns für die Position des Waschbeckens:
- Wie problematisch ist es die Badtür im Rücken zu haben, wenn man vor dem Waschbecken steht? Im Internet findet man verhältnismäßig wenig Varianten, wo das Waschbecken als Blickfang beim Hineintreten ins Bad positioniert wird. Meistens kommt es an die links oder rechts von der Tür stehenden Wand.
Aktuell haben wir zwei Varianten (einmal ohne und einmal mit Waschmaschine). Allerdings natürlich mit Nachteilen verbunden.
Variante 1:
- Problematischer Zugang zu Dusche
- Problematisches Waschen am Waschbecken mit Rücken zur Tür

Variante 2:
- Problem der fehlenden Waschmaschine (keine Möglichkeit im Keller, durch offenen Küchenbereich zum Wohnzimmer durch lautes Schleudern nur Kompromiss)
- Problem Fensteranordnung

Habt ihr vielleicht noch einige Ideen, wie man die Anordnung verbessern kann bzw. andere Anordnungsvarianten, welche sich in der Praxis als guter Kompromiss zwischen Optik, Funktionalität erwiesen haben?
Über eure Hilfe bzw. Ideen wären wir sehr dankbar!
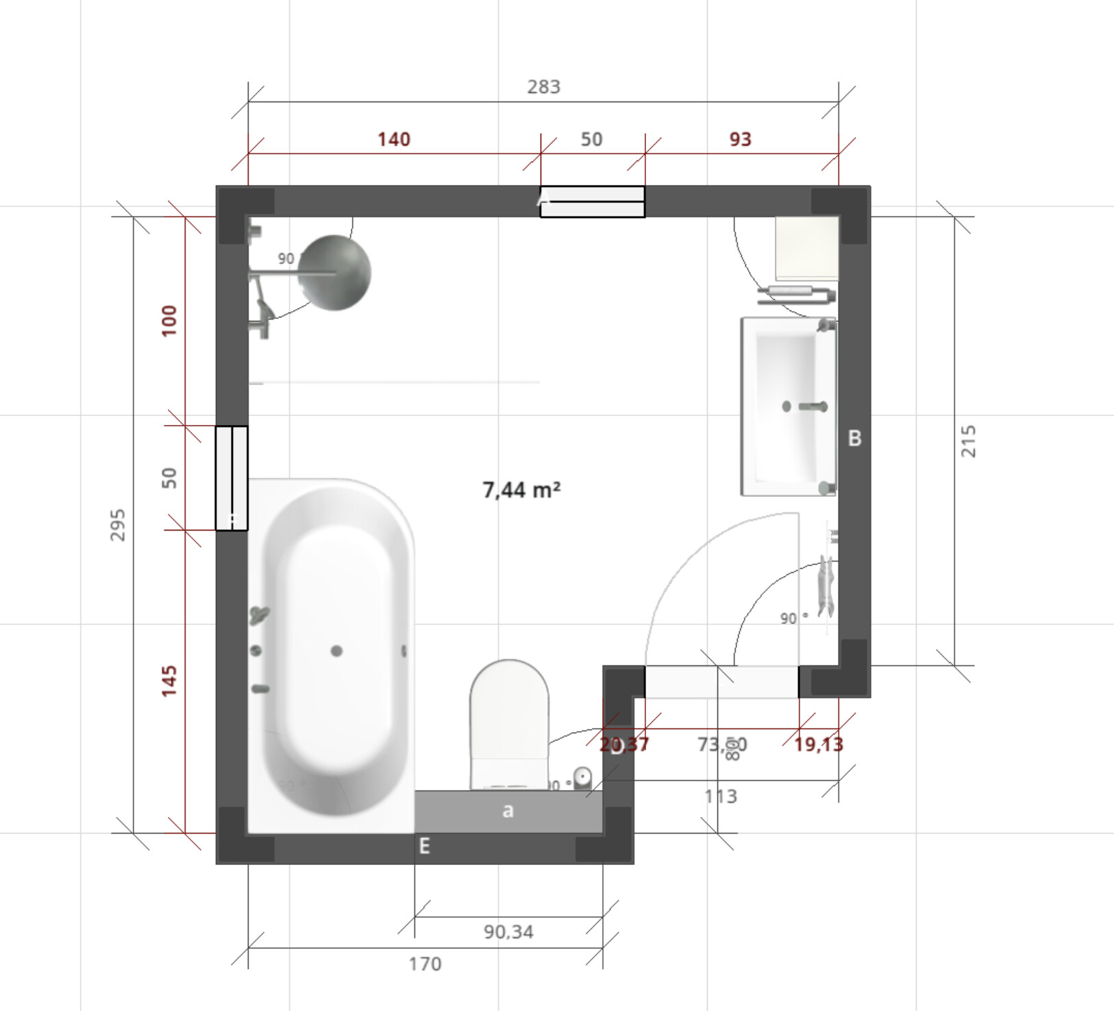
aktuell stehen wir vor der nicht ganz leichten Herausforderung unser ca. 7,5qm Bad (leichte L-Form) zu planen bzw. die Komponenten und Fenster anzuordnen.
Die zwei Fenster (1x Westseite mit großen Laubbäumen, 1x Nordseite - beide ca. 6m vom Fußweg weg, da Eckgrundstück) können wir in Größe und Position noch versetzen bzw. theoretisch auch ein Fenster entfernen. Die Raummaße sind unveränderlich.
Zwingend erforderliche Einrichtung:
- Wanne
- separate Dusche
- waschbecken/Waschtisch
- Toilette
- Badheizkörper
Nach Möglichkeit:
- Platz für Waschmaschine
- Weite in diesem kleinen Bad schaffen
- keine Wand oder Duschwand/Duschglaswand dicht neben dem Waschbecken, da dies einengend wirkt (oder doch nicht?)
- Fenster so anordnen, dass ein guter Kompromiss zwischen Helligkeit, Sichtschutz, Optik und Funktionalität entsteht
- kleine Verstaumöglichkeit für Handtücher/Putzmittel
Ein Erfahrungswert fehlt uns für die Position des Waschbeckens:
- Wie problematisch ist es die Badtür im Rücken zu haben, wenn man vor dem Waschbecken steht? Im Internet findet man verhältnismäßig wenig Varianten, wo das Waschbecken als Blickfang beim Hineintreten ins Bad positioniert wird. Meistens kommt es an die links oder rechts von der Tür stehenden Wand.
Aktuell haben wir zwei Varianten (einmal ohne und einmal mit Waschmaschine). Allerdings natürlich mit Nachteilen verbunden.
Variante 1:
- Problematischer Zugang zu Dusche
- Problematisches Waschen am Waschbecken mit Rücken zur Tür
Variante 2:
- Problem der fehlenden Waschmaschine (keine Möglichkeit im Keller, durch offenen Küchenbereich zum Wohnzimmer durch lautes Schleudern nur Kompromiss)
- Problem Fensteranordnung
Habt ihr vielleicht noch einige Ideen, wie man die Anordnung verbessern kann bzw. andere Anordnungsvarianten, welche sich in der Praxis als guter Kompromiss zwischen Optik, Funktionalität erwiesen haben?
Über eure Hilfe bzw. Ideen wären wir sehr dankbar!
Entschuldige bitte!
Aber Ihr baut neu, wahrscheinlich auch eher klein, was nicht schlimm ist. Anscheinend ist es aber eine Stadtvilla mit zwei Vollgeschossen.
Dazu dann einen Keller… und Ihr habt in keinster Weise an einen Waschplatz für die Waschmaschine gedacht? Es ist ein reiner Nutzkeller, der noch nicht einmal einen Hauswirtschaftsraum vorhalten kann?!
Mich würde gern man der ganze Hausentwurf inkl. Grundriss und Fragebogen, siehe
https://www.hausbau-forum.de/threads/grundriss-planung-unbedingt-vor-beitrag-erstellung-lesen.11714/ interessieren.
Irgendetwas läuft da in meinen Augen nicht rund in der Planung.
Ist der Bauantrag schon raus?
Aber Ihr baut neu, wahrscheinlich auch eher klein, was nicht schlimm ist. Anscheinend ist es aber eine Stadtvilla mit zwei Vollgeschossen.
Dazu dann einen Keller… und Ihr habt in keinster Weise an einen Waschplatz für die Waschmaschine gedacht? Es ist ein reiner Nutzkeller, der noch nicht einmal einen Hauswirtschaftsraum vorhalten kann?!
Mich würde gern man der ganze Hausentwurf inkl. Grundriss und Fragebogen, siehe
https://www.hausbau-forum.de/threads/grundriss-planung-unbedingt-vor-beitrag-erstellung-lesen.11714/ interessieren.
Irgendetwas läuft da in meinen Augen nicht rund in der Planung.
Ist der Bauantrag schon raus?
ypg schrieb:
Entschuldige bitte!
Aber Ihr baut neu, wahrscheinlich auch eher klein, was nicht schlimm ist. Anscheinend ist es aber eine Stadtvilla mit zwei Vollgeschossen.
Dazu dann einen Keller… und Ihr habt in keinster Weise an einen Waschplatz für die Waschmaschine gedacht? Es ist ein reiner Nutzkeller, der noch nicht einmal einen Hauswirtschaftsraum vorhalten kann?!
Mich würde gern man der ganze Hausentwurf inkl. Grundriss und Fragebogen, siehe
https://www.hausbau-forum.de/threads/grundriss-planung-unbedingt-vor-beitrag-erstellung-lesen.11714/ interessieren.
Irgendetwas läuft da in meinen Augen nicht rund in der Planung.
Ist der Bauantrag schon raus?Hallo ypg, nein es ist eine Sanierung eines kleinen Häuschens aus den 30er-Jahren mit Kriechdachboden und kleinem Kellerraum mit 1,70m Höhe, der nicht ohne einen unwirtschaftlichen, extremen Kostenaufwand abgesenkt werden (Pilgerschrittverfahren), trockengelegt, gedämmt und als Hauswirtschaftsraum nutzbar gemacht werden kann.Der Grundriss des Hauses ist nicht mehr veränderbar und steht fest.
Ich würde erst einmal die Fenster zweitrangig betrachten. 2 Fenster für einen 7qm+ Raum wird ausreichend sein. Da es kein Aufenthaltsraum ist, muss er jetzt nicht hell beleuchtet sein wie die Küche, in der man außerdem noch werkelt. Also: erst möblieren, dann die Fenster.
Dann könnte man die Tür wohl auch nach außen aufschlagen lassen?!
Handtücher kann man gut unterbringen, indem man über der Tür ein Brett von Wand zu Wand zieht und dort die Handtücher, gerollt oder gestapelt, in Szene setzt. da kann dann auch ein Korb noch anderes unterbringen, woran man jetzt noch nicht denkt.
Für wieviel Personen soll das Bad sein? Wieviel Personen sind dort gemeinsam drin?
Dann könnte man die Tür wohl auch nach außen aufschlagen lassen?!
Handtücher kann man gut unterbringen, indem man über der Tür ein Brett von Wand zu Wand zieht und dort die Handtücher, gerollt oder gestapelt, in Szene setzt. da kann dann auch ein Korb noch anderes unterbringen, woran man jetzt noch nicht denkt.
Für wieviel Personen soll das Bad sein? Wieviel Personen sind dort gemeinsam drin?
S
Schorsch_baut10.12.23 20:20Ähnliche Themen