ᐅ Badgrundrissplanung schwierig - Wer hat Ideen?
Erstellt am: 20.03.15 19:35
Hey,
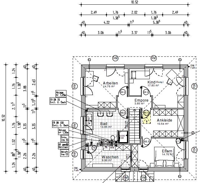
nun hab ich auch mal eine Frage/ein Anliegen. Wir sind Gerade dabei, die Badplanung zu vollenden und haben eine Visualisierung erhalten. Allerdings sind wir irgendwie nicht so zufrieden, haben aber keine Ideen mehr (aber leider scheinen wir da nicht die einzigen zu sein ...). Unten findet Ihr eine Ansicht von oben und den Grundriss für das OG (aber bitte beschränkt Euch auf das Bad, der Rest ist für uns vollkommen passend) wegen der Maße. Die Tür zum Waschraum ist nun etwas größer und zwischen Toilette und Dusche ist nur bis ca. 1 m eine Wand, darüber ist Glas angedacht, damit wir auch Tageslicht in der Dusche haben. Habt Ihr Ideen, wie man das Bad verbessern könnte? Eine Kleinigkeit wäre zum Beispiel, eine weiße Fliesenreihe in der Dusche zu integrieren - das löst aber das gesamte Problem nicht.
Unsere Vorgaben sind:
-- die beiden Türen
-- das Fenster an dieser Stelle
-- die Dusche in dieser Größe
-- das große waschbecken für 2 Personen
-- die normal große Badewanne
-- keine T-Lösung
Ich bin gespannt und für Ideen offen 🙂 Danke schon mal im Voraus für Eure Hilfe!


nun hab ich auch mal eine Frage/ein Anliegen. Wir sind Gerade dabei, die Badplanung zu vollenden und haben eine Visualisierung erhalten. Allerdings sind wir irgendwie nicht so zufrieden, haben aber keine Ideen mehr (aber leider scheinen wir da nicht die einzigen zu sein ...). Unten findet Ihr eine Ansicht von oben und den Grundriss für das OG (aber bitte beschränkt Euch auf das Bad, der Rest ist für uns vollkommen passend) wegen der Maße. Die Tür zum Waschraum ist nun etwas größer und zwischen Toilette und Dusche ist nur bis ca. 1 m eine Wand, darüber ist Glas angedacht, damit wir auch Tageslicht in der Dusche haben. Habt Ihr Ideen, wie man das Bad verbessern könnte? Eine Kleinigkeit wäre zum Beispiel, eine weiße Fliesenreihe in der Dusche zu integrieren - das löst aber das gesamte Problem nicht.
Unsere Vorgaben sind:
-- die beiden Türen
-- das Fenster an dieser Stelle
-- die Dusche in dieser Größe
-- das große waschbecken für 2 Personen
-- die normal große Badewanne
-- keine T-Lösung
Ich bin gespannt und für Ideen offen 🙂 Danke schon mal im Voraus für Eure Hilfe!
Ist die Tür zum Waschmaschinenraum verschiebbar?
Was ist mit dem FEnster? Ich nehme an, das Fenster ist auch in der Breite nicht mehr veränderbar. Welche Brüstungshöhe hat das Fenster?
Dusche 120x90 und das ohne Tür?
Hast du vielleicht zufällig gerade die Maße von der Außenwand .. also Wand-Fenster-Wandstücke parat? Dann muss man das nicht erst alles anlegen.
Ich finde das Bad so recht langweilig 😳
Was ist mit dem FEnster? Ich nehme an, das Fenster ist auch in der Breite nicht mehr veränderbar. Welche Brüstungshöhe hat das Fenster?
Dusche 120x90 und das ohne Tür?
Hast du vielleicht zufällig gerade die Maße von der Außenwand .. also Wand-Fenster-Wandstücke parat? Dann muss man das nicht erst alles anlegen.
Ich finde das Bad so recht langweilig 😳
Ich würde versuchen, die Wanne vom Fenster weg zu bekommen. Da würde ich neben den Waschbecken die Toilette ansiedeln. Für den Abfluss bestimmt besser - ich frage mich nämlich derweil, wie der Toilettenabfluss zum Abflussrohr kommt?!? 😕
Ansonsten stelle ich mir andauernd mein kleines Ex-Bad von weniger als 6qm (2,2m x 2,5m) vor: ok, es hatte eine Tür weniger, aber es hatte mehr Stellmöglichkeiten, wenn man ohne Trennwände(T-L und sonstige X-Lösungen) auskommen mag.
Lösungsvorschlag: Tür zum Hauswirtschaftsraum auf die andere Seite setzen und die Wanne neben die Dusche, dafür die Trennwand etwas versetzen... aber lieber doch eher mit ner halbhohen Zusatzwand arbeiten und etwas vom Raum nutzen!
@Skaddler : dieses Bad ist das beste Beispiel dafür, dass nicht Quadratmeter den Raum zum Raum machen 😳
Gruss Yvonne
P.s. ich denke, @kbt09 ist schon am zeichnen 🙂
Ansonsten stelle ich mir andauernd mein kleines Ex-Bad von weniger als 6qm (2,2m x 2,5m) vor: ok, es hatte eine Tür weniger, aber es hatte mehr Stellmöglichkeiten, wenn man ohne Trennwände(T-L und sonstige X-Lösungen) auskommen mag.
Lösungsvorschlag: Tür zum Hauswirtschaftsraum auf die andere Seite setzen und die Wanne neben die Dusche, dafür die Trennwand etwas versetzen... aber lieber doch eher mit ner halbhohen Zusatzwand arbeiten und etwas vom Raum nutzen!
@Skaddler : dieses Bad ist das beste Beispiel dafür, dass nicht Quadratmeter den Raum zum Raum machen 😳
Gruss Yvonne
P.s. ich denke, @kbt09 ist schon am zeichnen 🙂
Das Fenster ist auch aufgrund der Außenansicht nicht veränderbar, nein. Die Tür zum Waschraum wohl schon. Die Brüstungshöhe des Fensters ist glaube ich 1,10 m. Leider habe ich die gefragten Abstände nicht vorliegen, sorry - blöderweise nur so, wie sie im Grundriss verzeichnet sind.
Keine Tür bei der Dusche, korrekt. Das mögen wir beide nicht so gern, aber wenn es bei einem anderen Badgrundriss nötig bzw. ratsam wäre, würden wir uns auch nicht sträuben.
Und ja, langweilig trifft es. Es muss nicht ausgefallen sein oder bombastisch, so ist es aber leider nichts mit einem großen Wohlfühlfaktor.
Keine Tür bei der Dusche, korrekt. Das mögen wir beide nicht so gern, aber wenn es bei einem anderen Badgrundriss nötig bzw. ratsam wäre, würden wir uns auch nicht sträuben.
Und ja, langweilig trifft es. Es muss nicht ausgefallen sein oder bombastisch, so ist es aber leider nichts mit einem großen Wohlfühlfaktor.
Was soll denn alles im Waschraum passieren?
Und, wie gesagt, bei 120x90 würde ich immer eine Tür einkalkulieren, das spritzt dann doch ganz schön nach vorne raus.
Steht schon etwas von dem Haus oder ist es noch volle Planungsphase?
@ypg .. noch nicht ganz .. aber mir schwebt da gerade so etwas vor 😉
Und, wie gesagt, bei 120x90 würde ich immer eine Tür einkalkulieren, das spritzt dann doch ganz schön nach vorne raus.
Steht schon etwas von dem Haus oder ist es noch volle Planungsphase?
@ypg .. noch nicht ganz .. aber mir schwebt da gerade so etwas vor 😉
Dort wird gewaschen, sortiert, gebügelt, gefaltet, gesammelt, zusammengelegt und Reinigungsmittel/-zubehör für oben aufgebahrt, auch mal getrocknet (meist aber im Trockner).
ypg: Yo, meine Rede. Die Wanne vom Fenster weg hatten wir auch schon überlegt. Aber in Sachen Badplanung ist die Kreativität der Gestalterin nicht großartig ausgeprägt.
ypg: Yo, meine Rede. Die Wanne vom Fenster weg hatten wir auch schon überlegt. Aber in Sachen Badplanung ist die Kreativität der Gestalterin nicht großartig ausgeprägt.
Ähnliche Themen