Wohnzimmer: Wie Sofa, TV und Schränke stellen?

4,50 Stern(e) 4 Votes
Zuletzt aktualisiert 18.11.2025
Sie befinden sich auf der Seite 2 der Diskussion zum Thema: Wohnzimmer: Wie Sofa, TV und Schränke stellen?
>> Zum 1. Beitrag <<

Y

ypg

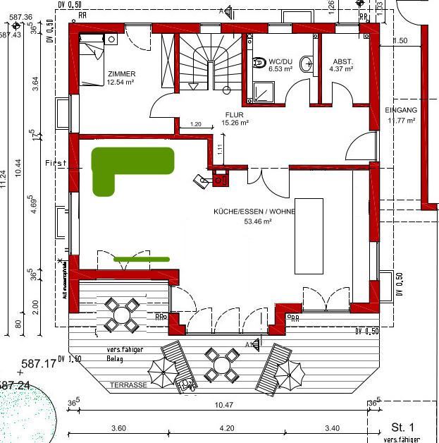
Ich würde das Westfenster verbreitern und das Südfenster weglassen. Da kommt doch eh nur geringfügig Licht durch, da das Dach davor gezogen ist, und man kann die Terrasse dort nicht möblieren.

Grundriss eines Hauses: Zimmer, Küche/Essen/Wohnen, Flur, WC/Dusche, Abstellraum, Eingang, Terr.
 
B

Baufie

Ich würd das Sofa auf Süd-Ost stellen, dass Fenster in Richtung Süden würd ich auf Brüstungshöhe wie die Sofalehne setzen. So ist das derzeit bei uns in der Wohnung. Wir sind zufrieden.

Im Esszimmererker würde ich ne Schiebetüre platzieren.
 
Y

ypg

@ypg ... und wohin die Wohnwand? Und Südfenster ganz weg ... nö, das würde ich nicht machen.
Wohnwand??? Ich bin raus.

Edit: an der Seite vom TV kann die Wohnwand hin.
Man kann ja auch die Seiten tauschen.
Ich würde allerdings Never ein Sofa unter ein Fenster stellen, wenn anderes möglich ist.
 
Zuletzt bearbeitet:
bluminger

bluminger

@kbt09
Die Änderung für die Treppe (Steigung 17 cm, Auftritt 29 cm) haben wir in Hinterkopf, leider haben wir seither noch keinen geänderten Plan.
 
bluminger

bluminger

@ypg

Dein Vorschlag gefällt mir ganz gut.

Allerdings stellen wir es uns schon so vor, dass durch das Wohnzimmer (Süd) Fenster Licht reinkommt. Das Dach ist hier nicht heruntergezogen.

Ist die Außenansicht nicht auch zerstört, wenn man das Südfenster einfach streicht?

Zu der Aussage Sofa nicht unters Fenster, wenn es anders geht: Sofa Mit dem Rücken zum Fenster, auch wenn das Fenster bodentief ist, gefällt mir auch nicht, deshalb gefällt mir Dein Vorschlag gut. Er hat gegenüber meinem auch den Vorteil, dass der Raum offen bleibt, was ja der Wunsch von meinem Mann war. Allerdings bin ich mir nicht sicher, ob wir das Südfenster streichen...
 
Zuletzt aktualisiert 18.11.2025
Im Forum Grundrissplanung / Grundstücksplanung gibt es 2536 Themen mit insgesamt 87971 Beiträgen


Ähnliche Themen zu Wohnzimmer: Wie Sofa, TV und Schränke stellen?
Nr.ErgebnisBeiträge
1Bodentiefe Fenster - wie Sofa stellen? 12
2Dunstabzug / Dach oder Wand 14
3Dach mit Photovoltaik oder anders investieren Erfahrungen? 19
4Anthrazite Fenster - Welche Dachfarbe - Seite 363
5Bodentiefe Fenster - Warum bodentiefe Fenster? Vor- Nachteile? - Seite 10112
6Gauben Abstand Außenwand oder Dach - Seite 216
7Bungalow 135qm: Grundriss + Fenster - Seite 12104
8Einfamilienhaus (2Etagen+Wohn-Keller+ausgebautes Dach) etwa 200qm -Änderungen - Seite 13162
9Varianten zur Anordnung TV- und Sofa-Bereich! - Seite 424
10Mögliche Sofa- und TV-Position im Wohnzimmer gesucht. 15
11Graue/Anthrazitfarbene Fenster - das neue „weiß?“ - Seite 1390
12Bodentiefe Fenster nach außen öffnend, für mehr nutzbaren Platz innen - Seite 333
13Wahl der Fenster- und Rollladenfarbe - Seite 340
14Farbe Dachziegel zu Anthraziten Fenster - Seite 316
15TV Position - Wie am besten positionieren? 12
16Einbruchsichere Fenster? - Seite 233
17Innenraum Gestaltung - Fenster 14
18Aufpreis für farbige Fenster realistisch? - Seite 319
19Gutachter Mängelfeststellung, Feststellung Einbau Fenster 10
20Riesiges Problem mit dem Kondenswasser am Fenster - Seite 334

Oben