Hausbau - Ratgeber
Bauherrenhilfe
- Bauherrenhilfe vor Vertragsabschluss
-- Warum einen unabhängigen Baubetreuer?
-- Vertragsgrundlagen
-- Bausumme
-- Zahlungsplan zur Kostenkontrolle
-- Pflichten des Bauherren vor Vertragsabschluss
-- Unterlagen beim Hausbau vor Vertragsabschluss
- Bauherrenhilfe nach Vertragsabschluss
-- Bauantrag bei Behörden
-- Bau-Genehmigungsverfahren bei Baubehörden
-- Bauspezifische Versicherungen
-- Bauzeitenplan
-- Baubeginn - die Letzten Pflichten der Bauherrschaft
- Bauherrenhilfe während der Bauzeit
- Gewährleistungsansprüche
- Bauabnahme
Baufinanzierung
- Baufinanzierung - Allgemeine Fragen
- Kreditarten
- Kredit-Konditionen
- Bausparen
- Staatliche Förderungen
- Verkehrswert
- Haushaltsrechnung und Bonität
Hausbau Planung
- Haustypen
- Hausbau Vorbereitungsarbeiten
- Das Baugrundstück
- Baugrund beim Hausbau
- Baurecht
- Gebäudeschutz
- Erdarbeiten und Wasserhaltung
- Stützmauern
- Einfriedung
- Untergeschoss
- Kanalisation
- Tragende Elemente
- Nichttragende Innenwände
- Fundation / Fundament
- Deckenkonstruktionen
- Dächer
- Kaminanlagen
- Treppen Rampen Leitern
- Dachbeläge und Spengler
- Fenster
- Sonnen und Wetterschutz
- Aussenputze
- Einbauten, Küchen, Türen
- Bodenbeläge und Unterlagsböden
- Parkett
- Gips, Wand, Decke
Haustechnik und Energie
- Heiztechnik
- Lüftung und Klimatechnik
- Sanitärtechnik
- Elektrotechnik
- Erneuerbare Energie
Whirlpools / Jacuzzi
Hausbau Magazin
- Baufinanzierung trotz Krise?
- Das Blockhaus
- Moderne Dämmstoffe im Vergleich
- Erker Vor- und Nachteile
- Glasflächen beim Hausbau
- Günstig ein Haus Bauen
- Mediterraner Hausbaustil
- Mehrgenerationenhaus
- Moderne Architektur
- Gartengestaltung leicht gemacht
- Traditioneller Ziegelbau
- Villa als höchster Traum
- Im Eigenheim Ruhestand geniessen
- Altbau sanieren
- Kauf einer Holzgarage
- Immobilienmakler
- Arbeitshandschuhe für den Winter
- Zuhause verschönern
- Outdoor-Plissees
- Schlafzimmer planen
- Terrassenüberdachung
- Wohngebäudeversicherung
- Zaunarten und Eigenschaften
- Hauseingang gestalten
- Der perfekte Grundriss
- Sparsamer heizen im Altbau
- Einfamilienhaus smart finanzieren
- Planung einer PV-Anlage
- Neues Haus
- Immobilienfinanzierung
- Installation einer Photovoltaikanlage
- Asbest erkennen und entfernen
- Gartenpflege im Frühling – worauf achten
- Sauna im Fokus - Wellness zuhause
- Erfolgreich vermieten
- Die perfekte Winterbekleidung
- Das Niedrigenergiehaus
- Der April und seine Stürme
- Architektonische Vielfalt
- Ökologisch und nachhaltig bauen
- Das perfekte Schlafzimmer
- Nachhaltige Energieversorgung
- Zukunftsorientiert bauen
- Nachhaltigkeit beim Hausbau
- Tiny Houses
- Wärmepumpen als nachhaltige Heizvariante
- Maßgeschneiderten Kleiderschrank
- Der richtige Baukredit
- Ratgeber für erfolgreichen Hausbau
- Haus als Altersvorsorge
Do-it-yourself Anleitungen
- Verlegeanleitung für Bodenbeläge und Parkett
- Bodenbeläge und Parkett reinigen und pflegen
- Malerarbeiten am Haus
- Garten Tipps
- Umzug und Reinigung

ᐅ Unser Grundriss von 120qm auf 469qm Grundstück

Erstellt am: 20.10.13 23:41
E
erfurter110287
E
erfurter110287
20.10.13 23:41
Hallo.
Wir wollten auch mal unsere Planung einstellen und eure Meinungen dazu hören. Der Bau soll im März nächsten Jahres beginnen bei uns in Erfurt.

Geizt ruhig nicht mit euren Anregungen und Meinungen

Grundriss eines Gebäudes mit rotem Außenrahmen und Innenraumaufteilungen.


Grundriss eines Hauses mit rotem Rahmen; offener Wohn-, Küchen- und Essbereich


Grundriss eines Baugrundstücks mit Gebäude, Zaun und Bäumen (Architekturplan).
Y
ypg
21.10.13 00:38
Mach mal größer, und dann bis morgen
E
erfurter110287
21.10.13 00:47
wenn ihr mir sagt wie dann gerne. haben es nur komplett als pdf ubd habe das mit Schnappschuss raus kopiert und dann im paint als jpg gespeichert. weis nicht wie das größer geht
B
Bauexperte
21.10.13 16:41
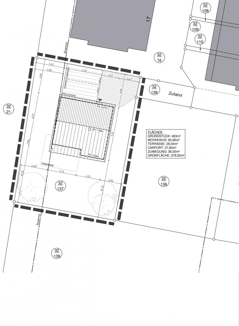
Auszug Lageplan - EG - DG

Grüße, Bauexperte

Lageplan eines Baugrundstücks mit Haus, Terrasse, Carport, Zufahrt und Grünfläche.


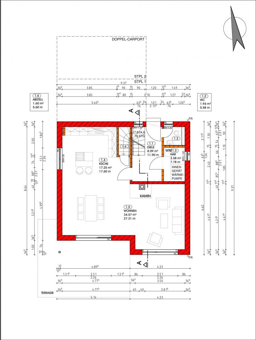
Grundriss eines Hauses: Offenes Wohnzimmer mit Kamin, Küche, Diele, Bad, WC, Terrasse, Carport.


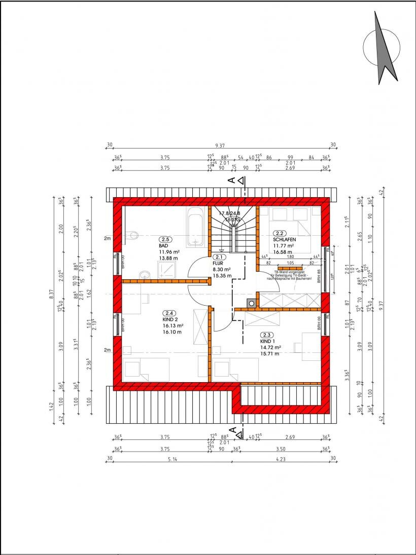
Grundriss eines Dachgeschosses mit roter Umrandung; Schlafzimmer, Bad, Flur, zwei Kinderzimmer.
L
lastdrop
21.10.13 16:52
Technikraum ist sehr klein, würde ich größer machen.

bisschen dunkel das Ganze, würde mehr Fenster nehmen.

Bad und Schlafen tauschen, ist einfacher von der Entwässerung her.

Funktioniert das mit der Statik? Wenig Wände im EG.

Braucht Ihr keinen Stauraum, Büro, Gästeraum, Hauswirtschaftsraum?
Y
ypg
21.10.13 19:20
Na, dann geize ich mal nicht mit Kritik und fange am Eingang EG an, der zu schmal ist. Im Flur gibt es keine Möglichkeit für Garderobe und Schuhe, davon hat man allerdings bei 4 Bewohnern so allerhand, Gäste wollen auch kommen.
Also könnte man die Tür zur Küche versetzen, sodass dort ein (Einbau)schrank stehen kann, aber Küche hapert auch.
Zumindest sollte ein Fenster vor der Spüle sein, natürliches Licht, ganz wichtig, fehlt im ganzen Haus.
Dann frage ich mich, ob genug Küchenmöbel bei 4 Personen vorhanden sind (wir haben mehr geplant... für 2 Personen... und haben im TK-Raum 3 Meter Stellfläche für Schränke für die ganzen Geräte, weiteren Kühlschrank und Vorrat). Herd braucht an beiden Seiten Ablage für Töpfe und co. Kochinsel mind. auf 150cm Breite planen, ansonsten sehr fipsig. Mit den 17qm lässt sich mE mehr anfangen.
Ich weiss nicht, wie eine Wärmepumpe aufgebaut ist, aber wenn es ein Kasten ist, ist Euer TK-Raum nicht begehbar. Kontrollierte-Wohnraumlüftung gibt es wohl nicht? Ihr scheint auch keinen E-Schrank einzuplanen? Elektriker braucht schon mal vor dem E-Schrank 150cm Fallfläche (habe ich irgendwo gelesen, dass ein TK-Raum mind. 180 x 220 gross sein muss?) Wo wird die Wäsche getrocknet?
Das notwendige ist also bei Euch sehr klein gehalten, fast nicht benutzbar, aber dafür Wohnbereich sehr grosszügig verplant.
Im OG ist es sehr dunkel im Flur.
Was für ein Kniestock habt Ihr? Wir haben 130cm und wissen jetzt schon, dass wir das Bett vorschieben werden, damit wir im Bett auch sitzen können. Die Mauer im Schlafzimmer ist für TV nötig, aber irgendwie ja doch störend???! Und ich sehe eine Breite von 270 cm Wo kommt bei Euch die ganze Wintergarderobe, Wechseldecken, Schals etc hin? Wie steigt Ihr aus dem Bett? 310 cm sollten es mind sein für einen vernünftigen Kleiderschrank und einfache Begehbarkeit des Bettes.
Bad sollte man auch gleich so planen, dass es ungefähr stimmt. Mir sieht der Durchgang zw Dusche und Wanne zu eng aus, die Toilette ist mittig vom 2-Meter-Strich ->gehört somit verschoben. Werdet Ihr das Badfenster immer schön mit Gardine zuhalten? Ich verstehe nicht diese bodentiefen Fenster im Bad... Außerdem kommen durch diese Fenster mE auch weniger Licht als wenn man ein breites mit Brüstung nimmt (<- Kinderzimmer)

Wenn ich mir das Haus von außen vorstelle, kommt es mir etwas "ohne Seele" vor, da Fenster fehlen. Fenster sind immer die Augen eines Hauses und sollten auch der Optik dienlich sein.

Ich würde die Kochinsel verlängern auf 2 Meter und quer stellen, sodass man am Fenster sitzt und beim Kochen rausschauen kann.
Außerdem die Treppe versetzen Rtg Küche, damit Eingang und Schlafen OG entspannter wird. Wohnen kann auch kleiner ausfallen, aber da weiss ich nicht, ob diese Wand zu versetzen ist, da tragend. TK-Raum muss unbedingt größer!
Größtes Problem sehe ich im Mangel an Abstell- und Arbeitsfläche.

Einen Architekt hat die Baufirma wohl nicht, der Euch darauf hinweist?
fensterschrankbettflurküche