ᐅ Treppenpodest wie tief? wie gestalten?
Erstellt am: 14.08.16 10:38
Guten Morgen!
Wir stecken mitten in der Planung unseres Einfamilienhaus und haben ein Problem mit unserer Treppe.
Die Architektin hat eine gegenläufige Podesttreppe empfohlen, damit wir genügend Kopffreiheit vom 1. OG ins DG haben. Dafür hat sie ein Podest mit 1,05 m eingeplant. je 16 Stufen sind mit 18/ 26 vom EG ins OG bzw. 17.4 / 26 vom OG ins DG geplant (Rohbauhöhen EG / OG sind unterschiedlich)
Die Treppe braucht natürlich einiges an Platz, der uns im Flur "fehlt"- die unterste Treppenstufe schließt derzeit mit der Wand ab. Flurbreite wäre damit aktuell 1,38, wir hätten gerne aus optischen Gründen aber um die 1,5 m (Flur wird Ca. 7 m lang- und nein, das lässt sich nicht vermeiden :-( )
Nun die Frage an alle mit Podesttreppe: wie tief ist euer Podest? braucht es 1,05 m oder reichen auch 95 cm?
oder habt ihr die unterste Stufe in den Flur reinragen lassen und die anschließenden Wände etwas zurückgesetzt? Wie habt ihr das dann optisch gelöst- sieht das noch hübsch aus?
Weitere Alternative wäre, das Podest nur minimal zu kürzen und stattdessen den Auftritt auf 25 zu verschmälern. das hört sich für mich allerdings auch nicht ideal an...
Würde mich über Anregungen und gerne auch Bilder sehr freuen!
Wir stecken mitten in der Planung unseres Einfamilienhaus und haben ein Problem mit unserer Treppe.
Die Architektin hat eine gegenläufige Podesttreppe empfohlen, damit wir genügend Kopffreiheit vom 1. OG ins DG haben. Dafür hat sie ein Podest mit 1,05 m eingeplant. je 16 Stufen sind mit 18/ 26 vom EG ins OG bzw. 17.4 / 26 vom OG ins DG geplant (Rohbauhöhen EG / OG sind unterschiedlich)
Die Treppe braucht natürlich einiges an Platz, der uns im Flur "fehlt"- die unterste Treppenstufe schließt derzeit mit der Wand ab. Flurbreite wäre damit aktuell 1,38, wir hätten gerne aus optischen Gründen aber um die 1,5 m (Flur wird Ca. 7 m lang- und nein, das lässt sich nicht vermeiden :-( )
Nun die Frage an alle mit Podesttreppe: wie tief ist euer Podest? braucht es 1,05 m oder reichen auch 95 cm?
oder habt ihr die unterste Stufe in den Flur reinragen lassen und die anschließenden Wände etwas zurückgesetzt? Wie habt ihr das dann optisch gelöst- sieht das noch hübsch aus?
Weitere Alternative wäre, das Podest nur minimal zu kürzen und stattdessen den Auftritt auf 25 zu verschmälern. das hört sich für mich allerdings auch nicht ideal an...
Würde mich über Anregungen und gerne auch Bilder sehr freuen!
W
WildThing18.08.16 10:09Ich kann dich hier mal an diesen Thread verweisen, da hat kbt09 recht viel über Treppen geschrieben. Vielleicht hilft dir das weiter:
https://www.hausbau-forum.de/threads/Meinung-zum-hausentwurf.15775/page-5#post-135203
Zum restlichen Thema kann ich leider nichts sagen, wir haben keine Podesttreppe. Ich verstehe euch aber, ich würde auch versuchen den Flur nicht zu schmal zu gestalten wenn er so lang ist. Und eine gerade Treppe wäre nichts? Oder nur eine Halbgewendelte?
Könntest du mal die Treppe, bzw. den Grundriss einstellen? Dann kann man da sicher mehr helfen und ggf. mehr Optimierungspotential erkennen?
https://www.hausbau-forum.de/threads/Meinung-zum-hausentwurf.15775/page-5#post-135203
Zum restlichen Thema kann ich leider nichts sagen, wir haben keine Podesttreppe. Ich verstehe euch aber, ich würde auch versuchen den Flur nicht zu schmal zu gestalten wenn er so lang ist. Und eine gerade Treppe wäre nichts? Oder nur eine Halbgewendelte?
Könntest du mal die Treppe, bzw. den Grundriss einstellen? Dann kann man da sicher mehr helfen und ggf. mehr Optimierungspotential erkennen?
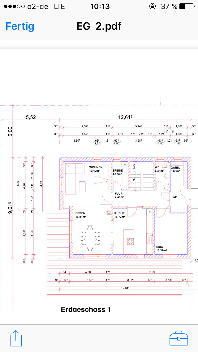
Zum Verständnis mal das EG. Konzentriert euch bitte auf die Treppe
Wir sind uns der Raummaße und Anzahl/ Funktion bewusst und mit dem Rest Grundstück. zufrieden!
Mir wäre sogar eine halb gewandelte Treppe (U) fast am liebsten (bin damit groß geworden und finde sie aus Gewohnheit besser als Podesttreppen) - allerdings ist dann die Erschließung des DG nicht mehr möglich wegen dem zu geringen Abstand zwischen Stufen und Dachschräge.
Das DG ist letztlich unser Problem, da es künftig über mehr als eine Auszugtreppe zugänglich sein soll.
und ja, wir sind uns bewusst, dass das Haus mit dann insgesamt 4 Geschossen recht groß ist, das Thema haben wir zur Genüge diskutiert.
Plan ist genordet; die Straße liegt im Süden und wir haben keine Lust, jedes mal erst um das Haus herumzulaufen -> Haustür im Norden scheidet damit aus, was uns also viele Möglichkeiten der Raumanordnung nimmt.
Firstrichtung entspricht der Vorgabe im Bebauungsplan, der übrigens ein Längenverhältnis von 2:3 bei kurzer zu langer Hausseite vorsieht (davon können wir abweichen, da alle anderen auch schon abgewichen sind, aber zu quadratisch geht halt nicht).
Gerade Treppe kommt wegen dem dann entgegengesetzten Kellerabgang für uns nicht in Frage, ein L scheidet meiner Meinung nach bei unserem Raumkonzept i.V.m. den Bebauungsplan-Vorgaben aus... der kleinste "Eingriff" wäre also, die Treppe selbst anzupassen mit nur 25 cm Auftritt und Podest mit 90 cm. oder die Stufen in den Flur ragen zu lassen...

Wir sind uns der Raummaße und Anzahl/ Funktion bewusst und mit dem Rest Grundstück. zufrieden!
Mir wäre sogar eine halb gewandelte Treppe (U) fast am liebsten (bin damit groß geworden und finde sie aus Gewohnheit besser als Podesttreppen) - allerdings ist dann die Erschließung des DG nicht mehr möglich wegen dem zu geringen Abstand zwischen Stufen und Dachschräge.
Das DG ist letztlich unser Problem, da es künftig über mehr als eine Auszugtreppe zugänglich sein soll.
und ja, wir sind uns bewusst, dass das Haus mit dann insgesamt 4 Geschossen recht groß ist, das Thema haben wir zur Genüge diskutiert.
Plan ist genordet; die Straße liegt im Süden und wir haben keine Lust, jedes mal erst um das Haus herumzulaufen -> Haustür im Norden scheidet damit aus, was uns also viele Möglichkeiten der Raumanordnung nimmt.
Firstrichtung entspricht der Vorgabe im Bebauungsplan, der übrigens ein Längenverhältnis von 2:3 bei kurzer zu langer Hausseite vorsieht (davon können wir abweichen, da alle anderen auch schon abgewichen sind, aber zu quadratisch geht halt nicht).
Gerade Treppe kommt wegen dem dann entgegengesetzten Kellerabgang für uns nicht in Frage, ein L scheidet meiner Meinung nach bei unserem Raumkonzept i.V.m. den Bebauungsplan-Vorgaben aus... der kleinste "Eingriff" wäre also, die Treppe selbst anzupassen mit nur 25 cm Auftritt und Podest mit 90 cm. oder die Stufen in den Flur ragen zu lassen...
J
j.bautsch18.08.16 11:24also ich mag podesttreppen da sie gut zu laufen sind (keine zulaufenden stufen) viel mehr zum podest kann ich dirleider nicht sagen als das man sich überlegen muss ob man dann bei weniger tiefem podest noch gut mit sperrigen Möbeln um die ecke kommt.
es gibt treppenstudios, habt ihr dort vllt einfach mal gefragt bzw bei uns gibt es studios wo man verschiedenste Treppen probelaufen kann.
den Grundriss finde ich auch gut so (planen wir ähnlich nur ohne Keller dafür statt Speis dann Technik Raum)
es gibt treppenstudios, habt ihr dort vllt einfach mal gefragt bzw bei uns gibt es studios wo man verschiedenste Treppen probelaufen kann.
den Grundriss finde ich auch gut so (planen wir ähnlich nur ohne Keller dafür statt Speis dann Technik Raum)
Hallo Maria
ich habe die letzte Treppenstufe in den Flur reinragend. Aber der Flur ist über 200cm breit. Hilft dir also nicht viel.
Kannst du nicht die Küche etwas weniger tief (20cm) machen, die Nische (am Eingang links) nicht als Nische sondern durchlaufend? Würde auf alle Fälle den Flur vergrößern. Die Küche und das Arbeitszimmer werden halt kleiner. Aber der Flur ist nicht mehr so ein schmaler Schlauch.
Steven
ich habe die letzte Treppenstufe in den Flur reinragend. Aber der Flur ist über 200cm breit. Hilft dir also nicht viel.
Kannst du nicht die Küche etwas weniger tief (20cm) machen, die Nische (am Eingang links) nicht als Nische sondern durchlaufend? Würde auf alle Fälle den Flur vergrößern. Die Küche und das Arbeitszimmer werden halt kleiner. Aber der Flur ist nicht mehr so ein schmaler Schlauch.
Steven
Ähnliche Themen