Hallo,
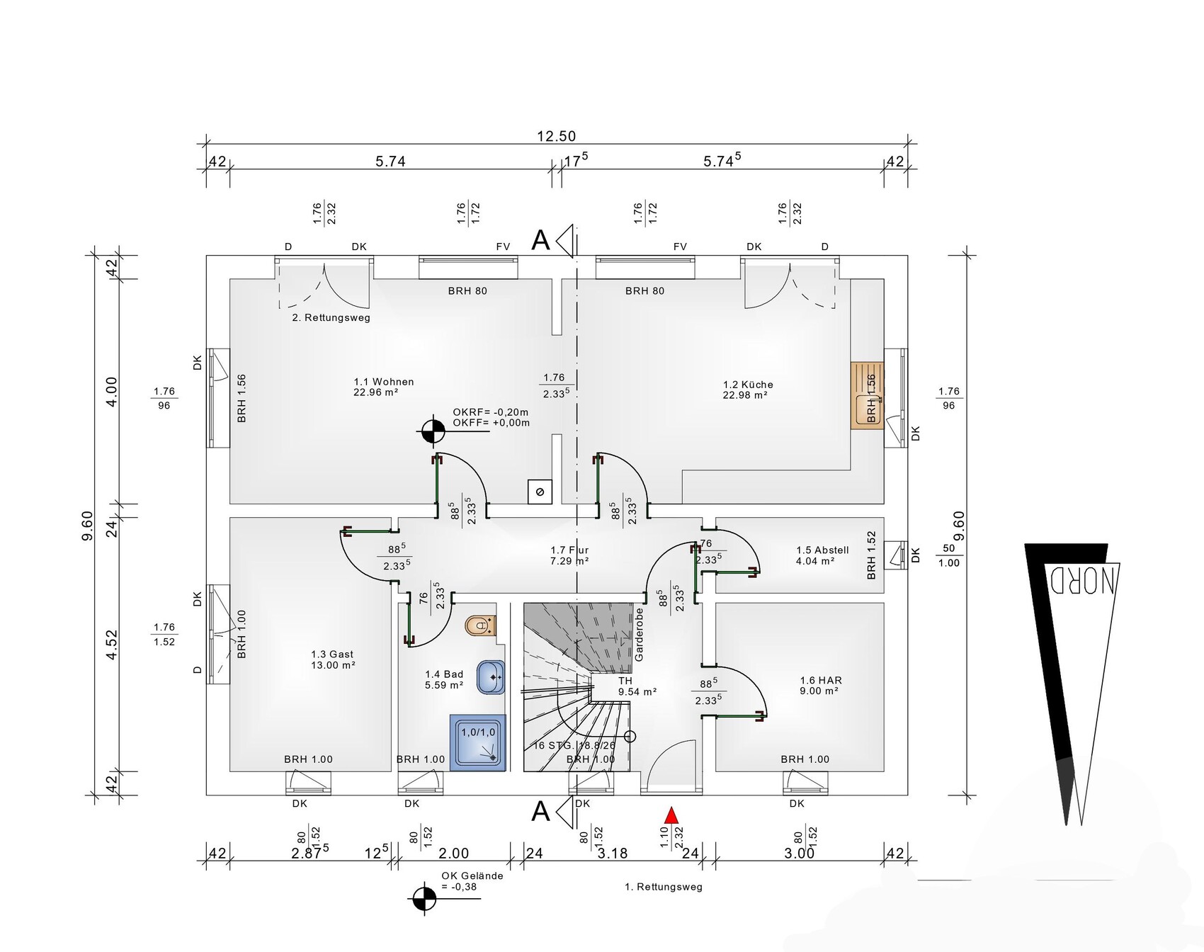
Wir sind aktuell bei der Grundrissplanung, anbei der Vorschlag vom Architekten. An sich gefällt uns der Grundriss sehr gut, ich finde nur unnötig viel Wohnfläche an der Flur/Diele/Treppenhaus verschenkt. Hat jemand Verbesserungsvorschläge?
Bebauungsplan/Einschränkungen
Größe des Grundstücks 2.200 m2
Kein Hang
Gebaut wird in Sachsen-Anhalt
Geschossigkeit 2 Geschosse
Es gibt keinen Bebauungsplan, es soll nur zu der Bebauung in der Straße passen (reines Wohngebiet)
Anforderungen der Bauherren
Stilrichtung, Dachform, Gebäudetyp: einfache Form, Pultdach
Ohne Keller
Anzahl der Personen, Alter: vier Personen, davon zwei Kinder im Kita-Alter
Raumbedarf im EG: Wohnzimmer, große Küche, Speisekammer, WC mit Dusche, Gästezimmer, Hauswirtschaftsraum
Raumbedarf im OG: Schlafzimmer, Ankleide, drei Kinderzimmer, Bad, zusätzliche Toilette
Schlafgäste pro Jahr 1x/Monat
geschlossene Architektur
konservative Bauweise
Küche: gerne mit Kochinsel,
Anzahl Essplätze 6
Balkon, Dachterrasse nein
Garage, Carport nein
Hausentwurf
Von wem stammt die Planung:
-Architekt
Was gefällt besonders? Warum? Grundriss flexibel und wandelbar, man könnte später zwei Einheiten daraus machen
Was gefällt nicht? Warum? Zu viel Wohnfläche für Flur/Diele/Treppe verschwendet
favorisierte Heiztechnik: Wärmepumpe, Fußbodenheizung
Wenn Ihr verzichten müsst, auf welche Details/Ausbauten
-könnt Ihr verzichten: Galerie im OG, zusätzliche Toilette im OG
-könnt Ihr nicht verzichten: Grundriss soll wandelbar bleiben
Warum ist der Entwurf so geworden, wie er jetzt ist?
Uns ist es wichtig, dass man das Einfamilienhaus in zwei Wohneinheiten teilen kann
Was ist die wichtigste/grundlegende Frage zum Grundriss in 130 Zeichen zusammengefasst?
Kann man den Flur/Diele/Treppe verkleinern?


Wir sind aktuell bei der Grundrissplanung, anbei der Vorschlag vom Architekten. An sich gefällt uns der Grundriss sehr gut, ich finde nur unnötig viel Wohnfläche an der Flur/Diele/Treppenhaus verschenkt. Hat jemand Verbesserungsvorschläge?
Bebauungsplan/Einschränkungen
Größe des Grundstücks 2.200 m2
Kein Hang
Gebaut wird in Sachsen-Anhalt
Geschossigkeit 2 Geschosse
Es gibt keinen Bebauungsplan, es soll nur zu der Bebauung in der Straße passen (reines Wohngebiet)
Anforderungen der Bauherren
Stilrichtung, Dachform, Gebäudetyp: einfache Form, Pultdach
Ohne Keller
Anzahl der Personen, Alter: vier Personen, davon zwei Kinder im Kita-Alter
Raumbedarf im EG: Wohnzimmer, große Küche, Speisekammer, WC mit Dusche, Gästezimmer, Hauswirtschaftsraum
Raumbedarf im OG: Schlafzimmer, Ankleide, drei Kinderzimmer, Bad, zusätzliche Toilette
Schlafgäste pro Jahr 1x/Monat
geschlossene Architektur
konservative Bauweise
Küche: gerne mit Kochinsel,
Anzahl Essplätze 6
Balkon, Dachterrasse nein
Garage, Carport nein
Hausentwurf
Von wem stammt die Planung:
-Architekt
Was gefällt besonders? Warum? Grundriss flexibel und wandelbar, man könnte später zwei Einheiten daraus machen
Was gefällt nicht? Warum? Zu viel Wohnfläche für Flur/Diele/Treppe verschwendet
favorisierte Heiztechnik: Wärmepumpe, Fußbodenheizung
Wenn Ihr verzichten müsst, auf welche Details/Ausbauten
-könnt Ihr verzichten: Galerie im OG, zusätzliche Toilette im OG
-könnt Ihr nicht verzichten: Grundriss soll wandelbar bleiben
Warum ist der Entwurf so geworden, wie er jetzt ist?
Uns ist es wichtig, dass man das Einfamilienhaus in zwei Wohneinheiten teilen kann
Was ist die wichtigste/grundlegende Frage zum Grundriss in 130 Zeichen zusammengefasst?
Kann man den Flur/Diele/Treppe verkleinern?
Dizzy05 schrieb:
Grundriss flexibel und wandelbar, man könnte später zwei Einheiten daraus machenDizzy05 schrieb:
Uns ist es wichtig, dass man das Einfamilienhaus in zwei Wohneinheiten teilen kannDie zwei Wohneinheiten sind wunderbar gelungen.Ich suche hier das Einfamilienhaus, in dem eine Familie lebt. Für mich hat dieser Grundriss nichts von einem Einfamilienhaus.
B
Benzeller29.06.22 07:32Im EG muss ja der Esstisch in der Küche stehen, oder es wird sehr eng mit Sofa im Wohn/Esszimmer.
Türe im zum Flur würde ich vorbereiten aber nicht einbauen um besser zur Speisekammer zu kommen mit den Einkäufen.
Im DG ist ein Kinderzimmer deutlich kleiner wie die anderen beiden.
Ankleide fehlt der durchgang ins Schlafzimmer.
Türe im zum Flur würde ich vorbereiten aber nicht einbauen um besser zur Speisekammer zu kommen mit den Einkäufen.
Im DG ist ein Kinderzimmer deutlich kleiner wie die anderen beiden.
Ankleide fehlt der durchgang ins Schlafzimmer.
Das Haus alleine (also 1 Wohneinheit) zu bewohnen stelle ich mir echt schwierig vor... Da passt irgendwie gar nichts so richtig.
Für zwei Wohneinheiten sicherlich alles relativ gut aufgeteilt und auch sinnig (zumindest das meiste), jedoch als Einfamilienhaus nicht gut bewohnbar mMn.
Der wichtigste und schönste Raum im Haus ist natürlich Wohnen/Essen/Küche - hier vermisse ich den Essbereich.
Euer Wohnzimmer ist schon relativ klein, bzw. wird es schier unmöglich werden eine passende Essecke einzurichten, da die Küche in einer geraden Linie angrenzt. Ich stelle mir das auch optisch total schwierig vor.
Für zwei Wohneinheiten sicherlich alles relativ gut aufgeteilt und auch sinnig (zumindest das meiste), jedoch als Einfamilienhaus nicht gut bewohnbar mMn.
Der wichtigste und schönste Raum im Haus ist natürlich Wohnen/Essen/Küche - hier vermisse ich den Essbereich.
Euer Wohnzimmer ist schon relativ klein, bzw. wird es schier unmöglich werden eine passende Essecke einzurichten, da die Küche in einer geraden Linie angrenzt. Ich stelle mir das auch optisch total schwierig vor.
Ähnliche Themen