Hallo Leute,
nach nunmehr 10 Monaten widmen wir (Frau, Tochter und ich) uns intensiver unserem Bauwunsch.
Uns liegen mittlerweile mehrere Angebote vor. Da mein selbst erstellter Grundriss vom Architekten aufgrund der Statik minimalst angepasst werden musste, würde ich gerne von euch noch ein paar Anregungen bekommen.
Uns liegt viel daran, natürlich zu bauen. Daher sind wir mit einigen örtlichen Holzbaufirmen in Kontakt getreten.
Geplant ist ein Einfamilienhaus aus Holz mit Naturdämmstoffen (Kfw 70, eher besser), Keller mit extra Eingang, Pelletheizung sowie Photovoltaikanlage. Ca. 140 m² Wohnfläche (3 Kinder geplant, 1 ist schon anwesend mit stolzen 2,5 Jahren).
Die Hälfte des Spitzbodens (bis mittlere Wand) wird als Dachboden zur Verfügung stehen, der Zugang hierzu mittels einziehbarer Treppe im Flur.
Die andere Hälfte (über den Kinderzimmern) wird z.T. als sichtbarer Dachstuhl und zum Teil mit Decke versehen. Der überdeckte Teil soll mit Hilfe einer Trittleiter erreichbar sein und als Spiel-/Lagerbereich dienen.
So, nun meine eigentlichen Fragen:
Technikraum Keller:
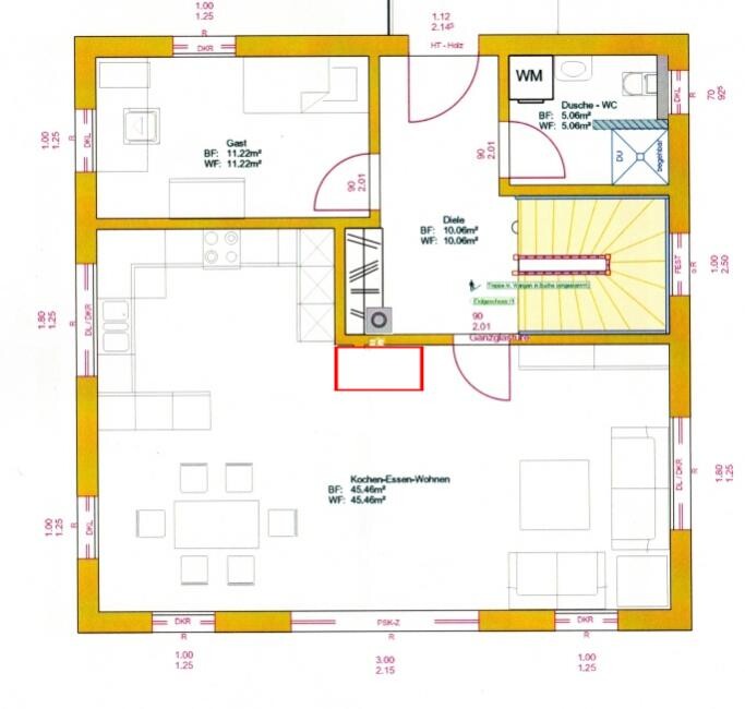
- Soll man die Waschmaschine/Wäschetrockner im T-Raum lassen oder wie ursprünglich geplant im DU/WC im EG?
Ich brauche als Pelletlager ca. 6-7 m³ (das reicht beim Haus von meinem alten Herrn für ca 16 Monate). Der Rest natürlich frei für die Heizungsanlage (blieben also ca. 13,5m²).
Wohn-/Esszimmer EG:
- Türe zum Flur ca. 1m versetzen oder nicht? Hintergrund: ich hätte nach dem Versetzen mehr Platz für die Fernseher-Wand/Bücherregal...
- Die Wand neben dem Kamin bündig mit der oberen Wand machen, sprich 30 cm nach links verschieben und gleichzeitig um 60 cm kürzen? Laut Architekt machbar und es würde den Raum offener machen.
- Küche um ein Element (60cm) kürzen? Dann wäre Platz für z.B. 2 Barhocker für das schnelle Frühstück (wäre ein Wunsch meiner Frau). Platz zum Esstisch wäre genug, da dieser mit Eckback eben ins Eck gerückt wird.
- Große Fensterfläche als Doppelflügel-Tür machen oder Schiebetüre? (Doppelflügel wäre m.E. sinnvoller und günstiger)
Kinderzimmer OG:
- Wohin sollte man die Leiter zum Spielbereich stellen? Fix oder beweglich?
außen:
- Komplett mit Klingschrot-Ecke verschalen lassen oder nur die obere Hälfte? Wir sind uns absolut uneins.
- Fenster mit Lärchenholz oder gefärbter Kunststoff (klar Holz kostet mich fast 5k mehr, aber wir sind trotzdem nicht sicher)?
Falls jemand Fragen oder Anregungen hat --> nur zu.
MfG
Zeiti
nach nunmehr 10 Monaten widmen wir (Frau, Tochter und ich) uns intensiver unserem Bauwunsch.
Uns liegen mittlerweile mehrere Angebote vor. Da mein selbst erstellter Grundriss vom Architekten aufgrund der Statik minimalst angepasst werden musste, würde ich gerne von euch noch ein paar Anregungen bekommen.
Uns liegt viel daran, natürlich zu bauen. Daher sind wir mit einigen örtlichen Holzbaufirmen in Kontakt getreten.
Geplant ist ein Einfamilienhaus aus Holz mit Naturdämmstoffen (Kfw 70, eher besser), Keller mit extra Eingang, Pelletheizung sowie Photovoltaikanlage. Ca. 140 m² Wohnfläche (3 Kinder geplant, 1 ist schon anwesend mit stolzen 2,5 Jahren).
Die Hälfte des Spitzbodens (bis mittlere Wand) wird als Dachboden zur Verfügung stehen, der Zugang hierzu mittels einziehbarer Treppe im Flur.
Die andere Hälfte (über den Kinderzimmern) wird z.T. als sichtbarer Dachstuhl und zum Teil mit Decke versehen. Der überdeckte Teil soll mit Hilfe einer Trittleiter erreichbar sein und als Spiel-/Lagerbereich dienen.
So, nun meine eigentlichen Fragen:
Technikraum Keller:
- Soll man die Waschmaschine/Wäschetrockner im T-Raum lassen oder wie ursprünglich geplant im DU/WC im EG?
Ich brauche als Pelletlager ca. 6-7 m³ (das reicht beim Haus von meinem alten Herrn für ca 16 Monate). Der Rest natürlich frei für die Heizungsanlage (blieben also ca. 13,5m²).
Wohn-/Esszimmer EG:
- Türe zum Flur ca. 1m versetzen oder nicht? Hintergrund: ich hätte nach dem Versetzen mehr Platz für die Fernseher-Wand/Bücherregal...
- Die Wand neben dem Kamin bündig mit der oberen Wand machen, sprich 30 cm nach links verschieben und gleichzeitig um 60 cm kürzen? Laut Architekt machbar und es würde den Raum offener machen.
- Küche um ein Element (60cm) kürzen? Dann wäre Platz für z.B. 2 Barhocker für das schnelle Frühstück (wäre ein Wunsch meiner Frau). Platz zum Esstisch wäre genug, da dieser mit Eckback eben ins Eck gerückt wird.
- Große Fensterfläche als Doppelflügel-Tür machen oder Schiebetüre? (Doppelflügel wäre m.E. sinnvoller und günstiger)
Kinderzimmer OG:
- Wohin sollte man die Leiter zum Spielbereich stellen? Fix oder beweglich?
außen:
- Komplett mit Klingschrot-Ecke verschalen lassen oder nur die obere Hälfte? Wir sind uns absolut uneins.
- Fenster mit Lärchenholz oder gefärbter Kunststoff (klar Holz kostet mich fast 5k mehr, aber wir sind trotzdem nicht sicher)?
Falls jemand Fragen oder Anregungen hat --> nur zu.
MfG
Zeiti
Zeiti schrieb:
Technikraum Keller:
- Soll man die Waschmaschine/Wäschetrockner im T-Raum lassen oder wie ursprünglich geplant im DU/WC im EG?Ich würde die Waschmaschine in den 5m² Raum im Keller aufstellen und dann einen Wäscheschacht von ganz oben bis ganz unten einplanen. Da kannst Du in beiden Bädern die Wäsche direkt zur Waschmaschine befördern.Zeiti schrieb:
Wohn-/Esszimmer EG:
- Türe zum Flur ca. 1m versetzen oder nicht? Hintergrund: ich hätte nach dem Versetzen mehr Platz für die Fernseher-Wand/Bücherregal...Das ist gar nicht so einfach. Mal doch mal den Kamin mit rein. Was soll denn da für ein Gerät hin? Wenn Du die Tür versetzt, wirst Du sicher auch den Aufschlag umdrehen wollen. Dann verdeckst Du den Kamin hinter der Tür und am Ende fackelt Dir noch die Bude ab. Und das wär ja auch unsinnig, den Kamin oder Ofen will man ja sehen. Ich habe das gleiche Problem gehabt und mich am Ende entschlossen, die Tür in die Diele aufschlagen zu lassen. Die Wohnzimmertür steht bei uns eh immer offen und sollte daher nicht im Weg sein. Ich würde wahrscheinlich diese Wand, die von der Küche wie ein Haken ins Wohnzimmer ragt, ganz wegnehmen und dort fett den Kamin einplanen. Den Schornstein oben und unten auf den Flur verbannen. Wenn die Pelletheizung da mit ran soll, muss der zweizügig sein, richtig? Dann würde ich gleich mal noch 20 cm mehr dafür einplanen.
Aber die Wohnzimmertür bekomm ich auch nicht weiter zur Küche. Da müsste der Kamin ganz den Platz wechseln.
Zeiti schrieb:
- Küche um ein Element (60cm) kürzen? Dann wäre Platz für z.B. 2 Barhocker für das schnelle Frühstück (wäre ein Wunsch meiner Frau). Platz zum Esstisch wäre genug, da dieser mit Eckback eben ins Eck gerückt wird. 😉Also wenn's die Hausfrau wünscht, würd ich ja einlenken, aber bei diesem Grundriss find ich es absolut überflüssig. Der Tisch steht ja schon direkt neben der Küche. Das ist dann wie ein Tisch neben dem Tisch. Das find ich Quark.Zeiti schrieb:
- Große Fensterfläche als Doppelflügel-Tür machen oder Schiebetüre? (Doppelflügel wäre m.E. sinnvoller und günstiger) Ich find schieben nervig - aber das sieht wahrscheinlich jeder anders.Zeiti schrieb:
Kinderzimmer OG:
- Wohin sollte man die Leiter zum Spielbereich stellen? Fix oder beweglich? Diesen Spielboden hab ich leider noch nicht so ganz erfasst. Das Dach ist also komplett ausgebaut. Welche Ecke solls denn nun bitte für die Kinder sein? Ist das nicht bissel zu eng, so ein Viertel? So direkt unterm Dach ist doch da gar nix mehr. Nur noch inder Mitte wahrscheinlich. 😕Ein gelungener Grundriss. Ist der Balkon im OG notwendig? Sowohl vom Kinder- wie vom Schlafzimmer aus zugänglich? Da wird, außer dem mal rauchenden Kind, keiner draußen sein - man hält sich dann ja doch auf der Terrasse auf.
Ich würde die Waschmaschine in den Technikraum - da ist genug Platz, Wasser und Abwasseranschlüsse sind auch da. Im Klo im EG steht sie doch nur im Weg. Flügeltüre oder Schiebetüre ist absolute Geschmacksache - die dicken Schiebetüren sind relativ schwerfällig - außer man hat wirklich teure, da die 3 fach Verglasung was wiegt. Für kleine Kidis sind normale Türen leichter zu öffnen. Nachdem das DG nicht abgebildet ist ist es schwierig zu sagen: Nimm eine flexible oder eine feste Leiter. Ich würde so ein Spieledeck mit kleiner Steigleiter und Geländer gleich fix installieren. Wenn du oben eh ein Geländer brauchst ist eine flexible Leiter unnötig. Dann gleich festmachen.
Ich würde die Waschmaschine in den Technikraum - da ist genug Platz, Wasser und Abwasseranschlüsse sind auch da. Im Klo im EG steht sie doch nur im Weg. Flügeltüre oder Schiebetüre ist absolute Geschmacksache - die dicken Schiebetüren sind relativ schwerfällig - außer man hat wirklich teure, da die 3 fach Verglasung was wiegt. Für kleine Kidis sind normale Türen leichter zu öffnen. Nachdem das DG nicht abgebildet ist ist es schwierig zu sagen: Nimm eine flexible oder eine feste Leiter. Ich würde so ein Spieledeck mit kleiner Steigleiter und Geländer gleich fix installieren. Wenn du oben eh ein Geländer brauchst ist eine flexible Leiter unnötig. Dann gleich festmachen.
Danke für die Anregung.
Ja der Balkon ist so gewünscht.
Leider hab ich vom Spitzboden keine Ansicht (nur mal 3-dimensional beim Architekten am PC gesehen).
An das Geländer oben hatte ich gar nicht gedacht. Wobei das wirklich notwendig ist! Danke. 🙂
BTW: Mein Kind wird nicht rauchen. Das werde ich durch gute Erziehung und Aufklärung zu verhindern wissen! 🙂
Ja der Balkon ist so gewünscht.
Leider hab ich vom Spitzboden keine Ansicht (nur mal 3-dimensional beim Architekten am PC gesehen).
An das Geländer oben hatte ich gar nicht gedacht. Wobei das wirklich notwendig ist! Danke. 🙂
BTW: Mein Kind wird nicht rauchen. Das werde ich durch gute Erziehung und Aufklärung zu verhindern wissen! 🙂
Zeiti schrieb:
BTW: Mein Kind wird nicht rauchen. Das werde ich durch gute Erziehung und Aufklärung zu verhindern wissen! 🙂Also da wär ich ja mal neugierig, wie sowas geht. Ich überleg gerade, wer von unser Jugendclique damals nicht geraucht hat, weil's der/die Papa/Mama gesagt hat... 😉Entschuldigung für die späte Antwort. War die letzten Tage bisschen im Stress.
@kaho: ich habs rauchen auch nicht angefangen 😉
Aufklärung ist hier die wichtigste Methode.
Was den Spitzboden angeht, der hat in der Mitte fast Mannshöhe.
Die Spieleecke geht von der Innenwand (Schlafzimmer/Bad) ca. 1,75m rein. Somit ergeben sich um die 4-5 m² Fläche (wie gesagt nutzbar als Spieleecke oder einfach Abstellfläche).
wünsche euch noch schöne Weihnachten.
MfG
Zeiti
@kaho: ich habs rauchen auch nicht angefangen 😉
Aufklärung ist hier die wichtigste Methode.
Was den Spitzboden angeht, der hat in der Mitte fast Mannshöhe.
Die Spieleecke geht von der Innenwand (Schlafzimmer/Bad) ca. 1,75m rein. Somit ergeben sich um die 4-5 m² Fläche (wie gesagt nutzbar als Spieleecke oder einfach Abstellfläche).
wünsche euch noch schöne Weihnachten.
MfG
Zeiti
Ähnliche Themen