Treppenbereich 3,04m x 2,25m - 15 oder 16 Stufen

4,50 Stern(e) 4 Votes
Zuletzt aktualisiert 21.11.2025
Sie befinden sich auf der Seite 6 der Diskussion zum Thema: Treppenbereich 3,04m x 2,25m - 15 oder 16 Stufen
>> Zum 1. Beitrag <<

kbt09

kbt09

Tja, erstmal müsste man wissen, was und ob man überhaupt ändern kann. Also, genaue Vermaßung und dann berechnen und zeichnen. Und das von jemandem, der auch weiß, was bei Treppe genau gemacht werden muss. Denn das ist nicht trivial.
 
K a t j a

K a t j a

Die Baugenehmigung gilt grundsätzlich für das in den zeichnerischen Erläuterungen des Antrages beschriebene Gebäude. Das Material ist der Baubehörde dabei nicht wichtig, aber von Steigungsanzahl und -maß würde ich nicht abzuweichen empfehlen.
Na das halte ich im Einfamilienhaus dann doch für übertrieben. Das ist ja keine öffentliche Konzerthalle, wo sich die Leute die Treppe hoch und runter drängeln. Das interessiert das Amt kaum bis gar nicht, ob Du hier 10cm abweichst.
 
K a t j a

K a t j a

Wenn ich das auf Deinem Grundriss richtig sehe, wäre eine weitere Stufe kaum ein Problem, wenn Du die Laufrichtung umkehrst. Ist das noch möglich?
 
G

Gregor_K

Wenn ich das auf Deinem Grundriss richtig sehe, wäre eine weitere Stufe kaum ein Problem, wenn Du die Laufrichtung umkehrst. Ist das noch möglich?
Ja, die Laufrichtung umkehren würde noch gehen.

Kann ich nicht einfach eine Stufe vor dem Podest mehr machen? Es geht hier um 12cm welche die Stufe hervorsteht und es würde mich kaum stören. Das Treppenloch hat mindestens Maße von 3,04m x 2,25m. Ein Problem mit Kopfschmerzen weil wir die Kopffreiheit von 2m nicht einhalten bekommen wir hier nicht. Siehe auch Bild.
Grundriss eines Treppenhauses mit zwei Treppenläufen, Podest und Rundbogenöffnung
 
K a t j a

K a t j a

Im EG am Treppenantritt wäre die Stufe sehr unglücklich. Wie Yvonne schon schreibt, wird sie zur Stolperfalle. Außerdem verengt sie den Flur vor der Doppeltür.
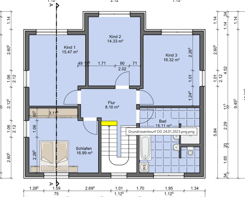
Im OG hingegen schmiegt sie sich problemlos ein:

Grundriss eines Obergeschosses: Schlafen, Bad, Flur, Treppe und drei Kinderzimmer.

Ist natürlich möglicherweise Aufwand, weil ein Stück der Decke weggesägt werden muss. Aber lieber jetzt einmal die Säge ansetzen, als später ewig über die Stufe stolpern.

PS: Bitte mach nicht immer solche Miniausschnitte. Man braucht immer die Umgebung, wenn man die Situation einschätzen will.
 
Zuletzt aktualisiert 21.11.2025
Im Forum Holzbau / Schreiner gibt es 485 Themen mit insgesamt 4497 Beiträgen


Ähnliche Themen zu Treppenbereich 3,04m x 2,25m - 15 oder 16 Stufen
Nr.ErgebnisBeiträge
1Treppe im Flur, Grundriss steht eigentlich schon :o( - Seite 320
2Baumangel - Treppe nicht in Ordnung - Seite 212
3Treppe "ragt" in Flur hinein: Problematisch? 12
4Treppe um 10cm versetzt, Optionen? - Seite 639
5Wohin mit der Treppe? Dachausbau Walmdachbungalow - Seite 319
6Hauseingang mit Flur oder ohne - Seite 215
7Frage zu Grundriss, insbesondere Treppe 13
8Treppe Grundriss Planung, Auftritt und Unterzug 21
9Grundrissfrage, Garage, Treppe 33
10Einfamilienhaus ca. 150 qm Grundriss - Treppe wie planen? 65
11Stadtvilla mit gerader Treppe, offene moderne Bauweise, 140m² 18
12Treppe im Wohnzimmer als Hype - Pro & Contra? - Seite 426
13Grundrissplanung Wohnzimmer und Flur zu schmal? - Seite 221
14Ausreichend Licht im Flur? Bitte um Meinung - Seite 212
15Grundrissplanung: Flur im EG breit genug? - Seite 257
16Wie viele Lampen im 7m langen Flur? 13
17Farbgestaltung der Treppe im Wohnraum, Materialwahl - Seite 750
18Jemand Ideen für Umgestaltung Treppe - Seite 220
19Bewegungsmelder im Flur/Dielenbereich - Seite 527
20Grundrissfrage: Tausch gerader Treppe durch L-Treppe 31

Oben