robert79 schrieb:
Ich habe versucht, mir eure Vorschläge zu Herzen zu nehmen und mich in die Hände eines Architekten begeben.... liest sich erst mal, als wäre von einem frei gewählten Architekten die Rede. Anderseits lese ich von "für eine Stadtvilla unterschrieben" und von konkreten 143 oder 168 qm. Das klingt dann doch wieder eher nach "Unternehmer steht schon fest", und dementsprechend nach Planeinreicher beim Unternehmer statt (Bauherren-parteiischer) Architekt im klassischen Sinne (?)
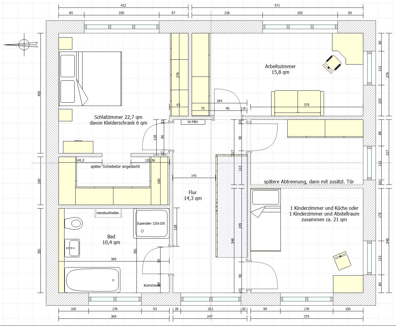
Das Kinderzimmer im ersten Entwurf gefällt mir am wenigstens wegen seiner schwierigen Unterteilbarkeit, das legt auch einen späterer Hausbesitzer auf ein Einzelkind fest, m.E. ein Minuspunkt für den Verkaufspreis.
Wenn es hier um ein Basismodell eines Anbieters geht, in dem praktisch nur Wändeschieberei zur Diskussion steht, schiene es mir zweckmäßig, dessen Standard-Entwurf als Ausgangsbasis hier in die Diskussion einzuführen.
Und, betreffend des Kindes: nicht vergessen, die werden auch mal groß. Dann 30 qm zu haben, aber im OG, ist wohl weniger toll als ein bißchen kleiner, aber mit eigenem Eingang (und: wenn das Kind zum studieren wegzieht, als Einliegerwohnung vermietbar).
https://www.instagram.com/11antgmxde/
https://www.linkedin.com/company/bauen-jetzt/
Vielen lieben Dank für die zahlreichen Beiträge und Tipps! Das war viel mehr, als ich erwartet hatte.
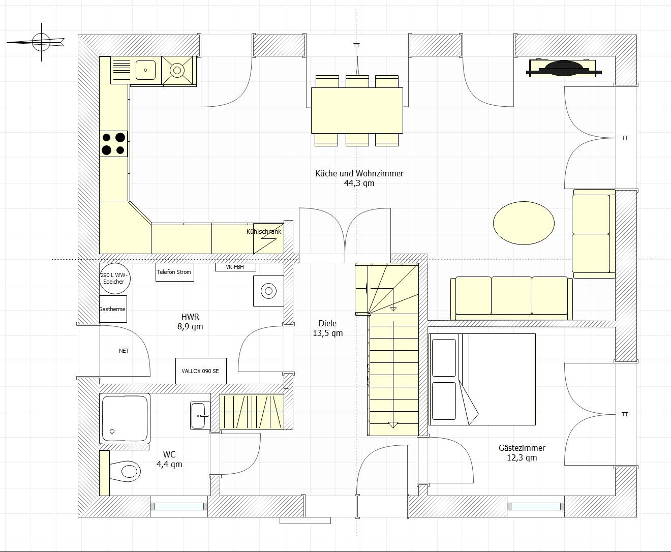
Baufirma, Grundrissgestaltung: Es handelt sich um das Unternehmen Team Massivhaus. Dort hat man eine freie Grundrissplanung. Ich zitiere aus der Baubeschreibung: "Die Grundriss-Aufteilung kann ohne Aufpreis frei nach den Wünschen der Bauherren verändert werden. Als Leistungsumfang hierfür gilt der Haustyp, die Wohnfläche, Ausstattung, Fliesenfläche, Raumanzahl und die Anzahl und Art der Fenster des jeweiligen als Berechnungsgrundlage verwendeten Kataloghauses.".
Man kann auch die Außenmaße des Hauses ändern, solange man ungefähr die Wohnfläche aus dem Katalog erreicht (sonst kostet es Aufpreis pro qm). Es macht sich jedoch besser, diese zu belassen. Sonst wird es noch komplizierter.
Architekt, Planungsgespräch: Man hat mit einem Architekten am Anfang ein Planungsgespräch, bei dem der gewünschte Grundriss grob durchgesprochen wird. Danach erarbeiten die Bauzeichner die weiteren Entwürfe, bis man sich für einen entschieden hat. Am Ende schaut noch einmal ein Architekt drüber. So habe ich es jedenfalls nach dem Lesen von Baublogs und Foren verstanden.
Beauftragung eines eigenen Architekten: Aus den verschiedenen Blog- und Foren-Beiträgen habe ich nach dem Kaufabschluss erfahren, dass es bei der Grundrisserstellung immer wieder zu sagen wir mal "Herausforderungen" gekommen ist. Ein Bauzeichner hat halt ein anderes Aufgabengebiet als ein Architekt. Deshalb habe ich ein längeres Beratungsgespräch mit einem von mir Beauftragten freien Architekten gehabt. Dabei hat er viel gezeichnet und auch gute Tipps zur Anordnung der Räume gegeben.
Zunächst noch einmal vielen Dank für die vielen Hinweise und Vorschläge:
@ypg:
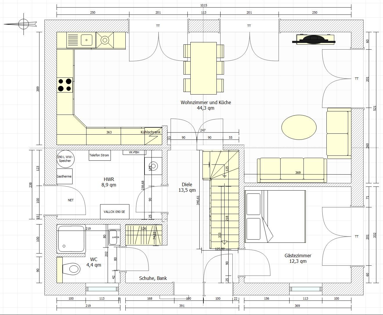
Zonierung Ess/WZ: Ja, das sieht eng mit dem Tisch aus. Ich habe mal einen angepassten Grundriss gebastelt. Ich möchte vom Sofa (oder einer späteren großen Wohnlandschaft) in den Garten schauen. Dann muss die Couch in der Nische unten stehen. Leider habe ich damit keine großen Bereiche für Schränke im Wohnzimmer. Ich habe jetzt zwei einflügelige Terrassentüren zum Herausgehen eingezeichnet. Die mittlere Doppeltür bleibt zu und der Tisch rückt davor. Zwischen den Türen habe ich noch etwas Stellfläche von jeweils einem Meter. So denke ich mir das als Laie. Ist das Blödsinn oder könnte das so funktionieren? Oder sollte der Tisch noch weiter in Richtung Küche?
Abstellraum im Bereich der Ankleide: Ich hatte gehofft, dass ich auf dem oberen Flur (ca. 1,40 m breit bis zur Treppe) noch ein paar Schränke hinstellen kann. Im Arbeitszimmer wäre auch noch Stauraum vorhanden. Ich habe es erst einmal oben so gelassen. Die versteckten Schränke im Arbeits- und Wohnzimmer gefallen mir (Wand zwischen den beiden Zimmern) und dies müsste ich dann ändern. Aber eine Tür und ein Fenster sind schnell eingezeichnet. Ich muss mal nachfragen, was ein zusätzlicher Raum kostet. Ich glaube so um die 1200 Euro. Es ist alles eine Kostenfrage.
Tausch von WC und Hauswirtschaftsraum: Das hatte der Architekt auch vorgeschlagen. Ich habe es eingezeichnet. Allerdings sehe ich einige Nachteile. Die Hauswirtschaftsraum-Tür ist weiter planoben. Dort soll davor später ein Auto stehen. Es wird dann ein bisschen enger mit dem Hineintragen von Sachen, wenn ich mich immer am Auto Vorbeizwängen muss. Oder ich mache das Carport breiter. Der entscheidendere Nachteil für mich wäre die mögliche Lärmbelästigung in der Küche und dem Wohnzimmer aus dem Hauswirtschaftsraum heraus. Ich habe da bezüglich der Lüftung, der Gastherme und den Porenbetonwänden einige negative Dinge gelesen. Deshalb wollte ich das WC dazwischen haben. Oder ich lasse die Wand zur Küche mit Kalksandstein gegen Aufpreis bauen.
Stadtvilla mit zwei Eingangstüren und Einliegerwohnung: Die Idee ist super. Aber ich glaube, dass sie an unserem Budget und auch der gewählten Baufirma scheitert.
Rente: Ich kann nicht in die Zukunft sehen. Aber ich möchte das Hamsterrad nicht so lange drehen, bis ich mit 70 Jahren tot umfalle.
@Climbee:
langweiliges Haus, Größe: Für uns hat der Haustyp das beste Preis-Leistungsverhältnis gehabt. Keine Sorge, die Stadtvilla wird nicht eine unter vielen in dem Gebiet sein. Das Grundstück liegt in einem Dorf, wo es fast nur ältere klassische Einfamilienhäuser gibt. Es gibt bei der Firma mehrere Stadtvillen (von 130 bis 195 qm). Man kann diese auch problemlos gegen Aufpreis vergrößern. Uns hat die SV170-1 mit 168 qm am besten gefallen.
Arbeitszimmer im EG: Klar, deine genannten Vorteile mit der Verlegung des Arbeitszimmers in das Erdgeschoss sind natürlich nicht von der Hand zu weisen! Wir werden es im Auge behalten. Ich brauche zum Arbeiten nur einen Computer. Ich könnte auch im EG arbeiten. Ich glaube, dass ich das aber erst entscheiden kann, wenn ich oben einige Monate gearbeitet habe. Wenn es mir nicht gefällt, ziehe ich eine Etage tiefer. Tauschen kann man die Zimmer ja dann immer noch. Ich wollte noch einige Sportgeräte in das Zimmer stellen. Es soll sozusagen mein Zimmer werden. Sonst bräuchte es auch nicht so groß sein. Kunden empfange ich nicht zu Hause.
Kinderzimmer: Danke für die ausführliche Schilderung. Ich weiß ehrlich gesagt nicht, ob unsere Tochter lieber im Wohnzimmer oder in ihrem Zimmer spielen möchte. Sie ist ja jetzt erst 1,5 Jahre. Ein weiteres Bad finde ich nicht sinnvoll. Wir haben zwei Bäder im Haus für drei Leute. Das sollte reichen. Aber vielleicht werde ich in einem Jahrzehnt eines Besseren belehrt. Wir denken nun ernsthaft darüber nach, die Leitungen für eine spätere Küche im OG mit in die Aufpreisliste zu packen. Mal schauen, was das kostet. Ich habe schon einmal eine weitere Tür eingezeichnet. So kann man den großen Raum später aufteilen und kann seinem Kind schon jetzt zwei Eingänge zum Zimmer bieten.
Ankleide: siehe oben
Schnell bauen oder Zeit haben: Wir könnten so viele Grundrisse mit dem Bauzeichner durchgehen, wie wir möchten. Jede Änderung dauert wohl ca. eine Woche (je nachdem was ich gelesen habe auch deutlich länger). Allerdings beträgt die Preisgarantie nur 12 Monate. Ab Oktober zahlen wir zudem Bereitstellungszinsen auf 100.000 Euro (jeden Monat 250 Euro).
"Werdet frei!": Das ist sehr schön geschrieben. Es passt nicht nur für den Hausbau, sondern auch für alle anderen Herausforderungen im Leben.
@Evolith: Danke für die Tipps zur Kinderzimmergröße. Ich möchte unserem Kind so viel Fläche wie möglich zur Verfügung stellen. Vielleicht hat sie mal ein Hobby, was Platz braucht. Etwas abtrennen kann man dann immer noch.
Wohnzimmer mit 2 Türen in den Garten: Wir hatten (als absolute Laien) angedacht, sowohl im Osten, als auch im Süden eine Terrasse mit entsprechenden Zugängen haben zu wollen. Im Süden könnte es auch eine einflügelige Tür sein. Aber ich weiß nicht, ob wir dann mit dem Kfw55 ins Gehege kommen. Je mehr Fensterfläche wir im Süden haben, desto besser. Das müsste ich mal nachfragen.
Fenster mit Unterlicht in der Küche: Vielen Dank, ist notiert. Wenn es dort ein normales Fenster (statt einer Tür wird), werden wir solch ein Fenster einbauen lassen.
1 Kind oder mehr: Es bleibt bei einem Kind.
@11ant: Entschuldige, dass es mit der Firma und dem Architekten etwas verwirrend von mir geschrieben ist. Meine oberen Ausführungen sollten Licht ins Dunkel bringen.
Basismodell:
Spätere Aufteilung des Kinderzimmers: Ich arbeite daran.

Baufirma, Grundrissgestaltung: Es handelt sich um das Unternehmen Team Massivhaus. Dort hat man eine freie Grundrissplanung. Ich zitiere aus der Baubeschreibung: "Die Grundriss-Aufteilung kann ohne Aufpreis frei nach den Wünschen der Bauherren verändert werden. Als Leistungsumfang hierfür gilt der Haustyp, die Wohnfläche, Ausstattung, Fliesenfläche, Raumanzahl und die Anzahl und Art der Fenster des jeweiligen als Berechnungsgrundlage verwendeten Kataloghauses.".
Man kann auch die Außenmaße des Hauses ändern, solange man ungefähr die Wohnfläche aus dem Katalog erreicht (sonst kostet es Aufpreis pro qm). Es macht sich jedoch besser, diese zu belassen. Sonst wird es noch komplizierter.
Architekt, Planungsgespräch: Man hat mit einem Architekten am Anfang ein Planungsgespräch, bei dem der gewünschte Grundriss grob durchgesprochen wird. Danach erarbeiten die Bauzeichner die weiteren Entwürfe, bis man sich für einen entschieden hat. Am Ende schaut noch einmal ein Architekt drüber. So habe ich es jedenfalls nach dem Lesen von Baublogs und Foren verstanden.
Beauftragung eines eigenen Architekten: Aus den verschiedenen Blog- und Foren-Beiträgen habe ich nach dem Kaufabschluss erfahren, dass es bei der Grundrisserstellung immer wieder zu sagen wir mal "Herausforderungen" gekommen ist. Ein Bauzeichner hat halt ein anderes Aufgabengebiet als ein Architekt. Deshalb habe ich ein längeres Beratungsgespräch mit einem von mir Beauftragten freien Architekten gehabt. Dabei hat er viel gezeichnet und auch gute Tipps zur Anordnung der Räume gegeben.
Zunächst noch einmal vielen Dank für die vielen Hinweise und Vorschläge:
@ypg:
Zonierung Ess/WZ: Ja, das sieht eng mit dem Tisch aus. Ich habe mal einen angepassten Grundriss gebastelt. Ich möchte vom Sofa (oder einer späteren großen Wohnlandschaft) in den Garten schauen. Dann muss die Couch in der Nische unten stehen. Leider habe ich damit keine großen Bereiche für Schränke im Wohnzimmer. Ich habe jetzt zwei einflügelige Terrassentüren zum Herausgehen eingezeichnet. Die mittlere Doppeltür bleibt zu und der Tisch rückt davor. Zwischen den Türen habe ich noch etwas Stellfläche von jeweils einem Meter. So denke ich mir das als Laie. Ist das Blödsinn oder könnte das so funktionieren? Oder sollte der Tisch noch weiter in Richtung Küche?
Abstellraum im Bereich der Ankleide: Ich hatte gehofft, dass ich auf dem oberen Flur (ca. 1,40 m breit bis zur Treppe) noch ein paar Schränke hinstellen kann. Im Arbeitszimmer wäre auch noch Stauraum vorhanden. Ich habe es erst einmal oben so gelassen. Die versteckten Schränke im Arbeits- und Wohnzimmer gefallen mir (Wand zwischen den beiden Zimmern) und dies müsste ich dann ändern. Aber eine Tür und ein Fenster sind schnell eingezeichnet. Ich muss mal nachfragen, was ein zusätzlicher Raum kostet. Ich glaube so um die 1200 Euro. Es ist alles eine Kostenfrage.
Tausch von WC und Hauswirtschaftsraum: Das hatte der Architekt auch vorgeschlagen. Ich habe es eingezeichnet. Allerdings sehe ich einige Nachteile. Die Hauswirtschaftsraum-Tür ist weiter planoben. Dort soll davor später ein Auto stehen. Es wird dann ein bisschen enger mit dem Hineintragen von Sachen, wenn ich mich immer am Auto Vorbeizwängen muss. Oder ich mache das Carport breiter. Der entscheidendere Nachteil für mich wäre die mögliche Lärmbelästigung in der Küche und dem Wohnzimmer aus dem Hauswirtschaftsraum heraus. Ich habe da bezüglich der Lüftung, der Gastherme und den Porenbetonwänden einige negative Dinge gelesen. Deshalb wollte ich das WC dazwischen haben. Oder ich lasse die Wand zur Küche mit Kalksandstein gegen Aufpreis bauen.
Stadtvilla mit zwei Eingangstüren und Einliegerwohnung: Die Idee ist super. Aber ich glaube, dass sie an unserem Budget und auch der gewählten Baufirma scheitert.
Rente: Ich kann nicht in die Zukunft sehen. Aber ich möchte das Hamsterrad nicht so lange drehen, bis ich mit 70 Jahren tot umfalle.
@Climbee:
langweiliges Haus, Größe: Für uns hat der Haustyp das beste Preis-Leistungsverhältnis gehabt. Keine Sorge, die Stadtvilla wird nicht eine unter vielen in dem Gebiet sein. Das Grundstück liegt in einem Dorf, wo es fast nur ältere klassische Einfamilienhäuser gibt. Es gibt bei der Firma mehrere Stadtvillen (von 130 bis 195 qm). Man kann diese auch problemlos gegen Aufpreis vergrößern. Uns hat die SV170-1 mit 168 qm am besten gefallen.
Arbeitszimmer im EG: Klar, deine genannten Vorteile mit der Verlegung des Arbeitszimmers in das Erdgeschoss sind natürlich nicht von der Hand zu weisen! Wir werden es im Auge behalten. Ich brauche zum Arbeiten nur einen Computer. Ich könnte auch im EG arbeiten. Ich glaube, dass ich das aber erst entscheiden kann, wenn ich oben einige Monate gearbeitet habe. Wenn es mir nicht gefällt, ziehe ich eine Etage tiefer. Tauschen kann man die Zimmer ja dann immer noch. Ich wollte noch einige Sportgeräte in das Zimmer stellen. Es soll sozusagen mein Zimmer werden. Sonst bräuchte es auch nicht so groß sein. Kunden empfange ich nicht zu Hause.
Kinderzimmer: Danke für die ausführliche Schilderung. Ich weiß ehrlich gesagt nicht, ob unsere Tochter lieber im Wohnzimmer oder in ihrem Zimmer spielen möchte. Sie ist ja jetzt erst 1,5 Jahre. Ein weiteres Bad finde ich nicht sinnvoll. Wir haben zwei Bäder im Haus für drei Leute. Das sollte reichen. Aber vielleicht werde ich in einem Jahrzehnt eines Besseren belehrt. Wir denken nun ernsthaft darüber nach, die Leitungen für eine spätere Küche im OG mit in die Aufpreisliste zu packen. Mal schauen, was das kostet. Ich habe schon einmal eine weitere Tür eingezeichnet. So kann man den großen Raum später aufteilen und kann seinem Kind schon jetzt zwei Eingänge zum Zimmer bieten.
Ankleide: siehe oben
Schnell bauen oder Zeit haben: Wir könnten so viele Grundrisse mit dem Bauzeichner durchgehen, wie wir möchten. Jede Änderung dauert wohl ca. eine Woche (je nachdem was ich gelesen habe auch deutlich länger). Allerdings beträgt die Preisgarantie nur 12 Monate. Ab Oktober zahlen wir zudem Bereitstellungszinsen auf 100.000 Euro (jeden Monat 250 Euro).
"Werdet frei!": Das ist sehr schön geschrieben. Es passt nicht nur für den Hausbau, sondern auch für alle anderen Herausforderungen im Leben.
@Evolith: Danke für die Tipps zur Kinderzimmergröße. Ich möchte unserem Kind so viel Fläche wie möglich zur Verfügung stellen. Vielleicht hat sie mal ein Hobby, was Platz braucht. Etwas abtrennen kann man dann immer noch.
Wohnzimmer mit 2 Türen in den Garten: Wir hatten (als absolute Laien) angedacht, sowohl im Osten, als auch im Süden eine Terrasse mit entsprechenden Zugängen haben zu wollen. Im Süden könnte es auch eine einflügelige Tür sein. Aber ich weiß nicht, ob wir dann mit dem Kfw55 ins Gehege kommen. Je mehr Fensterfläche wir im Süden haben, desto besser. Das müsste ich mal nachfragen.
Fenster mit Unterlicht in der Küche: Vielen Dank, ist notiert. Wenn es dort ein normales Fenster (statt einer Tür wird), werden wir solch ein Fenster einbauen lassen.
1 Kind oder mehr: Es bleibt bei einem Kind.
@11ant: Entschuldige, dass es mit der Firma und dem Architekten etwas verwirrend von mir geschrieben ist. Meine oberen Ausführungen sollten Licht ins Dunkel bringen.
Basismodell:
Spätere Aufteilung des Kinderzimmers: Ich arbeite daran.
Habt ihr euch schon mal son Haus grob durchkalkulieren lassen? Weil bei dem Grundpreis von 155t€ für 170qm auf der Webseite komme ich etwas ins grübeln. Das sind mal eben 55t€ weniger als der Grundpreis von ähnlichen Häusern die wir von verschiedenen GUs angeboten bekommen haben. Am Ende nach kompletter Bemusterung waren es bei uns noch mal 60t€ mehr.
Das ist einfach etwas zu wenig Geld gefühlt, da kommt noch gut was darauf. Wenn ihr schon ne grobe Hausnummer habt alles ok, sonst würde ich da noch mal rechnen lassen damit ihr nicht aufmal ne Überraschung erlebt.
Das ist einfach etwas zu wenig Geld gefühlt, da kommt noch gut was darauf. Wenn ihr schon ne grobe Hausnummer habt alles ok, sonst würde ich da noch mal rechnen lassen damit ihr nicht aufmal ne Überraschung erlebt.
robert79 schrieb:
Wir denken nun ernsthaft darüber nach, die Leitungen für eine spätere Küche im OG mit in die Aufpreisliste zu packen.Das halte ich für Unfug, insoweit eine kleine "zweite Wohneinheit" entstehen zu lassen, die dann aber "gefangen" ist, d.h. keinen separaten Zugang hat. Das ist m.E. geradezu der Idealtypus von "nichts halbem und nichts ganzem".
robert79 schrieb:
Fenster mit Unterlicht in der Küche: Vielen Dank, ist notiert. Wenn es dort ein normales Fenster (statt einer Tür wird), werden wir solch ein Fenster einbauen lassen.Fenster, vor deren Drehöffnung man nicht erst Topfpflänzchen von der Fensterbank abzuräumen braucht, finde ich auch an anderen Stellen angenehm.
robert79 schrieb:
1 Kind oder mehr: Es bleibt bei einem Kind.Wie gesagt: auch wenn man sein Haus für sein ganzes Leben bauen will, würde ich den Wiederverkaufswert für Nachbesitzer nicht ganz außer Acht lassen. Da dürfte "nur ein Kinderzimmer" als Minuspunkt vom Gewicht her etwa austauschbar sein mit "kein Keller" oder "auf das Grundstück paßt keine zweite Garage". frag mal Makler, wie oft das den Ausschlag gibt, warum ein sonst am Ziel gewesener Kaufinteressent doch lieber noch weiter sucht.
https://www.instagram.com/11antgmxde/
https://www.linkedin.com/company/bauen-jetzt/
Ähnliche Themen