ᐅ Satteldachbungalow mit max. 145qm auf Grundstück realisierbar?!
Erstellt am: 22.02.21 10:57
Schniebi22.02.21 10:57
Bebauungsplan/Einschränkungen
Größe des Grundstücks: 1461 qm
Hang: nein
Grundflächenzahl: 0,4
Geschossflächenzahl: 0,4
Baufenster, Baulinie und -grenze
Randbebauung
Anzahl Stellplatz
Geschossigkeit: 1 Vollgeschoss
Dachform:
Stilrichtung:
Ausrichtung
Maximale Höhen/Begrenzungen
weitere Vorgaben
Anforderungen der Bauherren
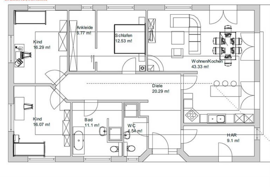
Stilrichtung, Dachform, Gebäudetyp: Satteldachbungalow möglichst ohne Winkel
Keller, Geschosse: Keller nein
Anzahl der Personen, Alter: 2 (29 und 35) - 1 Kind geplant
Raumbedarf im EG, OG: Og entfällt
Büro: Familiennutzung oder Homeoffice?: Homeoffice
Schlafgäste pro Jahr: ca 10x
offene oder geschlossene Architektur: eher geschlossen
konservativ oder moderne Bauweise: halb/halb
offene Küche, Kochinsel: halboffene Küche mit Schiebetür zum EZ
Anzahl Essplätze: 10
Kamin: nein!!!
Musik/Stereowand: nein
Balkon, Dachterrasse: nein
Garage, Carport: Doppelgarage möglichst mit kellerersatzraum
Nutzgarten, Treibhaus: nein
weitere Wünsche/Besonderheiten/Tagesablauf, gern auch Begründungen, warum dieses oder das nicht sein soll
Hallo liebe Forumgemeinde,
Ich bin neu hier und war bislang nur stille Mitleserin.
Durch Zufall bin ich auf dieses Forum gestoßen und jetzt regelrecht süchtig. Ihr gebt so viele konstruktive Hinweise, das ist der Wahnsinn.
Vorher hatte ich eigentlich keine großen Bedenken, dass ein größerer Bungalow auf das Grundstück passt. Ich wäre wohl mit einem Grundriss zu einem Bauträger gegangen und hätte den den umsetzen lassen. Ob das im Endeffekt unter Berücksichtigung des Grundstücks gelungen wäre, lassen wir mal dahingestellt 😉.
vorrangig geht es mir bei meinem thread um die Meinungen der erfahrenen Teilnehmer, ob sich der von uns gewünschte Bungalow überhaupt realisieren lässt, oder ob wir uns von diesem Traum schmerzlich verabschieden müssen.
das Grundstück wurde mir von meinen Eltern geschenkt und liegt in einem reinen Wohngebiet in einem kleinen Dorf ca. 20 km von Magdeburg.
Einen Ausdruck aus der Liegenschaftskarte inkl. Maßangaben ist beigefügt.
Gleiches gilt für den vorherrschenden Bebauungsplan (soweit vorliegend).
Das Grundstück ist mit seinen 1400 qm verhältnismäßig groß, allerdings auch stellenweise sehr schmal und verschachtelt. Es ist noch kein Bauträger involviert und das Grundstück nicht Bauträgergebunden.
Einen groben Grundriss haben wir bislang nur im Kopf, nicht aber auf Papier, da es wohl nicht so viel Sinn macht, den groß zu planen und sich evtl. darauf zu versteifen, wenn es im Endeffekt auf dem Grundstück nicht realisiert werden kann.
allerdings haben wir natürlich Vorstellungen 🙂
Grundstück wünschen wir uns sehnlichst einen Satteldachbungalow, möglichst ohne Winkel, mit maximal 145qm Wohnfläche. Darf gern auch weniger sein, sofern die Räumlichkeiten untergebracht werden können.
Wir möchten neben halboffener Küche + EZ + WZ, Schlafzimmer (möglichst mit Ankleide), Hauswirtschaftsraum, Bad + Gäste-WC, 2 KZ und 1 Büro.
wir möchten nur absolut ungern vom Bungalow weg, also nur, wenn es sich überhaupt nicht realisieren lässt, da wir jahrelang in einer Dachgeschosswohnung mit vielen vielen Schrägen gewohnt haben und keine Schrägen mehr wollen.
das Dachgeschoss soll planmäßig nicht zu Wohnzwecken ausgebaut werden.
ich hoffe, ich hab das richtige Forum für meinen thread gewählt und alles Wichtige benannt bzw beigefügt.
mich bedanke mich für eure Unterstützung.
viele Grüße










Größe des Grundstücks: 1461 qm
Hang: nein
Grundflächenzahl: 0,4
Geschossflächenzahl: 0,4
Baufenster, Baulinie und -grenze
Randbebauung
Anzahl Stellplatz
Geschossigkeit: 1 Vollgeschoss
Dachform:
Stilrichtung:
Ausrichtung
Maximale Höhen/Begrenzungen
weitere Vorgaben
Anforderungen der Bauherren
Stilrichtung, Dachform, Gebäudetyp: Satteldachbungalow möglichst ohne Winkel
Keller, Geschosse: Keller nein
Anzahl der Personen, Alter: 2 (29 und 35) - 1 Kind geplant
Raumbedarf im EG, OG: Og entfällt
Büro: Familiennutzung oder Homeoffice?: Homeoffice
Schlafgäste pro Jahr: ca 10x
offene oder geschlossene Architektur: eher geschlossen
konservativ oder moderne Bauweise: halb/halb
offene Küche, Kochinsel: halboffene Küche mit Schiebetür zum EZ
Anzahl Essplätze: 10
Kamin: nein!!!
Musik/Stereowand: nein
Balkon, Dachterrasse: nein
Garage, Carport: Doppelgarage möglichst mit kellerersatzraum
Nutzgarten, Treibhaus: nein
weitere Wünsche/Besonderheiten/Tagesablauf, gern auch Begründungen, warum dieses oder das nicht sein soll
Hallo liebe Forumgemeinde,
Ich bin neu hier und war bislang nur stille Mitleserin.
Durch Zufall bin ich auf dieses Forum gestoßen und jetzt regelrecht süchtig. Ihr gebt so viele konstruktive Hinweise, das ist der Wahnsinn.
Vorher hatte ich eigentlich keine großen Bedenken, dass ein größerer Bungalow auf das Grundstück passt. Ich wäre wohl mit einem Grundriss zu einem Bauträger gegangen und hätte den den umsetzen lassen. Ob das im Endeffekt unter Berücksichtigung des Grundstücks gelungen wäre, lassen wir mal dahingestellt 😉.
vorrangig geht es mir bei meinem thread um die Meinungen der erfahrenen Teilnehmer, ob sich der von uns gewünschte Bungalow überhaupt realisieren lässt, oder ob wir uns von diesem Traum schmerzlich verabschieden müssen.
das Grundstück wurde mir von meinen Eltern geschenkt und liegt in einem reinen Wohngebiet in einem kleinen Dorf ca. 20 km von Magdeburg.
Einen Ausdruck aus der Liegenschaftskarte inkl. Maßangaben ist beigefügt.
Gleiches gilt für den vorherrschenden Bebauungsplan (soweit vorliegend).
Das Grundstück ist mit seinen 1400 qm verhältnismäßig groß, allerdings auch stellenweise sehr schmal und verschachtelt. Es ist noch kein Bauträger involviert und das Grundstück nicht Bauträgergebunden.
Einen groben Grundriss haben wir bislang nur im Kopf, nicht aber auf Papier, da es wohl nicht so viel Sinn macht, den groß zu planen und sich evtl. darauf zu versteifen, wenn es im Endeffekt auf dem Grundstück nicht realisiert werden kann.
allerdings haben wir natürlich Vorstellungen 🙂
Grundstück wünschen wir uns sehnlichst einen Satteldachbungalow, möglichst ohne Winkel, mit maximal 145qm Wohnfläche. Darf gern auch weniger sein, sofern die Räumlichkeiten untergebracht werden können.
Wir möchten neben halboffener Küche + EZ + WZ, Schlafzimmer (möglichst mit Ankleide), Hauswirtschaftsraum, Bad + Gäste-WC, 2 KZ und 1 Büro.
wir möchten nur absolut ungern vom Bungalow weg, also nur, wenn es sich überhaupt nicht realisieren lässt, da wir jahrelang in einer Dachgeschosswohnung mit vielen vielen Schrägen gewohnt haben und keine Schrägen mehr wollen.
das Dachgeschoss soll planmäßig nicht zu Wohnzwecken ausgebaut werden.
ich hoffe, ich hab das richtige Forum für meinen thread gewählt und alles Wichtige benannt bzw beigefügt.
mich bedanke mich für eure Unterstützung.
viele Grüße
icandoit22.02.21 13:42
Wenn es finanziell funktioniert, dann auch auf dem riesigen Grundstück.
icandoit22.02.21 14:03
Schniebi22.02.21 17:48
Es waren in der Tat mal zwei Grundstücke ... aufgrund dessen, dass die Nachbarn links und rechts sich zu ihren Grundstücken etwas zu- und weggenommen haben, ergibt sich die verschachtelte Form ... der Verkäufer hat die Grundstücke dann zu einem zusammengefasst, da sie einzeln nicht mehr zu veräußern waren ...
mir ist aufgefallen, dass ich versehentlich nicht mit reingeschrieben bzw. eingemalt habe, dass die Zufahrt von Osten (also über die 11m) erfolgen wird und nicht über die Stichstraße. Entschuldigt bitte.
mir ist aufgefallen, dass ich versehentlich nicht mit reingeschrieben bzw. eingemalt habe, dass die Zufahrt von Osten (also über die 11m) erfolgen wird und nicht über die Stichstraße. Entschuldigt bitte.
Nida35a22.02.21 17:54
ein Bungalow passt da super rauf, plant los.
Vorlagen in der Größe gibt's genug bei diversen Hausfirmen
Vorlagen in der Größe gibt's genug bei diversen Hausfirmen
icandoit22.02.21 17:58
Fuer ein Satteldach sind beide gut geeignet. Leider fehlt dann die Zufahrt
Ähnliche Themen