REH - Grundrissplanung - Küche zu klein

4,60 Stern(e) 5 Votes
Zuletzt aktualisiert 24.11.2025
Sie befinden sich auf der Seite 2 der Diskussion zum Thema: REH - Grundrissplanung - Küche zu klein
>> Zum 1. Beitrag <<

T

Tego12

Nur als kurze Anmerkung zum Gäste-WC: Verzichten würde ich hier auf keinen Fall. Gäste halten sich meist nur im EG-Bereich auf, die sollen nicht durch das ganze Haus laufen für eine Toilette. Auch wenn ihr beispielsweise im Garten seid, mal kurz auf Klo, … willst du dann immer durch das ganze Haus laufen inklusive Treppe?
 
kaho674

kaho674

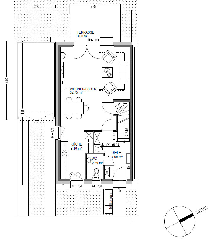
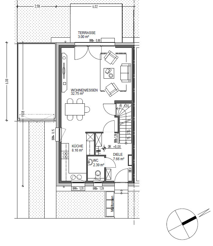
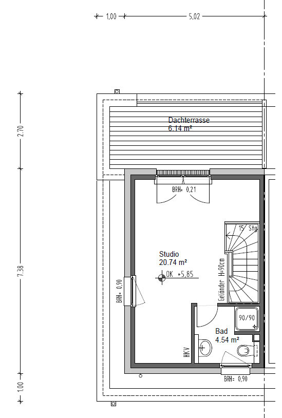
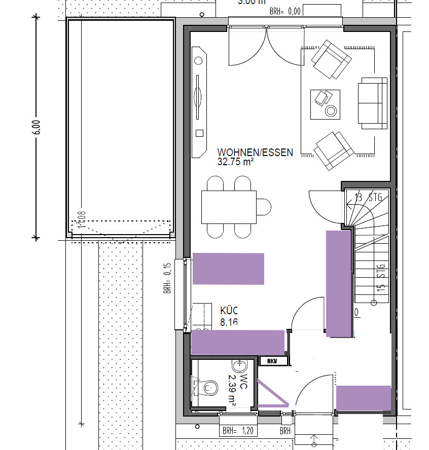
Mein Standard:


Grundriss Erdgeschoss: offenes Wohnen/Essen mit Esstisch, Sofa, Küche, WC, Treppe.


Musste das WC minimal verkleinern und HKV verlegen (ginge das?). Außerdem fällt das Fenster an der Straße weg, deshalb hab ich das andere größer gemacht.
 
Zuletzt bearbeitet:
Y

ypg

Planuntenrechts ist Süden?

ich finde die Küche gut, ich finde für ein REH die Einteilung gut.
Kann man an der Garagenlage noch was machen?
Ich hatte auch ein REH mit gleicher Breite. Ich hatte eine tolle Küche mit Tresen und ein großen Wohn-Essbereich... ich muss mal nachher schauen, wo ich den Plan habe.
Wir wünschen uns eine große Küche
DAS allerdings passt nicht zu einem REH.... außer @chand1986 zeigt mal seinen Entwurf. Er hat die Küche und Essbereich nach hinten zum Garten.
 
Zuletzt aktualisiert 24.11.2025
Im Forum Grundrissplanung / Grundstücksplanung gibt es 2536 Themen mit insgesamt 88015 Beiträgen


Ähnliche Themen zu REH - Grundrissplanung - Küche zu klein
Nr.ErgebnisBeiträge
1Türanschlag zum Wohn/-Essbereich und Beleuchtung Küche 13
2Geschlossene oder offene Küche ? 11
3Wohnen/Essen/Küche: Wie wohnt ihr oder werdet ihr wohnen? - Seite 352
4Unser Grundriss, Wohn-Essbereich - Eure Meinung - Seite 216
5Probleme bei der aufteilung Küche, Essen , Wohnen 16
6Esstisch in einer kleinen Küche 49
7Kombination Fliesen und Parkett im Wohnzimmer mit offener Küche - Seite 230
8Echtholz in Neubau Essen, Wohnen, Küche und Flur 10
9Küche: geschlossen oder offen? Welche Raumaufteilung? - Seite 286
10Anordnung von Deckenspots im Wohnzimmer / Essbereich 13
11Welcher Bodenbelag - Fliesen oder Vinyl im Wohn-/Essbereich? 18
12Stadtvilla 190m² mit Einfahrt & Garten zur Südseite 30
13Garten-Landschaftsbauer Angebot ok oder doch eher total überzogen? - Seite 7103
14Grundrissänderung bei Kernsanierung Denkmalgeschütztes REH - Seite 334
15Grundriss Bungalow 150qm geschlossene Küche, überdachte Terrasse 40
16Standort Küche und Wohnzimmer 55
17Heizung in Küche "notwendig"? - Seite 435
18Müllentsorgung in der Küche / Wanddurchbruch - Seite 542
19Notwendiger Platzbedarf Essbereich 10
20Wohnzimmer Küche im Obergeschoss - Seite 218

Oben