Realistische Kosteneinschätzung: Einfamilienhaus mit ungünstiger Erschließungslage

4,90 Stern(e) 20 Votes
Zuletzt aktualisiert 04.10.2025
Sie befinden sich auf der Seite 51 der Diskussion zum Thema: Realistische Kosteneinschätzung: Einfamilienhaus mit ungünstiger Erschließungslage
>> Zum 1. Beitrag <<

Y

ypg

Hast Du das auch bitte mal als Skizze? Möblierten Grundriss?
Uns interessieren weniger die geblümte Tapete als die Maße und Abstände :)
 
schmeissrein

schmeissrein

Hast Du das auch bitte mal als Skizze? Möblierten Grundriss?
Uns interessieren weniger die geblümte Tapete als die Maße und Abstände :)
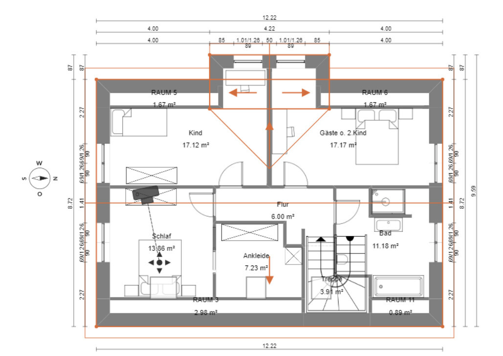
was, wie können euch die nicht interessieren :D? Hier bitte die Treppe nicht so genau beachten, es gab keine Form, wie unsere Geplante.
Grundriss: Offenes Wohn-Ess-Küche-Bereich mit Büro, HWR, Flur, Gäste-WC und Treppenhaus.

Grundriss Dachgeschoss: Flur, Schlafzimmer, Ankleide, Bad, Kind- und Gästezimmer; Treppe
 
11ant

11ant

Wir haben die 3D-Planung verwendet um zu schauen, ob unsere Möbel in die Bude passen. Und zum Anprobieren einer Dschungeltapete und anderer bescheuerter Spielereien :D Und natürlich dem einfachen "Sich vorstellen können". Ob der Kopf unter die Treppe passt, prüfen hoffentlich die Menschen, die von sowas Ahnung haben (z.B der Bauingenieur, der das absegnet).
Wenn man sein eigenes Haus schon vorab besichtigt, dann schaut man beim virtuellen die schränke die Treppe hoch Tragen doch gleich mit danach, ob man auf dem Weg weder den Schrank noch seinen Schädel zerlegt ???
 
kbt09

kbt09

@schmeissrein ... du erwartest doch jetzt nicht im Ernst, dass jemand aus dem Schnipsel "Profizeichnung" von Beitrag 300 irgendeine Machbarkeitsbeurteilung deiner Treppe abgeben kann. Da fehlt die genaue Vermaßung und es sieht entweder sehr eng aus oder eben recht steilt mit max. 25 cm Auftrittstiefe. Welche Geschosshöhe, nicht Rohbauhöhe hat das Haus denn?
 
schmeissrein

schmeissrein

@schmeissrein ... du erwartest doch jetzt nicht im Ernst, dass jemand aus dem Schnipsel "Profizeichnung" von Beitrag 300 irgendeine Machbarkeitsbeurteilung deiner Treppe abgeben kann. Da fehlt die genaue Vermaßung und es sieht entweder sehr eng aus oder eben recht steilt mit max. 25 cm Auftrittstiefe. Welche Geschosshöhe, nicht Rohbauhöhe hat das Haus denn?
Nee, das erwarte ich nicht von euch, sondern vom Bauteam dann später :) dachte die Zeichnung kann vielleicht eure Bedenken da schmälern, aber beurteilen müssen es natürlich unsere Auftragnehmer. Es müssten etwa 256cm Geschosshöhe bleiben, aber würde meine Hand nicht ins Feuer legen für die Zahl, sorry. Wenn die Schnitte kommen, weiß ich mehr.
 
Y

ypg

Naja, zumindest „passt“ die Treppe mit der verkürzten Antrittsseite eher als eine mit gleicher Schenkellänge. Ich denke, das Missverständnis ist hier etwas ausgeräumt.
Ob die Treppe funktioniert, war wohl auch nicht @schmeissrein Frage (kann mich nicht erinnern), sondern eher die Folge der Falschzeichnung des Programms.
Was mich an dem Haus persönlich nicht gefällt, ob Du etwas daraus nimmst oder nicht, steht auf Eurem Blatt Papier:
Es gibt kein Ostfenster. Hauswirtschaftsraum dadurch nicht schön, ihn überhaupt zu betreten, warum sollte man dadurch ins Haus? Ich ziehe erst meine Schuhe aus und dann kümmere ich mich um den Einkauf, der meist eher im Kühlschrank aufgehoben ist. Küche viel zu dunkel. Essbereich finde ich auch: viel zu dunkel.
Küche ist mir zu gespalten und dadurch zu groß in dem Arbeitsdreieck.
Ankleide durch Schlafzimmer unlogisch. Die Tür liegt da knapp an der 2-Meter-Linie.
Bad lasse ich mal aus, das ist ausdiskutiert.
 
Zuletzt aktualisiert 04.10.2025
Im Forum Bauplanung gibt es 5061 Themen mit insgesamt 100646 Beiträgen


Ähnliche Themen zu Realistische Kosteneinschätzung: Einfamilienhaus mit ungünstiger Erschließungslage
Nr.ErgebnisBeiträge
1REH - Grundrissplanung - Küche zu klein 30
2Grundriss-Änderung Einfamilienhaus 150 m² aufgrund von Treppe 36
3Schrank unter der Treppe oder kleiner Abstellraum - Seite 211
4Grundriss EG Wohnen / Küche - Trennwand 19
5Probleme bei der aufteilung Küche, Essen , Wohnen - Seite 216
6Wohin mit der Treppe? Dachausbau Walmdachbungalow - Seite 219
7"Überlappung" 1 Geschoss zur Treppe 11
8Grundrissfrage, Treppe, Fenster, Ausrichtung 12
9Grobe Schnitzer im Grundriss? Küche zu klein? - Seite 639
10Esstisch in einer kleinen Küche - Seite 449
11 2 Vollgeschosse, Durchgang Garage, Hauswirtschaftsraum unter Treppe - Seite 225
12Stadtvilla mit gerader Treppe, offene moderne Bauweise, 140m² - Seite 218
13auf welchen dieser Grundrisse können wir weiter aufbauen? - Seite 43287
14Treppe im Flur, Grundriss steht eigentlich schon :o( - Seite 320
15Frage zu Grundriss, insbesondere Treppe 13
16Treppe Grundriss Planung, Auftritt und Unterzug - Seite 321
17Welche Treppe habt ihr genommen - Seite 277
18Gerade Treppe - warum? 14
19Baumangel - Treppe nicht in Ordnung - Seite 212
20Treppe - Sind die Treppenmaße 2.00x2.00m in Ordnung? - Seite 868

Oben