Ich sag nur Hello again

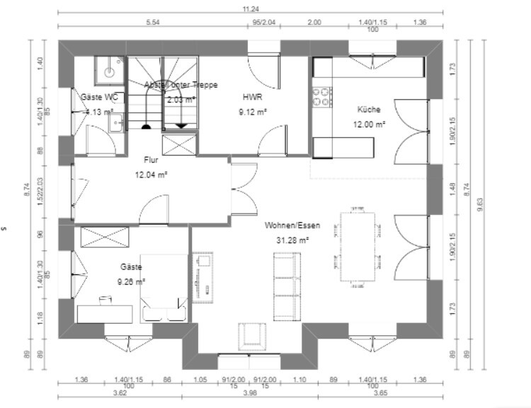
Wir haben eure Einwände gedreht und gewendet und auf die Gefahr, dass jetzt jemand kräht "das ist ja schon wieder was ganz anderes, entscheidet euch mal"- Freunde, es ist alles ein Prozess...Wir konnten uns einfach nicht damit anfreunden, auf eine traurige giebellose Traufseite zuzugehen/fahren und sind jetzt zu dem Entschluss gekommen- warum das Haus nicht drehen? Die Giebelseite erscheint uns deutlich hübscher und schön symmetrisch, die wenig ansehnliche Traufseite darf zum Carport hin zeigen und wir sparen uns einen teuren Giebel- ihr bekommt, was ihr wolltet

Dafür rückt der Giebel jetzt in den Westen. Warum nicht auf ein langes schmales Grundstück ein Haus bauen, das die Form auch so aufgreift.
Die Kinderzimmer haben an Größe gewonnen und es gibt oben ein Zimmer weniger. Vom Gästezimmer wollten wir uns nicht trennen, aber dafür ist es jetzt etwas kleiner. Im Flur oben gibt es jetzt sogar ein Fenster, juhu! Was uns noch etwas Kopfschmerzen bereitet, ist das verwinkelte enge Bad oben. Ansonsten sind wir bereit, uns dem nächsten Kritiksturm zu stellen

Vielen Dank allen, die das hier mit uns so tapfer durchstehen. Es fühlt sich doof an, alles immer wieder umzuwerfen, aber andererseits lernen wir auch mit jedem Versuch dazu und nähern uns hoffentlich unserem Traumhaus