Hausbau - Ratgeber
Bauherrenhilfe
- Bauherrenhilfe vor Vertragsabschluss
-- Warum einen unabhängigen Baubetreuer?
-- Vertragsgrundlagen
-- Bausumme
-- Zahlungsplan zur Kostenkontrolle
-- Pflichten des Bauherren vor Vertragsabschluss
-- Unterlagen beim Hausbau vor Vertragsabschluss
- Bauherrenhilfe nach Vertragsabschluss
-- Bauantrag bei Behörden
-- Bau-Genehmigungsverfahren bei Baubehörden
-- Bauspezifische Versicherungen
-- Bauzeitenplan
-- Baubeginn - die Letzten Pflichten der Bauherrschaft
- Bauherrenhilfe während der Bauzeit
- Gewährleistungsansprüche
- Bauabnahme
Baufinanzierung
- Baufinanzierung - Allgemeine Fragen
- Kreditarten
- Kredit-Konditionen
- Bausparen
- Staatliche Förderungen
- Verkehrswert
- Haushaltsrechnung und Bonität
Hausbau Planung
- Haustypen
- Hausbau Vorbereitungsarbeiten
- Das Baugrundstück
- Baugrund beim Hausbau
- Baurecht
- Gebäudeschutz
- Erdarbeiten und Wasserhaltung
- Stützmauern
- Einfriedung
- Untergeschoss
- Kanalisation
- Tragende Elemente
- Nichttragende Innenwände
- Fundation / Fundament
- Deckenkonstruktionen
- Dächer
- Kaminanlagen
- Treppen Rampen Leitern
- Dachbeläge und Spengler
- Fenster
- Sonnen und Wetterschutz
- Aussenputze
- Einbauten, Küchen, Türen
- Bodenbeläge und Unterlagsböden
- Parkett
- Gips, Wand, Decke
Haustechnik und Energie
- Heiztechnik
- Lüftung und Klimatechnik
- Sanitärtechnik
- Elektrotechnik
- Erneuerbare Energie
Whirlpools / Jacuzzi
Hausbau Magazin
- Baufinanzierung trotz Krise?
- Das Blockhaus
- Moderne Dämmstoffe im Vergleich
- Erker Vor- und Nachteile
- Glasflächen beim Hausbau
- Günstig ein Haus Bauen
- Mediterraner Hausbaustil
- Mehrgenerationenhaus
- Moderne Architektur
- Gartengestaltung leicht gemacht
- Traditioneller Ziegelbau
- Villa als höchster Traum
- Im Eigenheim Ruhestand geniessen
- Altbau sanieren
- Kauf einer Holzgarage
- Immobilienmakler
- Arbeitshandschuhe für den Winter
- Zuhause verschönern
- Outdoor-Plissees
- Schlafzimmer planen
- Terrassenüberdachung
- Wohngebäudeversicherung
- Zaunarten und Eigenschaften
- Hauseingang gestalten
- Der perfekte Grundriss
- Sparsamer heizen im Altbau
- Einfamilienhaus smart finanzieren
- Planung einer PV-Anlage
- Neues Haus
- Immobilienfinanzierung
- Installation einer Photovoltaikanlage
- Asbest erkennen und entfernen
- Gartenpflege im Frühling – worauf achten
- Sauna im Fokus - Wellness zuhause
- Erfolgreich vermieten
- Die perfekte Winterbekleidung
- Das Niedrigenergiehaus
- Der April und seine Stürme
- Architektonische Vielfalt
- Ökologisch und nachhaltig bauen
- Das perfekte Schlafzimmer
- Nachhaltige Energieversorgung
- Zukunftsorientiert bauen
- Nachhaltigkeit beim Hausbau
- Tiny Houses
- Wärmepumpen als nachhaltige Heizvariante
- Maßgeschneiderten Kleiderschrank
- Der richtige Baukredit
- Ratgeber für erfolgreichen Hausbau
- Haus als Altersvorsorge
Do-it-yourself Anleitungen
- Verlegeanleitung für Bodenbeläge und Parkett
- Bodenbeläge und Parkett reinigen und pflegen
- Malerarbeiten am Haus
- Garten Tipps
- Umzug und Reinigung

ᐅ Planung unseres Einfamilienhaus - Was meint ihr zum Entwurf?

Erstellt am: 01.03.16 12:29
H
Hausbau Re
kbt0901.03.16 16:23


Der Schnitt zeigt im OG vermutlich die Eingangstür zu dem einen Kinderzimmer. Und da finde ich es egal wie der Anschlag der Tür sein wird, jeweils sehr "unnett" in den Raum zu kommen. Entweder auf die Dachschräge zu oder auf die Treppenwand.

Und Wanne muss man da wirklich noch bedenken, wobei ja Platz wäre, sie weiter in den Raum ragen zu lassen. Denn da, wo man in der Wanne aufsteht, wird die Deckenhöhe ca. 175 cm. Da der Wannenboden ja höher als der normale Boden ist, wird das kopfgefährdend für Leute > 165 cm.

Garderobe für 4 Leute, davon 2 kleine Kinder, incl. Schuhen etc. könnte definitiv zu klein werden. Insbesondere an die Schuhe muss man denken, denn die müssten ja eher komplett alle dort Platz haben.
N
Nora22
09.03.16 14:56
Sieht unserem sehr ähnlich, das aber 20 qm mehr hat und einen Keller.
Ein größeres Schlafzimmer würde ich einer Ankleide vorziehen. Und die Kinderzimmer sind mit Schräge für meinen Geschmack etwas zu klein, auch bei uns.
H
Hausbau Re
10.03.16 23:44
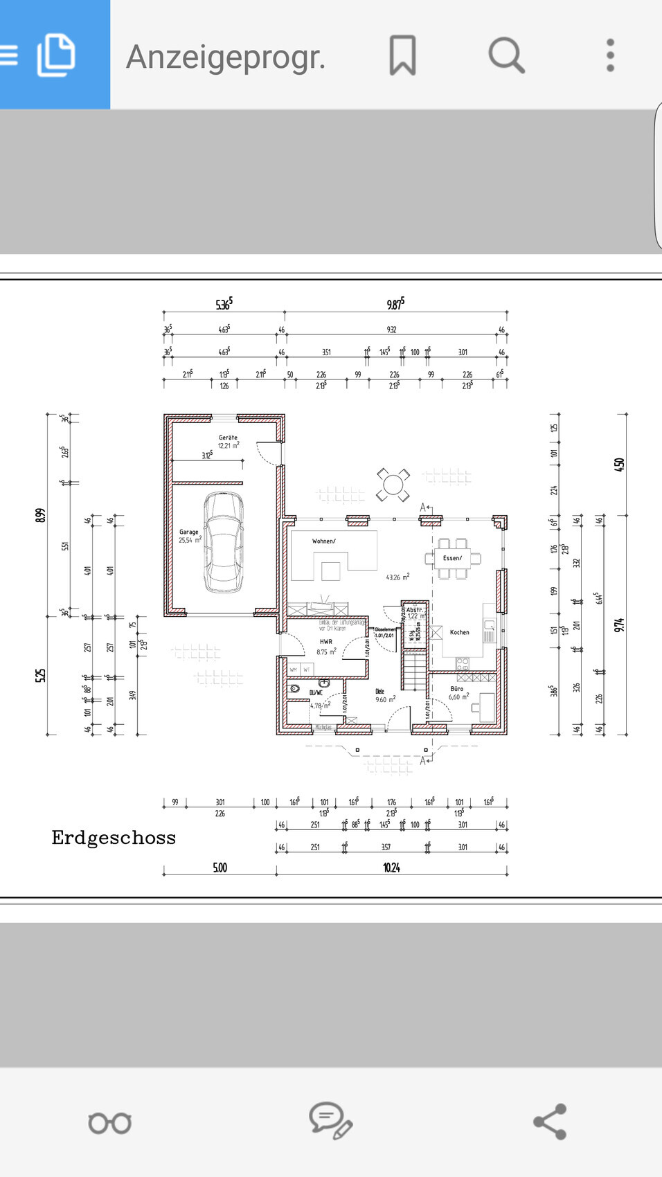
So hier mal die geänderten Pläne.

Grundriss Erdgeschoss: Garage links, Wohn-/Essbereich, Küche und Büro.

Grundriss-Dachgeschoss: Eltern-, zwei Kinderzimmer, Bad, Flur und Ankleide.
H
Hausbau Re
11.03.16 00:00
Es wurde geändert.
EG:
Die ecke im Esszimmer auf das Mindestmaß verkleinert.
Wandstück zwischen Esszimmer und Küche vergrößert da von meiner Frau der Buffetschrank mit muss ins Haus.
Wand Übelstände neben der Wohnwand entfernt und das kurze Stück überstand an der Garderobe wurde auch entfernt.

OG:
Die Tür in der Ankleide wird nun 76cm und nicht 88,5cm breit,damit man link vlt. Auch noch Regale oder einen Schrank stellen kann.
Wand vom Schlafzimmer verschoben damit die ankleide breiter wird da am Fußende eh nur ein TV an die wand soll.
Flur im OG auf 1.20m breite verkleinert,da ich denke das reicht oben aus.
Badewanne bekommt noch eine Abmauerung und würde dann gute 10cm mehr im Raum stehen.

So nun seid ihr wieder gefragt für wertvolle Tipps und Anregungen.
Falls einer noch eine Möglichkeit sieht das Bad anders zu gestalten wäre ich auch sehr dankbar wenn er das mit einer Skizze einstellen könnte.
Maße sind ja nun vorhanden.
Y
ypg
11.03.16 00:03
Wir hatten hier letztens einen ähnlichen Grundriss mit gerader Treppe. Auch dort war der Eingang in den Hauptwohnbereich durch das Wohnzimmer, was eigentlich von Familienmitgliedern als Rückzugsort dienen soll. Der Weg zur Küche macht es auch noch um die Treppe herum sehr lang.
Deshalb würde ich die Treppe auf die andere Flurseite legen, den Zugang zum Hauptraum also über die Küche, das Drumherum entsprechend ändern wie natürlich auch das OG anpassen.
Im OG die Dachschrägen mal für Einbauschränke mit Schiebetüren einplanen.
Das Bad finde ich sehr schön klassisch eingeteilt, dort würde ich allerdings auch die Wanne etwas vorschieben (Tür entsprechend versetzen) und an der Schräge zur Wanne dann einen Ablagepodest einplanen.
H
Hausbau Re
11.03.16 00:09
Ja an der Wanne wird ein Ablage Podest an der Wand der schräge.
Das mit der Küche ist nicht 100 % aber um planen geht nicht da die Kinderzimmer auf der Seite bleiben sollen ( da Oma und Opa rechts neben uns bauen ) und wir die ankleide vom Flur aus betreten wollen da wir beide wechselschichtler sind und keiner will das der andere ihn weckt wenn der andere in der Ankleide kramt und das Licht an macht.
Somit mussten wir den Kompromiss eingehen.
Auch weil der Ort für die Küche gesetzt war nach dem der Platz für die Garage feststand.
wanneankleideküchekinderzimmertürtreppegarderobeschlafzimmeresszimmerflur