ᐅ Planung unseres Einfamilienhaus - Was meint ihr zum Entwurf?
Erstellt am: 01.03.16 12:29
H
Hausbau Re@ypg .. ich stutzte auch und habe glatt meinen Spiegelungsvorschlag gesucht .. aber, das war eine andere Planung.
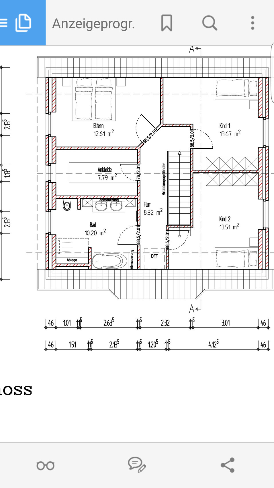
Spiegelung der Treppe bietet sich hier auch an, denn insbesondere im OG ist die Hochkommsituation ja nicht besonders gelungen.
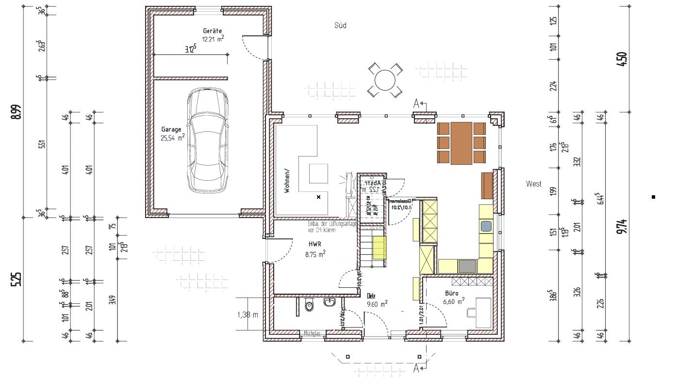
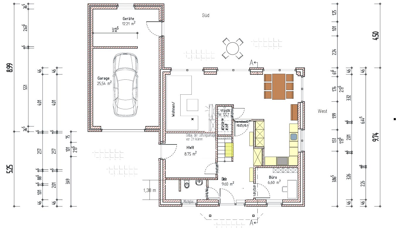
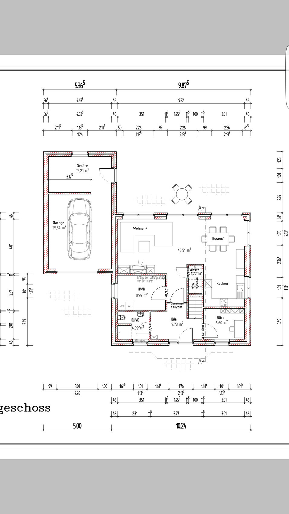
Auch finde ich, die Situation im Wohnzimmer .. ein Riesensofa vor bodentiefen Fenstern um in einen dunklen WZ-Bereich zu schauen nicht so toll und dann die Abstellkammer im Wohnbereich öffnen. Auch etwas wenig sinnvollen Garderobenplatz.
Daher mal EG die Treppe gespiegelt, den Hauswirtschaftsraum nach unten etwas vergrößert, Gästebad breiter aber schmaler und in der Wand zur Küche eine 120 cm breite Garderobennische. Daneben jeweils noch Platz für Garderobenhaken und unter der Treppe noch eine eingebaute Schukommode .. eher stufenartig wird das dann.
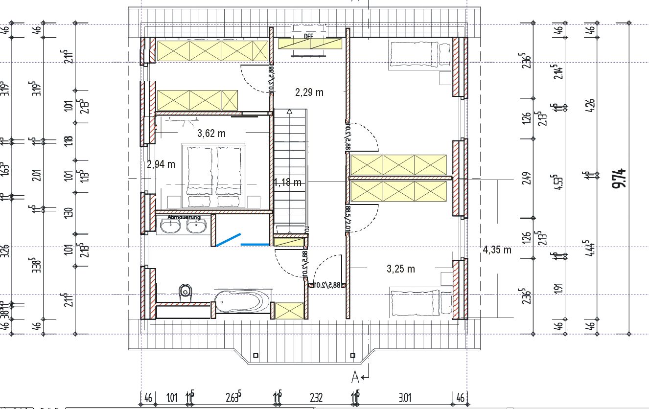
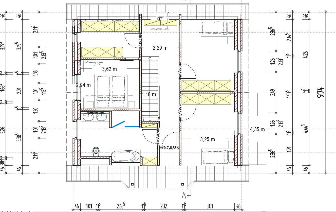
Im OG planoben (im Süden?) das Doppelflügelfenster, darunter noch mal Stauraumkommode. Planunten die Ecke dann einfach abgetrennt, da hat dann vielleicht noch ein Staubsauger und etwas Klopapiervorrat oder so Platz.
Die Ankleide mit 250 cm raumhohen schrank und 350 cm Schrank in Kniestockhöhe, nach vorne oben kann evtl. noch etwas Platz entstehen. Hier nur ein sehr schmales Fenster.
Zum Schlafbereich eine Schiebetür, evtl. auch eine richtige Tür, müßte man dann mal genau ausprobieren.
Im Bad eine richtig schön große Dusche, auch hier wieder die Nischen noch für Stauraum gedacht.
Außerdem wird die Treppe nicht so sehr überschnitten, so dass auch durchgehend eine angenehme Kopffreiheit sein wird.

Spiegelung der Treppe bietet sich hier auch an, denn insbesondere im OG ist die Hochkommsituation ja nicht besonders gelungen.
Auch finde ich, die Situation im Wohnzimmer .. ein Riesensofa vor bodentiefen Fenstern um in einen dunklen WZ-Bereich zu schauen nicht so toll und dann die Abstellkammer im Wohnbereich öffnen. Auch etwas wenig sinnvollen Garderobenplatz.
Daher mal EG die Treppe gespiegelt, den Hauswirtschaftsraum nach unten etwas vergrößert, Gästebad breiter aber schmaler und in der Wand zur Küche eine 120 cm breite Garderobennische. Daneben jeweils noch Platz für Garderobenhaken und unter der Treppe noch eine eingebaute Schukommode .. eher stufenartig wird das dann.
Im OG planoben (im Süden?) das Doppelflügelfenster, darunter noch mal Stauraumkommode. Planunten die Ecke dann einfach abgetrennt, da hat dann vielleicht noch ein Staubsauger und etwas Klopapiervorrat oder so Platz.
Die Ankleide mit 250 cm raumhohen schrank und 350 cm Schrank in Kniestockhöhe, nach vorne oben kann evtl. noch etwas Platz entstehen. Hier nur ein sehr schmales Fenster.
Zum Schlafbereich eine Schiebetür, evtl. auch eine richtige Tür, müßte man dann mal genau ausprobieren.
Im Bad eine richtig schön große Dusche, auch hier wieder die Nischen noch für Stauraum gedacht.
Außerdem wird die Treppe nicht so sehr überschnitten, so dass auch durchgehend eine angenehme Kopffreiheit sein wird.
H
Hausbau Re16.03.16 12:53Doch es kommt eine Reaktion und auch Bilder wenn alles fertig geplant ist.
Ich werde im WZ das Fenster hinter der Couch nicht bodentief machen.
Die Tür im Hauswirtschaftsraum kommt auch raus für ein normales Fenster wegen Stellfläche.
Das Gäste Bad wurde ein Stück verkleinert für die Garderobe.
Oben wurde die Dusche getauscht mit der Toilette da ich aus einem badstudio eine Planung erhalten hatte die uns auf Anhieb besser gefiel.
Ich werde im WZ das Fenster hinter der Couch nicht bodentief machen.
Die Tür im Hauswirtschaftsraum kommt auch raus für ein normales Fenster wegen Stellfläche.
Das Gäste Bad wurde ein Stück verkleinert für die Garderobe.
Oben wurde die Dusche getauscht mit der Toilette da ich aus einem badstudio eine Planung erhalten hatte die uns auf Anhieb besser gefiel.
H
Hausbau Re16.03.16 12:56Jetzt bin ich noch am überlegen ob ich die Mauer an der Garderobe und im Wohnzimmer wo die tv Möbel stehen noch länger laufen lasse bis auf Höhe der Möbel.
H
Hausbau Re16.03.16 13:09H
Hausbau Re16.03.16 13:10Ähnliche Themen