ᐅ Planung unseres Einfamilienhaus - Was meint ihr zum Entwurf?
Erstellt am: 01.03.16 12:29
H
Hausbau ReH
Hausbau Re23.03.16 08:25Der von @RobsonMKK verlinkte Grundriss stammt von dir, @Hausbau Re
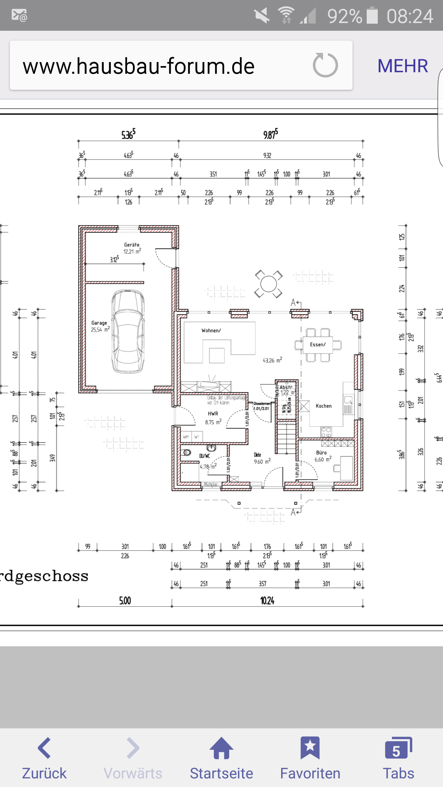
Bei dem Grundriss:
sehe ich aber keine echte Chance im Alter komplett ins EG zu ziehen ... es sei denn, man macht aus dem Wohnbereich dann einen Schlafbereich. Generell ist auch das Bad so nicht geeignet für barrierefrei .. siehe Toilettennische. Zumindest müsste die Badezimmertür im EG nach außen öffnen.
Bei dem Grundriss:
sehe ich aber keine echte Chance im Alter komplett ins EG zu ziehen ... es sei denn, man macht aus dem Wohnbereich dann einen Schlafbereich. Generell ist auch das Bad so nicht geeignet für barrierefrei .. siehe Toilettennische. Zumindest müsste die Badezimmertür im EG nach außen öffnen.
H
Hausbau Re30.04.16 21:01Hallo ich habe mir jetzt mal die Ratschläge von kbt 09 und den anderen durch den Kopf gehen lassen.gleichzeitig habe ich mit fliesenlegern und Malern gesprochen und diese rieten mir auch von der Dusche ab unter der schräge.
Somit habe ich mal einen neuen Bad Plan erstellt und wollte mal fragen ob man an diesem noch was verbessern könnte.
Die dusche auf dem Bild ist 1m x 1m da der online Katalog nicht mehr her gab. wir werden diese aber auf 90 x 120 oder 90 x 140 vergrößern.

Somit habe ich mal einen neuen Bad Plan erstellt und wollte mal fragen ob man an diesem noch was verbessern könnte.
Die dusche auf dem Bild ist 1m x 1m da der online Katalog nicht mehr her gab. wir werden diese aber auf 90 x 120 oder 90 x 140 vergrößern.
Ähnliche Themen