Hausbau - Ratgeber
Bauherrenhilfe
- Bauherrenhilfe vor Vertragsabschluss
-- Warum einen unabhängigen Baubetreuer?
-- Vertragsgrundlagen
-- Bausumme
-- Zahlungsplan zur Kostenkontrolle
-- Pflichten des Bauherren vor Vertragsabschluss
-- Unterlagen beim Hausbau vor Vertragsabschluss
- Bauherrenhilfe nach Vertragsabschluss
-- Bauantrag bei Behörden
-- Bau-Genehmigungsverfahren bei Baubehörden
-- Bauspezifische Versicherungen
-- Bauzeitenplan
-- Baubeginn - die Letzten Pflichten der Bauherrschaft
- Bauherrenhilfe während der Bauzeit
- Gewährleistungsansprüche
- Bauabnahme
Baufinanzierung
- Baufinanzierung - Allgemeine Fragen
- Kreditarten
- Kredit-Konditionen
- Bausparen
- Staatliche Förderungen
- Verkehrswert
- Haushaltsrechnung und Bonität
Hausbau Planung
- Haustypen
- Hausbau Vorbereitungsarbeiten
- Das Baugrundstück
- Baugrund beim Hausbau
- Baurecht
- Gebäudeschutz
- Erdarbeiten und Wasserhaltung
- Stützmauern
- Einfriedung
- Untergeschoss
- Kanalisation
- Tragende Elemente
- Nichttragende Innenwände
- Fundation / Fundament
- Deckenkonstruktionen
- Dächer
- Kaminanlagen
- Treppen Rampen Leitern
- Dachbeläge und Spengler
- Fenster
- Sonnen und Wetterschutz
- Aussenputze
- Einbauten, Küchen, Türen
- Bodenbeläge und Unterlagsböden
- Parkett
- Gips, Wand, Decke
Haustechnik und Energie
- Heiztechnik
- Lüftung und Klimatechnik
- Sanitärtechnik
- Elektrotechnik
- Erneuerbare Energie
Whirlpools / Jacuzzi
Hausbau Magazin
- Baufinanzierung trotz Krise?
- Das Blockhaus
- Moderne Dämmstoffe im Vergleich
- Erker Vor- und Nachteile
- Glasflächen beim Hausbau
- Günstig ein Haus Bauen
- Mediterraner Hausbaustil
- Mehrgenerationenhaus
- Moderne Architektur
- Gartengestaltung leicht gemacht
- Traditioneller Ziegelbau
- Villa als höchster Traum
- Im Eigenheim Ruhestand geniessen
- Altbau sanieren
- Kauf einer Holzgarage
- Immobilienmakler
- Arbeitshandschuhe für den Winter
- Zuhause verschönern
- Outdoor-Plissees
- Schlafzimmer planen
- Terrassenüberdachung
- Wohngebäudeversicherung
- Zaunarten und Eigenschaften
- Hauseingang gestalten
- Der perfekte Grundriss
- Sparsamer heizen im Altbau
- Einfamilienhaus smart finanzieren
- Planung einer PV-Anlage
- Neues Haus
- Immobilienfinanzierung
- Installation einer Photovoltaikanlage
- Asbest erkennen und entfernen
- Gartenpflege im Frühling – worauf achten
- Sauna im Fokus - Wellness zuhause
- Erfolgreich vermieten
- Die perfekte Winterbekleidung
- Das Niedrigenergiehaus
- Der April und seine Stürme
- Architektonische Vielfalt
- Ökologisch und nachhaltig bauen
- Das perfekte Schlafzimmer
- Nachhaltige Energieversorgung
- Zukunftsorientiert bauen
- Nachhaltigkeit beim Hausbau
- Tiny Houses
- Wärmepumpen als nachhaltige Heizvariante
- Maßgeschneiderten Kleiderschrank
- Der richtige Baukredit
- Ratgeber für erfolgreichen Hausbau
- Haus als Altersvorsorge
Do-it-yourself Anleitungen
- Verlegeanleitung für Bodenbeläge und Parkett
- Bodenbeläge und Parkett reinigen und pflegen
- Malerarbeiten am Haus
- Garten Tipps
- Umzug und Reinigung

ᐅ Einfamilienhaus auf ca. 160qm Grundriss

Erstellt am: 24.02.15 09:14
D
Damian85
D
Damian85
24.02.15 09:14
Hallo zusammen,

nun haben wir es auch geschafft einen ersten Grundriss auf die Beine zu stellen. Was meint ihr?! Was kann man besser machen und was ist nicht so gut gelöst worden?!

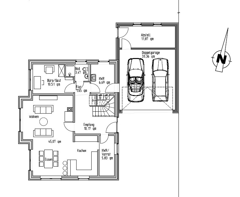
2D-Floorplan eines Hauses mit Wohnzimmer, Kueche, Essbereich, Bad, Flur und Doppelgarage


Architektenzeichnung: Nord- und Ostansicht eines Hauses mit Dach, Fenstern und Eingang.


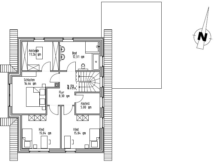
Grundriss des Obergeschosses mit Schlafzimmer, zwei Kinderzimmern, Flur und Bad.


Architektenzeichnung: Hausfassade Süd- und Westansichten mit Garage
Y
ypg
24.02.15 13:55
Hallo,
bitte les Dir den Eingangsthread durch und mach erweiterte Angaben (muss ja nicht alles genannt werden), damit eine für Dich konstruktive Diskussion laufen kann.
Was man bis jetzt auf den kurzen Blick erkennen kann, sieht es doch schon ganz passabel aus.

Gruss Yvonne
B
Bautraum2015
24.02.15 19:14
Also mir gefällt der sogar echt gut! Nur eines: wo im wohnzimmer steht denn der TV?
M
MaxPower130
24.02.15 21:51
Ein paar Maße wären nicht schlecht, sieht aber sonst gut aus
K
kbt09
24.02.15 22:43
2m Linie im OG wäre auch gut, denn sonst könnte die Dusche unter der Dachschräge nicht so angenehm zu nutzen sein 😉 ... wie gesagt, es fehlen halt wichtige Maße.

Und, es ist auch immer ein wenig sinnvoll, nicht einfach "was haltet ihr von unserem Grundriss" zu fragen, sondern auch ein wenig zu beschreiben, was man von einem Haus erwartet, was ein Muss ist, was nett zu haben wäre usw.
D
Damian85
25.02.15 08:43
Bautraum2015 schrieb:
Also mir gefällt der sogar echt gut! Nur eines: wo im wohnzimmer steht denn der TV?
- Die Wohnzimmerwand ist ca. 4m lang nur als Richtpunkt (die wo der kleine schrank eingezeichnet ist)
kbt09 schrieb:
2m Linie im OG wäre auch gut, denn sonst könnte die Dusche unter der Dachschräge nicht so angenehm zu nutzen sein 😉 ... wie gesagt, es fehlen halt wichtige Maße.

Und, es ist auch immer ein wenig sinnvoll, nicht einfach "was haltet ihr von unserem Grundriss" zu fragen, sondern auch ein wenig zu beschreiben, was man von einem Haus erwartet, was ein Muss ist, was nett zu haben wäre usw.

- das Haus ist 12m x 9m
- Dachneigung: 30grad
- Kniestock bzw. Drempel wird bei etwa 2.20m liegen.

Die Anordnung im Bad bzw auch im Wohnzimmer ist noch nicht Final. Wir haben z.b. ein ecksofa usw.

Uns war es wichtig unten alle wichtigen Räume wie Wohn/Ess und Küche zusammen zu haben und zusätzlich ein Gäste Bad mit Dusche und ein Arbeits/Gästezimmer zu haben.
Eigentlich wollten wir ein ca.10qm großen Hauswirtschaftsraum nur für Wäschen usw aber leider kommt noch die Heizung (vermutlich Erdwärmepumpe) mit den den Hauswirtschaftsraum. Die Heizung in die Garage mit unterbringen wollte ich aus mehreren Gründen nicht. Der Hauptgrund ist aber das die Wege für Warm-Wasser weiter sein würden oder wie sind eure Erfahrungswerte und Meinungen so?!

Aus dem Grund haben wir schon den Platz für die Waschmaschine und Trockner unter die Treppe eingeplant, um auch da den Platz Nutzen zu können.

Zum Erker muss man noch sagen das wir eigentlich ein Flachdach drauf haben wollten. Von einigen Seiten wurde aber dieser uns schlecht geredet, da die Abdichtung auf eine längere Zeit nicht so gut sein soll. Aber nach einem Gespräch mit einem Verwandten Dachdecker, meinte dieser das es kein problem sein sollte diesen so Dicht zu bekommen das man locker für die nächsten 20Jahre ruhe hat.

Auch hier sind wir gerne bereit andere Meinungen zu hören!


Vielen Dank für eure Meinungen und Vorschläge!
grundrisswohnzimmerduschehauswirtschaftsraumheizung