B
Bauexperte31.03.14 18:04@ Wanderdüne
Ich versuche nicht zu deuten, deshalb wollte ich von Dir wissen, was Du meinst.
"Introvertiert" übersetzt der Duden mit "nach innen gekehrt, verschlossen" oder auch "auf das eigene Seelenleben gerichtet. Verwendet wird das Adjektiv stets in der Beschreibung eines lebenden Wesens.
Im Zusammenhang mit einer Örtlichkeit, der Eigenschaft eines Raumes ist es mir neu.
Grüße, Bauexperte
Bauexperte, von unterwegs
Ich versuche nicht zu deuten, deshalb wollte ich von Dir wissen, was Du meinst.
"Introvertiert" übersetzt der Duden mit "nach innen gekehrt, verschlossen" oder auch "auf das eigene Seelenleben gerichtet. Verwendet wird das Adjektiv stets in der Beschreibung eines lebenden Wesens.
Im Zusammenhang mit einer Örtlichkeit, der Eigenschaft eines Raumes ist es mir neu.
Grüße, Bauexperte
Bauexperte, von unterwegs
W
Wanderdüne01.04.14 00:02ypg schrieb:
Wenn man Fremdwörter benutzt, dann richtig - ansonsten ist es peinlich... und Deutungen müssen dann auch nicht sein 🙄Hätte nicht gedacht, daß ich mit einem griffigem Transfer in ein dudentechnisches Wespennest steche.
Ich bekenne, in dieser Hinsicht sowohl Gedankenverbrecher, als auch zukünftig Wiederholungstäter mit Bekenntnis zu einem nicht-statischem Umgang mit unserer Sprache zu sein.
Ich fürchte, daß das nächste introvertierte Wohnzimmer bereits.... lauert 😉 .
WD
B
Bauexperte01.04.14 00:31Guten Abend,
Ich habe ja gelernt, daß Architekten nicht selten Künstlerkinder sind ... bist Du vlt. auch in einem kreativen Beruf unterwegs? By any change, I´m able to change the subject ...
Grüße, Bauexperte
Wanderdüne schrieb:Mhmm - war doch die ein oder andere Sangria zu viel des Guten ... für mich natürlich? Ich erlaube mir, auch bei diesem Statement um weitere Erklärung zu bitten.
Hätte nicht gedacht, daß ich mit einem griffigem Transfer ...
Ich habe ja gelernt, daß Architekten nicht selten Künstlerkinder sind ... bist Du vlt. auch in einem kreativen Beruf unterwegs? By any change, I´m able to change the subject ...
Grüße, Bauexperte
L
LiquidSky01.04.14 18:42Hallo,
freut mich ja das die Diskussion hier weiter gelaufen ist.
Ich hätte auch Fragen müssen was sich genau hinter dem Begriff verbirgt.
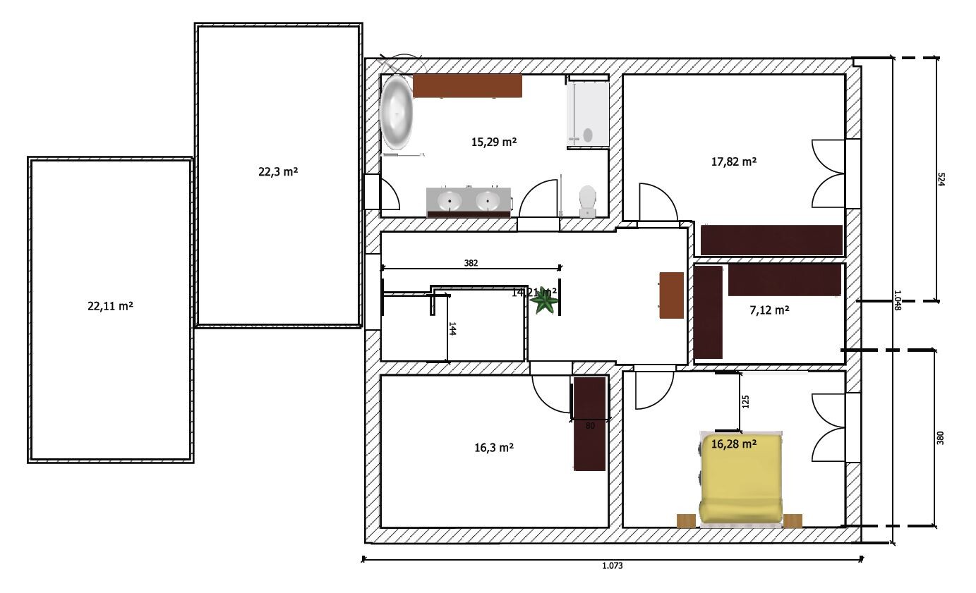
Es ist ein freier von uns beauftragter Architekt aber nur bis Stufe 4. Sicher kann man bis da keinen detaillierten Kostenplan erwarten, aber 40% über unserer genannten Preisvorstellung in den ersten groben Angeboten, war einfach nicht machbar. Da lohnt es dann auch nicht im Detail auszuschreiben. Ich will hier auch gar nicht den Architekten kritisieren. Es ist einfach ein kreativer Prozess wo das Ergebnis nicht gleich am Anfang feststeht und er unterstützt uns auch weiter bei der neuen Planung.
Ich habe mir die Kommentare durch den Kopf gehen lassen, mal weiter überlegt, Wandstärken eingesetzt und durch die andere Türe zum Gäste/Arbeitszimmer das Wohnzimmer etwas 'extrovertierter' gestaltet.
Am Anfang habe ich auch mit Papier geplant, aber dann müsste ich immer wieder von vorne anfangen um was kleines zu ändern. Am Computer kann ich jetzt viel schneller was ausprobieren und dadurch weiter kommen.
Der Grundriss ist sicher nicht aufregend. Soll er auch gar nicht sein. Wir wollen ein vom Grundriss her durchdachtes Haus, welches nicht teurer als nötig wird.
Ich habe ein paar Dinge am Grundriss umgestellt und einen ersten Wurf vom OG angehängt.
Die Fenster sind sicher noch nicht final sondern eher Platzhalter bzw. Test wie was wirkt.
Zum Grundstück habe ich mich mal an einer Skizze versucht. Das geplante Haus ist orange (Dachfirst - rote Linie). Das Baufenster ist das blaue Vieleck. Daneben ist lila das mgl. Baufenster für eine Garage.
Das Grundstück fällt vom Wohnblock in Richtung rechte Villa (schwarzes Rechteck) etwa 1,20m ab.
Der Grundriss vom Haus ist jetzt knapp 10,50 x 10,50 m. Zwischen Haus und Garage soll ein Carport gebaut werden, da gleichzeitig als überdachter Eingang und im hinteren Bereich geschlossen wird und als Schuppen dient.
Ich weiß das noch alles recht Laienhaft aussieht, aber den finalen Schliff soll es auch vom Profi bekommen.
Ich freue mich weiter über konstruktive Kommentare.
Danke!
Viel Glück, LiquidSky






freut mich ja das die Diskussion hier weiter gelaufen ist.
Ich hätte auch Fragen müssen was sich genau hinter dem Begriff verbirgt.
Es ist ein freier von uns beauftragter Architekt aber nur bis Stufe 4. Sicher kann man bis da keinen detaillierten Kostenplan erwarten, aber 40% über unserer genannten Preisvorstellung in den ersten groben Angeboten, war einfach nicht machbar. Da lohnt es dann auch nicht im Detail auszuschreiben. Ich will hier auch gar nicht den Architekten kritisieren. Es ist einfach ein kreativer Prozess wo das Ergebnis nicht gleich am Anfang feststeht und er unterstützt uns auch weiter bei der neuen Planung.
Ich habe mir die Kommentare durch den Kopf gehen lassen, mal weiter überlegt, Wandstärken eingesetzt und durch die andere Türe zum Gäste/Arbeitszimmer das Wohnzimmer etwas 'extrovertierter' gestaltet.
Am Anfang habe ich auch mit Papier geplant, aber dann müsste ich immer wieder von vorne anfangen um was kleines zu ändern. Am Computer kann ich jetzt viel schneller was ausprobieren und dadurch weiter kommen.
Der Grundriss ist sicher nicht aufregend. Soll er auch gar nicht sein. Wir wollen ein vom Grundriss her durchdachtes Haus, welches nicht teurer als nötig wird.
Ich habe ein paar Dinge am Grundriss umgestellt und einen ersten Wurf vom OG angehängt.
Die Fenster sind sicher noch nicht final sondern eher Platzhalter bzw. Test wie was wirkt.
Zum Grundstück habe ich mich mal an einer Skizze versucht. Das geplante Haus ist orange (Dachfirst - rote Linie). Das Baufenster ist das blaue Vieleck. Daneben ist lila das mgl. Baufenster für eine Garage.
Das Grundstück fällt vom Wohnblock in Richtung rechte Villa (schwarzes Rechteck) etwa 1,20m ab.
Der Grundriss vom Haus ist jetzt knapp 10,50 x 10,50 m. Zwischen Haus und Garage soll ein Carport gebaut werden, da gleichzeitig als überdachter Eingang und im hinteren Bereich geschlossen wird und als Schuppen dient.
Ich weiß das noch alles recht Laienhaft aussieht, aber den finalen Schliff soll es auch vom Profi bekommen.
Ich freue mich weiter über konstruktive Kommentare.
Danke!
Viel Glück, LiquidSky
D
Doc.Schnaggls01.04.14 20:00Hallo,
zum OG:
- Ankleide ohne Tür
- Ankleide ohne Fenster
- Durchgang zum WC zwischen Mauer und Dusche viel zu schmal
Alles in allem, finde ich es gut, dass Du Dir Gedanken über Dir mögliche Raumaufteilung machst, Du nimmst Dir aber auch dadurch viele Möglichkeiten, die Dir ein Profi aufzeigen könnte.
Wir haben in unserem Auswahlprozess eine Anforderungsliste erstellt, die wir dann verschiedenen Bauunternehmern in die Hand gedrückt haben und uns dann vom Ergebnis überraschen ließen.
schlussendlich haben wir dann einem Unternehmen den Auftrag erteilt, in deren Entwurf aber auch noch etliche Elemente aus anderen Angeboten eingearbeitet.
Grüße,
Dirk
zum OG:
- Ankleide ohne Tür
- Ankleide ohne Fenster
- Durchgang zum WC zwischen Mauer und Dusche viel zu schmal
Alles in allem, finde ich es gut, dass Du Dir Gedanken über Dir mögliche Raumaufteilung machst, Du nimmst Dir aber auch dadurch viele Möglichkeiten, die Dir ein Profi aufzeigen könnte.
Wir haben in unserem Auswahlprozess eine Anforderungsliste erstellt, die wir dann verschiedenen Bauunternehmern in die Hand gedrückt haben und uns dann vom Ergebnis überraschen ließen.
schlussendlich haben wir dann einem Unternehmen den Auftrag erteilt, in deren Entwurf aber auch noch etliche Elemente aus anderen Angeboten eingearbeitet.
Grüße,
Dirk
Hallo,
ich bezweifle ehrlich gesagt dass das alles so funktioniert. Ein Planer wäre sicherlich empfehlenswert! Die Grundidee passt.
Die Dusche im EG ist ein Zustand! Wo soll man seine Kleider ablegen oder sich abtrocknen etc.? Ihr braucht sie doch nicht wirklich.
Ganz ehrlich - die Gäste die ich bei mir nächtigen lassen, die lasse ich auch meine Dusche im OG nutzen...
Der Zugang zum Technikraum sieht knapp aus. Der würde davon profitieren.
Wie soll die Treppe gestaltet werden? Offen kann ich mir das so bei der Haustür nicht vorstellen. Gibt's dazu ein Anschauungsbeispiel?
Im OG: Schließe mich meinem Vorredner an +
ich würde das Schlafzimmer neben das Bad setzen, das trennt die Schlafräume von Eltern und Kindern.
milkie 🙂
ich bezweifle ehrlich gesagt dass das alles so funktioniert. Ein Planer wäre sicherlich empfehlenswert! Die Grundidee passt.
Die Dusche im EG ist ein Zustand! Wo soll man seine Kleider ablegen oder sich abtrocknen etc.? Ihr braucht sie doch nicht wirklich.
Ganz ehrlich - die Gäste die ich bei mir nächtigen lassen, die lasse ich auch meine Dusche im OG nutzen...
Der Zugang zum Technikraum sieht knapp aus. Der würde davon profitieren.
Wie soll die Treppe gestaltet werden? Offen kann ich mir das so bei der Haustür nicht vorstellen. Gibt's dazu ein Anschauungsbeispiel?
Im OG: Schließe mich meinem Vorredner an +
ich würde das Schlafzimmer neben das Bad setzen, das trennt die Schlafräume von Eltern und Kindern.
milkie 🙂
Ähnliche Themen