Hausbau - Ratgeber
Bauherrenhilfe
- Bauherrenhilfe vor Vertragsabschluss
-- Warum einen unabhängigen Baubetreuer?
-- Vertragsgrundlagen
-- Bausumme
-- Zahlungsplan zur Kostenkontrolle
-- Pflichten des Bauherren vor Vertragsabschluss
-- Unterlagen beim Hausbau vor Vertragsabschluss
- Bauherrenhilfe nach Vertragsabschluss
-- Bauantrag bei Behörden
-- Bau-Genehmigungsverfahren bei Baubehörden
-- Bauspezifische Versicherungen
-- Bauzeitenplan
-- Baubeginn - die Letzten Pflichten der Bauherrschaft
- Bauherrenhilfe während der Bauzeit
- Gewährleistungsansprüche
- Bauabnahme
Baufinanzierung
- Baufinanzierung - Allgemeine Fragen
- Kreditarten
- Kredit-Konditionen
- Bausparen
- Staatliche Förderungen
- Verkehrswert
- Haushaltsrechnung und Bonität
Hausbau Planung
- Haustypen
- Hausbau Vorbereitungsarbeiten
- Das Baugrundstück
- Baugrund beim Hausbau
- Baurecht
- Gebäudeschutz
- Erdarbeiten und Wasserhaltung
- Stützmauern
- Einfriedung
- Untergeschoss
- Kanalisation
- Tragende Elemente
- Nichttragende Innenwände
- Fundation / Fundament
- Deckenkonstruktionen
- Dächer
- Kaminanlagen
- Treppen Rampen Leitern
- Dachbeläge und Spengler
- Fenster
- Sonnen und Wetterschutz
- Aussenputze
- Einbauten, Küchen, Türen
- Bodenbeläge und Unterlagsböden
- Parkett
- Gips, Wand, Decke
Haustechnik und Energie
- Heiztechnik
- Lüftung und Klimatechnik
- Sanitärtechnik
- Elektrotechnik
- Erneuerbare Energie
Whirlpools / Jacuzzi
Hausbau Magazin
- Baufinanzierung trotz Krise?
- Das Blockhaus
- Moderne Dämmstoffe im Vergleich
- Erker Vor- und Nachteile
- Glasflächen beim Hausbau
- Günstig ein Haus Bauen
- Mediterraner Hausbaustil
- Mehrgenerationenhaus
- Moderne Architektur
- Gartengestaltung leicht gemacht
- Traditioneller Ziegelbau
- Villa als höchster Traum
- Im Eigenheim Ruhestand geniessen
- Altbau sanieren
- Kauf einer Holzgarage
- Immobilienmakler
- Arbeitshandschuhe für den Winter
- Zuhause verschönern
- Outdoor-Plissees
- Schlafzimmer planen
- Terrassenüberdachung
- Wohngebäudeversicherung
- Zaunarten und Eigenschaften
- Hauseingang gestalten
- Der perfekte Grundriss
- Sparsamer heizen im Altbau
- Einfamilienhaus smart finanzieren
- Planung einer PV-Anlage
- Neues Haus
- Immobilienfinanzierung
- Installation einer Photovoltaikanlage
- Asbest erkennen und entfernen
- Gartenpflege im Frühling – worauf achten
- Sauna im Fokus - Wellness zuhause
- Erfolgreich vermieten
- Die perfekte Winterbekleidung
- Das Niedrigenergiehaus
- Der April und seine Stürme
- Architektonische Vielfalt
- Ökologisch und nachhaltig bauen
- Das perfekte Schlafzimmer
- Nachhaltige Energieversorgung
- Zukunftsorientiert bauen
- Nachhaltigkeit beim Hausbau
- Tiny Houses
- Wärmepumpen als nachhaltige Heizvariante
- Maßgeschneiderten Kleiderschrank
- Der richtige Baukredit
- Ratgeber für erfolgreichen Hausbau
- Haus als Altersvorsorge
Do-it-yourself Anleitungen
- Verlegeanleitung für Bodenbeläge und Parkett
- Bodenbeläge und Parkett reinigen und pflegen
- Malerarbeiten am Haus
- Garten Tipps
- Umzug und Reinigung

ᐅ Planung eines Einfamilienhauses. Danke für euer Feedback

Erstellt am: 25.10.16 16:06
R
Rollothemachine
R
Rollothemachine
25.10.16 16:06
Hallo Gemeinde,

meine Frau und ich Planen aktuell ein neues Nest für uns.
Das erste Haus haben wir vor 6 Jahren gekauft (1966 gebaut 140m² Wohnfläche 1700m² Grundstück)
Jetzt soll ein neues her, Haus etwas größer Garten etwas kleiner.....
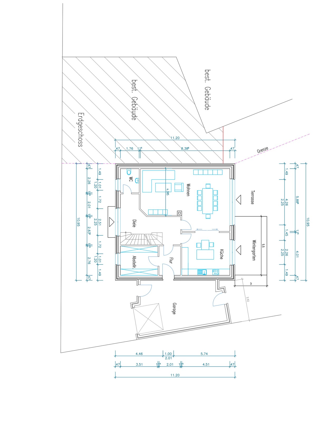
Am Grundriss stört mich irgendwie noch die Treppe und das Bad oben.Des Weiteren hätten wir auch gerne ein einfaches Kinderbad.
Der Garten/Küche/Esszimmer sind Richtung Westen ausgerichtet! Links steht ein Fachwerkhaus
welches als Lager genutzt wird, daher könner wir im Erdgeschoss keine Fenster auf der Seite machen!
Grenzbebauung Rinne an Rinne. Die Garage läuft konisch da Sie auch auf einer Grenze steht!
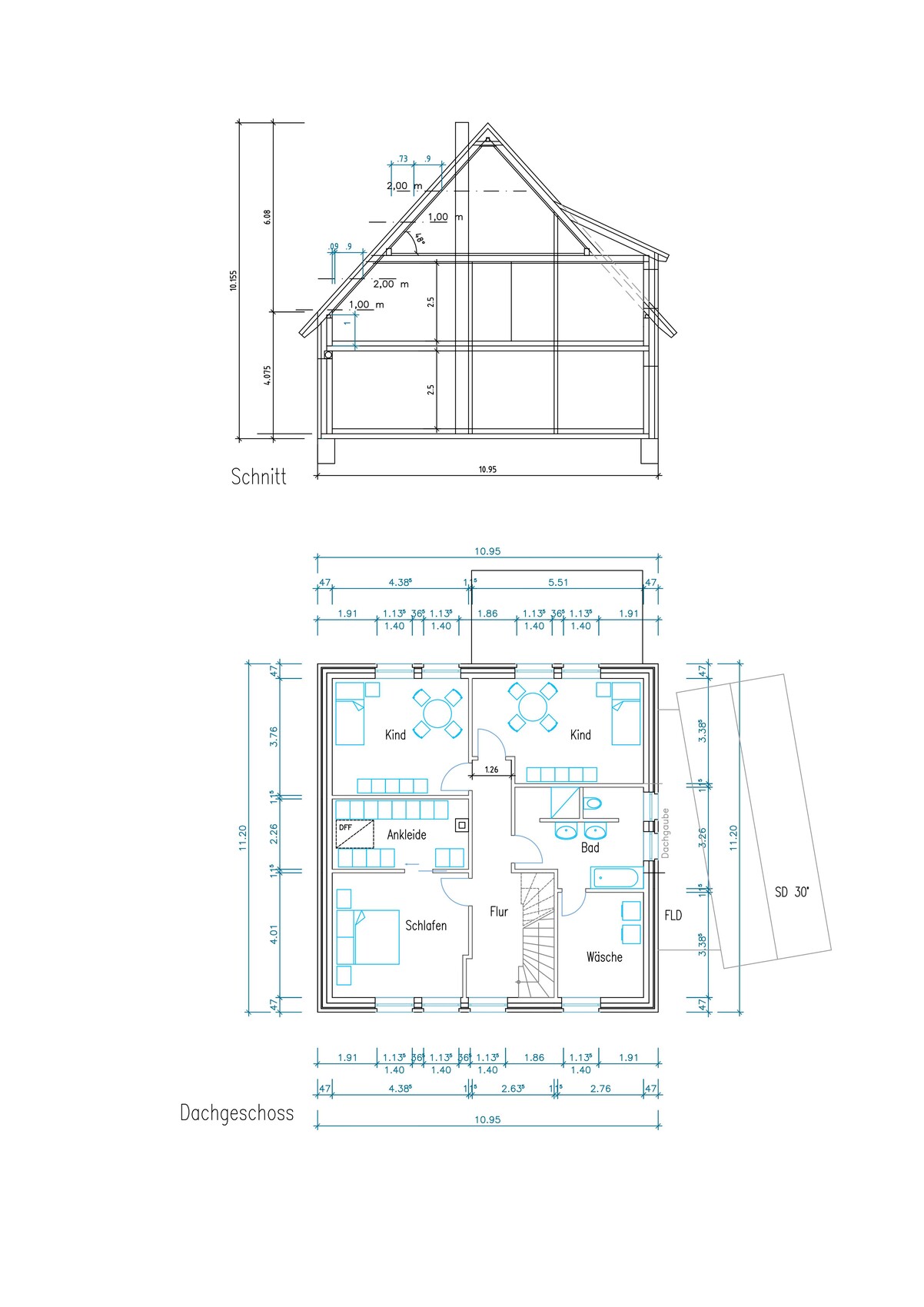
Der Dachboden soll als Büro dienen und evtl. für Nachwuchs.Die Fenster am Giebel sind noch falsch eingezeichnet ebenso der Versprung der Mauer im Schlafzimmer, Wintergartenmaße sind auch noch nicht fix!
Leider kommen wir da nicht so weiter und es fällt uns nicht so recht ein wie man es realisieren könnte. Da muss müsste man nochmal den Tuschestift schwingen! Unsere Familie wird wahrscheinlich wie wir es gewohnt sind den Eingang durch die Garage nutzen und seltener die Haustür.
Wir würden uns über Verbesserungsvorschläge und Kritiken freuen.

Größe des Grundstücks ca. 750m²
Hang nö
Grundflächenzahl
Geschossflächenzahl
Baufenster, Baulinie und -grenze
Randbebauung ja
Anzahl Stellplatz 1
Geschossigkeit 1,5
Dachform Satteldach
Stilrichtung Landhaus
Ausrichtung Giebel zur Straße
Maximale Höhen/Begrenzungen ?
weitere Vorgaben

Anforderungen der Bauherren
Stilrichtung, Dachform, Gebäudetyp Landhaus, Satteldach, 1 Gaube
Keller, Geschosse nein
Anzahl der Personen, Alter: 4, 32,31,1,5 Wochen,
Raumbedarf im EG, OG
Büro: Familiennutzung oder Homeoffice? Familie
Schlafgäste pro Jahr : 10
offene oder geschlossene Architektur offen
konservativ oder moderne Bauweise
offene Küche, Kochinsel ja gerne
Anzahl Essplätze 8
Kamin ja
Musik/Stereowand nö
Balkon, Dachterrassen nö
Garage, Carport ja Garage
Nutzgarten, Treibhaus nö
weitere Wünsche/Besonderheiten/Tagesablauf

Hausentwurf
Von wem stammt die Planung: uns und Architekten
-Planer eines Bauunternehmens nein
-Architekt
-Do-it-Yourself von Euch.: Wintergarten, Fenster, Türen, möbel, Trockenbau, Fussböden bis auf Fliesen
Was gefällt besonders? Küche /Wintergarten
Was gefällt nicht? Treppe ( Hätte gerne eine grade) Vorschläge
Preisschätzung lt Architekt/Planer:
Persönliches Preislimit fürs Haus, inkl Ausstattung:
favorisierte Heiztechnik: wahrscheinlich Gas

Wenn Ihr verzichten müsst, auf welche Details/Ausbauten
-könnt Ihr verzichten:?
-könnt Ihr nicht verzichten:?


Grundrissplan eines Hauses mit Küche, Wohnen, Diele und Garage sowie Terrasse.

Architektur-Blueprints eines Hauses mit Dachgeschoss-Schnitt und Grundrissplan
Y
ypg
25.10.16 16:30
Herzlichen Glückwunsch zum Nachwuchs 🙂


Grüsse
R
Rollothemachine
25.10.16 16:42
ypg schrieb:
Herzlichen Glückwunsch zum Nachwuchs 🙂


Grüsse
😀 vielen Dank!
J
j.bautsch
26.10.16 08:39
wo steht denn eure technik? einen Keller gibt es ja nicht oder?
R
Rollothemachine
26.10.16 08:56
j.bautsch schrieb:
wo steht denn eure technik? einen keller gibt es ja nicht oder?
Gute Frage! Entweder unter der Treppe evtl vom Abstellraum zugänglich, im Abstellraum selbst oder in der Garage. Drüber nachgedacht haben wir schon aber sind da noch nicht viel weiter.... Vielleicht hat hier jemand gute Ideen dazu?!
J
j.bautsch
26.10.16 11:34
also unter der treppe wird der platz nicht reichen 😉 ein paar qm braucht die schon.
garagetreppewintergartenküchefensterrinnegiebeldachformsatteldachlandhaus