Optimale Nutzung eines schmalen Baufensters

4,40 Stern(e) 5 Votes
Zuletzt aktualisiert 22.11.2025
Sie befinden sich auf der Seite 4 der Diskussion zum Thema: Optimale Nutzung eines schmalen Baufensters
>> Zum 1. Beitrag <<

M

Maria16

wie hoch soll das Haus denn werden? ihr solltet auf jeden Fall auch die Abstandsflächen im Blick haben!
3,2 m Abstand Richtung Norden könnten bei zwei Geschossen mit Satteldach eng werden, je nach Kniestockhöhe.
 
seth0487

seth0487

Das Haus soll 2-geschossig werden mit Walmdach. Dementsprechend hätten wir doch nur die Höhe der beiden Geschosse zu berücksichtigen, oder? Also ca. 6m * 0,4 = 2,4m
 
seth0487

seth0487

In der Landesbauordnung von Schleswig-Holstein steht 0,4. Aber selbst mit 0,5 wäre ich bei 3,0m. Aber dennoch Danke für den Hinweis!
 
seth0487

seth0487

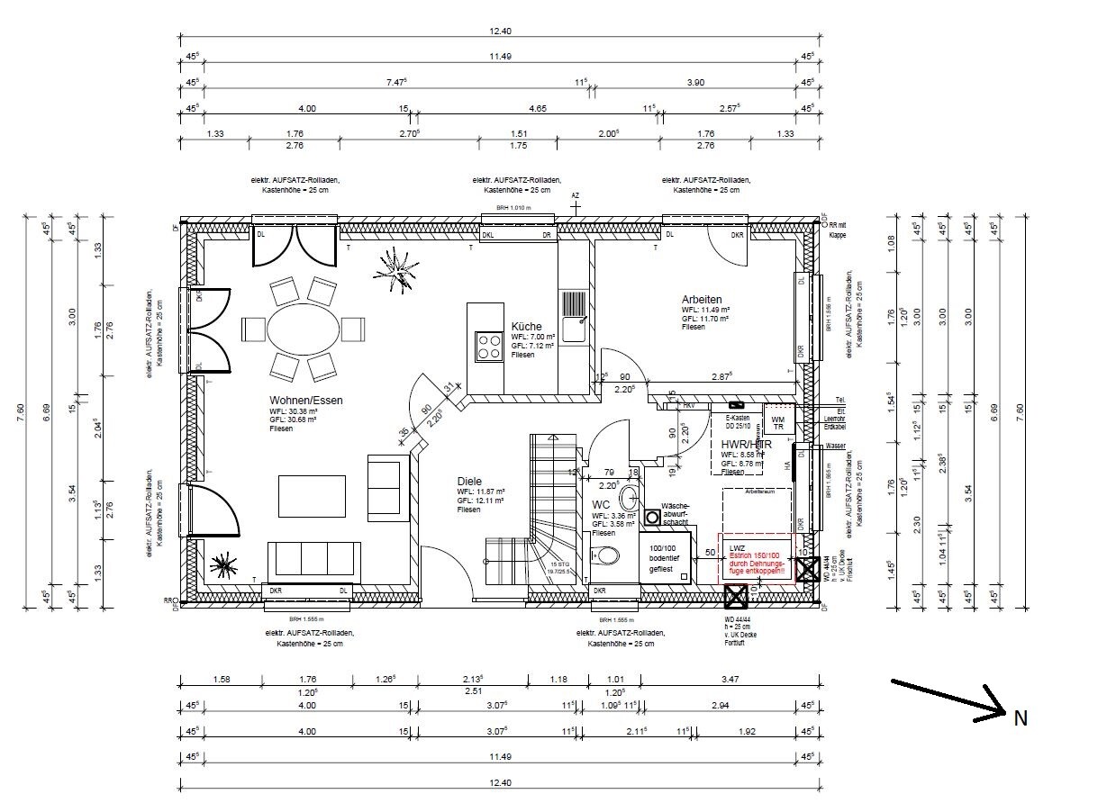
So, wir haben nun die erste Zeichnung auf Grundlage unserer Skizzen von unserem BU bekommen und möchten diese auch hier mal vorstellen.

Das EG gefällt uns eigentlich schon ganz gut. Nur die Fensteranordnung ist noch nicht ganz nach unserem Sinn.

Wir haben auch bereits ein paar Dinge, die uns persönlich noch nicht gefallen:

EG:


- Entweder das einzelne Fensterelement auf der Südseite weiter in die Ecke, um eine größere Wandfläche für TV/Hi-Fi zu haben, oder auf das Element ganz verzichten und statt dessen ein feststehendes Fensterelement an die Doppelflügel Terrassentür. Also quasi drei Fensterelemente und dann etwas weiter zur Raummitte verschieben.

- Statt des Doppelflügel Terrassenelement an der Westseite(beim Esstisch) zwei einzelne Elemente mit einem Abstand von ca. 2m zueinander. Also ein da wo der eine Flügel jetzt schon steht und der andere Flügel ca. 2m davon in Richtung Küche. Ich hoffe, dass ist verständlich?!



Grundriss eines Hauses mit Wohnen/Essen, Küche, Arbeiten, Diele, WC, HWR und Treppe; Nordpfeil.



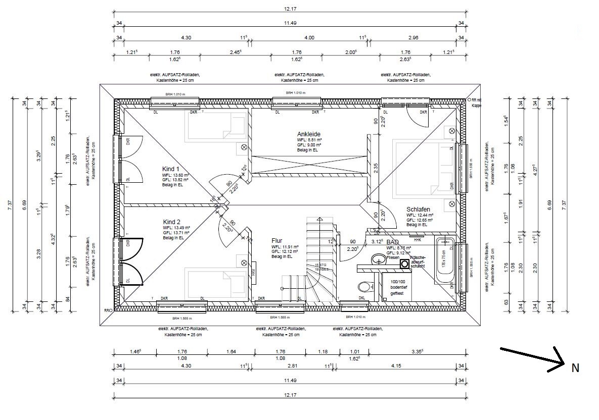
OG:

- uns ist insgesamt der Flur zu groß. Die Frage ist, muss der Flur aufgrund des Auslauf der Treppe so breit sein? Oder kann man das Ankleidezimmer breiter/tiefer machen? Wie viel Treppen-"Auslauf" ist nötig/bequem? Ursprünglich hatten wir in unserer Skizze eine 1/2 gewendelte Treppe(s. Startpost). Wir wollten aber lieber eine 1/4 gewendelte Treppe, so wie jetzt in den Entwürfen enthalten, da uns das mehr zusagt. Hatten aber Bedenken, ob das bei dem schmalen Grundriss so passt. Wie kann man hier den Flur im OG besser nutzen? Ein Kinderzimmer(Süd/Ost) größer? Wir bekommen nur die Türen dann nicht sinnvoll angeordnet.

- das Bad ist uns zu klein. Zwischen Waschtisch und Wand ist uns zu wenig Platz. Wir würden gerne die Wand zum Schlafzimmer um ca. 40cm zugunsten des Bad verschieben. Dann kommen wir auf ca. 11,2 m², was für uns okay wäre. Das Bad im Musterhaus hatte ähnliche Proportionen/Aufteilung bei 10,4 m².


Grundriss eines Obergeschosses mit Schlafzimmer, zwei Kinderzimmer, Ankleide, Bad und Flur.



Vielleicht noch allgemeine Infos zu dem Entwurf:

- Die Nordwand wird im EG zu 1/2 bis 2/3 mit dem Carport/Garage verdeckt sein.

- Die niedrigen Fenster sind bewusst so gewählt. Ich weiß, das einige diese "Schieß-Scharten" nicht mögen. Uns gefällt es aber. Hinzu kommt, dass ein öffentlicher Waldweg relativ dicht(~2m) an der Ostseite des Hauses vorbei führt. Der Weg ist aber nicht so stark frequentiert.

- Ich weiß auch, dass das Baufenster nicht wirklich optimal ist, wir müssen aber das beste daraus machen.

- Die T-Lösung im Bad OG ist von uns so gewünscht, aber kein "Muss". Es gefällt es aber sehr gut! In dem Bad hätten wir auch gerne einen Wäscheschacht, welcher aktuell auch eingeplant ist, aber der Platz neben dem Waschtisch ist nicht wirklich optimal! Alternativen?


Schnitt A-A durch zweigeschossiges Haus mit Treppe, Fußbodenheizung, Dämmung und Dachkonstruktion.


Vier Ansichten eines zweigeschossigen Hauses mit Klinkerbasis: Osten, Süden, Westen, Norden.
 
Zuletzt aktualisiert 22.11.2025
Im Forum Grundrissplanung / Grundstücksplanung gibt es 2535 Themen mit insgesamt 87989 Beiträgen


Ähnliche Themen zu Optimale Nutzung eines schmalen Baufensters
Nr.ErgebnisBeiträge
1Treppe im Flur, Grundriss steht eigentlich schon :o( - Seite 320
2Wohin mit der Treppe? Dachausbau Walmdachbungalow - Seite 319
3Hauseingang mit Flur oder ohne - Seite 215
4Frage zu Grundriss, insbesondere Treppe 13
5Grundrissfrage, Garage, Treppe 33
6Einfamilienhaus ca. 150 qm Grundriss - Treppe wie planen? 65
7Stadtvilla mit gerader Treppe, offene moderne Bauweise, 140m² 18
8Treppe im Wohnzimmer als Hype - Pro & Contra? - Seite 426
9Grundrissplanung Wohnzimmer und Flur zu schmal? - Seite 221
10Ausreichend Licht im Flur? Bitte um Meinung - Seite 212
11Grundrissplanung: Flur im EG breit genug? - Seite 257
12Wie viele Lampen im 7m langen Flur? 13
13Farbgestaltung der Treppe im Wohnraum, Materialwahl - Seite 750
14Jemand Ideen für Umgestaltung Treppe - Seite 220
15Bewegungsmelder im Flur/Dielenbereich - Seite 527
16Grundrissfrage: Tausch gerader Treppe durch L-Treppe 31
17Verlegerichtung Parkett / parallel oder quer zum Flur? - Seite 218
18 2 Vollgeschosse, Durchgang Garage, Hauswirtschaftsraum unter Treppe 25
19Treppe Grundriss Planung, Auftritt und Unterzug 21
20Grundriss Kubus 150qm Eure Meinungen! 36

Oben