C
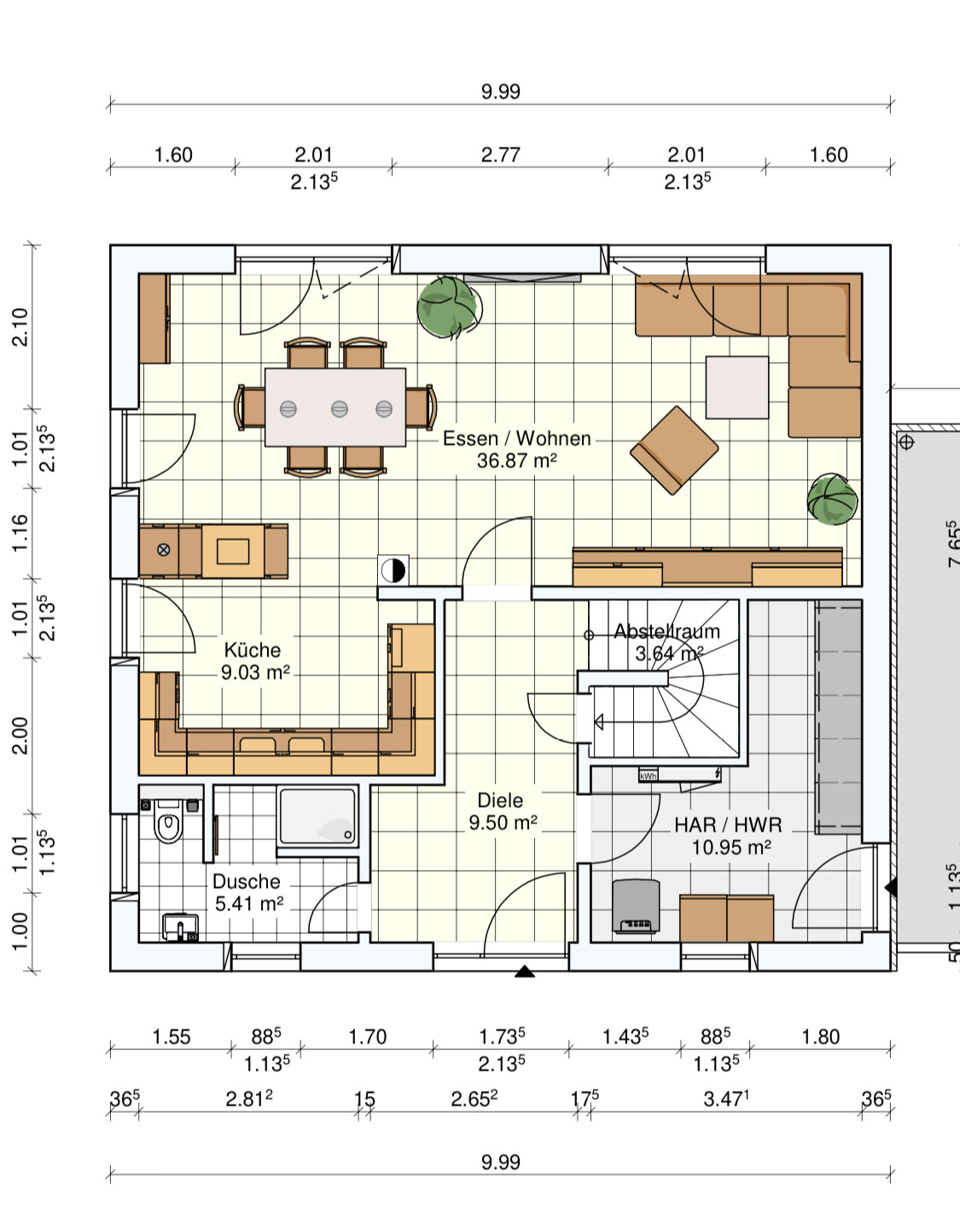
Coletrickle_780805.05.20 18:37Hi, anbei ein Grundriss für eine Stadtvilla (142qm).
Was kann man hier verbessern. Wie kann man das OG in Bezug auf Kind 2 verbessern?
Alle Fenster im OG sind bodentief und an gleicher Stelle wie im EG.
Im EG würde ich bspw. gegenüber des bodentiefen Fenster bei der Küche einen Durchbruch zum Flur machen.
1. Spart man sich den Weg über das Wohnzimmer.
2. Erhält der Flur Licht durch dieses Fenster.
Zusätzlich würde ich evtl. den Kamin Richtung Wohnzimmer versetzen.
- Hier wäre die Ankleide besser nutzbar, bei Kind 1 würde er bestimmt nicht stören.
Bei Kind 2 fällt mir eigentlich nur ein den Flur mit zu nutzen. Kind 2 hätte dann das breite bodentiefe Fenster. Der Flur nun gar keins mehr...
Bin hier echt ratlos.


Was kann man hier verbessern. Wie kann man das OG in Bezug auf Kind 2 verbessern?
Alle Fenster im OG sind bodentief und an gleicher Stelle wie im EG.
Im EG würde ich bspw. gegenüber des bodentiefen Fenster bei der Küche einen Durchbruch zum Flur machen.
1. Spart man sich den Weg über das Wohnzimmer.
2. Erhält der Flur Licht durch dieses Fenster.
Zusätzlich würde ich evtl. den Kamin Richtung Wohnzimmer versetzen.
- Hier wäre die Ankleide besser nutzbar, bei Kind 1 würde er bestimmt nicht stören.
Bei Kind 2 fällt mir eigentlich nur ein den Flur mit zu nutzen. Kind 2 hätte dann das breite bodentiefe Fenster. Der Flur nun gar keins mehr...
Bin hier echt ratlos.
Ein Obergeschoss für ein Wunschkind und ein Kuckucks-Tropi. Herrlich.
https://www.instagram.com/11antgmxde/
https://www.linkedin.com/company/bauen-jetzt/
https://www.instagram.com/11antgmxde/
https://www.linkedin.com/company/bauen-jetzt/
C
Coletrickle_780805.05.20 19:232 Kinder . EG kann auch gerne angepasst werden.
C
Coletrickle_780805.05.20 19:32kaho674 schrieb:
Ist denn das EG so unersetzlich und wunderbar, dass diese fragwürdige Treppenposition erhalten werden muss?
Bitte bei Grundrissdiskussionen den Fragebogen:
https://www.hausbau-forum.de/threads/grundrissplanung-unbedingt-vor-Beitrag-Erstellung-lesen.11714/
ausfüllen.Mache ich noch...hatte ich überlesenÄhnliche Themen