OG Stadtville optimieren. Fenster Bodentief

4,70 Stern(e) 3 Votes
Zuletzt aktualisiert 24.12.2025
Sie befinden sich auf der Seite 9 der Diskussion zum Thema: OG Stadtville optimieren. Fenster Bodentief
>> Zum 1. Beitrag <<

11ant

11ant

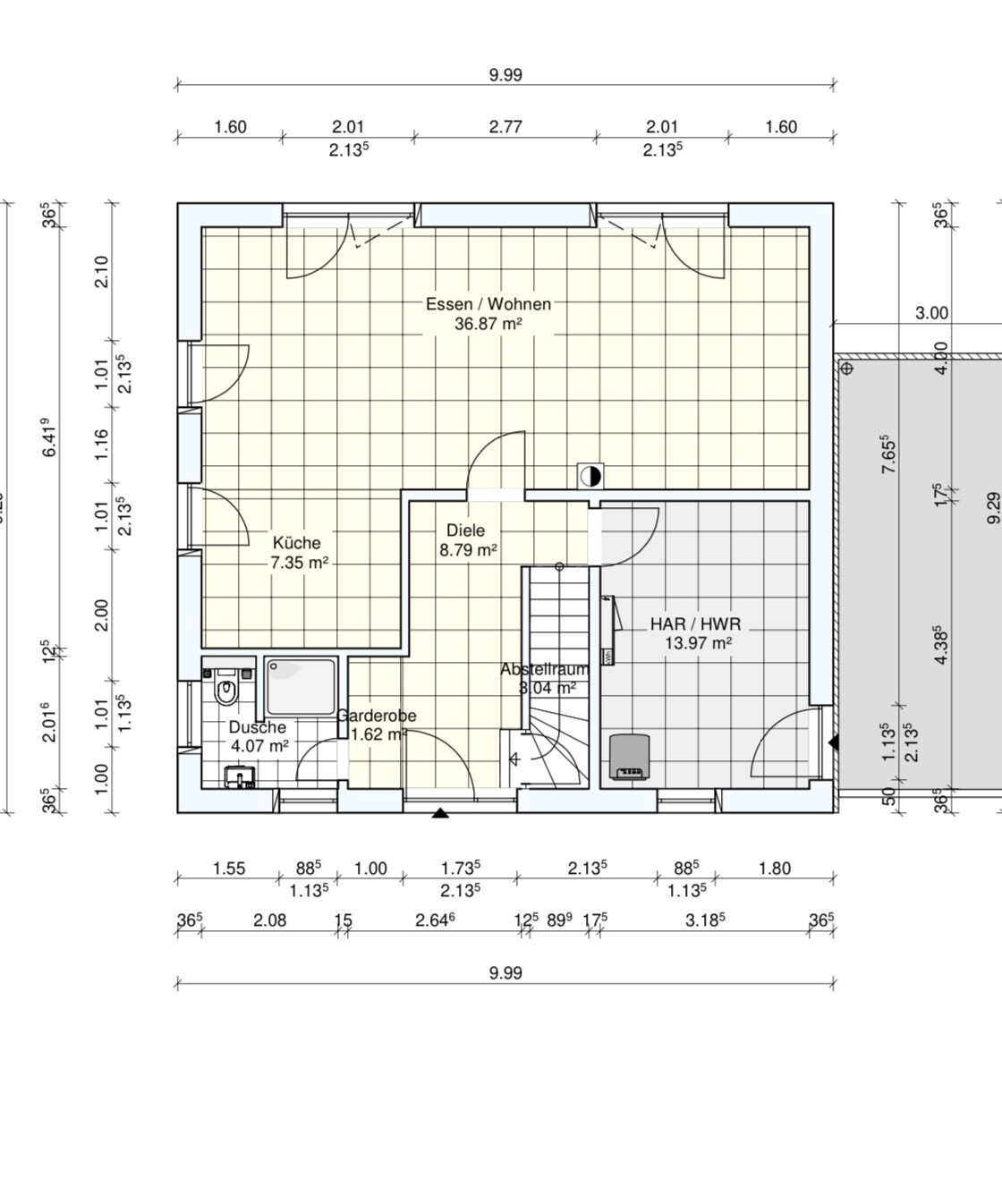
Wäre denn diese Grundriss so in etwa umsetzbar, hier sind leider keine Größenangaben dabei.
Das Gussek Haus Brooklyn mißt 10,60 x 8,80 m und sollte für Eure Größe umsetzbar sein. Ich sehe im übrigen keines der erwähnten Modelle als "bau´ das 1.1 nach" Vorschlag, sondern als Anregung zum Denkrichtungswechsel und Beispiel.

Ahja, wir bauen ja fast Brooklyn (bald irgendwann)
Ihr baut never ever Brooklyn. Ihr werdet - gerade weil Ihr partout Queens daraus machen wollt - bei Bronx landen. Das ist kein Widerspruch, das ist ein kausaler Zusammenhang. Ich sach nur Ilsebill Fischer
 
C

Coletrickle_7808

Das Gussek Haus Brooklyn mißt 10,60 x 8,80 m und sollte für Eure Größe umsetzbar sein. Ich sehe im übrigen keines der erwähnten Modelle als "bau´ das 1.1 nach" Vorschlag, sondern als Anregung zum Denkrichtungswechsel und Beispiel.


Ihr baut never ever Brooklyn. Ihr werdet - gerade weil Ihr partout Queens daraus machen wollt - bei Bronx landen. Das ist kein Widerspruch, das ist ein kausaler Zusammenhang. Ich sach nur Ilsebill Fischer
Was? Verstehe ich nicht...
 
11ant

11ant

Was? Verstehe ich nicht...
Es wurden mehrere Alternativmodelle namentlich erwähnt, aber aus meiner Sicht nur als Anregung, frei zu interpretieren, und nicht konkret zur Einpassung in Eure Außenmaße. Sondern einfach nur um zu zeigen, wie andere Hersteller andere Treppen und Grundrissaufteilungen für ein ähnliches Hausvolumen und diese Familiengröße umsetzen. Euer Problem war ja, daß ein Treppenänderungswunsch den vorher funktionierenden Grundriss kaputt gemacht hat - also mußten Anregungen her, wie als schöner empfundene Treppengrundrisse dort umgesetzt werden, wo sie mit der Etagenaufteilung entwickelt statt transgen verpflanzt wurden.
 
Pinky0301

Pinky0301

Funktioniert das Bad im EG? Es kommt mir sehr eng vor. Im OG wurde einfach das Waschbecken weggelassen, damit es passt
 
Zuletzt aktualisiert 24.12.2025
Im Forum Fenster / Türen gibt es 1378 Themen mit insgesamt 15623 Beiträgen
Oben