ᐅ Neubau Einfamilienhaus, ca. 180 m², 4 Personen, ohne Keller, RLP, KfW 55
Erstellt am: 29.07.20 11:03
M
ManuHenHallo zusammen,
schon längere Zeit lese ich in diesem Forum gespannt mit. Nun ist es soweit, dass wir selber das Projekt "Einfamilienhaus" in Angriff nehmen können.
Wir haben uns für ein Grundstück mit einer Größe von ca. 610 m² in einem Neubaugebiet einer Kleinstadt in RLP entschieden, welches sich derzeit noch in Erschließung befindet. Bauen werden wir mit einem GU (ohne freien Architekten).
Nach einigen Gesprächsterminen mit dem Planer kam nun ein für uns sehr passender Grundriss zustande, den ich gerne zur Diskussion zwecks Optimierungspotential stellen möchte.
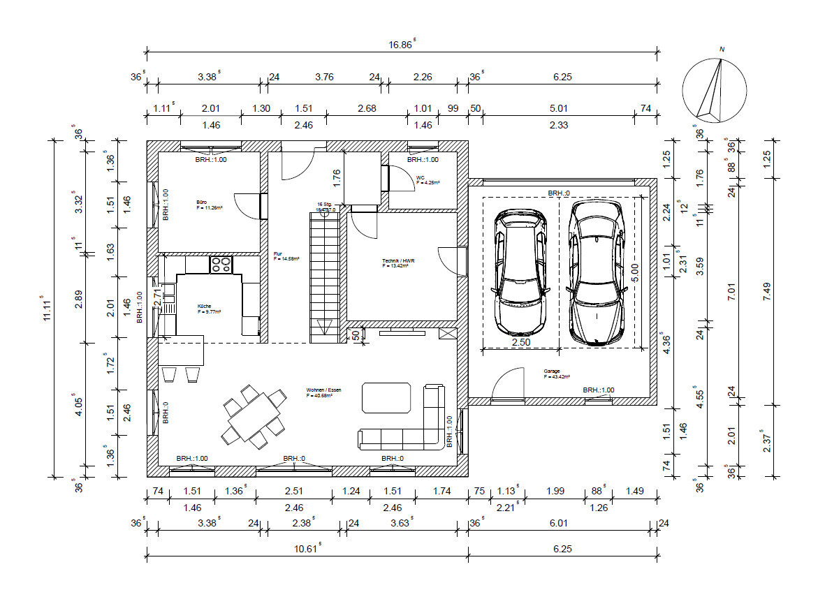
Geplant ist ein modernes Satteldachaus mit 2,0m Kniestock und 20° Dachneigung (aufgrund der Höhenlage des Grundstücks und der max. Firsthöhe) und klarer Architektur. Auf Erker/Anbauten etc. haben wir bewusst verzichtet, da diese auf die Fläche bezogen relativ teuer sein sollen (Wir lassen uns aber gerne eines besseren belehren).
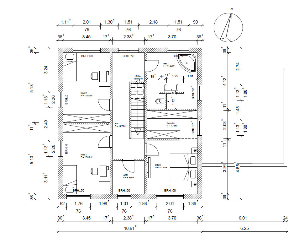
Alle Fenster/Terrassentüren erhalten elektrische Rollläden. Die Kniestockfenster sind explizit von meiner Frau gewünscht. Lage und Breite der Fenster müssen noch harmonisiert werden, das erfolgt nach Finalisierung des Grundrisses. Unter die Treppe wird ein großer einbauschrank vom Schreiner kommen.
Grundsätzlich gefällt uns der Plan sehr gut. Unsere größten Sorgen sind der knappe Stauraum und der gemeinsame Raum für Technik/Hauswirtschaftsraum.
Unsere Fragen an euch:
-Was haltet ihr generell von diesem Grundriss i. V. mit unseren Anforderungen?
-Ist der Raum für Technik/Hauswirtschaftsraum ausreichend? Seht ihr eine Möglichkeit den Hauswirtschaftsraum ggf. separat im EG oder OG unterbringen oder den derzeitigen Hauswirtschaftsraum/Technikraum zu teilen?
-Wäre eine andere Treppenform ratsamer?
Grundsätzlich sind wir auch für vollkommen neue Grundrissvorschläge noch offen, wobei uns der derzeitige Plan wirklich sehr gut gefällt.
Danke vorab für euer Feedback
Viele Grüße
Manuel
Anbei noch der Fragebogen:
Bebauungsplan/Einschränkungen
Anforderungen der Bauherren
Hausentwurf
Wenn Ihr verzichten müsst, auf welche Details/Ausbauten
Warum ist der Entwurf so geworden, wie er jetzt ist? ZB



schon längere Zeit lese ich in diesem Forum gespannt mit. Nun ist es soweit, dass wir selber das Projekt "Einfamilienhaus" in Angriff nehmen können.
Wir haben uns für ein Grundstück mit einer Größe von ca. 610 m² in einem Neubaugebiet einer Kleinstadt in RLP entschieden, welches sich derzeit noch in Erschließung befindet. Bauen werden wir mit einem GU (ohne freien Architekten).
Nach einigen Gesprächsterminen mit dem Planer kam nun ein für uns sehr passender Grundriss zustande, den ich gerne zur Diskussion zwecks Optimierungspotential stellen möchte.
Geplant ist ein modernes Satteldachaus mit 2,0m Kniestock und 20° Dachneigung (aufgrund der Höhenlage des Grundstücks und der max. Firsthöhe) und klarer Architektur. Auf Erker/Anbauten etc. haben wir bewusst verzichtet, da diese auf die Fläche bezogen relativ teuer sein sollen (Wir lassen uns aber gerne eines besseren belehren).
Alle Fenster/Terrassentüren erhalten elektrische Rollläden. Die Kniestockfenster sind explizit von meiner Frau gewünscht. Lage und Breite der Fenster müssen noch harmonisiert werden, das erfolgt nach Finalisierung des Grundrisses. Unter die Treppe wird ein großer einbauschrank vom Schreiner kommen.
Grundsätzlich gefällt uns der Plan sehr gut. Unsere größten Sorgen sind der knappe Stauraum und der gemeinsame Raum für Technik/Hauswirtschaftsraum.
Unsere Fragen an euch:
-Was haltet ihr generell von diesem Grundriss i. V. mit unseren Anforderungen?
-Ist der Raum für Technik/Hauswirtschaftsraum ausreichend? Seht ihr eine Möglichkeit den Hauswirtschaftsraum ggf. separat im EG oder OG unterbringen oder den derzeitigen Hauswirtschaftsraum/Technikraum zu teilen?
-Wäre eine andere Treppenform ratsamer?
Grundsätzlich sind wir auch für vollkommen neue Grundrissvorschläge noch offen, wobei uns der derzeitige Plan wirklich sehr gut gefällt.
Danke vorab für euer Feedback
Viele Grüße
Manuel
Anbei noch der Fragebogen:
Bebauungsplan/Einschränkungen
- Größe des Grundstücks: 609 m²
- Hang: leichte Hanglage (siehe Lageplan)
- Grundflächenzahl: 0,3
- Geschossflächenzahl: 0,8
- Baufenster: 18 x 14 Meter (siehe Lageplan)
- Randbebauung: gem. Landesbauordnung RLP
- Anzahl Stellplatz: >100m² mind. 2,5 Stellplätze
- Geschossigkeit: II
- Dachform: Satteldach mit 20° Dachneigung
- Stilrichtung: Modern
- Ausrichtung: siehe Lageplan
- Maximale Höhen/Begrenzungen: 8,50m Firsthöhe ab nächster Verkehrsfläche (=Straße)
Anforderungen der Bauherren
- Stilrichtung, Dachform, Gebäudetyp: Modern, Satteldach, Klarer Grundriss
- Keller, Geschosse: 1,5 Geschosse mit 2,0m Kniestock (?)
- Anzahl der Personen, Alter: 3 Personen (33 J., 30 J., 3J.), weiteres Kind geplant
- Raumbedarf im EG, OG: 2 Kinderzimmer, Schlafzimmer + Ankleide (optional), Badezimmer, Abstellraum, ggf. Hauswirtschaftsraum ( bisher im Technikraum EG)
- Büro: HomeOffice und Gäste
- Schlafgäste pro Jahr: alle 2 Monate für 2 Nächte Schwiegermutter
- offene Architektur
- moderne Bauweise
- offene Küche mit kleiner Halbinsel
- 6 Essplätze
- kein Kamin
- Doppelgarage
- Kein Nutzgarten, nur Freizeitfläche
Hausentwurf
- Von wem stammt die Planung: Planer eines Bauunternehmens
- Was gefällt besonders? Großer Wohnraum, Große Schlafräume
- Was gefällt nicht? Warum? Ggf. zu wenig Abstellfläche? Ggf. zu kleiner Technikraum/Hauswirtschaftsraum?
- Preisschätzung lt Architekt/Planer: 325.000 € schlüsselfertig zzgl. Garage
- Persönliches Preislimit fürs Haus, inkl Ausstattung: 360.000 € zzgl. Garage (Mobiliar größtenteils vorhanden, wohnen schon in einem 140m² Haus)
- favorisierte Heiztechnik: Luft-Wasser-Wärmepumpe (Wolf Monoblock als Haustechnikzentrale mit Kontrollierte-Wohnraumlüftung)
Wenn Ihr verzichten müsst, auf welche Details/Ausbauten
- könnt Ihr verzichten: gerade Treppe, Große Kinderzimmer (aber: mind. 15m²), Ankleide (aber: Schrankstellfläche >= 4,0m)
- könnt Ihr nicht verzichten: Büro, großer Wohnraum, Abstellfläche (Spitzboden hat am Ende geschätzt nur 1,50m in der Mitte), Zugang Garage/Haus
Warum ist der Entwurf so geworden, wie er jetzt ist? ZB
- Basis war ein Musterhaus von Weiss-Fertighaus (Mannheim 186m²), da dieser Entwurf und von Anfang an sehr gut gefallen hat und unseren Anforderungen sehr nahe kommt.
P
pagoni202029.07.20 11:41Für Technik bräuchtest diese Raumgröße wohl eher nicht. Den Zugang Garage-Haus finde ich total unpassend, da Du wie im Labyrinth ins Haus gehst. Generell finde ich diese Zugangsart überbewertet.
Im EG würde ich DU/WC haben, den Flur (sehr viel Fläche verloren) finde ich absolut zu lang, ich denke, dass Du dazu Verschiedenes hier lesen wirst; auch zur etwas eingequetscht wirkenden Küche.
Die Badgestaltung im OG gefällt mir nicht; das WC sollte nicht so im Eck sein sondern eher näher am Fenster; das "T" ist hier vlt. nicht die geeignete Variante. Eckbadwanne würde ich ebenfalls nicht wollen.
Mit weiteren Infos hier wird das dann aber schon ein schönes Haus, wenn Du offen an die Sache rangehst.
Im EG würde ich DU/WC haben, den Flur (sehr viel Fläche verloren) finde ich absolut zu lang, ich denke, dass Du dazu Verschiedenes hier lesen wirst; auch zur etwas eingequetscht wirkenden Küche.
Die Badgestaltung im OG gefällt mir nicht; das WC sollte nicht so im Eck sein sondern eher näher am Fenster; das "T" ist hier vlt. nicht die geeignete Variante. Eckbadwanne würde ich ebenfalls nicht wollen.
Mit weiteren Infos hier wird das dann aber schon ein schönes Haus, wenn Du offen an die Sache rangehst.
Garagenzugang wäre gar nicht meins. Ist aber auch Geschmackssache.
Der Flur wird recht dunkel werden und ist unglücklich von der Form. So ein Schlauchflur (genauso oben) wirkt sehr erdrückend.
Ob ihr Spaß mit so einer kleinen Küche habt, ohne greifbare Abstellkammer, sei jetzt mal dahin gestellt.
Beim Bad würde ich Dusche und Klo tauschen. Beim großen Geschäft gucke ich persönlich lieber in den offenen Raum, als vor eine Wand.
Dazu würde ich MEIN haus immer so bauen, dass mein Schlafzimmer dem Bad am nächsten ist. schließlich werdet ihr die nächsten Jahrzehnte da drin wohnen, die Kinder sind schneller raus, als man gucken kann.
Der Flur wird recht dunkel werden und ist unglücklich von der Form. So ein Schlauchflur (genauso oben) wirkt sehr erdrückend.
Ob ihr Spaß mit so einer kleinen Küche habt, ohne greifbare Abstellkammer, sei jetzt mal dahin gestellt.
Beim Bad würde ich Dusche und Klo tauschen. Beim großen Geschäft gucke ich persönlich lieber in den offenen Raum, als vor eine Wand.
Dazu würde ich MEIN haus immer so bauen, dass mein Schlafzimmer dem Bad am nächsten ist. schließlich werdet ihr die nächsten Jahrzehnte da drin wohnen, die Kinder sind schneller raus, als man gucken kann.
Danke für euer Feedback,
Garagenzugang ist definitiv erwünscht - nicht zwingend im Hauswirtschaftsraum, aber praktisch wäre es für uns auf jeden Fall (Stichwort: Dreckschleuse, Zugang zum Gartenbereich etc.).
Für unsere Verhältnisse ist die knapp 10qm große Küche nicht so klein/eng. Die eingezeichneten möbel bitte nicht beachten, wir planen eine L-Form an den Wänden mit kleiner Insel am Fenster. Stauraum wird ungefähr doppelt so viel sein wie in unserer bisherigen Küche. Lagerhaltung betreiben wir nicht im großen Stil, hier reicht ein raumhoher Schrank für alles (Lebensmittelläden sind 5 Gehminuten entfernt).
Bad ist noch vollkommen offen, danke für die Tipps!
Der Flur macht uns tatsächlich auch Sorgen. Wir wollten dazu bewusst keine Tür zum Wohnraum anlegen und haben im OG ein kleines Fenster für Tageslicht gelassen. In den Musterhäusern sahen die Flure recht schön aus. Aber ob es am Ende auch hier so schön wirkt, können wir natürlich nicht sagen. Wie könnte man den Flur denn besser gestalten? Andere Treppe? Andere Raumanordnung?
Das Schlafzimmer würden wir auch gerne gegenüber vom Bad platzieren. Haben es im Entwurf noch nicht realisieren lassen, da zwei gleich große Kinderzimmer auch nett sind.
Habt ihr konkrete Vorschläge, was eine ggf. bessere Raumverteilung und Flurausnutzung angeht?
Danke vorab.
Garagenzugang ist definitiv erwünscht - nicht zwingend im Hauswirtschaftsraum, aber praktisch wäre es für uns auf jeden Fall (Stichwort: Dreckschleuse, Zugang zum Gartenbereich etc.).
Für unsere Verhältnisse ist die knapp 10qm große Küche nicht so klein/eng. Die eingezeichneten möbel bitte nicht beachten, wir planen eine L-Form an den Wänden mit kleiner Insel am Fenster. Stauraum wird ungefähr doppelt so viel sein wie in unserer bisherigen Küche. Lagerhaltung betreiben wir nicht im großen Stil, hier reicht ein raumhoher Schrank für alles (Lebensmittelläden sind 5 Gehminuten entfernt).
Bad ist noch vollkommen offen, danke für die Tipps!
Der Flur macht uns tatsächlich auch Sorgen. Wir wollten dazu bewusst keine Tür zum Wohnraum anlegen und haben im OG ein kleines Fenster für Tageslicht gelassen. In den Musterhäusern sahen die Flure recht schön aus. Aber ob es am Ende auch hier so schön wirkt, können wir natürlich nicht sagen. Wie könnte man den Flur denn besser gestalten? Andere Treppe? Andere Raumanordnung?
Das Schlafzimmer würden wir auch gerne gegenüber vom Bad platzieren. Haben es im Entwurf noch nicht realisieren lassen, da zwei gleich große Kinderzimmer auch nett sind.
Habt ihr konkrete Vorschläge, was eine ggf. bessere Raumverteilung und Flurausnutzung angeht?
Danke vorab.
ManuHen schrieb:
Geplant ist ein modernes Satteldachaus mit 2,0m Kniestock und 20° Dachneigung [...] Auf Erker/Anbauten etc. haben wir bewusst verzichtet, da diese auf die Fläche bezogen relativ teuer sein sollen [...] Die Kniestockfenster sind explizit von meiner Frau gewünscht.Da habe ich von GU-Zeichenknechten schon erheblich schlimmere "Übersetzungen" gesehen. Das Weiss-Musterhaus Mannheim hat immerhin im Original eine andere Firstrichtung. Die Kniestockfenster sind im Prinzip bei den Höhen folgerichtig - allerdings weiß ich nicht, ob sich das betr. der Absturzsicherung mit der Fensterhöhe so ausgeht (es könnte nötig werden, daß man die Fenster nur zum Putzen ganz aufkippen kann). Generell ist eine einläufige gerade Treppe eine Diva, aber hier scheint sie mir verkraftbar.https://www.instagram.com/11antgmxde/
https://www.linkedin.com/company/bauen-jetzt/
ich denke immer daran wenn die Kinder älter sind und auch mal Besuch spät am Abend oder in der Nacht da ist und man dann, um ins Bad zu kommen, an zwei Kinderzimmertüren „vorbeischleichen“ muss. Wir haben u.a. aus diesem Grund auch ein eigenes Elternbad geplant, so kommt man zu jeder Zeit, egal mit welchem Outfit, ungestört ins Bad und wieder ins Schlafzimmer. Beim offenen Flur/Wohnbereich sollte man vielleicht überlegen ob man später mal ein Haustier hat, dass dann vielleicht nicht immer im Wohnbereich sein sollte.
LG
Sabine
LG
Sabine
Ähnliche Themen